土木在线论坛 \ 园林景观 \ 景观规划设计 \ 国内园林景观设计案例分析,全面了解设计过程及设计理念

国内园林景观设计案例分析,全面了解设计过程及设计理念

发布于:2023-12-26 14:57:26 来自:园林景观/景观规划设计 [复制转发]
CASE ONE

北京五道口宇宙中心广场改造

在北京五道口宇宙中心一个商业中心前广场的改造中,我们设计了一个转盘喷泉。简单的一排旱喷,一排树,几排座凳。尽头的一组喷泉和树在圆盘里,可以转动。这个转动有五十分钟,当转盘里的这组泉和树回到原来的位置时,泉水开始涌动。这个喷水持续十分钟。

然后继续下一个五十分钟的转动。 然后等待下一个十分钟。

图片

据说宇宙有无数的银河系;银河系有无数的像太阳、地球一样的星球;宇宙并不是一个空间,而是由物质组成的像胶状物一样的引力场......

——那么生命不只是渺小,生命在宇宙中到底是什么?

爱因斯坦还猜测,时间是一个变量。

也就是说,一秒钟可能很长;距离太阳远近,时间是不同的;双胞胎住在山上的和住在海边的会老的快慢不一样;当然还有双胞胎悖论.....——那么生命在不定的时间里是怎样存在的?如果快慢是相对的......

图片
图片
很多人来到这个不起眼的广场,或者说途径。突然发现地面在转动,于是驻足观察。地面灰色、白色的砖一点一点的错开、移动。

有的人好奇心大起,跨到转盘上的坐凳,开始慢慢等待将会发生什么;有的人童心大起,把一只脚放在转盘上,看着自己的两只脚渐渐分开、渐行渐远;有的人等不及看结果,匆匆拍一张照片留个纪念。

如果刚好在喷水时赶到,十分钟以后可能会注意不到还会发生什么,感慨这喷水的时间怎么这么短;有的人干脆坐到旁边的台阶坐凳上,静静的观看人间百态。

图片

“空间不是空的。是各种事件发生的引力场。”

空间的形式需要简单,但是人在里面的活动有很多可能性。清晨有学生背GRE;晚上有比基尼走秀。购物的、路过的,戏水的、呆坐的。空间的设计是微妙的,需要提供各种事件发生的可能。树、坐凳、水。元素只有这些,但空间并不是只有元素本身那么简单。

图片
图片

CASE TWO
衢州鹿鸣公园

2016美国景观设计师协会设计荣誉奖,设计团队:土人设计


衢州鹿鸣公园位于衢州市西区石梁溪西岸,处于拥有250万人口的衢州市的新城中心(商业、行政中心)之核心地段,是高密度城市建筑之中的一片“绿洲”。

设计师将具有生产性的农业景观与低维护的乡土植物融于景观设计之中,创造出一个丰产而美丽的城市公园。一系列漂浮于植被和溪水之上的步行道、栈桥和亭台等构成一个游憩网络,让人悠游于山水自然之中,而又不给自然过程造成过度的干扰。

城市遗弃地由此转变成丰产而美丽的景观,同时保留了场地的生态特色与文化遗产。

通过探索人工建设与自然元素的平衡,实现人与自然的和谐共生。

图片
图片

场地特征与挑战
整个公园占地约32公顷,被高强度开发的城镇所环绕,西临石梁溪,东临城市交通要道。现场地形复杂,有高地的红砂岩丘陵地貌、河滩沙洲,还有平坦的农田,灌丛和荒草,沿河岸有枫杨林带。
在当下的中国城镇化过程中,此类场地被视为杂乱丑陋而毫无价值,历史文化遗产价值更无从谈起。面对此类场地,为了简化设计施工过程,便于修建道路、安装给排水系统等基础设施,最惯常的工程处理方式便是粗暴的铲平。

设计师被委托将公园打造成集休闲、运动、游乐为一体的城市综合型滨水公园。设计探索新的景观理念,让城市公园不仅仅是绿色公共空间,同时作为生态基础设施为整个城市提供生态系统服务。
项目中运用的理念包括“与洪水为友”、“都市农业”、“最小干预”等,在利用山水格局和自然植被的基础上,通过“覆被”(Quiting)和利用栈道及游憩网络来“框架”(Framing)山水和植被,来实现景观的改造。

图片
设计理念与策略
景观的“覆被”策略主要表现在以下4个方面:

1、保留乡土景观本底
2、丰产而富变化的都市田园   
3、与水为友的绿色海绵
4、山水之上的体验框架

图片
图片

CASE THREE
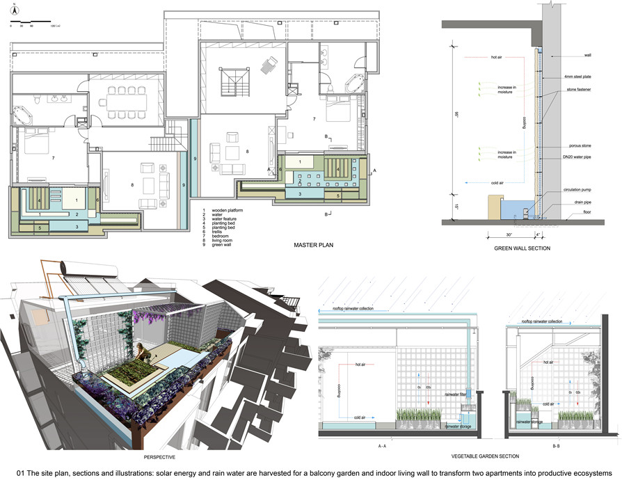
低碳住家——北京褐石公寓
设计团队:土人设计

项目位于北京的一个中高密度社区——北京褐石园,社区由5层多家庭公寓组成,容积率高达1.2。北京气候恶劣,冬季寒冷,夏季炎热;春季和秋季干燥,且昼夜温差很大,春季还会出现沙尘暴。 年降水量达到500mm,主要集中在夏季,春季和秋季干旱少雨。

我们使用了社区内两个位于5层的相邻公寓单元进行实验,主要的改造集中在公寓中两个主卧外南向的阳台和分隔这两个公寓的隔墙上。两个阳台因为北京恶劣的气候不能被很好的使用,每个大概30平方米;隔墙墙面大概11平方米。

图片
图片

实施方法        
运用家庭水生态基础设施的理念,充分利用收集的雨水,将高能耗的住宅建筑向绿色建筑转化的实验性性项目,具体做法如下:

1、改造阳台结构,收集雨水
2、雨水的利用方式:阳台菜园和花园
3、雨水的利用方式:生态墙
4、利用自然通风和阳光,乐享低碳生活

图片
图片

经济效益      
阳台的生产性景观,创造了良好的经济效益,生产的蔬菜产量相当可观,主人可以每天享受一盘沙拉,以及一些豆类和水果等,具体的蔬菜产量如表所示:

通常250多平方米的复式洋房采用10匹的空调主机,室内配置10个末端,一个末端按30W计算。在一般情况下家里只有4-5个末端同时开启,10匹的全变频中央空调(按8小时计算)大概一天耗电30-40度左右。

按夏季100天计算,每套住宅共节约电能3000-4000度。按此计算,两个公寓的总面积为500平米,由于阳台花园对户外环境的缓冲作用和生态墙的降温作用,整个夏季都不需要空调而维持较舒适的室内环境,仅此一项,两套公寓就节省6000-8000度电。


图片

社会效益  
该项目建成后吸引了大量的人员前来参观,起到了良好的教育启智作用。本案例过雨水收集、太阳能和生态墙的设计,用极低的投入,将一个本来耗能的建筑,改造为低碳的绿色建筑,有效地降低了能源的开销,同时提供了兼具生产功能的舒适居住环境。

这栋公寓富有教育意义,它表明将生态设计作为一种系统策略,整合技术资源,用最少的投入、最简单的方式将一个普通住宅向绿色建筑进行转化的可行性。同时,这一建筑环境的使用亦是可持续的,通过阳台花园和生态墙的使用和体验,教育城市公民,倡导低碳的生活方式。

图片

CASE FOUR
美的总部大楼景观设计
 
美的(顺德著名的中国家电龙头企业)总部大楼位于顺德北滘新城区的住宅区与工业区的包围之中,总部大楼共31层,高128米,是目前顺德最高的地标建筑。

美的总部大楼景观设计
通过现代景观语言回应中国岭南大地景观“桑基鱼塘”,在高速城市化的当下回归乡土景观形式与本土美感意境。设计由桑基鱼塘肌理带来的记忆与联想,写就一篇新话语时代的《广东新语》。

图片
图片

阡陌交通的栈桥和道路将用地分割成大小不等、形态各异的几何体——或下沉为水景,或上浮为种植乡土林木的小丘,或成为区域小广场(庭院),或是地下室采光天井。并在其上点缀以乡土材料建造的现代景观构筑,以形态和乡土材料组合解决高起的若干地下室采光天井的视觉问题,贯穿、延续地域景观。

用栈桥、道路、水景与庭院等实际功能体块勾勒出“桑基鱼塘”的网状肌理,让人体验到的不仅是肌理间生动丰富的功能联系,还有亲切舒缓的基塘肌理带给人的仿佛当年人对土地的归属感。

图片

水景在场地中被分作生态湿地以及地下室采光天井上的薄水之用,其重点不在于再现水景的不同形式,也不在于水景带来的若干亲水活动,而是在于对区域文化、生活及当地自然环境关系的尊重。

生态湿地以及地下室采光天井上的薄水皆设计为雨水、污水收集处理系统的一部分。把屋面和露天雨水收集、处理、蓄积在景观水池之中,将产生的中水和污水全部回收,通过生态湿地进行生物降解处理,回用于绿化灌溉和补充景观水池水量,不使用饮用水作为景观用水。

图片
图片

CASE FIVE
上海世博后滩公园

后滩公园设计案例中,利用内河人工湿地带对黄浦江受污染的水进行生态水质净化。设计的内河湿地净化带长1.7km,宽5-30m,采用了加强型人工湿地净化技术,共分为沙砾滩过滤区、植物综合净化区、植物床净化区、梯田过滤净化区、重金属净化区、病原体净化区、营养物净化区和水质稳定调节区。

来自黄浦江的江水进入人工湿地后,随梯田高度和植物高低的落差逐级下渗,经过层层过滤,从劣Ⅴ类水提升为Ⅲ类水;设计的湿地水体净化处理能力为2400m3/日。

图片
场地与挑战         
后滩公园为上海2010世博园的核心绿地景观之一,它既是上海2010年期间世博绿地,也是未来上海市的公共绿地。作为黄浦江边的公共空间设计,场地给设计提出了诸多挑战。

a、严重的水土污染  
b、滨江防洪 
c、会时与会后场地的双重需求 
d、个性、审美与体验
e、狭长的空间

图片

加强型人工湿地系统设计

a.  内河人工净化湿地
b. 水生植物种植与管理
c.  水生动物的放养和培育
d. 节点与步行网络设置
图片
图片
建成后效益及评价

生态效益
通过加强型人工湿地净化技术模块,每日净化污水2.5×106L。将水质从V类水净化成II,即适合于景观绿化用水和景观水体游憩用水。处理后的水不仅可以提供给世博公园做水景循环用水,还可以满足世博园每日绿化浇灌、道路冲洗和其他生活杂用水的需要。

水质净化设计的原理是遵循自然湿地净化的机理来设计人工湿地的结构,其中,水质净化过程中的多种元素,均可作为美的景观。

ASLA评委高度评价了后滩公园的成功设计:“建立了一个可以复制的水系统生态净化模式,低成本高效能,为解决当下世界性的环境问题提供一个可以借鉴的样板。”

图片
社会效益
后滩湿地公园成为世博时期重要的游客访问目的地,游客量达到590640人。场地3.5km长的游憩步道串联各级湿地景观,景观变化多样而游憩效果明显。

在设计和施工过程中共获得8个国家设计专利。该加强型人工湿地净化技术模块在上海后滩公园实现后,已在北京土人设计公司之后的20-30个项目中采用。该项目已被国际上个大学校作为教材。   

2010年3月,北京大学建筑与景观设计学院院长俞孔坚带领哈佛大学校长福斯特参观上海后滩公园,详细讲解了后滩公园如何利用黄浦江边的废弃工业遗址,建立了一个可以复制的水系统的生态净化模式,同时创立了新的公园管理模式。


2015年3月17日,哈佛大学校长德鲁?福斯特(Drew Faust)访问清华大学并发表演讲特别提到了土人景观的上海世博后滩公园项目,她在五年前的那次参观,不经意间让他难以忘怀:人工构筑的湿地,可以如此净化河水,低维护的城市公园,可以如此沟通城市文化,景观设计学,可以如此充当自然环境的守护者。

图片

CASE SIX
安吉桃花源鲸奇谷

《鲸鱼》是日本作家五味太郎的绘本。讲的是一个小渔村被一只候鸟告知有鲸鱼,于是大家开始争先恐后的寻找捕捉鲸鱼。

一直寻而不得,直到有一个小孩,被候鸟带到天上,才发现果然有鲸鱼,它就是渔民们赖以生存的这个湖的形状——只有在天空上俯瞰才能看到。

鲸奇谷的名字和概念就是来自这个故事。

图片

鲸奇谷的独特之处
安吉桃花源的儿童活动场地和城市公园、社区公园里面的不同。首先,山野的自然环境,给它提供了非常规的景观尺度以及独特的气氛——既然身处乡野,就要有乡野的气氛,而不是五彩缤纷的主题乐园或者城市中的儿童乐园。任何人工的设计,需要与山、林、湖相映得彰,突出自然的主题。 

图片
图片

儿童活动场所的特性

色彩
在成人的眼里,约定俗成的认为小孩的世界就是应该色彩缤纷的——从他们穿的衣服,所处的环境(幼儿园的墙壁和铺地,儿童游乐场),画的画儿——否则就不够“儿童”。这只是成人们一厢情愿的看法——没有任何理论依据、科学发现曾经证明“色彩缤纷”与儿童艺术方面的成长是充分必要条件。

所以鲸奇谷虽然是给儿童设计的,这里使用自然界的原色,拒绝把成人的色彩认知转嫁给儿童。除了原木、沙石、草树,出现的石材有桐庐石、板岩、花岗岩,少量的不锈钢尽可能是原色(不锈钢喷漆附着力较差,颜色比较容易掉)。

图片

安全
给儿童做设计最大的困难是在保障其安全性的同时创造或者鼓励其探索和冒险性。这个度很难把握。美国的儿童活动场所设计安全规范非常严格,较之欧洲、日本都有过之而无不及,其实是有些过渡保护。

中国的设计规范虽然并不严格,但是同样人为的日趋保守。其实,小孩需要在尝试的过程中知道自己的能力,这样才能形成对危险的意识从而达到自我规避和自我保护。我们在所有的设计中,充分考虑安全性的前提下,尽可能提供这种机会。安全性如果被过渡考虑了,可以活动的内容就会无趣,不助于小孩勇于挑战和探索精神的培养。

图片

经验与教训
·材料与工艺
塑石与水磨石是我们不经常使用的材料与工艺。蚁穴在最初的设计中想利用现状已经破坏了地表的山体。实际操作中,发现现状山体的岩石易风化易滑坡,不适合凿洞或者攀爬。塑石是最可行、国内工艺最成熟的选择。

实施中最大的问题是工作的衔接——我们把图纸出到什么程度?塑石的工人才可以操作。塑石的工艺带有很大的随机性,最终效果经常依赖现场工人的审美水平。图纸出完以后,实际操作时边做边改边调整,是一个反常规景观施工的部分。

CASE SEVEN
宁波玖著里

第一次勘查现场,是在五月。 初夏的宁波,阳光开始热烈。光从枝叶间铺洒下来,细碎斑驳。用地红线外五排高大的香樟形成的浓荫和红线内工业用地拆迁后的遍地瓦砾是当时的目见。
旧时的工业楼已经过去,新的楼座即将奠基,华盖蔽日的香樟行道树还将继续守护着场地。

玖著里将在这里建成。

图片

项目地东临世纪大道面积5000平方米左右。

场地不大,甲方给出的案名却深厚而高远,引有宁波文脉之源“天一阁”的喻意,在几次交流中,“天一生水”“书院文化”“大隐隐于市”“藏文化”等名词交迭出现,归纳到图纸上,便是要探讨什么样的空间能够让这小小的藏隐之地承载起自古积淀的深厚文化: 虚实。明暗。开合。转折。阴翳。回旋。抑扬。

图片
图片

中心庭院为水苑,源于宁波的天一阁。
天一阁是藏书楼,惧火亲水。起名“天一”,取了古籍《河图》中的“天一生水,地六成之”的吉象。

景观设计就借其吉意,转化为“天一生水,六龙献瑞”场景叙事,一方清池划出六条水道,六块墨石沿岸摆置,石有孔,涌泉汩汩,但因水道折转使得水声幽远不闻其声,划分水道的种植池贴水而砌,几乎不留边,浅草与水气共生长,袅袅冉冉。

图片

这些微妙的情境是难以用固有形式来限定的,设计总是在做细微的调整。比如因为希望人在水边观望时能有清亮的水面穿插在每道绿茵间,所以反复的推敲了绿地与水面的比例、宽窄、进退关系,最后才将水面形式定了下来,又或者希望种下的树在日后是能连绵成林还要给光影留下透气空间的。

所以布点的时候又仔细的考量了高度、冠幅、分支点、交叠度、飘逸感,选来了这样那样的植物,又或者墙体与水面到底是墙落至池底还是水与墙脱离仅以影相连等等等等。

这些难以细述的微妙感,是基于对场地印象、空间把握、气质定位等等诸如此类的框架下所产生的,只生于此地,也只长于此景。

图片
图片

CASE EGHIT
嘉都中央公园

嘉都是一个距离北京市区30公里的新建综合社区。嘉都公园位于四个新建高层居住组团之间,为一个长600米平均宽度55米的带状公园。场地平整,无任何保留植被。

图片
对于社区新的居民来说,社区公园是日常繁忙的生活之余休闲放松的地方,但对于在这些社区里长大的小朋友来说,社区公园的意义将要大的多,因为它将会是他们成长的一部分。

健康成长:
在小朋友成长的过程中,生理的健康发育至关重要,玩耍对于小朋友来说是不断发现和锻炼自己身体机能能力的一个过程。社区公园里的儿童活动设施应当有一定趣味性,以鼓励和确保小朋友每天有一定量的运动量。嘉都公园的儿童活动场地设计从小朋友的基本行为出发,创造了一系列独特的和有趣味的场地和设施。

图片

在现代的少子家庭,往往孩子是家庭的重心,会得到非常多的关注。在成长的过程中,对孩子来说父母的陪伴的确很重要,但和同龄人交流和同龄交友也一样重要。嘉都中央公园的儿童活动场地设计鼓励小朋友走出家门到公园里一起玩耍。

在这里,他们会学到怎么样排队玩滑梯、合作玩跷跷板、比赛玩攀爬、交换玩秋千、互相帮助玩爬网;学会如何和别的小朋友交流;学会如何分享、如何合作、如何交换、如何帮助他人、如何妥协、如何保护自己。这些非知识性的东西在成长的过程中甚至会比学校学到的知识还要重要。

现代教育强调理性思维。理性思维挖掘的太多,身体的本能被忽视弱化不少。人的第一直觉靠的不是大脑而是感官,想的太多感觉到就越少,心性被过多的信息掩盖感受能力就会越来越弱,而世上美的东西是需要用身心去感受的。

嘉都中央公园儿童活动场地设计充分释放孩子的天性鼓励和激发小朋友感知外部世界。场地和设施应用不同的材料声音色彩质感形状,在小朋友玩耍的过程中锻炼他们的视觉、触觉和听觉。除了儿童活动场地,公园里丰富的自然环境也会让小朋友充分感知和理解自然世界。

图片

北京嘉都中央公园作为张唐景观对理想城市社区公园的一次积极探索,从建设社区文化、满足日常需求、进行生态环境教育以及为下一代提供健康成长的环境四个方面入手,将对理想社区的各种深入思考充分的反映在嘉都中央公园的每一处设计细节上,旨在营造一个功能完善、特点鲜明并具有一定时代意义的社区公园。

图片
图片

本文来源网络,如若图文资源侵犯您权益,请及时联系删除

  • yunxiuzhang
    yunxiuzhang 沙发

    这份资料不错,支持与鼓励多上传分享给大家

    2023-12-26 17:13:26

    回复 举报
    赞同0
这个家伙什么也没有留下。。。

景观规划设计

返回版块

25.18 万条内容 · 282 人订阅

猜你喜欢

阅读下一篇

值得景观设计师关注的7种创新型生态设计方法

通常,城市化往往是以牺牲自然环境为代价的,但当建筑师深思熟虑地回应场地的原生生态时,城市景观既可以改善自然环境,也可以塑造有文化底蕴、经久不衰的空间以丰富大众生活。 以下来自第十届年度A+Awards的杰出获奖景观项目实现了这一点。从突破传统城市类型到创新型的生态设计方法,设计师们开辟了景观设计的新方向。 01 中国绍兴:屋檐上的雨水花园

回帖成功

经验值 +10