土木在线论坛 \ 建筑设计 \ 建筑施工图 \ 立面图,到底该怎么细化?怎么审图?

立面图,到底该怎么细化?怎么审图?

发布于:2023-12-25 09:18:25 来自:建筑设计/建筑施工图 [复制转发]

立面图纸,不仅是设计师对方案效果的推敲优化,更是表达装饰材料、尺寸、工艺的一种直接方式。作为设计师,如果不了解、未掌握立面图的细化方法、审核内容等,那么或许就很难将设计方案完美落地。


今天,我们就从以下几个方面来聊一聊立面图的细化和审核


1、立面图该怎么细化?

2、立面图该怎么审核?

ps:文末附dop设计精选案例深化大礼包丨dwg(知名项目完整施工图纸,可参考学习)



01立面图该怎么细化?

www.shejidedao.com联系VX:dop050 回复“公众号”加群

图片

source:google.cn

立面图是对立面信息进行表达的图纸;因此,立面图的细化内容主要是表达内容和标注内容两方面。


1、立面图的表达内容

下面就从表达分类、表达逻辑、表达方式三个方面来阐述一下立面图的表达内容。


a、表达分类

立面图传达的信息比较简单,按重要性可以分为:

建筑类信息:墙体、楼板、门窗、楼梯等;

剖切类信息:剖切到的天花吊顶、地坪、墙面完成面;

重点表达信息:看到的墙面造型尺寸、材质、固定家具、设备等;

非重点表达信息:与该立面相关的软装信息,比如墙面装饰物、与墙面关系密切的活动家具、天花吊灯等。

图片

source:google.cn


b、表达逻辑

建筑类信息是框架,是空间的基本界定,同时可以帮助立面的理解;比如哪里有门、有窗、空间是封闭还是开放的等等。


剖切类信息是根据设计意图与构造要求对该立面的进一步细化与范围界定


比如卫生间、天花会有吊顶的完成面及设计高度要求,贴石材的墙面要约50mm的工艺完成面,地坪会有地面材料的工艺完成面高度要求,同时还会有高差及坡度的要求等。


重点表达与非重点表达从字面上就已经分出重要性了,就是说,非重点表达是锦上添花,是加分项而不是必须品

图片

source:google.cn


c、表达方式

立面图的表达方式分剖切表达、示意表达、展开表达三类。


① 剖切表达

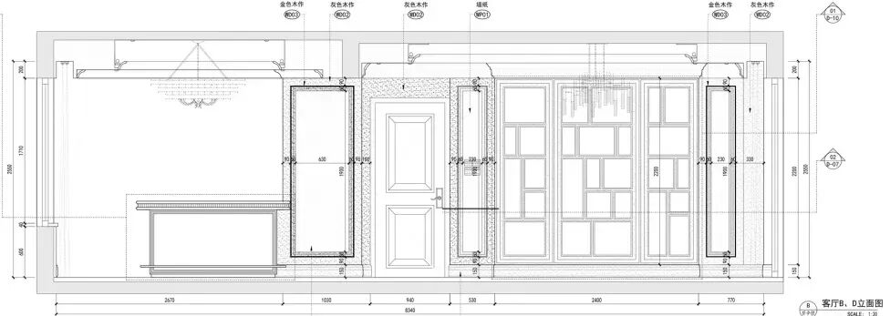
剖切表达对应的是剖切符号。剖切表达是要准确表达平面上剖切位置的内容,类似于机械制图中的表达精确度,属于严格意义的剖面图。


此类剖切多应用于大空间或复杂空间,比如商业综合体对共享空间的剖切,不规则的异型空间剖切,尤其是参数化设计的空间。


剖切表达可以有转折,并非一定是直线剖切。在平面图中剖切的符号放置要准确,相对立的立面信息表达也要准确。准确不等于精确,准确不是教条;不准确的部分要便于理解,而不是任性。

图片

source:google.cn


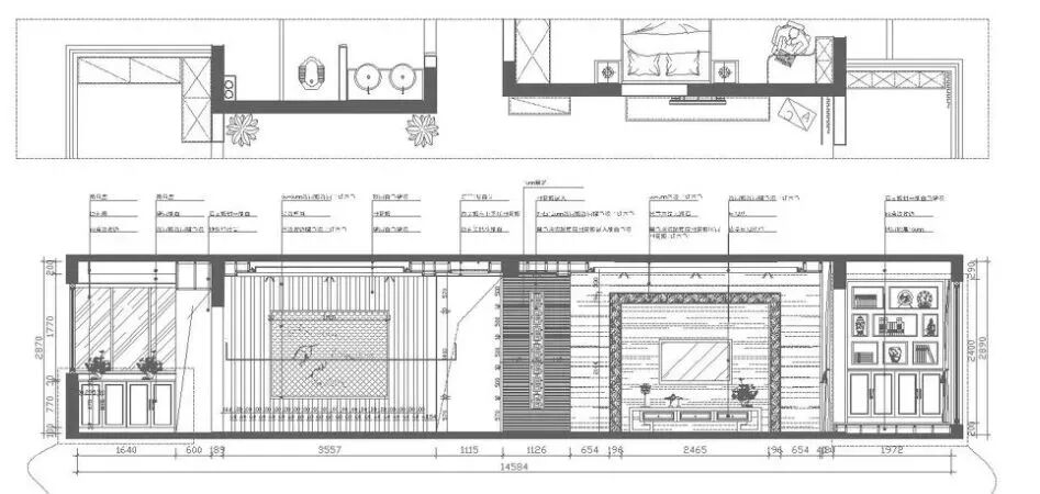
② 示意表达

示意表达对应的通常是立面索引符号,是要对空间的某个立面进行表达,但是和立面索引符号的位置相关性不大。


例如,立面索引放置的位置没有剖切到门时,立面图中是会表达门剖面的;立面索引符号的所看方向受活动家具遮挡,在立面图中是不会表达活动家具与遮挡物的。


在室内施工图中,示意表达应用较多,其原因是这种表达方式更具灵活性,更具可读性,更易帮助图纸的理解。

图片

source:google.cn


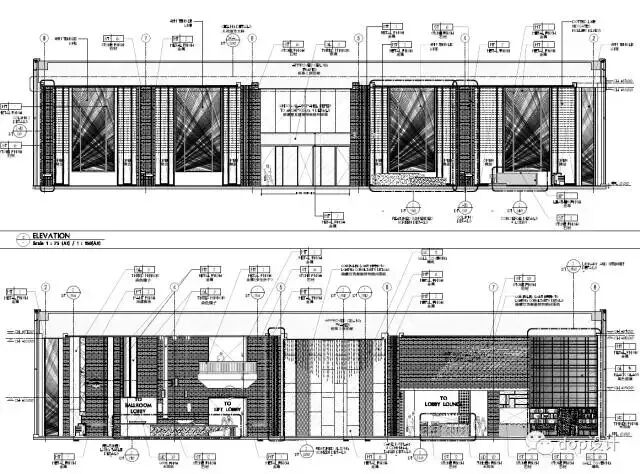
③ 展开表达

展开表达属于特殊的表达方式。当下的设计会有很多弧形墙面,以及双曲面的墙面,这时用平行投影的原理很难对墙面的信息进行描述,而且不能反映真实的尺寸,展开表达是一个很好的解决方案。


展开表达的优势是可以表达真实的尺寸,同时也更符合空间界面的真实状态

图片

source:google.cn


2、立面图的标注内容

图片

source:google.cn

下面就从标注信息、注释信息、索引信息三个方面来阐述一下立面图的标注内容。


a、标注信息

立面对应的平面系统,属于过度性图纸,是平面图的补充。平面系统表达的信息较为完整,但是无法表达立面造型。


立面图由于图纸比例的缘由又无法对小的细节与内部构造进行描述,所以,立面图传达的不是细部信息,是表述立面大的造型关系与主要尺寸。标注信息要适度,不宜过细,细部的信息是由节点图进行表达的。

图片

source:google.cn


b、注释信息

图纸的注释信息包括尺寸注释与材料注释


在立面图中尺寸注释需要标注的有吊顶主要高度、地坪高度及立面造型的主要尺寸


材料注释通过仅对墙面的主要材料进行标识,还可以通过材料的填充图例进行补充说明。


墙面造型的细部尺寸与凹凸关系是要通过节点图进行表达的。

图片

source:google.cn


c、索引信息

立面图的索引比较简单,仅对墙面的节点进行剖切与放大索引


剖切索引是为了表达内部构造与饰面的凹凸关系。


放大索引是要将立面图比例无法表达清楚的图形信息在节点图中进行放大表达,然后再进行剖切


天花与地坪的细部与构造信息在平面系统中进行索引。注意的是与墙面有紧密关联的信息是要在立面图中表达清楚的。

图片
图片

△更多平立面、机电水暖等深化知识可扫码咨询


ps:文末附dop设计精选案例深化大礼包丨dwg(知名项目完整施工图纸,可参考学习)




02立面图该怎么审核?

www.shejidedao.com联系VX:dop050  回复“公众号”加群

图片

source:google.cn

立面图纸审核,咱们主要讨论的就是图纸自审这部分,那么通常可以参考以下的审核要点及审核重点来进行这个自审过程。


1、审核要点

立面图纸审核,包含的很多内容,主要可以总结为规范标准、功能使用、效果呈现、施工落地、成本控制、图纸表达六个审核要点。


a、规范标准

首先,应该保证图纸的完整性,对图纸内容进行查缺补漏。图纸不全会给后期的施工造成很大的不便,如果施工出错会出现互推责任的情况,同时图纸也会影响预算报价,因此必须保证图纸的完整。

图片

source:google.cn


其次,应该核查各项设计是否满足设计规范要求,且必须严格按照行业规范和标准进行绘图。以免影响局部使用效果或有安全隐患,可能还会影响工程验收及项目周期、成本等。


b、功能使用

一些设计师在做方案时,往往会优先考虑美观,而牺牲了实际的功能使用的体验。如果不考虑周全,不以人为本,那么就只有等到实际使用了才会发现不便、不舒适,也就会导致整个设计的体验感及品质变差。

图片

source:google.cn

△案例示意


因此,在图纸审核的过程中,可以从实际功能使用的角度出发考虑图纸内容是否合理,后期就会省去很多不必要的麻烦


c、效果呈现

在图纸审核的过程中,还会遇见这样一类情况,就是设计图纸与效果图不符。那么这个时候就需要确认,以哪个为准,是图纸表达错误,还是方案修改导致的

图片
图片

source:google.cn


还需要综合考虑材料性能、完成面的厚度、成本造价、施工难度、耐久性等等因素,是否匹配、合理


d、施工落地

图纸审核过程中,施工落地方面比较常见的一点就是完成面或者一些设计尺寸不满足落地要求


一些深化设计在图纸阶段并没有考虑太深入,等到施工的时候,却发现当下的工艺还做不到,或者做到的话,也需要极其高昂的成本等等,诸如此类的问题就都要考虑到。


图片

source:google.cn


一些比较细节的处理方式没有表达或表达不清晰、不全面。最终可能会导致细节部位因施工方不处理、随意处理或不知道如何处理,从而影响最终效果,或导致无法通过验收、后期补充图纸继而增加成本等一系列问题。


e、成本控制

一些项目在设计阶段,并没有考虑太细致,那么就有可能会出现一些重复设计、过度设计或者无效设计的情况。因此,在审核过程中,就需要对这类情况进行核查,从而符合成本控制要求,或通过优化完善来控制成本分配等

图片

source:google.cn


f、图纸表达

图纸表达应该做到规范、准确、完整、美观、全面、清晰等,比如,有没有标注错误的,有没有字体样式、大小不一致的,有没有线型没做区分的...等等,这里就不过多讨论了。

图片

source:google.cn

在图纸审核过程中,需要特别注意是否有让人看不懂或容易理解错误的内容,以免导致信息传递混乱或错误的局面。

ps:文末附dop设计精选案例深化大礼包丨dwg(知名项目完整施工图纸,可参考学习)


2、审核重点

立面图纸审核中,有几个方面比较容易被忽视,这恰恰就是审核重点:


a、平面与立面是否吻合

立面图的绘制依据是平面图,但是现在很多立面图收与平面图不能很好一致的。这个是绘制人员责任心的问题,不是能力问题。关于人员的问题不在此发表观点了。

图片

source:google.cn


b、立面是与相邻界面相关联的

每个立面都不是孤立的,是要与天花、地坪,尤其是相邻的墙面是有关联的。当下出现的最多问题是每个立面单独审核都是合理的,但是将相邻的立面相关联去审核就会有冲突,尤其是在细节部分。

图片

source:google.cn


c、立面图中的高度标注易被忽略

地坪有时会有小的高差,如卫生间的地面降低10mm,而立面的高度尺寸标注也会有变化的。


例如同样是2400mm的吊顶高度,地面没有降低的部分是2700mm,有地面降低的部分就会是2700mm加上降低的部分。

图片

source:google.cn


全部回复(0 )

只看楼主 我来说两句抢沙发
这个家伙什么也没有留下。。。

建筑施工图

返回版块

292.66 万条内容 · 995 人订阅

猜你喜欢

阅读下一篇

产业园|厂房建筑立面设计意向图

产业园|厂房建筑立面设计意向图 各种产业园近些年在政府、市场多重因素的促进下如雨后春笋般涌现出来,而产业园绝非由传统生产车间构成的厂区,其类型十分丰富,包括高新技术开发区、经济技术开发区、科技园、工业区、金融后台、文化创意产业园区、物流产业园区等等,园区规划和建筑立面设计都呈现崭新的需求,本文主要整理园区中生产建筑,如机械生产、电子器件生产,研发与创意生产等相对广义的生产用房立面设计案例,以供大家学习参考。 

回帖成功

经验值 +10