手绘和方案能力的学习需要大家长期的坚持和积累,而抄绘是学习过程中不可缺少的环节,所以在此推出案例抄绘活动,对大家手绘、方案设计、快题表达能力都有很大帮助,让我们拿起画笔,跟随四方的脚步,每天进步一点点,沉浸在知识的海洋吧!
此次四方打卡活动,在之前的形式上进行了新的模式尝试。不再像之前那样单一的局限在建筑案例的学习上,而是融合了建筑考研快题的基础知识讲解,在国内应试模式下,添加了专业理论课的复习指导,更加综合性的满足多种同学的学习需求。对于低年级的同学而言,也可以为后面的学习做好规划,结合学长学姐的学习情况,适时调整自己的学习计划;能找到自己的不足,尽快赶上专业学习进度。这也是这次四方公益打卡课的核心出发点:查漏补缺、自我完善。

本期小编将带大家开始学习建筑平面图的绘制,并对其中的规范设计要点做详细讲的讲解。
墨线笔(要求:不断墨,书写顺畅,干的快,不易拖墨)
在平时训练的过程中,墨线笔的种类繁多,价格各异,小编觉的找一个适合自己的就可以哈。由于建筑快题是一个快速方案设计的过程,因此并没有像平时大家在画工程图那样——区分线型(00.5/0.1/0.3/0.5/0.7/1.0等),绝大多数建筑快题考试对于线型是没有要求的(包括一二级注册建筑师的考试)。
常见的墨线笔有:晨光会议笔(小红帽)、白雪、三菱等。常用线型0.3或0.5mm。


铅笔:建议用自动铅笔——省时省力,铅芯可以考虑用HB、4H等硬朗的碳纤芯,这种铅芯不易弄脏图面。

平行尺:带滚筒式的,用于上黑色墨线;部分还有量角尺——确定角度、画弧线形柱网时可以使用。该工具是在手绘作图中使用最多的工笔,基本是人手一把。
柱笔:常用的品牌有——斯塔小头马克(1.0的线型细头+4mm宽的扁平马克),基本也是人手一只。也有其他合适的工具,大家可以任选。

大号比例尺:画铅笔稿时必不可少的工具。
近些年来,各地高校在平面图的表达上越来越趋于统一;早些年间南北方在平面图方案设计表达上,存在差异,导致部分同学在刚开始学习时会产生困惑不解。现阶段来说,在快题设计领域,一般而言:平面图比例在1:200、1:250、1:300时,对于墙体的表达,基本都是采用直接涂黑的方式来表达;比例在1:100或者是1:150时,时间允许的情况下,可以采用画双线的形式进行表达(画双线时,转角交接处可以叠加)。当出现比例在1:50或者1:20等时,墙体坚决是不能涂黑的,我们在画这种比例时,还需要画出第三条尺寸线(通常情况下,平面图只用标记柱网尺寸、边长总尺寸),有些时候快题任务书还会需要你画出对应的材料画法。
图名的书写能体现出应试者的基本文字素养,不建议写的过于潦草;比例尺的标记,一般在任务书中就会强调,我们根据实际情况来绘制即可;指北针的形式多种多样,没有固定的形式,大家可以根据自己实际情况来选择。



备注:
一般而言,一张图原则上只有一个指北针,但是有时候由于绘图纸版面的限制,导致需要旋转平面图或者总平面图;这时候就需要把平面图和总平面图的指北针都要画上去,便于看图老师能准确判断方向。
尺寸标注,有三种方向,第一种为左边和下边,第二种为上边和右边,第三种为四周均标注,一般采用前两种即可。图纸版面比较富余时,可以考虑标注4个方向的尺寸线。建筑平面的尺寸标注,一般是标注:柱网尺寸、以及边长总尺寸;部分高校有可能需要你标注门窗洞口的尺寸。还有些高校的快题可能需要标注平面的柱网轴号(这种情况极为少见。)
常见的柱网尺寸为:7.2M、7.8M、8.1M、8.4M、9M、10M、12M等,根据不同的建筑空间需要,可以灵活进行灵活的布置。(模数制的尺寸数据—即“3的倍数”,在如今部分设计中,可能不是首要因素,大家灵活使用即可)。



部分北方高校的快题考试中,可以不用刻意去标注平面的尺寸,只需标记建筑的平面图比例即可。

对于一个正常的建筑而言,其出入口的数量不会少于2个(主入口、次入口);功能完善的建筑的出入口往往还会有:货运出入口、内部办公人员出入口、紧急疏散出入口等,因此在考试解题时,需要进行准确判断,不能一带而过。(部分要求不严格的学校,在考试时,可能就只用在建筑的平面图中标记:建筑主入口、建筑次入口)。


现行的应试考试体系下,多数建筑为中小型公共建筑,因此对于建筑无障碍的考察,往往是评图老师的一个重点查看内容。这些无障碍的考察集中在建筑主入口的位置,常见的无障碍坡道的比例为:1/8,1/10,1/12,1/15;室内常用1/8,室外常用1/12。对于无障碍坡道的形式主要有:一字型、L型、U字型、或者S型(室内外高差过大时可以采用)。

坡道尺寸:宽1.2M,中间休息平台宽度1.5M。(在快题设计时,为了方便快捷,往往都会画成大于或等于1.5M)
一般而言,对于一个建筑的平面的剖切符号,是一个或者两个。长边剖切、短边剖切可以任选;部分快题任务书会给出剖切位置。一个完整的剖切面是根据平面图的形式来决定的;涉及到庭院、高差、中庭等不同位置时,可能会出现室内和室外同时存在的情况,这时在出图时,要特别注意剖面的画法表达,能明显区分室外,任然是一个最基本的要求。
往年研究生考试时,部分高校可能会出现转折剖(同济大学、东南大学、重庆大学等)的表达,这时需要注意转折处的拼接表达。


在快题中由于时间的限制,很多时候我们会在平面图表达时,采用墙体涂黑的方式进行画图;对于有开窗的位置,常见形式是用细实线来表达(这个根据窗子所在墙体中的位置:靠外、靠内、靠中间)。所以在画图时可以是窗子的位置可以是4条线,也可以是3条线。
部分高校对于窗的形式和位置没有特别的要求,部分同学在画图时,可能是直接用留白处理的方式,来代替窗子的细节表达。(常见墙体的宽度有:240MM/300MM,内墙有:200MM、180MM等,视具体情况而定)

门的尺寸,有600/700/800/900/1100/1200MM(单扇门的宽度),在不同的位置具体尺寸不一样,可参照设计规范或者建筑资料集。
早些年间,部分高校在快题考试中,不用画门的开启方向,只用留出门的位置和大小即可。现在大部分高校是要求画出门的开启方向(对于在主次出入口而言,这个门都是朝外开的,而在室内时,则根据实际情况来确定:一般原则是——朝疏散方向开启)。
门的大小,是衡量平面尺寸的一个基本参照物,因此在画图时不能随意勾画门的大小;转门的使用,在快题中也是极为少见的(酒店、旅馆主入口有,同时配套有正常使用的平开门),因为这个门可能会引起夹人事故,产生不安全因素。
首层平面图要表达周边环境,图底尽可能统一,起到衬托作用。同时要有标高——室内标高与室外标高;对于没有高差的场地而言:建筑室内标高是
+
0.000,室外标高为-0.450MM(新规范中,室内外高差一般都是大于或等于3步台阶,少于3步台阶做坡道)。
平面图的标高,一般是标在建筑主入口门厅和室外入口台阶,以及室内楼梯的位置。(或者是有高差变化的地方)。同时不要忘记了各个房间的功能名称的书写,切记!
8、其他补充
【1】对于有通高空间要记得画出中空符号,表达空间的通透。
【2】二层如果有悬挑的部分,要在一层用虚线表达出来。
【3】涉及到局部平面时,需要用3条引线,引出变化的平面的位置和具体内容。

用比例尺定点画尺寸(单线),常用建筑平面比例为1:200。画好平面横竖尺寸后,根据设计的方案,画出各个功能用房的面积和大小(误差范围在5%-10%)。


用画十字的形式标记出建筑房间的面积范围,同时用圆圈标记柱子的位置;预留出建筑平面的尺寸线。

根据比例尺寸标记处,门、窗、洞口的位置;进一步细化铅笔线稿。

用斯塔柱笔或者线型为1.0的黑色签字笔,辅助平行尺,给铅笔稿平面上墨线;可以选择先上横向线条——再上竖向线条。


这一步较为考验大家的记忆能力,很多同学会由于记错而上错了线条的位置,因此需要大量练习,以及重复查看设计草图,进行确定。
画出门窗洞口的位置和形式,标记出建筑的出入口、及其具体尺寸,晚上建筑内部的墙体的细节内容。书写平面建筑的功能名称,以及各个出入口的名称,写上图名和比例。(如果平面图和总平面图图的方向不一致,就还需要在一层平面图中画上指北针)


写上建筑的周边主要尺寸(柱网尺寸和总边长尺寸),用柱笔宽头点上柱子的形状,有的时候为了使柱子更为挺拔,可以用墨线勾一下边框,强调其硬朗的感觉。


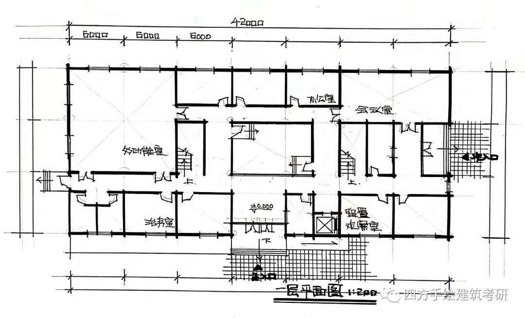
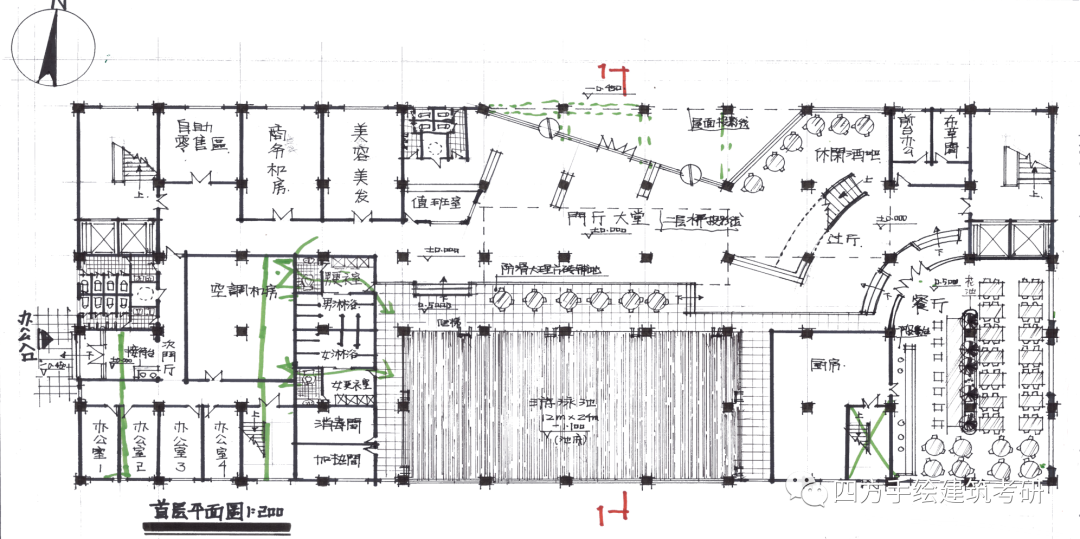
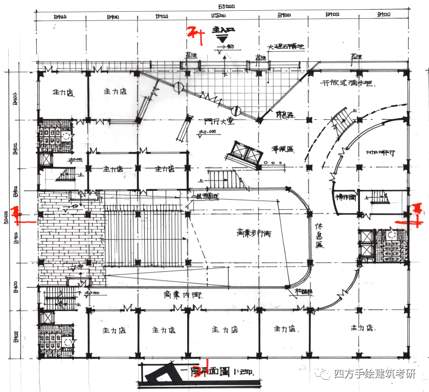
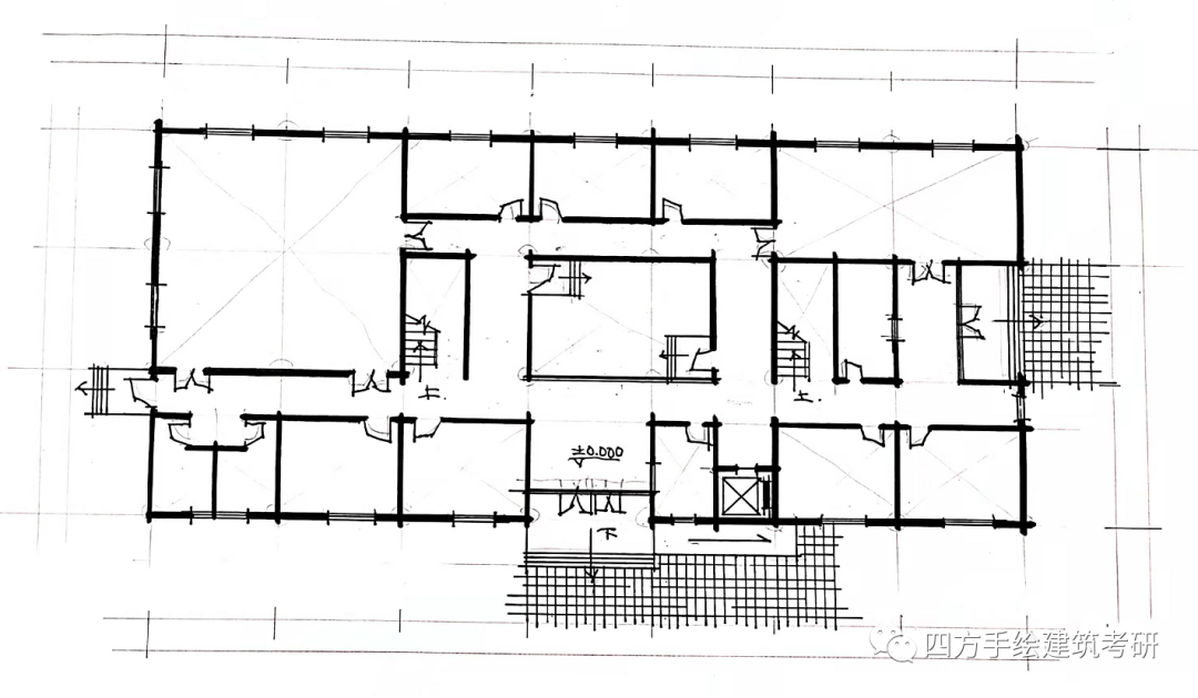
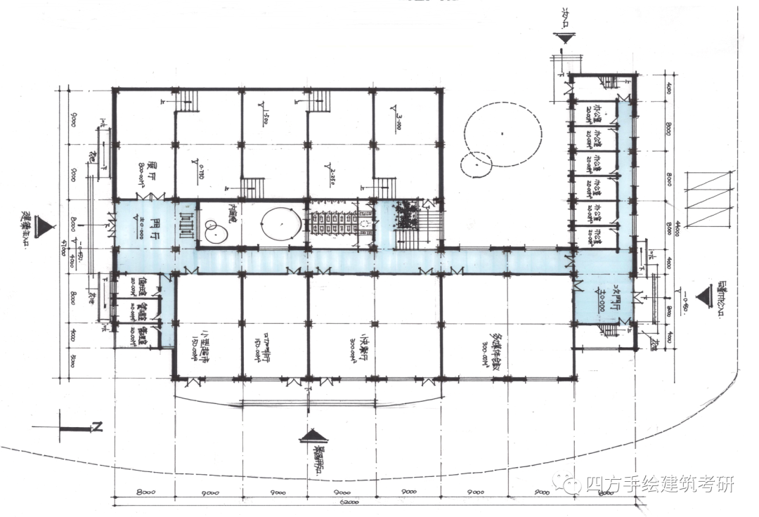
【案例一】







全部回复(1 )
只看楼主 我来说两句 抢板凳这份资料不错,支持上传分享给大家!
回复 举报