主要(创新)观点:
1. 消防泵房设置喷淋,不会影响消防泵使用。
2. 电动机消防泵房存在火灾风险
3. 消防泵房检修,不妨碍自喷系统动作使用
4. 居住建筑楼梯间平台宜设喷头
5. 最底层扶梯的底部若无存放物品可能时,也无需设置喷头
6. 倡议电房设置喷淋
7. 消防控制室,不需设置自动灭火系统,不得设置全淹没气体灭火系统。
8. 平时有使用功能的人防口部、人防设备房应设置喷淋
9. 平时使用的风井到集气室,是通风道的一部分,禁止设置喷头。
10. 平时不使用,仅战时使用且面积较大的集气室可能用于储存物品,可设喷头
11. 存在燃油燃气场所均应设喷淋
12. 作为建筑安全出口的天桥、连廊,不需要设置喷淋,封闭要设。
13. 大中型幼儿园的厨房冷冻室应设置喷头,度假酒店微型冷库不设湿式喷头。
14. 超高层住宅厨房喷头设计,应满足喷水全覆盖灶台台面。
15. 当卫生间存在隔断时,不用考虑卫生间全面积覆盖保护,仅仅满足存在可燃物区域全面积覆盖保护便可,淋浴间、大便器间等潮湿且没有可燃物区域可以不设置喷头。
16. 地下车库一类高层住宅楼入户大堂应分不同情况确定是否设置喷淋
17. 建议取消《喷规》7.1.12规定
18. 复式机械车库层板喷头采用干式下垂型喷头,长度不够
19. 层板喷头位置普遍存在设计错误,存在严重隐患
前言:
需要全覆盖设置喷淋的建筑,各地、各设计院、甚至到不同设计人员,都存在不同的做法,即使各地出台地标、指南、通告等各种形式的成文规定,自相矛盾,也没有进行分析为何选择某种统一措施。
混乱的局面,让设计院分别从事不同地方的设计时,无可适从。同样一个空间,为何在A地必须设喷头,在贴邻的B地禁止设喷头?
笔者接触全国各地大量优秀设计院的图纸,发现喷淋设计存在普遍性的错误,以及各种争议场所的不同做法,下面展开分析,并探讨规范的一些问题。
采用下列简称:
1、《消防给水及消火栓系统技术规范》(GB50974-2014)简称:《消水规》
2、《建筑设计防火规范》GB 50016-2014(2018年版)简称:《建规》
3、《民用建筑设计术语标准》(GB/T50504-2009)简称:《术语》
4、《建筑防烟排烟系统技术标准》(GB 51251-2017)简称:《烟标》
5、《自动喷水灭火系统设计规范》GB50084-2017简称:《喷规》
6、《城镇燃气设计规范》GB50028-2006(2020修订版)简称:《燃气规》
7、《宿舍建筑设计规范 》JGJ36-2016简称:《宿舍规》
一、消防泵房
大部分地方允许消防泵房不设喷淋,个别地方要求消防泵房必须设置喷淋。技术人员有赞成设置的,余下更多赞成无需设置,甚至个别反对设置的。
赞成无需设置的认为消防泵房无可燃物;反对设置认为设置喷淋对消防泵造成影响;支持设置的理由是规范设置喷淋的要求全面保护,支持设置仅从规范文字进行理解,个别地方通过行政手段(强审)要求,并没有从技术上分析,虽然设计了喷头并不代表技术上认可。
笔者认为,上述三种观点在技术上都是片面认识。
1. 消防泵房设置喷淋,不会影响消防泵使用。
裸露于泵房内的消防泵电机、控制箱、配电箱,均满足IP55防水防尘要求,泵房内即使喷头喷水,也不影响消防泵正常启动和运行,设计不需要也没有办法考虑产品质量不合格的情况。
2. 电动机消防泵房存在火灾风险。
电动机消防泵房不存在可燃物,不等于不存在火灾危险。
泵房检修、改造,需要现场作业,会临时引入少量可燃物和易燃物,如油漆脱落需要重新上漆,损坏管段需要切割等,泵房在施工、检修过程中存在易燃、可燃物和火源,容易产生火灾。
还有一种情况,检修、局部施工期间,由于多方面原因,进展不一定很顺利,可能拖延时间较长,造成一些工具和物品堆放在泵房内,也是火灾危险源。
3. 消防泵房检修,不妨碍自喷系统动作使用
即使是喷淋泵检修,关闭出水管控制阀,关闭喷淋泵电源,也不影响喷淋系统动作和灭火,因为稳压泵组、屋顶水箱提供一定的灭火流量,且泵房一般位于地下,甚至管网内的存水也是灭火用水量,满足大部分泵房火灾的灭火需要。
4. 电动机消防泵房建议按中危险级设计
鉴于上述原因,建议电动机消防泵房建议按中危险级设计喷淋,虽然泵房可燃物量少,发生火灾后若没有及时灭火,虽然很难蔓延到泵房外,但泵房内火灾容易损坏消防泵组,除了直接损失外,造成泵房重新安装整个过程中,建筑群的消防系统长期失效,间接损失超大,因此建议设置,可参照NFPA,按中危险级设计,可根据项目情况按中Ⅰ或中Ⅱ。
5. 配置柴油机消防泵的消防泵房应按严重危险Ⅰ级设计布置喷头。
原因是消防泵房内存在日用油箱,且由于柴油机消防泵一般功率小,油箱不适合也没必要专门设置于油箱间,一般都靠近柴油机消防泵放置油箱。柴油最好的灭火剂是泡沫,当设置泡沫喷淋系统的建筑,柴油机消防泵房也宜采用泡沫喷淋。少量柴油也允许直接用水灭火,没有泡沫喷淋的建筑就没必要专门设置了,但水喷淋喷水强度需要加大,可参考可燃液体制品工厂车间,按严重危险Ⅰ级设计,NFPA也要求柴油机消防泵房必须按严重危险级设计。
6. 消防泵房内,宜将配电箱、控制柜集中于控制室设置,控制室需要采用防火隔墙、防火门窗与泵房分隔。
虽然IP55的配电箱、控制柜可以直接设在泵房内,即使喷淋也没有造成影响。但是,防水防尘要求越高,散热越差,从散热角度不适合直接设于泵房,其次,由于泵房存在火灾可能,配电箱、控制柜最容易受损,一旦受损到重新安装调试期间使消防系统长期失效,即使火灾概率极低,但一旦发生后果特别严重,因此将配电箱、控制柜设于控制室,除了防水以外,建议进行防火分隔保护,投资极小,值得推荐。
由于泵房平时没有可燃物,特殊情况下可燃物少,因此防火分隔设施耐火极限1h即可。
二、居住建筑楼梯间平台宜设喷头
在要求喷淋全保护的建筑中,大部分楼梯间前室、合用前室、电梯前室大都设置喷淋,但楼梯间,几乎没见到有在楼梯间设置喷头的设计。
楼梯间不存在可燃物,但在建筑使用过程中,不可避免实际存在可燃物,尤其是居住建筑,住户将准备扔掉的一些废品临时放在楼梯间平台,甚至物业管理不到位的建筑,楼梯间平台成为杂物间。楼梯间平台放置杂物,是否影响疏散是另外一个问题,杂物给楼梯间带来火灾隐患,因此建议需要喷淋全保护的居住建筑,楼梯间平台宜设置喷淋。
楼梯间设置喷淋,是否影响疏散?
楼梯间没有火灾,喷淋不动作,现在产品质量可靠,也不需要考虑误喷情况。楼梯间发生火灾,此楼梯已经不宜疏散,喷淋更不存在影响疏散的因素。即使火灾后疏散,楼梯间地面积水,不用考虑地面湿滑影响疏散,建筑设计应做好楼梯间地面防湿滑设计。
三、扶梯的喷淋设计
《建规》8.3.3明确规定二类高层公共建筑及其地下、半地下室的公共活动用房、走道、办公室和旅馆的客房、可燃物品库房、自动扶梯底部应设喷淋。因此,一类高层建筑、全喷淋设计要求的多层建筑,往往都要求自动扶梯底部设喷淋。
《建规》8.3.3要求的扶梯底部,是指最底层扶梯的底部,不是每层扶梯底部,《建规》8.3.3规范抄自国外相关标准,国外之所以规定扶梯底部需要设置喷淋,是因为过去的建筑,很多在扶梯底部堆放物品,此喷头是作用于货品,不是作用于扶梯,相反,扶梯可燃物少,不需要喷淋保护,甚至建筑专业标准图集13J404规定其正上方不得设置喷头(P59),国外的喷淋设计,也是不在扶梯上方(包括扶梯中间楼层和最上层)布置喷头:


也不是所有最底层扶梯的底部都需要设置喷头。当扶梯底部围护起来,仅留检修人孔,不让堆积物品使用时,此无效空腔无需设置喷头(见下图)。即使没有围护,在高端场所内,不可能在其下方堆积杂物,也可不设喷头。
四、建筑内部的变配电房、强弱电竖井、弱电机房、控制中心(室)、计算机房等
1. 变配电房自动灭火设计,参见本公众号文章《电房消防设计探讨》。
2. 强弱电竖井、弱电机房、控制中心(室)、计算机房,当设备价值不高时,没必要设置气体灭火系统,采用喷淋即可,如大面积的计算机房,里面只有几百台个人机,相当于办公室而已,采用气体灭火系统,增大投资,也增加技术难度(如疏散与灭火系统动作在时间上产生冲突),服务器站房、大型计算机的站房,因为设备价值高且储存重要信息,则宜设置气体、细水雾等灭火系统。
国外的电房都允许甚至要求设置喷淋,国内要接受这种做法,转变观念,任重道远。技术人员一直被动接受“不能用水灭电气火灾”的说法,这种说法有两个原因,一是源于过去我国电气产品技术的落后,现在不落后了,但没有人去质疑,更没有人去研究和试验;二是对漏电的错误认识,认为用水灭火容易漏电造成人员触电事故。
除了产品质量、防护性能以外,电气产品的选用也进步了,过去采用负荷开关、熔断器,现在改进了产品或基本不用了。负荷开关、熔断器遇水降温,不能快速熔断,回路继续短路或超负荷发热,喷淋影响切开电源,而断路器的长延时脱扣器、瞬时脱扣器、可远程人工控制的分励脱扣器,在喷淋环境下不影响动作。
现在与过去的电气标准也产生很大变化,现在几乎全面设置剩余电流保护器,漏电保护到位,其次电房长期无人,电工偶尔进电房也有配置安全装备,触电概率很小。
3. 国内个别地方在消防控制室设计气体灭火系统,原因是“当地要求”。
消防控制室,不需设置自动灭火系统,不得设置全淹没气体灭火系统。为何?
首先,设置自动灭火系统是满足在无人状态下的自动灭火功能,将火灾消灭在初期阶段。消防控制室24小时有人,即使有火灾,值班人员能迅速扑灭。
其次,消防控制室几乎没有可燃物,设置自动灭火系统多此一举。但是消防控制室内的蓄电池组、EPS、UPS电源,应单独设房间,设置喷淋,与消防控制室进行防火分隔。蓄电池组等是消防控制室唯一可能发生火灾的危险源,需要重视,可参见本公众号文章《电房消防设计探讨》。
最关键的原因是消防控制室24小时有人,火灾期间更不能离岗,但全淹没气体灭火系统,前提是人员必须撤离,这是不相容的。
五、人防口部、滤毒室、战时风机房、电站、人防报警室
人民防空地下室,不论平时为车库还是公共建筑,都需要全面积设置喷淋。但是由于人防地下室存在不少密闭隔墙、人防围护结构,造成喷淋管道敷设麻烦,存在一小部分设计,为了避免麻烦,人防口部和滤毒室、战时风机房、人防电站等人防专用或兼用设备用房,经常漏布置喷头。
战时不考虑消防,不等于平战结合建筑平时不考虑消防,人防专用设备间平时的实际功能是仓库,应按相关的消防标准设置消防设施,也应按相关技术要求设置通风、采暖、照明、供电、疏散等设施,满足管理要求和维保要求。
1. 人防通道
(1) 平时兼作疏散通道的密闭通道、防毒通道,必须设置喷头;
(2) 平时不兼作疏散通道的密闭通道、防毒通道,密闭门平时上锁甚至封死出口的,可以不设置喷头。
2. 滤毒室、战时风机房、固定电站等设备间
这些设备间,不管设备是否安装,平时都是存放人防设施的仓库,这些房间,平时需要设置通风设施,避免材料霉变,也需要设置喷淋,避免可燃物品发生火灾。
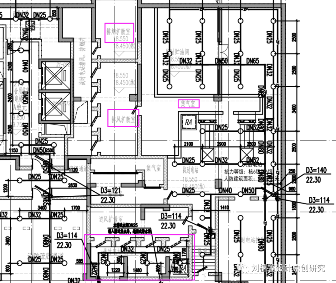
3. 风井、扩散室、集气室
平时使用的风井到集气室,是通风道的一部分,禁止设置喷头。
平时不使用,仅战时使用的风井、集气室等,一般不用设置喷头,但根据平时功能分析,一些面积较大的集气室可能用于储存物品,应设置。下图中,风井平时不使用,设置仅仅多此一举,不会导致负作用,但项目地处寒冷地区(北京),风井不能防冻不应设置。集气室面积较大,可以在平时用作储存间,建议设置。

4. 人防报警室
人防报警室由各地人防办提出要求,在一些建筑屋顶设置10㎡左右的房间和预留10KW左右的配电箱,供人防战时使用,平时也不作任何用途。
情况同屋顶其他设备房一样,有条件可以设置喷头,也可以不设喷淋。
5. 若地方人防主管部门有正式文件要求不设喷淋者,按文件实施。
六、技术夹层、设备层、土建风道,屋顶建筑自用设备房。
包括人防报警室在内的屋顶建筑自用设备房,如电梯机房、风机房、水箱间、增压泵房、配电间、油烟净化设备间等设备房,总面积不超楼层面积的1/4时,可以不设喷淋。这些设备房共同的特点是为建筑服务的自用设备,不是生产使用的设备。
不设喷淋的原因是我国消防给水系统机制的制约,我国强调必须使用高位消防水箱,而高位水箱最低水位必须高于所服务的系统设施,屋顶建筑自用设备房的喷头,往往高于屋顶水箱,没法实现,因此目前普遍同意屋顶建筑自用设备房不设喷头。但有个别地方和个别审图公司要求设置,设置时,必须将高位水箱再抬高一层。
《烟标》4.4.5 规定排烟风机与通风空调系统排风风机的合用机房应设置自动喷水灭火系统,没有分不同建筑一刀切的规定脱离了实际,也与《建规》消防原则产生冲突,但作为规范,设计必须严格执行。
个人比较推荐NFPA全设置喷淋的做法,包括电梯机房等所有设备房,都应设置喷淋,但前提需要取消屋顶水箱,屋顶水箱已经妨碍消防给水系统的技术进步(参见本公众号文章《取消消防高位水箱探讨》)。
土建风道禁止设置喷淋。吊顶、技术夹层和设备层应分不同情况,《喷规》7.1.11 要求净空高度大于800mm的闷顶和技术夹层内应设置洒水喷头。设备层是否设置喷淋,可参照技术夹层,但可以正常通行的设备层,应为建筑楼层,也需要设置喷淋。
七、竖井
竖井包括垃圾道、布草井、强弱电、电梯竖井、管道竖井,我国规范均没有要求设置喷头,除了涉外工程,基本上都没有设计。
涉外工程很重视上述竖井(风井除外)的喷淋设置。原因是竖井是火灾危险场所且特别容易蔓延,有条件建议设置。
垃圾道、布草井设置喷头,一般设在每层(或2~3层)投入口的部位,且不得伸入井筒内,立管可设置在垃圾道、布草井的外侧。
强弱电竖井见前,电梯竖井国外一般设于最顶部,管道竖井内若有可燃物(如保温材料),建议设置。燃气管、油管专用竖井建议必须设置。
八、发电机房、锅炉房、油箱间、直燃机房、燃气表间、燃气瓶组间
《建规》5.4.12、5.4.13规定设喷淋建筑中的发电机房、锅炉房应设喷淋,其油箱间也是发电机房、锅炉房的一部分,同样可以设置喷淋,有条件是采用泡沫喷淋,也可以采用气体灭火系统。
燃油直燃机房,目前规范存在空白,建议参照发电机房设置。
燃气直燃机房、燃气表间,应设自动灭火系统,见《燃气规》10.5.7,建议设细水雾、水喷雾或喷淋等水灭火系统。
液化石油气燃气瓶组间,GB51142-2015《液化石油气供应工程设计规范》强调防火分隔和设置位置,没有要求设置自动灭火系统。原因是允许附建的瓶组间可以有1立方米的储量,这种储量,若发生火灾,任何灭火系统均无效。燃气直燃机房、燃气表间的燃气总量,采用切断气源的技术控制后,仅仅是管道容积的存量,允许水灭火系统。
当然,有条件时建议设置喷淋,虽然不能灭火,至少可以冷却,延缓气瓶爆炸时间,为疏散和灭火创造条件。
九、开敞阳台、敞开外廊、天桥、连廊
1. 私家开敞阳台,存在堆放杂物的可能,需要全面积设置喷淋的一类高层公共建筑、超高层住宅建筑的私家开敞阳台宜设喷淋,寒冷及严寒地区由于防冻问题,可以酌情降低要求不设喷淋,有条件设置干式或预作用喷淋系统。
公共开敞阳台,堆放杂物可能性低,有条件可以设置喷淋,没有条件不设也可。
2. 敞开外廊。
敞开外廊一种情况是疏散走廊,按《建规》等规范,疏散走廊设置喷淋的必要性大于其他场所,但敞开外廊是一个较为安全的场所,基本不存在可燃物,设置喷淋作用小,道理上可以不设,但《建规》对一些多层建筑、高层公共建筑、超高层住宅建筑要求全面积覆盖喷头,建议设置,由于防冻问题不适合设置的,与相关单位协商处理。
敞开外廊另一种情况是开敞阳台,同开敞阳台做法。
3. 天桥、连廊
可以作为建筑安全出口的天桥、连廊,不属于建筑内部空间,属于室外安全场所,不需要设置喷淋。
不能作为建筑安全出口的封闭天桥、连廊,是建筑内部空间,应根据建筑情况划分到建筑内部,相应设置喷淋。建筑上如何划分从属关系,可参见本公众号文章《空中安全出口(一)~(四)》。
十、厨房
1. 厨房应按不同部位选择喷头
大部分设计,仅说明厨房采用动作温度93℃的喷头,没有分不同位置,实际上除了烹调区需要采用93℃外,其他位置68℃即可。
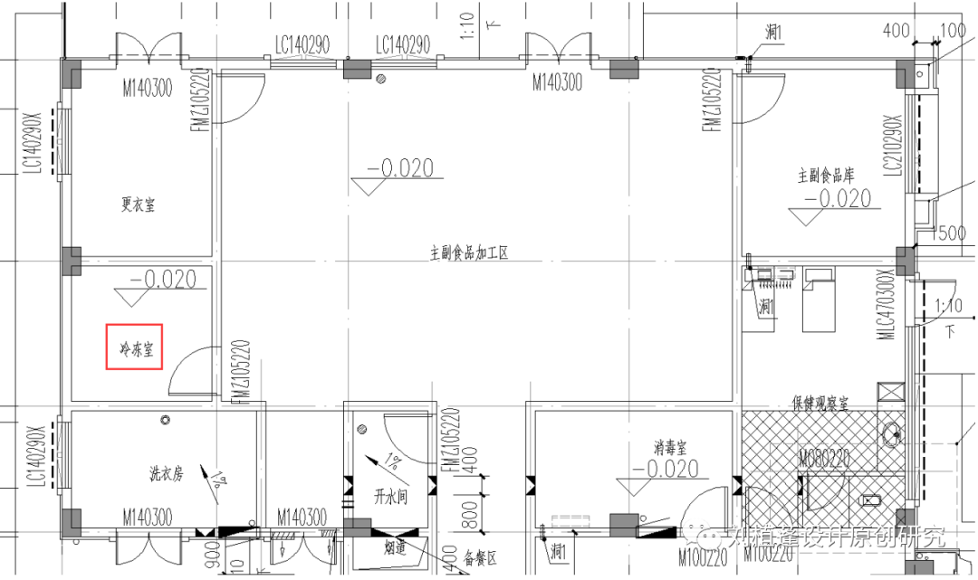
2. 大中型幼儿园的厨房冷冻室应设置喷头。
目前建筑专业设计普遍存在一个错误,将幼儿园的厨房冷冻室,当成微型冷库设计,不开窗(如下图)。由此给排水设计人员认为温度低于4℃不应设置湿式喷头。实际上,幼儿园厨房规模小,冷藏食品很少,基本不可能设置微型冷库,一般采用冷藏柜而已。
相反,对于远离市区的风景区度假酒店,其食品采购不便,其厨房冷冻室应按微型冷库设计,库内不设湿式喷头。

3. 超高层住宅厨房喷头设计,应满足喷水全覆盖灶台台面。
超高层住宅户内厨房有采用边墙型喷头的,普遍错误设计是将边墙型喷头设于灶台上方,灶台上方一般存在抽油烟机和吊橱柜,造成喷水受挡不能喷向灶台,而灶台往往是最容易引火的地方。
厨房采用吊顶喷头,也经常存在喷头与灶台水平距离太近,不能保护灶台台面的情况
设置厨房的高层宿舍、公寓,也同样存在上述问题。
十一、卫生间
1. 卫生间为何需要设置喷淋?
我国过去的卫生间基本不存在可燃物,且长期是一个潮湿状态,火灾可能性小,因此对卫生间设置喷淋不太重视,但随着经济发展,卫生间装修豪华,存在大量可燃物,一些卫生间干湿分离,有些部位干燥且不设地漏,同时存放一些可燃物品如毛巾、卫生纸等,因此卫生间必须设置喷淋。
2. 卫生间内如何设置喷淋?
卫生间内存在大量分隔,有到顶(天花板或吊顶)的,更多的是不到顶,即使不到顶,距离天花也往往只有300mm左右,外侧的喷头喷水不能跨越分隔设施全面积保护,分隔设施给卫生间喷头布置带来不便。
如何布置?笔者建议:当卫生间存在隔断时,不用考虑卫生间全面积覆盖保护,仅仅满足存在可燃物区域全面积覆盖保护便可,淋浴间、大便器间等潮湿且没有可燃物区域可以不设置喷头。
国外卫生间喷淋布置比我国先走了几十年,也基本按此原则布置,如下图。但是下图的设计在我国难以通过,这是机制原因不谈。

3. 二类高层公共建筑的卫生间等场所
《建规》8.3.3对二类高层公共建筑,仅要求公共活动用房、走道、办公室和旅馆的客房、可燃物品库房、自动扶梯底部设置喷淋,其他场所没有要求。
卫生间面积不大且无可燃物可以不设喷头,面积大或存在可燃装修,建议设喷头。
4. 超高层住宅卫生间喷头布置注意问题
住宅卫生间,经常安装浴霸,浴霸有灯暖和风暖两种形式,风暖是采用PTC加热器发热,发热器的表面温度一般维持在250℃上下,因此喷头布置,应尽量与浴霸保持距离,否则需要采取隔热设施。
十二、住宅楼地下室
1. 地下车库一类高层住宅楼入户大堂是否设置喷淋?


分两种情况,一种是地下室是住宅楼的一部分,如储藏间、自行车库、设备房等情况,如上图为设备房,与车库为不同防火分区,车库仅仅是借用住宅分区安全出口,这种情况,入户大堂及设备房是属于住宅楼的一部分,非超高层住宅楼不需要设置喷淋,有条件建议设置,但可按轻危险级设置。另一种情况,地下室完全是车库,车库通过大堂向封闭楼梯间疏散,大堂是车库的一部分(见下图)。这种情况大堂应按中危Ⅱ级设喷淋。

2. 地下车库一类高层住宅楼入户大堂能否设置边墙型喷头?
同上所述,按按中危Ⅱ级设计的不能,按轻危险级设计的可以。
3. 住宅楼地下非机动车车库是否需要设置喷淋?
同上所述,住宅楼地下非机动车车库是住宅楼的一部分,非超高层住宅楼地下也不需要设置喷淋,但实际上汽车库设置了喷淋,非机动车车库建议设置,增加造价很低作用大,而且,实际上非机动车车库停放大量的电动自行车,火灾隐患更甚于汽车库,建议设置。
电动车目前是消防专业人员不敢碰的区域,只有非消防专业不懂才无畏,本文不再展开讨论,有地方规定按其地方规定执行。
十三、严寒地区不采暖地下室(或冷库)干式系统喷头采用玻璃球喷头还是易熔合金?
常见误解:《喷规》4.2.3 环境温度低于4℃或高于70℃的场所,应采用干式系统。或采用预作用系统(4.2.4),但一部分人误解成低于4℃不能用玻璃球喷头。
GB5135.1-2019《自动喷水灭火系统第1部分:洒水喷头》7.19 冷冻试验规定,喷头在低温试验箱中测试历时24h,箱内的温度保持(-30±5)℃。 XF863-2010《消防用易熔合金元件通用要求》4.7.1耐低温性能试验,要求易熔合金元件试件安装在卡具上,使其承受最大设计载荷,并置于低温试验箱中。箱内温度保持在-30℃±2℃,历时24h。
从产品标准可以看出,玻璃球喷头和易熔合金喷头、易熔合金元件耐低温能力基本一致,并无区别。
十四、二类高层宿舍的居住房间是否设置喷淋
1. 《建规》规定。
《建规》5.1.1提出,宿舍、公寓等非住宅类居住建筑的防火要求,应符合《建规》有关公共建筑的规定。《建规》第8章,没有针对非住宅类居住建筑任何消防设施的设置要求。
防火要求是否包含消防设施?
根据GB/T5907.1-2014《消防词汇第1部分:通用术语》的概念和内容,消防是火灾预防和灭火救援等的统称(2.1),火灾预防指采取措施防止火灾发生或限制其影响的活动和过程(2.16),灭火救援指灭火和在火灾现场实施以抢救人员生命为主的援救活动(2.60),灭火是指扑灭或抑制火灾的活动和过程(2.58)。“防火”没有明确的定义,从字义上是火灾预防的缩略,但从《建规》用词习惯上看,防火要求包含消防灭火设施要求(见《建规》1.0.1条文说明)。
2. 《宿舍规》7.1.7规定:
宿舍建筑的室内消火栓系统、消防软管卷盘或轻便消防水龙、自动喷水灭火系统等消防设施应按照现行国家标准《建筑设计防火规范》GB 50016的相关规定设计。其中一类高层建筑的宿舍和二类高层建筑的公共活动用房、走道应设置自动喷水灭火系统。
3. 宿舍喷淋设计的争议问题
《宿舍规》明确二类高层宿舍的公共活动用房、走道应设置喷淋,但是由于《喷规》7.1.12 的要求,宿舍楼的居住房间是否设置喷淋产生了极大的争议。
《喷规》7.1.12 当局部场所设置自动喷水灭火系统时,局部场所与相邻不设自动喷水灭火系统场所连通的走道和连通门窗的外侧,应设洒水喷头。
因此,一些专家认为宿舍楼的居住房间疏散门开向走道,连通门窗的外侧即就是居住房间内也需要设置喷头。
4. 所有宿舍楼的居住房间有条件时宜设喷淋,但理由不是《喷规》7.1.12。
宿舍由于人员复杂,管理困难,是火灾易发场所,笔者提倡全覆盖设置喷淋,建议所有宿舍楼的居住房间都设喷淋。
十五、取消《喷规》7.1.12规定的探讨
1. 《喷规》7.1.12不适应时代的发展,采用喷头进行简单防火分隔的时代已经过去。
2001版《喷规》7.1.9当局部场所设置自动喷水灭火系统时,与相邻不设自动喷水灭火系统场所连通的走道或连通开口的外侧,应设喷头。2005版《喷规》将“连通开口”改为“连通门窗”,现行《喷规》7.1.12沿用2005版的用词。因为不再存在敞开口部联通的不同建筑功能场所。
既然不再存在敞开口部联通的不同建筑功能场所,《喷规》7.1.12规定的理由就不成立了,《喷规》7.1.12条文解释,采用1976年5月上海第一百货公司八层的火灾案例:同在八层的服装厂与手工艺制品厂植绒车间仅一墙之隔,服装厂装有闭式系统,而植绒车间则未装。植绒车间发生火灾后,火势经隔墙上的连通窗口向服装厂蔓延。服装厂内喷头受热动作后,阻断了火灾向服装厂的扩展。这种情况,在物资极其贫乏的时代才有可能产生,过去允许不同建筑功能场所混合使用,是经济情况不允许防火分隔,《喷规》7.1.12通过增加几个喷头的方式,取代防火分隔,在改革开放以前是符合国情的。现行规范,防火分隔措施就不能是简单的几个喷头,而必须使用防火门、卷帘、水幕等措施,2014年后,《建规》1.0.4明确同一建筑内设置多种使用功能场所时,不同使用功能场所之间应进行防火分隔。所以说《喷规》7.1.12不再适应消防技术的进步要求。
2. 《喷规》7.1.12与《建规》8.3.3是冲突的
《建规》8.3.3.2要求一些建筑的走道及部分场所设置喷淋,若按《喷规》7.1.12,设置喷淋场所连通门窗内都设喷头,《建规》8.3.3已经没有意义。
3. 一些场所之间不需要防火分隔,其墙体门窗可以随时取消,一些分隔设施,采用隔断(不到顶的垂直分隔物),隔断有附带门窗,《喷规》7.1.12需要门窗后增加喷头,顶部连通洞口就可以不设喷头了,说明7.1.12没有意义。
4. 一些局部场所设置喷淋,目的是提高局部场所安全程度。带来增大防火分区面积、延长疏散距离等目的,局部场所连通门窗后更没有必要设喷淋。
十六、复式机械车库层板喷头设计普遍问题
1. 干式、预作用系统中,层板喷头常见设计错误:
干式、预作用需要采用直立型喷头或干式下垂型喷头,笔者碰到的设计项目,基本如下图设计,悬吊立管超过1.8m高,而目前市场上可以定制的最长的干式下垂型喷头,往往不到1.25m。
问题如何解决?建议在略高于层板位置(距地2米,避免撞头)敷设喷淋横支管,并采用干式下垂型喷头。
下图的喷头高于层板,造成喷水受挡,且缺挡水板,是常见施工错误,不是本文讨论问题。

2. 层板喷头位置
笔者从开始接触设计复式机械车库至今已有20年,一直都是将层板喷头设于停车位一侧,每三台汽车设置8个喷头,但是,近几年来审图所接触的设计,几乎千篇一律将喷头设于停车位正中间,每三台汽车设置6个喷头,见下图:


为何靠车道一侧喷头不能设于停车位正中间?先了解汽车的尺寸:

复式机械车库一般都不让停大型轿车、SUV,更不允许停越野车,设计只考虑中小型轿车的情况,高度一般都是1.5m以下,层板喷头安装最高高度,当使用下垂型喷头,可以距地1.6m,采用边墙型喷头为1.55m,有些层板低一些,甚至都不足1.5m(见上图剖面图)。汽车中间,有天线凸起(见下图),最小的天线也得6cm,层板还有一定厚度,因此靠车道一侧的层板喷头设于停车位正中,容易与汽车擦碰。
还有,当停车后,人从后尾箱拿物件、行李时,正后方的喷头会妨碍到人,一不小心就撞头。


层板喷头如何布置?层板喷头应设在停车位一侧,但也不能设在两车位之间通道上,易造成司机、行人撞头,可以距离停车位中心线750~800(见下图)。

为何需要距中心线750~800,600~700为何不行?因为一些汽车两侧顶部设有装饰条(见下图),装饰条凸起也容易碰撞,而且不同车宽,装饰条的尺寸存在多种可能。
距离中心线100~600能否可行?偏离正中,不仅避免与天线擦碰,也要考虑后尾箱箱门开启是否碰撞,以及是否妨碍人操作后尾箱或撞头可能。总之一句话,车道一侧层板喷头,严禁设于车位正后方,也不得设于车位之间(或车位与柱子之间)的人行通道上,唯一可行的位置是车位与车道之间,距离车位中心线750~800mm处。

3. 复式机械车库层板喷头是普通下垂型喷头还是边墙型喷头?
相关规范没有明确,过去笔者一直按普通下垂型喷头设计,理由如下:
(1) 下垂型喷头和边墙型喷头,在短距离的喷水轨迹上相差不大。唯一区别是下垂型喷头360度角度喷水,边墙型180度,边墙型虽然集中水量,但下垂型的喷水强度已经远大于中危Ⅱ级的强度,同时也可对汽车周边进行冷却,避免蔓延。
(2) 边墙型喷头布水不均匀,受客观条件制约,因此国内外对边墙型喷头的使用环境有限制(《喷规》6.1.3),复式机械车库层板喷头不满足此条件。
(3) 复式机械车库层板喷头需要设置挡水板,其下沿宜与洒水喷头的溅水盘平齐(《喷规》7.1.10),边墙型喷头难以做到。
(4) 干式下垂边墙型喷头需要定制。对于干式、预作用系统,层板喷头采购困难。
不少专家推荐使用边墙型喷头,笔者也不反对,但是必须使用水平式边墙型喷头,尽量提高安装高度。另外,《喷规》7.1.10要求挡水板下沿宜与溅水盘平齐,会造成挡水板过低,与车顶装饰条擦碰,造成行人撞头,因此也需要适当提高挡水板高度,建议喷头溅水盘距地1650,挡水板下沿距地1750,见下图:

内容源于网络,侵删
0人已收藏
0人已打赏
免费0人已点赞
分享
建筑消防给水
返回版块28.41 万条内容 · 744 人订阅
阅读下一篇
消防喷淋系统施工方案及调试注意事项一、工艺流程 施工准备→干管安装→立管安装→分层干支管安装→管道试压→管道冲洗→通水调试→交工验收 二、施工准备 1、技术准备:组织专业技术人员熟悉设计图纸技术资料,相应的施工及验收规范,标准、图集等。
回帖成功
经验值 +10
全部回复(0 )
只看楼主 我来说两句抢沙发