
能量山
南京江北新区人才公寓零碳社区服务中心是江苏省第一栋木结构零碳建筑。项目位于社区东侧主入口处,建筑面积为2376 ㎡,地上3层,建筑高度为14.4 m,预制装配率接近90%。其主要功能为社区服务、物业管理和绿色低碳技术展示,已获得三星级绿色建筑设计标识、健康建筑三星级设计标识、零能耗建筑认证(设计阶段),以及2020 Active House Award(中国区竞赛)最佳可持续奖等。
1 可持续设计理念
设计以城市高密度人工环境中再现自然风貌为出发点,围绕可持续的社区与环境营造,以全寿命期净零碳排放为目标,提出“城市森林”“能量山”“二次自然”等概念,运用新型木结构与光伏屋顶一体化零碳技术,通过直流微电网系统,实现分布式可再生能源就地消纳的目标,并结合去设备化的被动式设计,诠释了社区中心的低碳内核,在营造舒适、宜人的公共空间与交往场所的同时,探索了夏热冬冷地区零碳建筑的技术路径。

零碳社区服务中心鸟瞰
2 “城市森林”——木构营造人工自然
本项目采用新型木结构,由树杈支撑的结构形式结合自然天成的木质材料,营造出“都市田园”的场所体验。
设计师受自然树木形态的启发,在阶梯剧场上部采用了一系列木结构的树杈支撑形式,用以支撑起覆盖整栋建筑的太阳能光电板屋面,并采用新的连接方式,将机械加工的工程胶合木“再还原”为树木枝干,将太阳能光伏屋架打造成“树冠”,构建“人工树林”,从而将人工化的自然元素引入城市空间。既体现了建筑结构自身逻辑的真实表达,又通过与木材的结合,为人们营造出一种身处树林之中的空间意境。

人工森林
3 “室外阶梯剧场”——社交聚焦场所
社区中心以大踏步台阶屋面为特征,形成一个“室外阶梯剧场”。其与场地景观相关联,似乎是从地景中生长出来一样,与景观环境融为一体。独特的建筑形态使社区中心成为文化焦点,承担起场地视觉形象的角色。
“室外阶梯剧场”这一经典的建筑学空间原型与建筑形态相结合,其所蕴含的历史文化内涵唤起了人们对古希腊时期的“公民城邦”的记忆——剧场是传统公民议事、集会、节日庆典及戏剧活动的场所。在当今急速城市化的进程中,设计利用剧场这种形式,引导小区居民逗留、相聚,使其成为引发有效交流的社交场所。其意图是借用这一空间形式来鼓励和增加居民公共生活和邻里交流的可能性。
室外剧场的开放空间可以策划或自发形成多种功能业态,如聚餐、嬉戏、演出、演讲、露天电影等社区活动,也可以举办社区或商业活动,丰富小区居民的文化生活。

树杈结构
4 “能量山”——都市里的田园畅想
社区中心建筑的斜屋面、层层叠叠的台阶和平台形成了室外剧场的公共空间,也构筑了类似人工山丘的建筑形态。建筑的平面几何形态虽依据理性的结构模数网格来布局,但却呈现出一种地形学意义上起伏的地貌特征,特别是承载太阳能光电板的屋顶木屋架,也随着建筑高低错落而上下起伏,仿佛落入都市环境中的一座田园山丘。
设计积极探索形式与功能之间的关系,以可再生能源与建筑形体的融合来定义可持续性的要素。起伏的光伏板以最佳的朝向融合在建筑的屋面上,使太阳能的转化效率达到最高。整栋建筑采用直流配电,直接应用光伏产生的直流电能,同时将智慧储能、能源管理等功能集成,形成分布式的微电网系统,成为国内首个将直流微网应用于居住社区的范例,为实现绿色、低碳的城市建筑能源系统做出了积极的探索。
项目图纸

总平面图

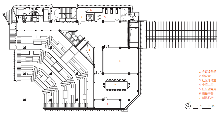
一层平面图

树杈支撑结构示意图

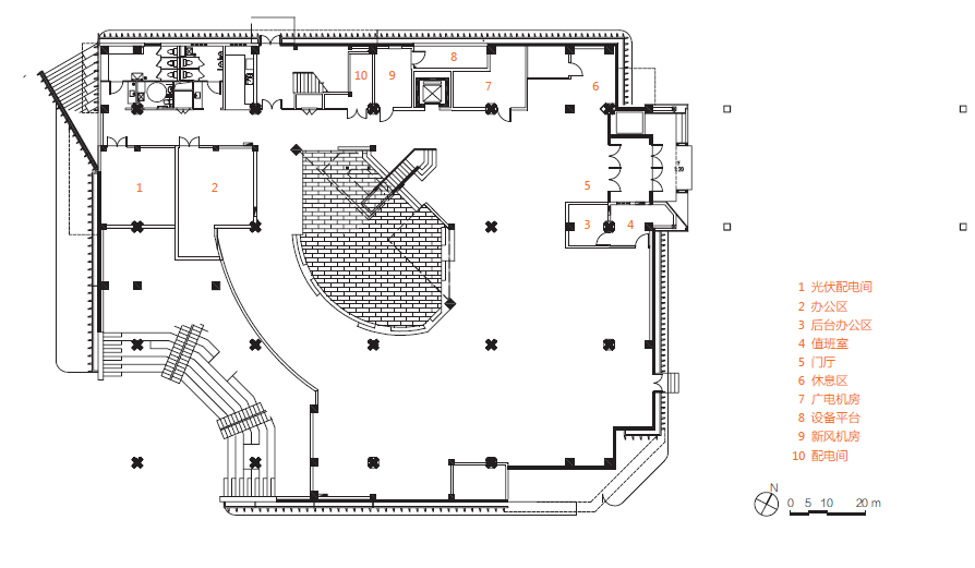
二层平面图

立面图
项目概况
项目名称 | 南京江北新区人才公寓零碳社区服务中心
业 主 | 南京江北新区中央商务区开发运营有限公司
建设地点 | 南京市浦口区
设计单位 | 南京长江都市建筑设计股份有限公司
用地面积 | 2685 ㎡
建筑面积 | 2376 ㎡
结构形式 | 胶合木结构
建筑层数 | 3层
主要材料 | 胶合木,玻璃,铝板
设计总负责 | 邱立刚
建筑专业 | 张伟伟,裴小明,张效嘉
结构专业 | 陈杰,徐伟
设备专业 | 宋建刚,祝侃,武洪基,刘强
设计时间 | 2017年12月—2018年12月
建成时间 | 2021年12月
图纸版权 | 南京长江都市建筑设计股份有限公司
摄 影 | 顾锡
0人已收藏
0人已打赏
免费8人已点赞
分享
结构资料库
返回版块41.29 万条内容 · 424 人订阅
回帖成功
经验值 +10
全部回复(0 )
只看楼主 我来说两句抢沙发