土木在线论坛 \ 水利工程 \ 机电设备 \ 「水电站水轮机」的主要类型有哪些?分别适用多高水头?

「水电站水轮机」的主要类型有哪些?分别适用多高水头?

发布于:2023-09-21 15:59:21 来自:水利工程/机电设备 [复制转发]

水轮机是将水能转换成旋转机械能的一种水力原动机。根据转轮转换水流能量方式的不同,水轮机分成两大类:反击式水轮机和冲击式水轮机。反击式水轮机包括混流式、轴流式、斜流式和贯流式水轮机;冲击式水轮机分为水斗式、斜击式和双击式水轮机。


一、反击式水轮机

反击式水轮机转轮区内的水流在通过转轮叶片流道时,始终是连续充满整个转轮的有压流动,并在转轮空间曲面型叶片的约束下,连续不断地改变流速的大小和方向,从而对转轮叶片产生一个反作用力,驱动转轮旋转。当水流通过水轮机后,其动能和势能大部分被转换成转轮的旋转机械能。

01

混流式水轮机

如图所示,水流从四周沿径向进入转轮,然后近似以轴向流出转轮。 混流式水轮机应用水头范围较广,约为20~700m,结构简单,运行稳定且效率高,是现代应用最广泛的一种水轮机。
图片
混流式水轮机
1—主轴;2—叶片;3—导叶

02

轴流式水轮机

如图所示,水流在导叶与转轮之间由径向流动转变为轴向流动,而在转轮区内水流保持轴向流动,轴流式水轮机的应用水头约为3~80m。 轴流式水轮机在中低水头、大流量水电站中得到了广泛应用。 根据其转轮叶片在运行中能否转动,又可分为轴流定桨式和轴流转桨式水轮机两种。 轴流定桨式水轮机的转轮叶片是固定不动的,因而结构简单、造价较低,但它在偏离设计工况运行时效率会急剧下降,因此,这种水轮机一般用于水头较低、出力较小以及水头变化幅度较小的水电站。 轴流转桨式水轮机的转轮叶片可以根据运行工况的改变而转动,从而扩大了高效率区的范围,提高了运行的稳定性。 但是,这种水轮机需要有一个操作叶片转动的机构,因而结构较复杂,造价较高,一般用于水头、出力均有较大变化幅度的大中型水电站。
图片
轴流式水轮机
1—导叶;2—叶片;3—轮毂

03

斜流式水轮机

如图所示,水流在转轮区内沿着与主轴成某一角度的方向流动。 斜流式水轮机的转轮叶片大多做成可转动的形式,具有较宽的高效率区,适用水头在轴流式与混流式水轮机之间,约为40~200m。 它是在50年代初为了提高轴流式水轮机适用水头而在轴流转桨式水轮机基础上改进提出的新机型,其结构形式及性能特征与轴流转桨式水轮机类似,但由于其倾斜桨叶操作机构的结构特别复杂,加工工艺要求和造价均较高,所以一般只在大中型水电站中使用,目前这种水轮机应用还不普遍。
图片
斜流式水轮机
1—蜗壳;2—导叶;3—转轮叶片;4—尾水管

04

贯流式水轮机

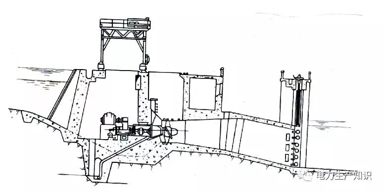
贯流式水轮机是一种流道近似为直筒状的卧轴式水轮机,它不设引水蜗壳,叶片可做成固定的和可转动的两种。 根据其发电机装置形式的不同,分为全贯流式和半贯流式两类。

全贯流式水轮机的发电机转子直接安装在转轮叶片的外缘。它的优点是流道平直、过流量大、效率高。但由于转轮叶片外缘的线速度大、周线长,因而旋转密封困难。目前这种机型已很少使用。

半贯流式水轮机有轴伸式、竖井式和灯泡式等装置形式,如图所示,其中轴伸式和竖井式结构简单、维护方便,但效率较低,一般只用于小型水电站。目前广泛使用的是灯泡贯流式水轮机,其结构紧凑、稳定性好、效率较高,其发电机布置在被水绕流的钢制灯泡体内,水轮机与发电机可直接联接,也可通过增速装置联接。
图片
全贯流式水轮机
1—转轮叶片;2—转轮轮缘;3—发电机转子轮辋;4—发电机定子;5、6—支柱;7—轴颈;8—轮毂;9—锥形插入物;10—拉紧杆;11—导叶;12—推力轴承;13—导轴承
 
图片
轴伸贯流式水轮机
1—转轮;2—水轮机主轴;3—尾水管;4—齿轮转动机构;5—发电机
 
图片
竖井贯流式水轮机
 
图片
灯泡贯流式水轮机
1—转轮叶片;2—导叶;3—发电机定子;4—发电机转子;5—灯泡体
 
贯流式水轮机的适用水头为1~25m,适用于低水头、大流量的水电站。由于其卧轴式布置及流道形式简单,所以土建工程量少,施工简便,因而在开发平原地区河道和沿海地区潮汐等水力资源中得到较为广泛的应用。目前我国自行研制的最大的灯泡贯流式水轮机转轮直径为5.5m,单机出力为15MW。

二、冲击式水轮机

冲击式水轮机的转轮始终处于大气中,来自压力钢管的高压水流在进入水轮机之前已转变成高速自由射流,该射流冲击转轮的部分轮叶,并在轮叶的约束下发生流速大小和方向的改变,从而将其动能大部分传递给轮叶,驱动转轮旋转。 在射流冲击轮叶的整个过程中,射流内的压力基本不变,近似为大气压。

冲击式水轮机按射流冲击转轮的方式不同可分为水斗式、斜击式和双击式三种。

01

水斗式水轮机

水斗式水轮机,亦称切击式水轮机,如图所示。 从喷嘴出来的高速自由射流沿转轮圆周切线方向垂直冲击轮叶。 这种水轮机适用于高水头、小流量的水电站,特别是当水头超过400m时,由于结构强度和气蚀等条件的限制,混流式水轮机已不太适用,则常采用水斗式水轮机。 大型水斗式水轮机的应用水头约为300~1700m,小型水斗式水轮机的应用水头约为40~250m。 目前水斗式水轮机的最高水头已用到1767m(奥地利莱塞克电站),我国天湖水电站的水斗式水轮机设计水头为1022.4m。
图片
水斗式水轮机

02

斜击式水轮机

如图所示,从喷嘴出来的自由射流沿着与转轮旋转平面成一角度的方向,从转轮的一侧进入轮叶再从另一侧流出轮叶。 与水斗式相比,其过流量较大,但效率较低,因此这种水轮机一般多用于中小型水电站,适用水头一般为20~300m。
图片
斜击式转轮
(a) 转轮;(b)斜击式转轮进水示意图
1— 管帽;2—针阀;3—轮叶;

03

双击式水轮机

如图所示,从喷嘴出来的射流先后两次冲击在转轮叶片上。 这种水轮机结构简单、制作方便,但效率低、转轮叶片强度差,仅适用于单机出力不超过1000kW的小型水电站,其适用水头一般为5~100m。
图片
带有闸板阀门的双击式水轮机
1—工作轮;2—喷嘴;3—调节闸板;4—舵轮;5—引水管;6—尾水槽

三、应用水头


水轮机类型及应用水头范围
图片


  • 荒唐小兔兔

    水轮机是将水能转换成旋转机械能的一种水力原动机。

    2023-09-21 20:23:21

    回复 举报
    赞同0
这个家伙什么也没有留下。。。

机电设备

返回版块

3.79 万条内容 · 105 人订阅

猜你喜欢

阅读下一篇

森林消防高压灭火泵(便携式接力泵)

森林消防高压灭火泵是一种非常重要的设备,被广泛应用于森林消防工作中,特别是在山林深处难以到达的地方。这种泵也被称为便携式接力泵,因为它可以轻便携带,随时随地为消防队员提供灭火水源。   森林消防工作是一项危险而艰巨的任务,特别是在火灾蔓延速度快、地形复杂的峡谷、山坡和森林中。传统的消防设备往往难以进入这些地区,而森林消防高压灭火泵的出现填补了这一缺口。这种泵采用了高压技术,可以将水通过高压水枪以喷雾、喷射的方式送达火源,从而抑制和控制火势的扩散。

回帖成功

经验值 +10