托换加固指对改变结构荷载传递路径的地基加固的方法。
1.抬墙法:在原基础两侧挖坑并做新基础,通过钢筋混凝土梁将墙体荷载部分转移到新做基础上的一种托换加固方法。新加的指增梁应设置在原地基梁或圈梁的下部。这种加固方法具有对原基础扰动少、设置数量较为灵活的特点。

2.桩基托换。浅层地基受扰动或扩大基础法不易施工时,将浅基础转换为桩基础,将荷载传至深层较好持力层。需评估:
1.成桩的可行性,地下洞穴、采空区、孤石等影响。
2.是否有足够的桩基施工空间。可能需要拆除部分结构。
3.托换桩的施工对原基础的影响。结构开洞对原基础的破坏,成桩工艺对地基的扰动。
4.浅基础成为桩基承台后,结构抗弯、抗剪、抗冲切是否满足。
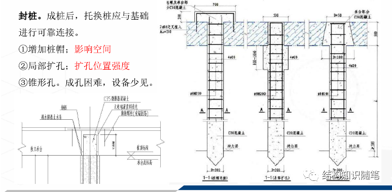
5.托换桩与原基础的连接是否可靠。
锚杆静压桩。锚杆静压桩法是将锚杆和静力压桩两项技术结合而形成的施工工艺,加固机理类同于打入桩及大型压入桩,适用于淤泥、淤泥质土、黏性土、粉土和人工填土等地基土。
1.传荷过程和受力性能非常明确,在施工中可直接测得实际压桩力和桩的入土深度,对施工质量有可靠保证。
2.环境友好,压桩施工过程中无振动、无噪声、无污染,对周围环境影响小。
3.施工条件要求低,施工设备轻便、简单、移动灵活,操作方便,可在狭小的空间内进行作业,并可在车间不停产、居民不搬迁情况下进行基础加固。
4.方便配合纠倾施工。
锚杆静压桩。在进行锚杆静压桩施工时,首先在需要进行加固的既有建筑物基础上开凿压桩孔和锚杆孔,用胶粘剂埋好锚杆,然后安装压桩架且与建筑物基础连为一体。利用既有建筑物自重作反力,用千斤顶将预制桩压入土中,桩段间用硫磺胶泥或焊接连接。当压桩力或压入深度达到设计要求后,将桩与基础用微膨胀混凝土浇筑在一起完成封桩。




钻孔灌注桩。利用钻探手段,在建筑物的基础上施工竖直向下或向下倾斜的小口径钻孔,桩内设置钢筋笼或钢筋,并灌注水泥砂浆、细石混凝土成桩。桩径一般100mm-200mm。特点:小型钻机满足空间要求,可穿越一些压桩无法进行的硬层。
旋喷桩。钻机把带有喷嘴的注浆管钻进至土层,以高压设备使20~40MPa的高压射流从喷嘴中喷射出来,同时钻杆以一定速度渐向上提升,将浆液与土粒强制搅拌混合,浆液凝固后,在土中形成桩体。设备较轻便、机动性强,基础上开孔50mm-300mm,可在土中喷射成直径为0.4~2.0m的固结体,能在狭窄和较低矮的现场贴近建筑物施工(改装后可以在3m净高施工)。







当建筑物倾斜超过规范允许值,且无法拆除时采用的扶正加固方法。一般分为迫降与顶升两种。
迫降纠倾:在建筑物倾斜相反的一侧,根据工程地质情况,设计挖孔取土或堆载,使地基反力重新分布,从而调整建筑物的沉降差异的目的。
顶升纠倾:通过托换加固技术,将建筑物的基础和上部结构分离,设置能支承整个建筑物的若干个支承点,通过这些支承点顶升设备的启动,使建筑物沿某一直线(点)作平面转动,即可使倾斜建筑得到纠正。

















0人已收藏
0人已打赏
免费3人已点赞
分享
建筑加固
返回版块1.66 万条内容 · 381 人订阅
阅读下一篇
建筑加固的重要性有哪些?1、保证建筑施工的安全性,在建筑加固中,经常会遇到地基加固,这是建筑加固工程中的一个重要环节;通过采取相应的加固措施来保证整个施工环境的安全,便于施工队能够保持正常的施工。而地基加固的方法也有很多,通常加固公司都会具备几种相应的加固方案,保证地基的稳定性,对于建筑施工起着重要的意义。 2、保证建筑周围环境的安全,在进行建筑施工的过程中,势必会对周围环境造成一定的影响;如开挖地基时,如果周围有建筑物,我们在开挖时就需要保证不影响周围建筑,避免地基被破坏。这时候我们就需要采取相应的加固措施,从而保证周围施工环境的安全性。
回帖成功
经验值 +10
全部回复(0 )
只看楼主 我来说两句抢沙发