对装配式结构而言,“可靠的连接方式”是第一重要的,是结构安全的最基本保障。装配式混凝土结构连接方式包括:
1. 钢筋套筒灌浆连接,分为全灌浆套筒和半灌浆套筒两种。
2. 浆锚搭接连接
3. 后浇混凝土连接
4. 螺栓连接
1. 套筒灌浆连接
灌浆套筒是金属材质圆筒,用于钢筋连接。两根钢筋从套筒两端插入,套筒内注满水泥基灌浆料,通过灌浆料的传力作用实现钢筋对接。两端均采用套筒灌浆料连接的套筒为
全灌浆套筒。一端采用套筒灌浆连接方式,另一端采用机械连接方式(如螺旋方式)连接的套筒为
半灌浆套筒。
灌浆套筒是装配式混凝土结构最主要的连接构件,用于纵向受力钢筋的连接。钢筋套筒灌浆连接接头的抗拉强度不应小于连接钢筋抗拉强度标准值,且破坏时应断于接头外钢筋。








钢筋套筒灌浆连接主要用于装配式混凝土结构的剪力墙、预制柱的纵向受力钢
筋的连接;也可用于叠合梁等后浇部位的纵向钢筋连接。





浆锚搭接连接是指在预制混凝土构件中采用特殊工艺制成的孔道中插入需搭接的钢筋,并灌注水泥基灌浆料而实现的钢筋搭接连接方式。
浆锚搭接连是基于黏结锚固原理进行连接的方法,在竖向结构构件下段范围内预留出竖向孔洞,孔洞内壁表面留有螺纹状粗糙面,周围配有横向约束螺旋箍筋,将下部装配式预制构件预留钢筋插入孔洞内,通过灌浆孔注入灌浆料将上下构件连接成一体的连接方式。






浆锚搭接连技术的关键在于孔洞的成型技术、灌浆料的质量以及对被搭接钢筋形成约束的方法等各个方面。
目前我国的孔洞成型技术种类较多,尚无统一的论证,因此《规程》要求纵向钢筋采用浆锚搭接连接时,对预留孔成孔工艺、孔道形状和长度、构造要求、灌浆料和被连接钢筋,应进行力学性能以及适用性的试验验证。
后浇混凝土是指预制构件安装后在预制构件连接区域或叠合层现场浇注的混凝土。
在装配式结构中,基础、首层、裙房、顶层等部位的现浇混凝土成为现浇混凝土。连接区域或叠合部位的现场浇注的混凝土成为后浇混凝土。
后浇混凝土钢筋连接方式可采用现浇结构钢筋的连接方式,主要包括:机械螺纹套筒连接、钢筋搭接、钢筋焊接等。






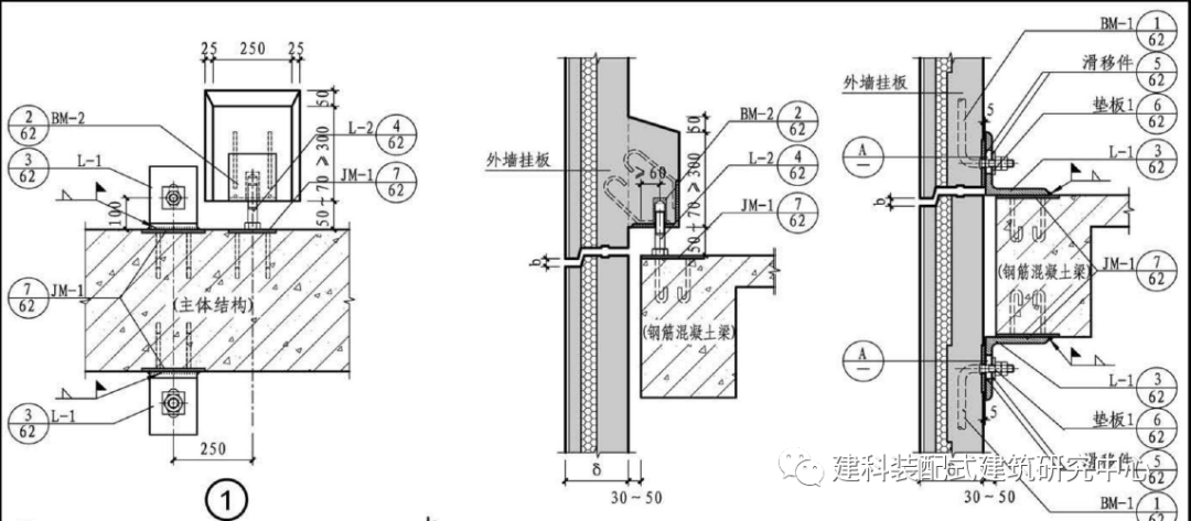
4. 螺栓连接
螺栓连接:是指用螺栓和预埋件将预制构件与预制构件或预制构件与主体结构进行连接的一种连接方式。
螺栓连接属于干法连接;钢筋套筒灌浆连接、浆锚搭接、后浇混凝土连接都属于湿法连接。
螺栓连接的适用范围:在装配式混凝土结构中,螺栓连接仅用于外挂墙板和楼梯等非主体结构构件的连接。





全部回复(0 )
只看楼主 我来说两句抢沙发