
Les Coteaux Fleuris 学校位于法国的诺曼底村,坐落在一个临靠莱茵河的优美场地上,周围拥有美丽的树林乡间风景。该项目设计借用了当地传统建筑中的材料和形态:取自市中心的半木结构房屋的木材用于玻璃框架和建筑结构框架;钟楼和市政厅的石板用于覆盖保护外墙和屋顶。


外墙和屋顶是由场外预装的模块组成的,结合了空气/水密性、保温层和结构层。木材和石板的使用,光伏板的整合,以及设备加热不消耗化石燃料,学校的建设是减少碳足迹过程的一部分。

















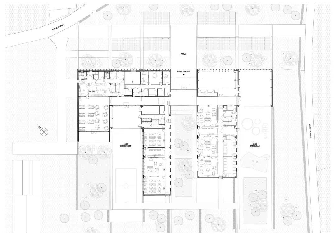
▽建筑图纸







0人已收藏
0人已打赏
免费1人已点赞
分享
结构资料库
返回版块41.29 万条内容 · 424 人订阅
阅读下一篇
山西五台南禅寺大殿——中国现存最古老的木结构建筑2023年8月8日下午,我终于站在了外观有点呆萌的南禅寺大殿前,见到了中国仅剩三座半唐代木结构建筑中的第二座。 网上从没看见过这座头山门,原来南禅寺是咱李家庄的 南禅寺大殿位于山西省五台县城西南的阳白乡李家庄,始建年代不详,重建于唐建中三年(782年)。南禅寺在1953年首次文物普查中被发现,当时在大殿的梁上发现“因旧名旹(时)大唐建中三年岁次壬戌月居戊申丙寅朔庚午日癸未时重修殿法显等谨志”的题记,比佛光寺东大殿还早75年,是我国现存最古老的木构建筑。
回帖成功
经验值 +10
全部回复(0 )
只看楼主 我来说两句抢沙发