随着自然环境的改变和科学技术的发展,为保障医疗疾控、科学研究、数据中心和消防救灾等重大工程项目的供电可靠性,用电负荷的要求也在不断提高。除去正常的双重电源之外,还需要设置必要的应急电源。应急电源的使用,能够提高线路供电的稳定性。因此,在对重大工程项目的供电线路设计时,应确定安全可靠、经济合理的应急备用电源供配电系统设计方案。本文通过介绍应急备用电源的概念、种类,以及特别重要负荷对应急备用电源的选用要求等,探讨应急备用电源的选用原则和方法,并介绍某大型项目应急备用电源供配电系统的设计方案。
1.1 配置要求
从概念范畴的角度,应急电源从属于备用电源,两者在使用目的、切换时间和供电时间要求上有所不同。从使用目的来看,不同层级的负荷,可以按照用电需求的不同,配置必要的应急电源和备用电源。
在对备用电源的配置中,应当要按照相关的技术规范要求,如《建筑电气与智能化通用规范》GB55024—2022(以下简称《规范》),依据项目对供电的要求不同,针对不同的负荷,按照需求的不同,配置匹配的备用电源。而针对特定的项目,如在一级负荷中特级负荷的供电,应当采用强制性要求的方式配备应急电源。
《规范》针对应急电源,给出了具体的要求:一是应急电源与非应急电源之间,应采用防止并列运行的措施;二是考虑到供电设备停电会出现一定的中断时间,因此,在对应急电源的设计时,应当要从切换时间入手,对应急电源的种类进行选择。
1.2 设备分类及应用分析
目前,能够作为应急电源的设备主要分为三类。第一类为独立发电机组,这种设备能够独立进行发电,如柴油发电机组等。第二类为专用馈电线路,这种设备与项目的供电线路不同,它能够独立于供电线路之外,为项目独立进行供电。第三类为蓄电池组,这种设备能够通过充电和放电的方式,满足项目应急用电的需求。在应急电源设计的过程中,具体类型需要根据供电条件、负荷性质、切换时间和供电时间的要求来选择,但与备用电源对切换时间的要求不同,应急电源对切换时间的要求比较高。
《供配电系统设计规范》GB 50052—2009中指出,应急电源的选择应当能够满足不同项目供电中断时间的要求。依据不同的中断时间,可以选择不同的应急电源。
一般来说,中断供电要求在15s左右的项目,可以选择第一类的应急电源;中断时间要求在ms级别的可以选择第三类应急电源;而对中断时间要求更为严格的可以选择第二类应急电源。同时,在具体的应急电源选择上,应当要结合具体的停车时间确定。
目前,常用市场上应急电源的种类包括以下5种:
(1)EPS应急电源,主要由充电器、逆变器、切换开关等装置组成,可以实现直流向交流转变的应急电源,这类应急电源的中断时间要求一般为0.25s。
(2)UPS不间断电源,主要由蓄电池、开关构成,是一种交流不间断装置,可以应用在中断ms级的负荷。
(3)自备应急柴油发电机组,主要由拖动工频交流同步发电机构成,可以应用在中断15s以上的负荷。这一类应急电源的考虑,应当要结合具体的生产技术,在与自动启动发电机配合使用时,应当要确保在10min 以上。
(4)专用馈电线路,主要由专有线路构成,这一类应急电源的中断时间要求一般为1.5s或0.6s。
(5)自备应急燃气轮发电机组,主要由燃气轮机构成,这一类应急电源主要可以满足同步发电的需要。
虽然,应急电源和备用电源所选用的电源类型可以相同,但二者在使用的过程中,不能够混淆。要严格按照《建筑电气与智能化通用规范》的相关规定,备用电源不能直接作为应急电源。当前应急电源中,专用馈电线路的应用范围比较小,应用也比较少。因而,本文在研究的过程中,主要对第一类应急电源发电机和第三类应急电源蓄电池组进行研究。
2.1 柴油发电机组的功率
柴油发电机组的功率是电机组能够在终端输出的功率。一般来说,这一功率是确定的,即每一个电机组都存在一个额定频率,且功率可以用千瓦(kW)表示。按照额定功率的类型不同,可以将其分为四类。
(1)持续功率(COP) :在指定的运行条件保障,以及发电机组确保电机组得到充分维护的情况下,发电机组不受限制,按照恒定负载供电的最大功率。
(2)基本功率(PRP):在指定的运行条件保障,以及发电机组确保电机组得到充分维护的情况下,发电机组持续,为可变负荷供电的最大功率。
(3)限时运行功率(LTP):在指定的运行条件保障,以及发电机组确保电机组得到充分维护的情况下,发电机组每年运行 500h 的最大功率。
(4)应急备用功率(ESP):在指定的运行条件保障,以及发电机组确保电机组得到充分维护的情况下,在公共电网出现问题时,发电机组 200h 的运行过程中,可变功率中的最大值。
柴油发电机容量计算可参考《工业与民用供配电设计手册》第四版中第2.6.3.2节计算长期连续运行所需要的功率,按不大于80%的基本功率选择柴油发电机的额定功率。
(1)按稳定负荷计算
按稳定负荷计算时,发电机容量计算公式如式(1)~(2)所示:

![]()
(2)按单台最大的电动机或成组电动机启动的需要计算
按单台最大的电动机或成组电动机启动的需要计算时,发电机容量计算公式如式(3)所示:

(3)计算实例

下一步需要对柴油机的短时过载能力进行验证,可以取负荷系数大于1.5。
通过验证发现,当电机组运行功率较低时(如低于额定值的50%),那就会出现耗油量明显上升,发动机的燃油效率较低,最终会对发电机造成一定的影响,缩短发电机的使用周期。因而,在使用柴油发电机时,应当要确保发电机能够按照正常的功率运转,避免出现低负载的情况发生。
2.3 柴油发电机组性能等级
从性能来看,柴油发电机组可以分为四个等级,分别为G1、G2、G3、G4。其中,G1可以用于一般的照明等简单的电气负载,要求连接的负载要按照规定的功率运行。G2能够允许一定范围内的电压或频率偏差,可以用于照明、风机等。G3对电机所连接的负载有较为严格的要求,可以用于晶闸管控制的设备等。G4对电机所连接的负载有特别严格的要求,可以用于计算机系统等。
2.4 柴油发电机组的配电方案
根据《规范》,当备用电源和应急电源共用柴油发电机组时,要符合备用电源和应急电源应有各自的供电母线段及回路的规定;备用电源的用电负荷不应接入应急电源供电回路的规定。
当民用建筑的消防负荷和非消防负荷共用柴油发电机组时,应符合以下规定:消防负荷应设置专业的回路;应具备火灾时切除非消防负荷的功能;应具备储油量低位报警或显示的功能。
2.5 柴油发电机组的并机方案
如果系统中有多台柴油发电机,则需要采用柴油发电机组并机系统,由安装于发电机组上的具有并联功能的机组控制器以及PLC并联主控柜组成,可对发电机组系统及负载进行控制和管理。
柴发并机系统设计应充分考虑可靠性需求,采用分布式并联控制技术,由机组本体的控制器完成,不受其他控制器的限制,且单台机组并联失败不影响到其他机组的并联。而且,柴油发电机组具备自动、手动同步及负载分配等功能,即使系统并联主控柜出现问题退出运行,其他机组也可以通过其他方式实现并联,且在并联之后,能够按照线路对负荷进行分配,不会对应急供电带来影响。
并机系统要设有首起动检测系统(图1),当收到市电断电干接点信号后,发电机系统会起动所有机组,当任意第一台到达90%电压和90%频率的发电机起动首起动检测系统时,会禁止其他机组向空母线合闸。当母线得电后,其他机组就可以同时并联合闸,整个系统的启动及并机约30s内完成,具有很快的响应速度。

图1 首起动检测系统
3.1 UPS的主要性能指标
UPS的主要性能指标包括输入适用电压V、频率f、输入功率因数PFin、谐波含量THDi、输入电压范围Vin、标称容量kVA、系统效率η、输出功率因数PFout和过载能力。
3.2 UPS系统供电方案
UPS以其不间断供电的能力,适用于数据中心等精密场所。 依据相关技术规范,可以将数据中心分为三个等级(表1),即A级、B级和C级。3种不同等级下对不间断电源系统要求参见表2。

针对不同的负荷,UPS系统可分别采用双总线供电(A类)、直接并联供电(B类) 和单机供电(C类)三种方式供电。
(1)单机供电方案
图2 UPS系统单机供电方案
(2)直接并联供电方案
图3 UPS系统直接并联供电方案
(3)双总线供电方案
图4 UPS系统双总线供电方案
3.3 UPS的容量计算与选择
在计算UPS的容量时,首先获得负载的总视在功率S, 并统一单位到kVA。计算公式为S=P/cosφ, 其中P为有功功率,kW;cosφ为负载输入功率因数。
一般来说,UPS在60%~70%的区间,其运行的效率最高。而依据这一最大视在功率,可以确定UPS 最大的扩容需求。一般建议在计算时将上述结果放大1.3倍(《数据中心设计规范》GB 50174-2017中规定为≥1.2倍),然后在产品手册中选取最接近的功率产品。
以某个数据中心项目为例,其总应急负载为180kW,而cosφ为0.9,则视在功率S为 200kVA。那么,当前项目在最佳运行状态时,就可以得到其最大的视在功率为 260kVA。依据最大视在功率,可以选择合适的UPS主机。因而,在该案例中,可以选取300kVA的UPS主机。
以某一办公大楼为例,该大楼高为149.1m,共有33层,总建筑面积为13984m?。其中,地上为93496m?, 地下为4388m?。一级负荷中特别重要的负荷包括:弱电系统、计算机系统用电,安全防范系统用电,冷却水系统用电,空调系统以及数据中心设备用电,生命安全系统用电等。
本工程由城市电网提供20kV电源供电,为满足用电负荷最高等级要求,采用2路独立20kV高压线路(双重电源)引入(图5)。这就能够保证两路电源的来源不同,分别来自于不同城市的降压站。这种模式能够确保每一路电源都能够承担起消防和重要机房等一二级负荷用电,并确保两路20kV 电源运行时,不会出现高压侧联络的现象。
图5 高压配电系统图
在变压所内,可以安装4台变压器,每台的装机容量为2500kVA,合计为10000kVA。为保证能够有高压电源,为低压出线回路供电,变压器的测设母联如图6所示,才能确保负荷不受到切换时间的影响,提高供电稳定性。

图6 低压侧联络配电系统图
另外采用柴油发电机为一级负荷中特级负荷提供应急电源。火灾情况下切除非消防负荷,消防负荷与非消防负荷不同时使用,负荷计算时分开计算,柴油发电机组容量仅需保证两者之间最大的需求量来选择,负荷计算如表3所示。

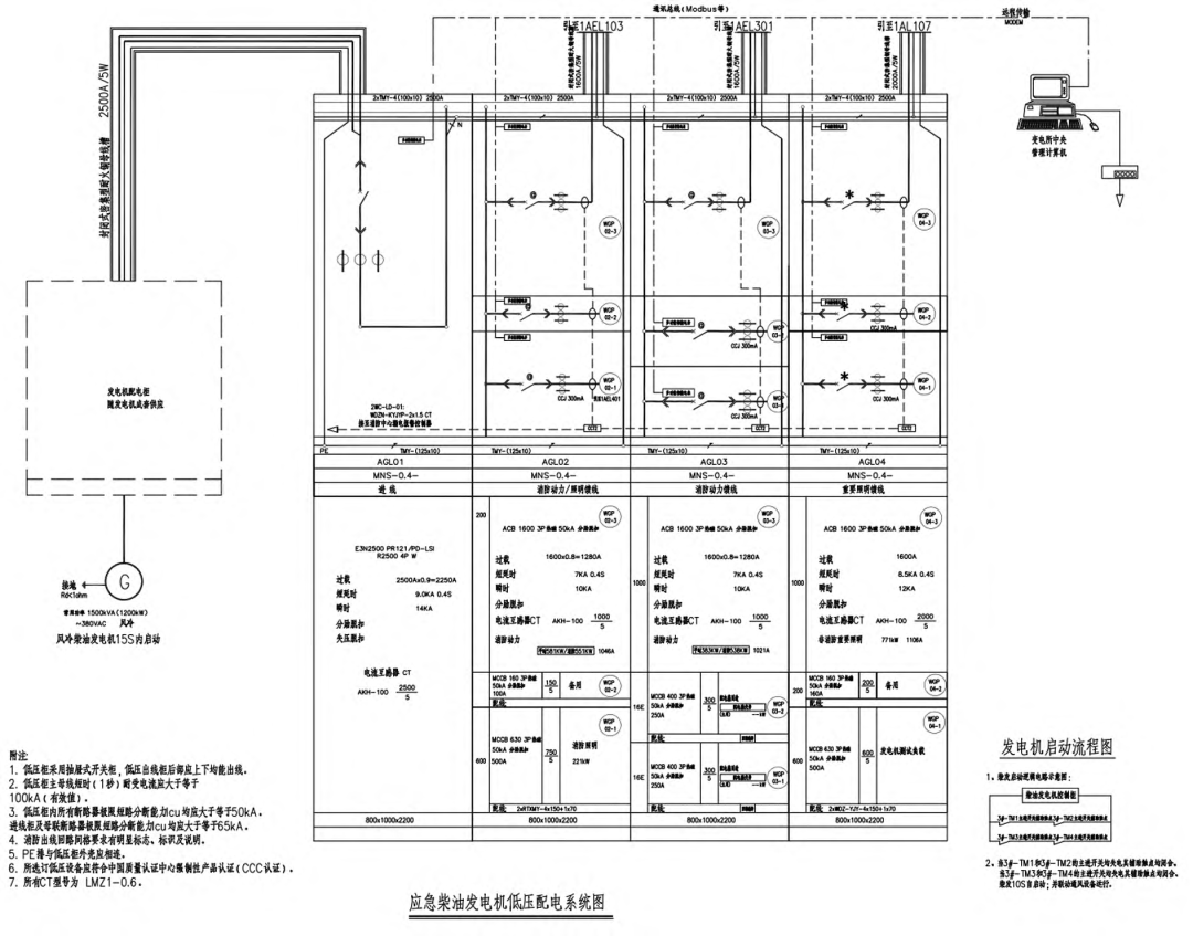
从负荷角度来看,该项目需要在地下一层,设置1台低压风冷发电机作为项目的备用电源,以便于应对紧急事件,且发动机的功率应当为1200kW。柴油发电机组配电系统图如图7所示。

图7 柴油发电机组配电系统图
本工程设有B级数据中心,数据中心属于一级特别重要负荷,除了采用柴油发电机组作为备用电源,还采用UPS作为不间断备用电源。数据中心设备用电容量1060kW,负载输入功率因数cosφ为0.9,根据计算得对应总视在功率约为1200kVA。进一步考虑最佳运行状态, 乘上系数得到1200×1.2=1440kVA,因此可以选取4×400kVA 的UPS主机,平面布置图如图8所示。

图8 UPS及电池间平面布置图
针对B级数据中心,采用直接并联供电方案(图9),UPSA输入配电柜中采用UPSA1和UPSA2并联供电。

图9 UPSA输入和输出配电柜系统图
本文介绍了应急电源和备用电源的概念、种类,以常用的柴油发电机组和不间断电源为研究对象,结合工程案例介绍了应急备用电源的选型计算和供配电设计方案,对设计人员科学合理地选择应急备用电源类型、容量和配电方案提供一些参考。
作者简介:
张晓萍,硕士研究生,专业负责人,高级工程师。
本文引用格式:
[1]张晓萍,张哲,张林华等.应急备用电源供配电系统方案探讨[J].智能建筑电气技术,2022,16(06):90-95+109.
0人已收藏
0人已打赏
免费0人已点赞
分享
电气资料库
返回版块70.18 万条内容 · 794 人订阅
回帖成功
经验值 +10
全部回复(0 )
只看楼主 我来说两句抢沙发