土木在线论坛 \ 建筑设计 \ 建筑方案设计 \ 小学校建筑总平面设计要点

小学校建筑总平面设计要点

发布于:2023-03-29 15:46:29 来自:建筑设计/建筑方案设计 [复制转发]
总平面功能关系


中小学校用地由学校建筑用地、体育活动用地、实验及绿化用地三部分组成。

学校建筑用地应包括建筑占地面积、建筑物周围通道、建筑前后的绿地、小片课间活动场地。


其中学校建筑由教学用房、办公用房及生活用房组成;

教学用房由普通教室、专用教室、公用教室、实验室、图书阅览室、科技活动室及体育活动室组成。

各部分内容布置应满足使用要求,功能分区明确,既要联系方便,又要避免相互干扰和影响。


每个中小学校根据当地经济条件、入学率、学制特点办校原则等等,会出现不同的具体要求,因此对于不同学校总平面布置会出现不同的功能关系。但是最主要的三个功能区关系是不变的,及教学实验区、体育活动区、生活服务区。三者功能区基本呈三角形关系。如图:


图片

另外行政办公区可以与教学实验区合二为一,或者两区临近,成为教学中心区;后勤活动区可以独立为区,或者根据后勤服务情况分散布置服务用房。

学校考虑用作升旗、集合聚会等作用的中心广场,宜设在教学实验区附近。


Section

0 2


总平面布置要点


图片

(1)学校建筑物的间距应符合规定。如图:

1)学校主要教学用房的外墙面与铁路的距离应≥300米

2)对于机动车流量超过每小时270辆的道路,对应学校一侧的机动车车道边缘距学校主要教学用房的外墙面应≥80m,当<80m时,必须采取有效的隔声措施。

3)南向的普通教室在冬至日这天要求底层满窗8照时间应≥2h。
4)两排教室的长边相对时,其间距应≥25m。

5)教室的长边与运动场地的间距应≥25m。

6)教学用房应有良好的自然通风。
7)教学用房之间、教学用房与风雨操场等可以根据需要设置连廊。

(2)学校建筑物相互之间的要求

学校建筑物相互之间由于性质的不同而有所不同要求。
1)风雨操场应离开教学区、靠近室外运动场地布置。
2)图书阅览室应设置在环境安静处且与教学用房联系方便的地方。
3)音乐教室、琴房、舞蹈教室应设在不干扰其他教学用房的位置。
4)植物园地的肥料堆积发酵场及小动物饲养场不得污染水源和临近建筑物。
(3) 学校入口的设置

学校除了设置主入口,一般还需要设置次入口。
1)学校出入口的设置位置,考虑其所服务的居住区的方向或大量学生来校的方向,应利于大部分学生方便、短捷地出入学校(图5.3.7)。


图片

2)学校出口还应考虑设于靠近交通方便、上下学安全、车流较少的道路或街道内。学校的校门不宜开向主要干道或机动车流量超过每小时300辆的道路。如必须将主出口设于主要干道时,校门前应留出适当的缓行地带,而且校门应避开与大量车流出的单位为邻。

确定学校出口时也应考虑学校内总平面布局,应有利于学校的功能分区和道路组织。学生校后应能自接到达教学楼,不应横跨运动区、生活区等。
3)次口的设置位置应在生活服务区、体育,活动区附近。除了方便后勤人、车流外,还考虑使用学校服务设施的外来人员的出,如学校体育馆、游泳馆、体育场、食堂等,在使用上面向社会开放,也避免学校正常的教学等活动受到干扰,应设置或预留次人口与城市道路相连通。
4)在主要校门口附近或主要教学建筑的出口附近,相对集中布置停车场和自行车棚。
(4)学校道路系统
学校道路系统包括车行系统和步行系统。
1)学校道路系统应根据学校功能分区的关系和具体学校建筑布局来合理安排,要考虑人、车流量来合理确定其走向与宽度,要合理确定道路的主次和分流网络。
2)车行路不能在各个功能区内部穿越,尤其是教学区。
3)校园内规划的车行系统可利用学校周围的城市交通道路,并沿教学区及体育场周边设置环路,与校门相通。车行系统以不干扰教学区、生活.区为原则进行组织,同时要注意合理设计防火安全的消防通道。
4)各功能区内部道路以步行为主,步行系统的主要道路应规划设计成宽7m,次要道路寬3.5m。
(5)田径运动场用地位置的确定
在进行总平面布置时,田径运动场用地的位置确定是首要问题,是校园规划布局关键因素之一


图片

田径运动场的特点是占地大,有噪声,必须呈南北朝向布置以利于体育活动。

根据其特点,宜布置田径运动场在学校基地内相对平坦的地面(以减少土方量),宜布置在最观要求相对不高的位置,宜布置在易受噪声干扰的地方。


田径运动场根据条件设置200 - 400m环行跑道。当学校面积紧张时,至少应考虑设置小学60m.中学100m直线跑道。其他课间操场场地的面积,小学校中每学生宜≥2.3㎡,中学校中每学生宜≥3.3。篮球场或排球场每六个班应最少设置一个。运动场地应为弹性地面,不宜采用非弹性材料地面。

有些学校的面积非常紧张,可以考虑利用教学楼屋顶作为室外活动区,要做好屋面隔声处理和女儿墙处的保护处理。

(6)易产生噪声的校内建筑

对易产生噪声的校内建筑,应尽可能布置在校园的边缘地段,如校办工厂、车库。对易产生污染的校医院、锅炉房等,应尽可能布置在校园的边缘地段和常年下风向方位。食堂的位置宜布置在基地的常年下风向位置,以免食堂的人流、气味和运输路线等干扰教学用房的正常使用(图.5.3.9)。


图片

(7)学校的建筑容积率

学校的建筑容积率可根据其性质、建筑用地和建筑面积的多少确定。小学宜≤0.8;中学宜≤0.9;中师、幼师宜≤0. 7。


Section

03


中小学校总平面的设计原则


在学校总平面设计中,应在以下的基本原则下进行布置工作:

(1) 抓住学校总平面布置要点,进行整体分析、布局。

(2)总平面布置应能够做到有利于学生的学习和生活,员工应具有良好的工作环境。要合理安排用地,以尽量减少占地面积,在不影响正常使用要求的前提下,其建筑间距应尽量缩短,建筑物层数要合理选定。对来往频繁、联系密切的区及建筑物,尽可能紧凑布置,以缩短往来路程、节约用地和减少道路与管线工程的投资。

(3)要充分利用已有的地形、地物和原有建筑,减少改造、扩建的投资。

对老学校的改建与扩建,应处理好新旧的关系,对于优秀的旧建筑、旧布局风格,尽量不破坏,可以加以适度改建。

(4)充分考虑学校未来的发展变化,总平面布置应能够预留发展余地或可合理改造余地。

在学校内部人流交通组织中,也要动态的.考虑学校的发展变化,为未来学校新运行机制留有余地。
另外,在很多学校总平面设计中,采取在主要校门口处设置人口广场(有时也作为中心广场),适合作为校门口对景的建筑物以能反映学校主要性质的为适宜,例如教学楼、图书馆、礼堂(多功能厅)等,而行政楼、体育馆、后勤楼、学生宿舍等,属于学校的次要建筑,不能充分地表达学校的特点、性质,不适宜作为主人口的对景建筑(图5.3.10)。


图片


Section

04


场地案例·题一·解读


题一:在某城市的一个呈南北狭长状基地内布置中学校园。基地北邻城市主干道(车流量超过每小时300辆),东邻次干道,南面为社区公园,西面为某居住区和农贸市场。学生的主要来校人流在北侧的城市主干道方向,常年风向为西北风。


要求根据已知的学校建筑物单体参考平面形状,对学校的总平面进行合理的布置,考虑连廊以方便联系( 不要求道路布置)。

其中1600㎡的室外活动场地作为每周一次升旗、节日聚会、表演剧场等功能使用,形状可以变化(图5.3.11a、图5.3. 11b)。


图片


图片

图片

图片

解题:①首先选择合适的主校门位置

学校出人口的设置位置,考虑其所服务的居住区的方向或大量学生来校的方向,应利于大部分学生方便、短捷地出人学校。
学生的主要来校人流在北侧的城市主干道方向,那么选择基地北面某处为主校门位置为宜。由于北面为城市主干道,不宜把主校门设置在主干道上,则考虑在东面次干道上,位置靠近北面主.干道。

②对学校功能区在基地上进行大致划分
根据已知的学校建筑物单体,可以大致分为三个功能区:教学实验区,包括三个教学楼(包括.一个实验楼)、图书馆及室外活动场地;体育活动区,包括田径运动场、篮球场、风雨操场;生活服务区,包括三个宿舍楼、食堂;另外还有一个行政楼。

③根据功能分区的位置划分,在总平面内布置各个建筑,进行合理调整、相互协调,综合多种影响因素,以使各个建筑基本定位。

正对主校门的区域宜规划为教学实验区,即基地北面为教学实验区。
对于教学实验区,教学楼应该有最好的日照。这里教学楼群采取南北向的排列,其外墙间距保持25m。由于对于机动车流量超过每小时270辆的道路,对应学校一侧的机动车车道边缘距学校主要教学用房的外墙面应≥80m,那么把行政楼安排在主干道和教学楼之间,减少面积的浪费,位置也比较适宜。


教学楼群设置在西面时,室外活动场地和图书馆则布置在东面。这样教学区和农贸市场相邻,容.易受到噪声干扰。而室外活动场地是作为每周一次升旗、节日聚会、表演剧场等功能使用的,此时出人学校的人流会干扰影响活动场地上的行为,使其功能偏向人旷场,失去原来的功能要求;图书馆也会因为在其前经过的人流因其流量过大而受到干扰。

因此选择教学楼群设置在东侧。

由于图书馆需要比较安静的环境,如果把图书馆放置在教学区西北侧,那么图书馆北侧受到(机动车流量超过每小时300辆)主干道交通噪声干扰,其西面相邻的农贸市场噪声卫生问题,也会严重干扰图书馆,则考虑图书馆放置在教学区西南侧.(除非增加投资在建筑物上进行特别隔声处理),在教学区西北侧设置室外活动场地,建筑对活动场地形成比较完整的围合。

对于生活服务区和体育活动区,有两种方案,第一种是基地西南布置体育活动区,东南布置生活服务区;第二种是基地西南布置生活服务区,东南布置体育活动区。

第一种方案:运动场相邻基地东侧道路,对道路景观没有产生作用。宿舍楼、食堂远离基地东侧道路的次人口,后勤服务不方便,而食堂的送菜、出垃圾的流线横穿基地,易影响卫生环境。同时食堂位于_上风向,不适宜。.


图片

第二种方案:宿舍楼的建筑造型有助于对基地东侧道路的景观塑造,可以和教学楼、风雨操场共同作用形成基地东侧道路的良好景观。


运动场和居民区相邻,应了解居民区内相邻之处的建筑性质,以确定其接受噪声的能力,比如如果为居住区的绿地或社区,则运动场的噪声不会影响其正常使用要求;如果为住宅楼,则应具体考察住宅楼的方向和学校运动场使用方式,或者通过屏蔽噪声处理,避免建成后产生纠纷


宿舍楼、食堂相邻基地东侧道路的次人口,后勤服务流线方便


图片

综合分析,选择第二种作为定案。风雨操场设置在教学楼群和运动区之间。

把各个建筑布置到基地平面图上,在教学楼群和风雨操场之间以连廊连接,给所有建筑物标注名称和层数以及必要的尺寸,完成总平面布置。


Section

04


项目:复旦大学新江湾第二附属学校


复旦大学新江湾第二附属学校项目位于上海新江湾北部,是一所72班九年制一贯制中小学校。东临城市主干道淞沪路,北为绥芬河路,西为恒学路,南为复旦大学新江湾校区。用地38393㎡,总建筑面积49800㎡,按预制装配式混凝土结构体系、绿色建筑二星建造。设计的难点在于:如何妥善解决较小的用地环境以及较低造价条件与高品质教育设施需求之间的矛盾,并合理布置具有不同功能的建筑体量;如何突破中小学校行列式布局的刻板印象,创造更多充满活力的开放空间。

▼学校鸟瞰

图片

 

集约化Intensive

校区按东、西向分为运动区和教学区,以减少东侧淞沪路的噪声影响,并易接驳西侧城市道路;按南、北向把建筑分为小学部、中学部,两者通过中区的综合部(办公和公共实验室)相连接。

▼形态生成图解,generation diagram

图片

学校对教育设施的数量和品质有较高要求,如设置500座剧场、300座报告厅、多功能教室、展厅、体育馆、400米标准运动场等。为节约用地,与惯常手法如“轴线对称、行列串联”不同,项目因地制宜,采用“整体连贯、空间围合”的“弓”形体量,用集约化手法使布局更加紧凑、各种设施密切联系,形体富有节律,一气呵成。


▼入口鸟瞰,建筑采用弓形体量,布局紧凑

图片

 

围合与多中心

连贯的“弓”形体量围合3处空间:U形主入口区、北部厅院区和南部厅院区。在形态上,内院、中厅等公共空间与大空间功能用房相结合,形成各区域的的核心空间;在功能上,集中式、中厅式的布局,避免受天气影响,高效利用教学设施,符合走班制模式及多样化教育理念;在空间效果上,中庭、环廊、台阶等连接了不同高差的公共活动场所,形成了多中心、上下灵动的空间形态。


▼主入口,main entrance

图片

▼入口立面设有点阵图案

图片

▼U形入口空间,entrance space in U shape

图片

▼东立面面向体育场,east facade facing the playground

图片

图片

▼连廊下设置面向体育场的看台

图片

▼室外看台,closer view to the spectator stand

图片

图片

 

空间与起伏 Space and fluctuation

为提高用地效率,把建筑分为下部、上部空间,在竖向上创建多层次的“地面”场所。


▼建筑功能图解,program diagram

图片

下部包含较大体量的体育馆、报告厅、餐厅等,沉入地下弱化建筑体量,为争取自然通风、疏散采光要求,嵌入了3处下沉庭院。上部则布置对日照需求较高的教室、实验室和办公室,并充分利用屋面场地。


▼围合的下沉庭院,enclosed sunken plaz

图片

▼南侧叠落的下沉庭院,terraced sunken plaza on the south

图片

图片

这些新的“地面” 形成了流动型共享空间如采光中厅;高大型空间如体育馆、阅览室、多功能厅;围合型的庭院空间;退台型各层屋顶花园;观演型空间如阶梯教室、剧场、室外看台。营造了多维度、自由的、活泼的校园环境。


▼主入口共享大厅,public hall at the main entrance

图片

图片

▼共享大厅一侧的阶梯空间

图片

▼共享大厅采光环廊

图片

▼仰望共享大厅中庭空间,look up to the main atrium

图片

▼旋转楼梯,spiral staircase

图片

▼共享大厅边的室内活动空间

图片

▼南侧小学部采光中厅

图片

▼北侧中学部采光中厅

图片

图片

▼阅览室,reading room

图片

▼合班教室,combined classroom

图片

▼剧场,theater

图片


结构与立面 Structure and facade

结构为预制装配式混凝土体系(PC),重复的构件便于装配化的实施。立面结合结构做法有3种形式:2种主立面设置水平遮阳构件,保证采光均匀性;东立面为锯齿状,兼顾遮阳与采光。立面材料为低价的仿石涂料,局部点缀铝板幕墙,以“灰、红”色调搭配。整体效果律动、明快且细腻,反映装配式特点但不呆板,符合中小学建筑的特点。这是学校项目在预制装配式混凝土结构体系发展方向的尝试。


▼预制装配式墙身主立面水平遮阳构件

图片图片

▼预制装配式墙身立面水平遮阳构件

图片图片

▼兼顾遮阳与采光的锯齿形东立面

图片图片

 

结语 Conclusion

建筑师通过集约的总体布局来适应狭小的用地环境,采用更个性化的建筑空间以容纳更丰富的教育设施,并创造更立体的、充满活力的室内外环境来提升校园品质。在这种高密度的城市建设的条件下,复旦大学新江湾第二附属学校是对基础教育空间设计的一种发展和探索。

▼夜景,night view

图片

▼总平面图,site plan

图片

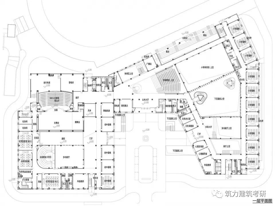
▼一层平面图,first floor plan

图片

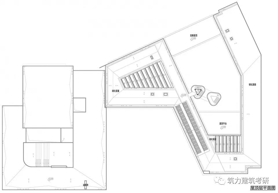
▼屋顶平面图,roof plan

图片

▼立面图,elevation

图片

▼剖面图,section

图片


知识点:小学校建筑总平面设计要点

北诗镇中心小学总平面规划设计施工图

全部回复(0 )

只看楼主 我来说两句抢沙发
这个家伙什么也没有留下。。。

建筑方案设计

返回版块

21.18 万条内容 · 300 人订阅

猜你喜欢

阅读下一篇

医院建筑设计要点及案例

1 规范要求 1 选址 1、医院选址应符合当地城镇规划、区域卫生规划和环保评估的要求。

回帖成功

经验值 +10