土木在线论坛 \ 给排水工程 \ 建筑消防给水 \ 识读火灾自动报警系统工程图

识读火灾自动报警系统工程图

发布于:2023-03-17 09:57:17 来自:给排水工程/建筑消防给水 [复制转发]

识图前注意事项

1

?了解建筑物的基本情况,包括房间分布与功能等,管线的敷设及设备安装与房屋的结构直接有关

2

?熟悉火灾探测器、手动报警按钮、消防电话、消防广播、火灾报警控制器及消防联动控制器等在建筑物内的分布及安装位置,同时要了解它们的型号、规格、性能、特点和对安装技术要求

3

?了解线路的走线及连接情况,在了解了设备的分布后,就要进一步明确线路的走线,弄清楚他们直接的连线关系,一般从进线开始,一条一条阅读

火灾自动报警系统工程图的识读时,

可以参照以下顺序操作:


图片


了解火灾自动报警系统常用图形符号


图片



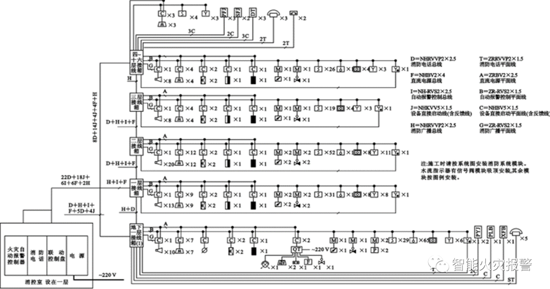
火灾自动报警系统图


系统图能直观地反映火灾自动报警系统与联动控制的方式,显示垂直配线情况、系统控制情况及控制室设备情况


图片


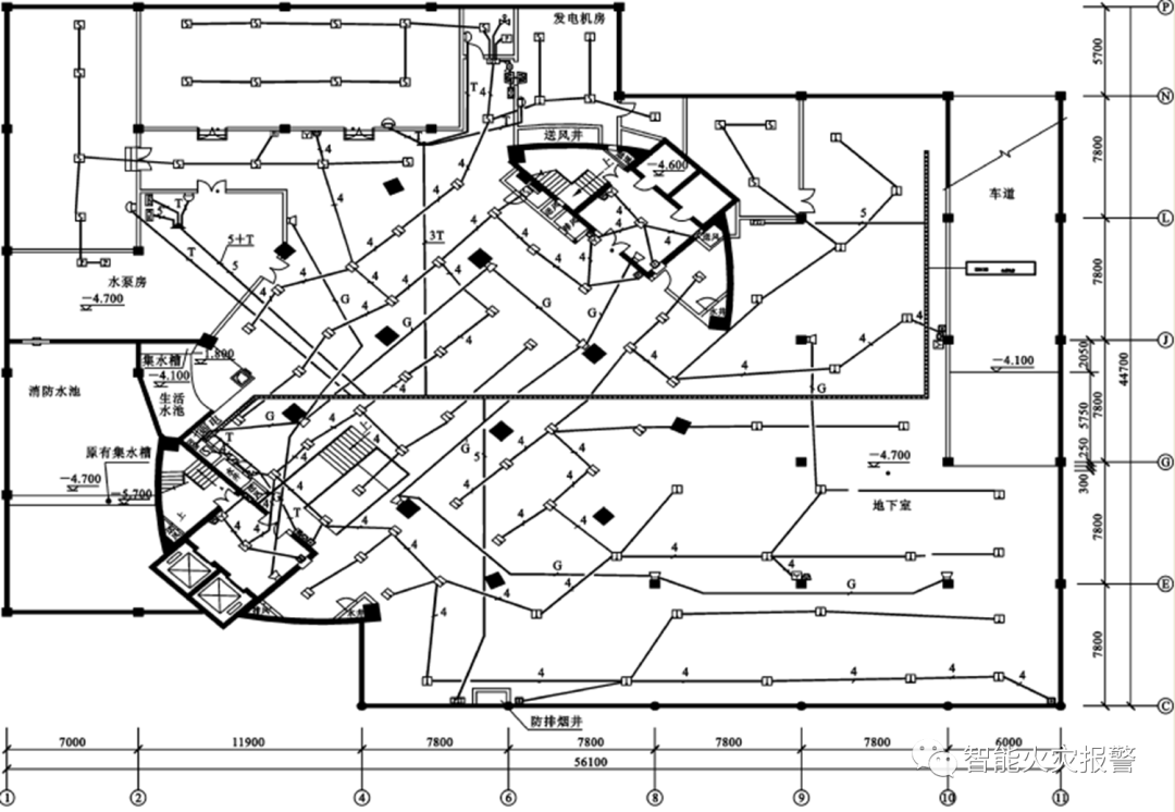
火灾自动报警系统施工平面图


火灾自动报警系统施工平面图主要反映报警设备及联动设备的平面布置、线路敷设等。


图片

地下层火灾自动报警施工平面图(1:100)


内容源于网络,旨在分享,如有侵权,请联系删除


相关资料推荐:

火灾自动报警设计系统图

https://ziliao.co188.com/d63242837.html


知识点:识读火灾自动报警系统工程图


全部回复(0 )

只看楼主 我来说两句抢沙发
这个家伙什么也没有留下。。。

建筑消防给水

返回版块

28.41 万条内容 · 744 人订阅

猜你喜欢

阅读下一篇

请问申报消防水表的口径是由谁决定

比如设计院设计的地面消防循环管是dn150口径  自来水公司看了图纸建议安装150的水表并且要两路进水 申报人执意只向自来水公司申报一块dn100的消防水表  假如消防以后出了问题是申报人的问题  还是自来水公司的问题    

回帖成功

经验值 +10