知识点:膜组器
膜组器安装

01
发货前准备工作
(1)联系采购部门与膜厂,核实膜组器的规格型号、数量、配件材料等准备情况(O型圈、螺栓螺母必须有备用数量),并确定安装时间。必要时去膜厂对膜箱及膜元件的外观质量进行预验。
(2)根据膜组器的外型尺寸、膜池深度、产水管及风管支管法兰口的位置等数据(必要时去现场实际测量),计算出膜组器产水软管和风管软管的长度,提交采购部订购。
(3)安装前7天,以书面形式将发货通知提交给采购部,由采购部协调膜厂做好膜组器的发货工作,明确设备进场日期。
02
设备进场及验货
(1)膜箱及膜元件进场前一天,落实好卸货机具(一般为2吨以上叉车)及人员安排,落实和准备施工现场存放和安装所必需的安全有效空间。
(2)卸货,清点数量、核对规格型号。要求必须有产品合格证、检测报告、说明书等文件。
(3)协调业主、监理进行外观质量检查验收,并做好检查记录。及时做好设备材料进场报验资料的审批工作。
03
膜组器安装
1、膜组器安装前准备
(1)工具及设备准备
1) 膜箱侧板拆装工具:螺丝刀、扳手、台梯等;
2) 膜片包装开封工具:包括塑料袋开封刀具等(干式无密封包装的膜元件,无需此工具);
3) 吊装机械:吊车、叉车等机械设备;
4) 膜组器现场泄露检查装置:如空压机、压力表、肥皂水等。(若出厂时已进行了泄露试验,视情况可无须现场试验)
(2)现场条件
确保足够的施工空间,至少具备2组膜组器同时组装的空间,场地应平整无杂物。施工空间应采取必要的保护措施,防止非安装人员及非安装机械穿行。避免在大风、大雨的环境下安装。
膜池预先进水,进水高度应不低于3米,至少保证膜组器完全可以浸没,要求进水为清水。
(3)人员准备
在安装前对现场施工人员进行专项培训,对安装步骤、安全文明施工、注意事项进行详细交底。要求每组安装的每一工序要有专人负责,具体工序及人员安排如下:
膜件拆封(2人)→ 保护器安装、膜件递送(2人)→ 膜件插入组器(2人)→[型集水管连接(2人)→测漏试验(2人)→膜组器侧板安装及吊装(4人)
(4)配件准备
将螺栓螺母、O型圈、肥皂水准备就绪,提前将[型集水管组装成型。
2、安装步骤
第一步:提前拆卸膜箱侧板,并将膜箱吊运止组装场地
第二步:膜元件开箱、拆封
检查数量及密封情况,检查有无断丝,若有个别断丝现象,需要进行打结处理。组装人员未做好安装准备之前,拆封人员不得过早拆开密封袋。拆封膜元件的数量应与组装进度相协调,避免过早打开密封造成膜丝快速干燥。即安装多少,打开多少。

▲ 膜元件包装箱已打开上盖
注意:膜元件开封时必须慎重,谨防刀具划伤膜丝!

▲膜元件密封包装
第三步:将膜元件从密封袋中取出,并安装组件保护器
膜元件保护器由两片保护板组成,安装时,先在膜元件两侧不锈钢集水管的正背面各粘上一条竖向单面不干胶条(5cm长),再将在一片保护板对好膜片的一侧,盖好另一侧,拧上螺丝,最后用手向下用力拉保护板,检验是否安装牢固。
注意:安装保护器时,保护器的两组螺丝孔要与膜片中间宽缝对好,防止安装过程造成断丝,或影响膜丝摆动!

▲安装好保护器的膜元件

▲膜元件保护器
第四步:将膜元件安装到膜组器上
膜件在传递过程中,避免手直接接触膜丝,每片膜件必须由两人从两侧同时拿起,双手紧握支撑杆,在移动时始终保持膜件垂直。将膜元件从组器一侧放入定位槽并缓慢推向另一个侧面的定位槽中,另一侧的安装人员需要伸手迎接膜件的插入,准确定位。
插入膜元件过程注意避免损伤膜丝,严禁安装人员站在组器上进行安
装膜元件。

▲膜元件插入膜箱
第五步:[型集水管安装
待所有膜元件安装完毕,在膜元件的出水口及集水总管的进水口处涂抹肥皂水,将[型集水管一端插入膜箱中膜元件的出水口,另一端插入集水总管的进水口。安装时应注意两端同时插入,避免从一侧用力使膜元件错位。并注意“O”型圈是否配合到位,插入时[型集水管应垂直,避免“O”型圈滑出。

▲[型集水管安装
第六步:测漏试验。
膜组器在出厂时已对各部件进行过检漏测试,在确认“O”型圈安装到位的情况下可以不进行二次检漏。当有条件或必要时,膜片安装完毕后,可以对膜组器进行二次泄漏检测,采用气压维持试验进行检测。具体步骤如下:
1. 将空压机空气管道与膜组器产水管连接,在与膜元件相接的各个接口部位抹上肥皂水;
2. 设定空压机的出口压力在200KPa;
3. 打开阀门,缓慢向膜组器送入压缩空气,膜组器压力达到100KPa后关闭阀门,不再送气;
4. 静置1分钟,确认膜组器压力是否下降,如果压力下降5KPa以下,则无泄漏,膜组器组装合格,可以安装;
不符合要求的膜组器,检测漏点,返工修理,完成后再次测漏,直到达到压力要求才允许放入膜池。
第七步:待测漏完毕后,安装膜箱封板,再安装[型集水管的护罩。
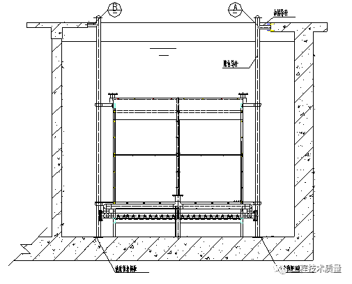
第八步:膜组器吊运安装,连接风管软管和出水管软管。
注意吊装时膜组器必须平衡,组器就位时定位槽必须与膜池中的限位导轨配合,使其固定牢稳。膜组器出水软管与主出水管路的支管法兰连接,曝气软管与主风管支管蝶阀连接。
1. 膜组器水平放置(要求池底结构必须水平,水平度要求不大于±5mm)。
2. 膜池中的膜组器中心应在同一条直线上。
3. 软管连接时法兰接口必须有橡胶密封垫。
4. 法兰连接时螺栓一定要对角线对称缓慢拧紧,避免拧紧力不匀或拧力过猛致使不锈钢螺栓损坏。

▲安装示意图

▲膜组器吊装

▲膜组器下水就位

▲风管、水管软管连接
04
安全注意事项
1、膜安装注意事项
(1)膜元件是由甘油/水的混合水溶液浸润的。安装过程必须保持膜处于湿润状态,从膜元件开封到浸入水中不要超过12小时。
(2)搬运膜元件时,必须手持膜元件的不锈钢支撑杆,不得直接用手拿中空纤维膜,防止断丝。
(3)包装箱避免日光直射,保存温度保持在40℃以下。
(4)包装箱叠放层数不宜超过2层,避免在卸运膜包装箱时发生撞击和剧烈振动。
(5)膜元件包装箱不得损坏,安装完毕进行回收。
2、安全技术措施
膜组器的安装工程既有吊装作业,又有高空作业和水面作业,是整个工程的施工重点,施工时应严格遵守操作规程。
(1)吊装作业
现场施工人员必须佩带安全帽,特种作业人员必须持有特种作业证。
吊装作业前,应对起重吊装设备、钢丝绳、链条、吊钩等各种机具进行检查,必须保证安全可靠,不准带病作业。
吊装作业时,必须分工明确、坚守岗位,统一指挥。
吊装作业前必须对起重吊装机械的运行部位、安全装置以及吊具、索具进行详细的安全检查,吊装设备的安全装置要灵敏可靠。吊装前必须试吊,确认无误方可作业。
任何人不得随同吊装重物或吊装机械升降。在特殊情况下,必须随之升降的,应采取可靠的安全措施,并经过现场指挥人员批准。
悬吊重物下方严禁站人、通行和工作。
(2)高空作业
在膜池上施工属高空作业,施工人员若有高血压、贫血、心脏病、癫痫以及其他不适宜高处作业人员,不得参与施工。
作业前,必须对有个人安全防护用品进行检查,不得在安全隐患的情况下强令或强行冒险作业。
安装时,必须按规定使用安全带,安全带必须高挂低用,挂设点必须安全可靠。
使用工具传递时禁止抛掷,以免掉进水里或伤人。
因膜池已注水,膜池上施工的人员要准备救生圈,防止落入水中发生溺水事故。
空压机

1. 安装时设备清洗和检查应符合下列要求:
(1)主机和附属设备的防锈油封应清洗洁净,并应除尽清洗剂和水分;
(2)设备应无损伤等缺陷;工作腔内不得有杂质和异物;
(3)压缩介质为氧气及易燃易爆气体的空气压缩机,凡与介质接触的零件和部件、附属设备和管路均应按现行国家标准《机械设备安装工程施工及验收通用规范》第五章有关的规定进行脱脂;脱脂后应采用无油干燥空气吹干。
2. 整体安装的空气压缩机在防锈保证期内安装时,其内部可不拆卸清洗。
3. 整体安装的空气压缩机纵向和横向安装水平偏差不应大于0.20/1000,并应在主轴外露部分或其它基准面上进行测量。
4. 当无公共底座机组找正时,应以驱动机或变速箱的轴线为基准,其同轴度应符合设备技术文件的规定;当无规定时,其联轴器的连接应按现行国家标准《机械设备安装工程施工及验收通用规范)第五章的规定执行。
5. 空气压缩机试运转前应按设备技术文件的规定进行检查并符合下列要求:
(1)在润滑系统清洗洁净后,加注润滑剂的规格和数量应符合设计规定;
(2)冷却水系统,进、排水管路应畅通,无渗漏;冷却水水质应符合设计要求;供水应正常;
(3)油压、温度、断水、电动旁通阀、过电流、欠电压等安全联锁装置应调试合格;
(4)空气压缩机吸入口处应装设空气过滤器和临时过滤网;
(5)应按规定开启或拆除有关阀件。
6. 空气压缩机空负荷试运转应符合下列要求:
(1)启动油泵,在规定的压力下运转不应小于15min;
(2)单独启动驱动机,其旋转方向应与空气压缩机相符;当驱动机与空气压缩机连接后,盘车应灵活、无阻滞现象;
(3)启动空气压缩机并运转2~3min,无异常现象后其连续运转时间不应小于30min;当停机时,油泵应在空气压缩机停转15min后,方可停止运转,停泵后应清洗各进油口的过滤网;
(4)再次启动空气压缩机,应连续进行吹扫,并不应小于2h,轴承温度应符合设备技术文件的规定。
7. 空气压缩机空气负荷试运转应符合下列要求:
(1)各种测量仪表和有关阀门的开启或关闭应灵敏、正确、可靠;
(2)启动空气压缩机空负荷运转不应少于30min;
(3)应缓慢关闭旁通阀,并按设备技术文件规定的升压速率和运转时间,逐级升压试运转,使空气压缩机缓慢地升温;在前一级升压运转期间无异常现象后,方可将压力逐渐升高;升压至额定压力下连续运转的时间不应小于2h;
(4)在额定压力下连续运转中,应检查下列项,并应每隔0.5h记录一次:
1) 润滑油压力、温度和各部分的供油情况;
2) 各级吸、排气的温度和压力;
3) 各级进、排水的温度和冷却水的供水情况;
4) 各轴承的温度;
5) 电动机的电流、电压、温度。
8. 空气压缩机升温试验运转应按设备技术文件的规定执行。
9. 空气压缩机试运转合格后,应彻底清洗润滑系统,并应更换润滑油。
相关推荐:
0人已收藏
0人已打赏
免费1人已点赞
分享
电气工程原创版块
返回版块2.2 万条内容 · 598 人订阅
阅读下一篇
判断电饭锅限温器是否失效的方法知识点:限温器 电饭锅磁钢限温器是一种特殊的感温控温部件,主要由锶钡铁氧体永久磁钢与镍锌铁氧体感温软磁组合而成。感温软磁是一种磁导率随着其本身温度呈非线性变化的神奇材料,其磁导率一温度特性曲线如图所示。感温软磁的温度由低逐渐升高时,它的磁导率会随之上升,当温度升至某一点时磁导率急剧下降而趋于零,这个使感温软磁导磁性能突变的转折点Tc即为居里点温度。电饭锅磁钢限温器要求具备一定的控温精度,Tc处的磁导率一温度特性曲线必须很陡,摔制温度严格规定为103±2℃,否则无法保证煮饭的高质量。
回帖成功
经验值 +10
全部回复(0 )
只看楼主 我来说两句抢沙发