土木在线论坛 \ 给排水工程 \ 建筑消防给水 \ (给排水)自吸泵原理

(给排水)自吸泵原理

发布于:2023-02-16 10:45:16 来自:给排水工程/建筑消防给水 [复制转发]
普通离心泵






  对于普通离心泵,若吸入液面在叶轮之下,起动时应预先灌水,很不方便。为在泵内存水,吸入管进口需装底阀,泵工作时,底阀造成很大的水力损失。

自吸泵






  自吸泵,就是在起动前不需灌水,借助于本身的装置特性就能够达到进口管路排气灌水的效果。

  自吸泵按作用原理分为以下几类: 

1.气液混合式(包括内混式和外混式); 

2.水环轮式;

3.射流式(包括液体射流和气体射流)。 

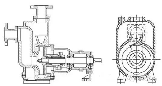
气液混合式自吸泵的工作过程:由于自吸泵泵体的特殊结构,水泵停转后,泵体内存有一定量的水,泵再次启动后由于叶轮旋转作用,吸入管路的空气和水充分混合,并被排到气水分离室,气水分离室上部的气体溢出,下部的水返回叶轮,重新和吸入管路的剩余空气混合,直到把泵及吸入管内的气体全部排出,完成自吸,并正常抽水。

图片

水环轮式自吸泵 是将水环轮和水泵叶轮组合在一个壳体内,借助水环轮将气体排出,实现自吸。当泵正常工作后,可通过阀截断水环轮和水泵叶轮的通道,并且放掉水环轮内的液体。
图片

  射流式自吸泵,由离心泵和射流泵(或喷射器)组合而成,依靠喷射装置,在喷嘴处造成真空实现抽吸

图片

内容源于网络,旨在分享,如有侵权,请联系删除


相关资料推荐:

某工程自吸泵变频器二次原理图(共1张)

https://ziliao.co188.com/d62408821.html



知识点:自吸泵原理


全部回复(0 )

只看楼主 我来说两句抢沙发
这个家伙什么也没有留下。。。

建筑消防给水

返回版块

28.41 万条内容 · 744 人订阅

猜你喜欢

阅读下一篇

如何避免室外雨污水管网损坏?

塑料排水管及检查井具有重量轻、耐腐蚀、施工便捷、施工周期短等特点,被广泛应用于各项目室外排水管网。住宅建筑室外排水用埋地塑料排水管以硬聚氯乙烯(PVC-U)双壁波纹管和聚乙烯(PE)双壁波纹管为主,以上两种材料经济效益较好。 各项目施工现场交叉作业,工序衔接不当,工期紧张等各方面因素导致现场埋地塑料排水管极易在施工现场损坏,导致后期园林工程完工后进行返工,造成成本增加及工期延长。各城市对室外雨水排放及综合管网验收管理越来越严,施工现场如何做好施工安排保证埋地塑料排水管道不被损坏,以案例给大家剖析。

回帖成功

经验值 +10