人防施工各种穿防护墙密闭做法
厚3~4mm,钢板密闭肋应与结构钢筋焊牢。
采用相同质材塑料板制作密闭肋,板厚>5mm。
应不小于3mm,密闭肋厚5~6mm,出墙面长度应为100mm。
如下:

穿墙管密闭肋详图
见下图

电气线路暗管敷设防护密闭做法

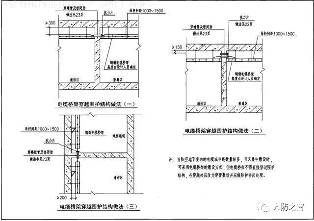
电缆桥架穿越防空地下室围护结构做法

防护密闭穿墙管抗力片详图

穿过人防护结构给水引入管,排水出户管、通气管、供油管、消防给水管,在其穿墙和楼板处应预埋防护密闭套管;
给水管,压力排水管的密闭穿墙短管,采用壁厚大于3mm的热镀锌钢管,密闭翼环应采用10-12mm的钢板制作,钢板要平整,其翼高宜为30-50mm,密闭翼环与密闭穿墙短管的结合部位其焊缝区要求饱满、均匀、严密。
密闭穿墙短管两端的固定法兰做法于密闭翼环做法相同,密闭穿墙短管两端固定法兰外侧要与墙面在同一平面上;
密闭翼环应位于墙体厚度的中间,并应与周围结构钢筋焊牢,密闭穿墙短管的轴线应与所在墙面垂直。
见下图:

防护密闭套管安装图(E型)
认真熟悉图纸,仔细核对建筑、结构与安装各专业图纸预留孔洞是否一致,全部汇集到结构预留孔洞图纸上,以便结构按图进行预留,避免各专业分别提交预留孔洞图造成冲突。
根据设计资料,收集对应大型机电设备数据,复核机电大型设备吊装孔洞尺寸、预埋件、荷载等条件能否满足大型设备的吊装要求。
结构施工前应完成如电气竖井、水管井等管线集中部位及人防口部等关键部位预留孔洞的深化布置设计,出具竖井预留孔洞大样图。
结构钢筋施工过程中需要随钢筋施工进度进行巡查,随时提醒钢筋作业进行孔洞预留,钢筋施工完毕模板支护之前需要全面核对预留孔洞位置,标高是否与图纸一致,发现问题立即通知土建相关管理人员落实整改,并跟进复查整改后是否合格。
来源:湖北省人民防空工程协会
知识点:地下室人防工程中各种穿防护墙密闭做法
某工程二层人防地下室建筑设计方案
0人已收藏
0人已打赏
免费2人已点赞
分享
地下室设计
返回版块4.69 万条内容 · 405 人订阅
阅读下一篇
设计地下车库需注意的25个结构问题!1、为实现地基反力按直线分布的假定,条形基础的宽(最大弯矩计算宽度)高比应满足≤2.5的要求。 2、挡土墙配筋主要是由垂直于墙面的水平荷载产生的弯矩,仅按受弯计算墙配筋,不考虑剪力和竖向荷载,一般按单筋计算,外侧保护层30,内侧25,受力筋放外侧。 3、地下车库设计基础时可不考虑消防车荷载,仅计算梁板墙配筋时考虑(两个模型)。 4、室外地面活荷载一般按10kN/m2。 5、30吨消防车:轮压60kN,着地面积0.6X0.2米,轴距1.4m, 轮距1.8m;轮压在土中的扩散角取35度,砼中取45度。
回帖成功
经验值 +10
全部回复(0 )
只看楼主 我来说两句抢沙发