|
|
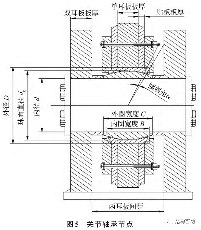
向心关节轴承 |
|
|
|
|
|
推力关节轴承节点 |
|
|
|
|
角接触关节轴承节点 |
|
|
|
|
参考文献:
1.《空间关节轴承复杂节点制作工艺的开发与应用》
2.《建筑钢结构关节轴承节点的研究进展》
3.《大型钢结构关节轴承节点设计及其研究》
4.《关节轴承节点在钢结构中的应用研究综述》

知识点:关节轴承节点
0人已收藏
0人已打赏
免费1人已点赞
分享
结构资料库
返回版块41.29 万条内容 · 424 人订阅
阅读下一篇
百年(100年)建筑结构设计标准转自公众号:Structure and Art 荷载取值 3.1.11 百年公共建筑的地震作用,应符合下列规定: 1 标准设防类和重点设防类的建筑,应按本地区的抗震设防烈度确定。地震作用计算应符合现行国家标准《建筑抗震设计规 范》GB 50011和本标准第5.7节的要求,
回帖成功
经验值 +10
全部回复(0 )
只看楼主 我来说两句抢沙发