一、商铺设计总则
店面设计说明界定:
店面指租赁区域与公共区域的分隔物体,位于租赁线上或租赁区域以内,每层具有特定的高度(具体高度以我广场另行说明为准)。
·商户的店面和室内装修、陈列设计应保证内外视线通透,有利于从室内外公共空间看到店铺内的商品和环境;
·鼓励商户做个性化(异形)门头设计,重点做好店招,橱窗,以及转角玻璃面内的设计;
·自行装修的店铺门头或店招,外线不得超出同轴线最近的柱面或墙面,2800MM高度以下的门套或局部凸出造型不得超出店面玻璃或租赁线以外180MM;(如个别商户局部造型需求,在具体当店分析)
·鼓励商户的入口做斜向切角处理,需注意入口的地面材质要与门头相呼应。
个性化店面:

·店面内包含的橱窗设计应体现品牌的文化和特质,简洁明了地展示商品,设计相应的道具和场景(地台——烤漆面层、背架、隔断等);商户不可直接在橱窗或幕墙玻璃背面粘贴广告画,亦不可在橱窗或玻璃墙后方满布不透明的广告画或衬板,完全阻断视线.转角的玻璃面内建议做橱窗设计,并加大灯光照度;
二、店面管控要点
1、店面设计主要原则
- 高档次及高质量的装修材料
现代及高雅的设计
- 具震撼力及吸引力的入口设计
现代及雅致的标识
- 戏剧性的橱窗展示、大型海报灯箱
生动的店面照明及照明特色
视觉通透性延伸至店内
- 富吸引力的店内设计及环境照明效果
高质量的施工
- 富创造力的产品陈设
设计原则:
- 对商铺店面进行创新及独一无二的设计,结合陈列设施、海报图案及其它设计特点,呈现独具吸引力的入口设计概念。
- 不允许使用单调乏味的全玻璃式橱窗及水平门楣式的店面设计,须将陈列设施融入到整个店面的设计中。
- 创造独特的“三维立体式”店面设计,将富有想象力的吊顶、地面装饰、边墙、照明及标识等结合,并融入为整体设计中。
不允许的设计:
推荐的设计:
2、店面材质
商户在设计时需提前考虑使用材料的消防防火标准要求;鼓励使用新型的材料.
建议采用以下材质:
- 高质量的钢化玻璃、玻璃砖及烤漆玻璃
- 金属如不锈钢、镜子及抛光完成面
- 经处理的石材如抛光花岗岩、大理石或岩石
- 高质量、颜色经典的通体砖/瓷砖或马赛克
- 自然、着深色漆、刷漆的木饰面
- 高质量、带高雅花案的布料饰面
- 素雅色调,亮或带质感的漆饰面
3、店面控制区域
- 建议店面设计做突出考虑,向内延伸1.5米的控制区域以创造富有立体感的三维店面设计。
- 允许在租赁线外局部突出180mm的全高造型(如图)。
- 突出区域可采用的设计元素包括标识、雨篷、橱窗陈列、展示柜或海报灯箱等。
- 突出区域应被用于展现设计的特点并提升店面造型的价值,而非增加租赁面积。
- 突出式的设计可位于标定范围内的任何位置,但不可超过突出区域范围的50%。
- 任何突出式的设计需以同等(或更大)的比例延伸入租区以创造出具深度/体积的设计。
- 突出区域的设计不能影响或替换业主的天花及地面。
控制区域:
- 控制区域为自租赁线向内延伸的1.5米范围。
- 设计须强调陈列设施、吊顶、地面装饰、边墙、照明及标识/标志等。
全高玻璃橱窗需采用隐形“U”型槽嵌入天花,地面及墙面。
- 需安装至少60mm高度的踢脚线,以使店面的设计不受损坏。踢脚线的材料需选用耐久性能的,如不锈钢、电镀喷漆、石材或实木材料。
- 安装标识、灯具及用电接驳点所使用的相关附属设施、电线、铁夹、折合器或其它配件须做隐藏处理。
突出区域:
- 建议店面设计做突出考虑,以创造富有立体感的三维店面。
- 突出式的三维立体设计可用于标识,雨篷及陈列设施如展示柜、海报等。
- 突出式的设计可位于标定范围内的任何位置,但不得超过突出区域范围的50%。
- 造型设计外突出尺寸不可超过租赁线180mm,且不能进入相邻租户的突出区内。
- 任何突出式的设计需以同等(或更大)的比例延伸入租区以创造出具深度/体积的设计。
- 突出区域的设计如影响或替换公共区域的完成面及设施,须在撤场时还原。
入口宽度及入口陈列:
入口宽度应占整个店面宽度的60%至70%之间。
- 鼓励租户采用设计独特的陈列橱窗及陈列饰物,以吸引更多的潜在顾客。
- 建议将关闭线设于租赁线之后,鼓励将关闭形式设计为店面造型的一部分。
- 如采用透明多孔镂空式卷帘门,卷帘闸箱必须安装在吊顶或造型之内,并保持隐藏式处理。
- 卷帘轨道须隐藏在店面造型内,遇到直角、双直角边的入口时,关闭线置于斜边上,不使用活动轨道。
- 控制器安装在店面造型内侧面,高度需保持在离地300mm。
-(如有)服务台、货品陈列道具,应设置在租赁线后的800mm处。
4、色彩设计导则
·步行街公共部分装饰色彩系统,商户可参考此图进行配色:
·标准店招可选择色彩(包括但不限于) 自行装修的商户可据此做为参考色彩配色。
中庭店铺店招、门头色彩不建议出现大面积纯色(红、黄、蓝、绿)、对比色、互补色和紫色。纯色使用可以点缀为主,面积不得超过整体色彩面积10%。建议鲜艳色彩可使用混合色,如粉红、洋红等时尚颜色,且宜在橱窗、广告和玻璃内表现。
其它区域店铺门头、店招在规定的基础上可适当放宽设计条件,但仍应以突出橱窗和商户商业品味为主,杜绝艳俗色彩。
5、广告灯箱设计导则
·亮度: 要求亮度均匀,且宜与橱窗或透过玻璃门、隔墙的亮度协调,避免产生强烈的亮度对比。
·位置:无论活动与否,不得超出同轴线最近的柱面或墙面(图24),尽量设计在玻璃隔墙内。
·色彩:同色彩设计原则。
·画面要求:以商品画面或模特为主,文字为辅,材料为高清度灯片。
商铺内广告灯箱的内容应为品牌宣传,画面应简洁、高雅、大气,不得出现商品目录、地址电话、菜单、菜品介绍等琐碎和零乱的内容,色彩切忌繁杂。
6、餐饮店铺设计管控要点
·一、二层餐饮店铺混合在精品区中,要求其起到画龙点睛的作用,其门面及店招设计原则为即突出又融会贯通。多开间商铺的门楣参照《多开间商铺设计导则》。中庭餐饮设计原则为:店招及门头不使用大面积跳跃的颜色,如红、黄、蓝、绿等/创造中庭统一又有特点的界面/为餐饮店铺考虑必要的灯箱/厨房不靠步行街等,如果厨房在步行街或中庭,则必须在外部采用灯箱或橱窗设计,以弱化墙面作用;商铺的入口尽可能做3D化处理,门套内置,切出部分外侧等候区。
·端头店铺由商户自行设计,尽量考虑开放式经营,店招等店面灯光可以采用变换式的,并且配置不同于其它店铺的桌椅和绿植,色彩可跳跃,但须有品味。厨房不宜靠步行街,如有此类布置,必须在靠步行街处有开放式厨房的立面设计;
·其它餐饮店铺均可由商户自行设计,单开间店铺不得拆改原设计柱子;双开间(含)以上店铺可自行设计柱面;对于正餐业态,允许有适当封闭的开间,并做好靠步行街的立面设计;
·烧烤类或其它重餐业态严禁使用敞开式门头。
7、围挡设计导则
平面设计:
·除品牌LOGO以外,英文(其他任何语言)不能单独出现,须配合相应的中文翻译(英文每个单词的首字母大写,其余小写)
·除已注册的繁体字商标外,凡出现中文字体均需使用“简体中文”
·围挡仅可作为开业提示,为不能当作广告位来使用。因此,不得出现联系电话,通讯地址,人员招聘等信息,也不得出现介绍性文字内容。
·围挡画面为品牌的宣传图片,围挡右下角应有“万达广场”LOGO。
·背胶喷绘画面需要覆哑膜,打印精度不低于360dpi。
结构及材质:
·如利用店铺现有玻璃门,玻璃隔墙,橱窗做围挡画面支撑结构,围挡画面需使用可移背胶进行制作(车身贴:见图A)限未开业广场。
·如在店铺外部加围板材做围挡换面支撑结构,装修围挡材料主架用轻钢龙骨(间距不得大于40CM),封面用石膏板且不得有过大的缝隙,喷绘需清晰、干净、平整。轻钢龙骨、石膏板作骨架,转角用有型木线条包边,木线条规格:5*50mm,颜色可根据画面颜色进行搭配,抛光刷亮漆。地面垫石膏板、地毯保护地砖、防滑,装置球型手锁。围挡内地面先铺设地毯,后铺设石膏板保护地面石材。(见图B)
画面设计:
·一个店铺围档画面只允许设计一个LOGO,LOGO单体字高500mm。
·设计需要考虑左右各600mm侧板,画面依据实际张贴位置作布局
·文字需与画面整体设计,突出主题,不允许出现招聘广告语及大段文字描述。
·开门位置不允许破坏画面主体和LOGO,画面整体必须到顶。
·背胶喷绘画面需要覆哑膜,打印精度不低于360dpi。
围板施工:
·石膏板应竖向错缝排列,接缝处贴穿孔胶带,腻子刮平,刷白色乳胶漆。
·选用隐型门锁,避免正面突出造型。
四、店面设计导则
1、店招设计原则
(1)店招材质要求:
门头与店招应使用华贵,精致的材料(烤漆玻璃,不锈钢,高硬度压克力,高档装饰板等),不可使用粗糙,低档的材料(乳胶漆,吸塑,人造复合地板,铝塑板等),鼓励采用无厚重边框式设计;
·店招上的LOGO必须发光,建议采用LED类发光均匀,使用时间长,能耗及损坏率低的·灯具,所有灯具应为隐蔽式(包括所有整流器,固定类镙丝镙帽及电线),且所有灯光类标识均需接入我广场的控制系统(视具体情况而定),开关时间由我广场规定,电源仍由商户提供;
·门套内建议增加LED灯带。
·门头店招不得使用吸塑灯箱。
(2)店招与铺门标高控制
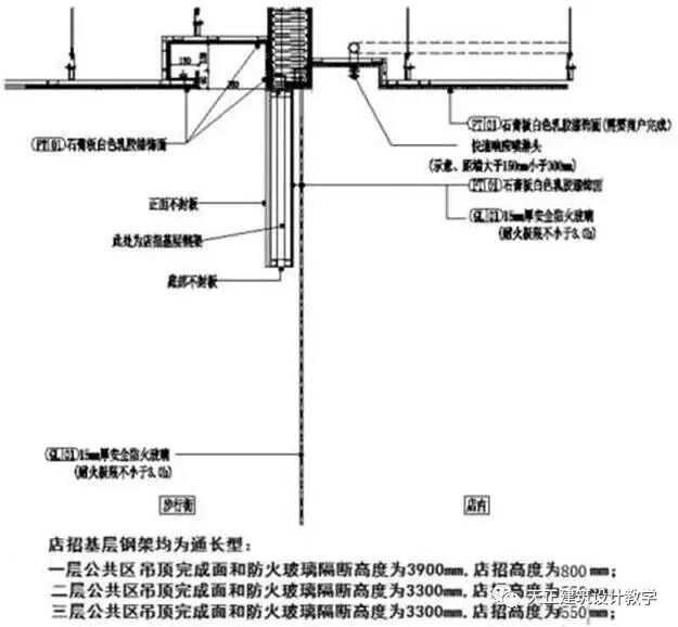
1.步行街首层商铺店招控制标准为:
(1)对于首层公区吊顶下净高3.9M,独立店招高度800MM,通长店招750mm,门高3100MM;
(2)对于首层公区吊顶下净高4-4.1M,独立店招高度900MM,通长店招800mm,门高3100MM;
(3)对于首层公区吊顶下净高4.2M,店招高度全部为900MM,门高3200MM;
2.步行街二层公区吊顶下净高3.3M,店招控制控制标准为:
(1)“通长”店招高度550MM,门高2700MM;
(2)独立店招高度600 MM,门高2700MM;
步行街二层公区吊顶下净高3.6M,店招控制控制标准为:
(1)“通长”店招高度650MM,门高2900MM;
(2)独立店招高度700 MM,门高2900MM;
3.步行街三层及以上餐饮层公区吊顶下净高3.3M,店招控制控制标准为(三层只做为参考标准,具体以具体审核为准):
(1)“通长”店招高度550MM,门高2700MM;
(2)独立店招高度600 MM,门高2700MM;

(3)店招尺寸说明
注:店招实际尺寸若与标准不符,则按比例增减尺寸
(4)门楣LOGO尺寸规范
店招各元素落位,按实际尺寸作相应调整
LOGO位置应与中心线对齐;
LOGO的高度为店招高度的1/2内为宜(2013年新标准)
具体异形设计一店一议。





(5)标识文字工艺类型





(6)店招结构说明


·以下为结合前表各种LOGO文字类型制作的综合性个性招牌实例,
(如正面发光+背打光,压边字+侧发光等形式):


2 、商户外立面形象设计处理
(1) 餐饮店面管控主要原则
餐饮定位为:
1.园林式、景观类的入口场景风格
2.强烈的高端会所感
3.增加立体式的三维LOGO, 无约束的设计方式,
4.增加独立橱窗,如庭院式的风格,敞开式做园林的场景式设计
5.带主题性的餐饮橱窗展示及海报画面
6.生动的店面照明及照明特色
7.视觉通透性至店内
8.富吸引力的店内设计及环境照明效果
9.高质量的材料及施工
10.富创造力的产品陈设
11.不允许水平式门楣
12.前卫及有创意的外立面设计
13.现代及独特且丰富的装修材料
14.具震撼力及吸引力的入口设计
15.富创造性及标志性的标识
16.不允许单调的玻璃店面造型

A、餐饮门楣设计原则
·餐饮类店招大部分不用做横眉,可做独立式的立柱设计,如:独立景观小品类logo柱,独立logo柱墙设计,顶部下挂立体logo柱,或在园林景观内做整体氛围处理;
·门楣作为万达餐饮商铺基础交房标准,在设计阶段需首先考虑对门楣的拆改或设计弱化,不允许租户将水平门楣作为最终设计完成形式;
·门楣可以作为局部收口或表现形式,但总长不能超过店铺宽度的40%;
·必须强调装饰面从门楣的600MM往下延伸,做整体性的外立面设计;同时强调灯光和材质的层次。

B、轻餐饮设计要求
·入口及店铺整体造型需具备品牌个性,店铺立面设计需具备视觉冲击力和话题性;
·此类设计因考虑与整体步行街的融合,尽力往高端类的小资情调\咖啡会馆\造型创造\色调中性\材质突破\logo摒弃以往偏大的风格,朝格调方式,融合整体为提升点。
·纯门楣的店面形式不被允许;
·材质及颜色需有层次变化,店面需有3种以上的材质或颜色的变幻过渡;
·室内道具、灯光、售卖区等设计应强调区域功能,注重墙面设计。

C、餐饮租户玻璃店面设计要求
·我司餐饮租户通道玻璃为C类防火玻璃,但租户可在玻璃内外设计装饰造型对玻璃加以艺术修饰;
·鼓励对原有玻璃做设计拆改,但相应替换材质均需达到A类防火标准;
·为避免餐饮租户外立面设计单调,要求店面长度超过15米的租户均需设计局部形象墙面;
·玻璃必须得到有效装饰,不允许大面积清玻;

D、餐饮局部实墙设计要求
·为避免餐饮租户外立面因纯玻璃+门楣的设计而显得单调,故要求店面长度超过15米的租户均需设计局部形象墙面;
·鼓励对租户原有玻璃做设计拆改,但相应墙面替换材质均需达到A类防火标准;
·局部厨房区域实墙若靠近商场步行街,则厨房墙面的对外形象均需达到形象墙的标准;
墙面设计需富有艺术层次,并建议做局部发光展示造型,并安装上下辅助照明,保证墙面照度,
·部分品牌可根据入口设计LOGO墙或菜品展示墙,墙面建议设计全高至顶面,以打破原有水平门楣;
·若保留原有防火玻璃,在玻璃外设计的造型墙的厚度需控制在180MM以内。

E、餐饮店铺内须设置顾客等待区
·餐饮店铺内须设置顾客等待区,不得占用公共通道。
·等待区域必须与整体造型融入设计,在设计前必须考虑进去

等待座位与店面设计结合(参考)

U-Town Mall Beijing

(2) 多开间商铺设计导则
·多开间商铺应尽量在每一开间采取不同的门楣形式,如一跨是统长门楣,另一跨可以做落地橱窗、全高玻璃+局部橱窗、灯箱等,但要预留空隙直接看到商铺内的情况。店招LOGO按照每两个开间至多设一处的原则布置。
·每一开间的立面形式应有明显的区别,不能简单复制。

A、一、二层双开间或三开间精品店铺
双开间商铺必须保证至少一个开间设计店面及入口,另一个开间对外可设计为玻璃内侧的橱窗或局部灯箱。但原入口若因需符合消防要求则必须保持开口大小,门可应商户要求适当侧移。门侧移的位置以不影响以后单开间店铺的招租使用为前提。且尽量不改变靠步行街的柱面设计, 如需重新设计柱面,饰面材料的档次和颜色必须和原设计材料接近。

B、一、二层四开间(含)以上精品店铺
此类店铺需自行设计店招或门头,但手法宜简洁大方,店招仍然以字体为主,广告灯箱的设计宜使用柔和色彩,切忌使用过纯的颜色和过绚的灯光设计(此类设计手法可在橱窗内消化);色彩组合应符合购物中心整体形象;可自行设计开间之间的柱子,饰面色调须与原柱面色调保持一致,柱子的装饰材料应高于甲方原来装饰的标准;
至少一个开间的橱窗位置,鼓励多做特色橱窗,对色彩的需求应在橱窗内解决;店内货品布置应整洁、讲究,有品味,切忌杂乱;
2开间以上的商户,为突出品牌形象的完整性,建议对中间的柱子进行包装,包柱子的,原则上不超出原柱面结构层面10CM,包柱材料应优于我司原来采用的装饰材料(米黄色石材或烤漆玻璃)。

(3) 外墙体玻璃设计处理



3、商户内装形象设计处理
(1) 商铺天花设计
·不允许无吊顶设计、不允许未做顶部处理的敞开式天花设计;
·鼓励所有商铺创造出富想象力的天花设计及造型,鼓励多层次多材质的造型吊顶;
·设计控制区部分的天花高度不得低于店面玻璃顶线;
·在阀门、开关及需维护的设备处需设置天花检修口,我广场将特别说明上述位置。





(2)、商铺地面设计
·商户店门入口的铺地应与公共区域同高,不可装设门槛或减速板条,允许使用细金属条;
·不得使用陶砖、塑胶地板及塑胶或橡胶踢脚,此类材料仅限于在租户后勤区使用;
·地面装修必须平整、光滑,不得出现高于3毫米的坎或超过1:20的坡;
·入口地面装饰应富有吸引力,并与整个店面设计及公共区域地面互相结合;
·可采用不同的地面材料、颜色、图案及高度加以划分商铺内的空间或区域;
出于安全考虑,所选用的地砖,如有,应经防滑处理;
地面设计需考虑材料的膨胀系数和楼宇之间的伸缩缝。






(3)、商铺照明设计
·商户应保证室内设计控制区的照度高于该店面外公共区域的照度(公共区域的照度350LUX);
·租户应保证橱窗内有足够的照度(1000 LUX以上,自然色温);
·商户租赁范围内不得只采用单一的荧光灯具;所有灯具不得产生眩目的光线;不得使用裸露的白炽灯或荧光灯。在公共区域看不到安装轨道的前提下,橱窗部分允许使用轨道灯(确需安装裸露的轨道灯,应加以说明并取得我司的书面同意)。一般情况下,光色温以暖色(色温2700K)为宜。




(4)、墙面、立柱处理(隔断墙)
·墙面推荐并鼓励采用新颖、独特的装饰材料作饰面处理。如:艺术/质感的石膏板、墙砖、墙纸设计等。
·墙面展示架或展柜到天花下边缘的墙体部分需做设计处理,应设计为符合VI元素墙纸或其他造型,不建议采用乳胶漆,且鼓励使用多种材质或造型。不允许留白或者直接粘贴劣质单调的喷绘。
·不允许将墙面/立柱作单调处理,以致于将室内视觉效果压低,应融入店面整体设计中。
·如柱面有消防栓应延续店铺风格整体包饰,但须确保消防栓正常使用和当地消防设计要求。
形象墙:
·形象墙设计需与店面整体风格相融合。
·形象墙LOGO需发光设计,并有针对性单独照明。


(5)、商品陈列及展柜设计
·陈列设施/橱窗及图案应与店面设计作为一个整体来考虑,并需占整个店面宽度的30%至40%。
·控制区域应结合陈列橱窗、饰物、展柜及海报等,以吸引更多的潜在顾客。
·陈列造型的设计与装饰须以简洁及醒目为主,同时采用多种类型、优质装饰材料并应进行细部加工。
·商品的陈列展示应有高低层次、错落有致(如重叠排列、前后排列、并列排列等),结合海报、模特及其它道具等设施,使顾客充满兴趣并激起他们的探索情趣。
·商品也应按类别、颜色及主题进行分类陈列,以取得组合上的创新及平衡感。
·推荐在商铺的后墙部分设置大型海报或独特的陈列饰物突出背景墙,创造内部空间焦点,吸引潜在的顾客。
·平面功能布置不允许大面积空旷浪费面积设计,以增加销售机会。
·不允许使用二手陈列柜。
·不建议使用宝丽布作为灯箱画面材质。
·收银台嵌入式设计,确保线路无外露


4、商户收边收口管控要求
(1)相邻租户收口处理方式
— 原则上一个柱面或墙面由一家租户做包饰设计。
— 若双方均要求利用柱面做装饰,则在两家租户间选择设计独特、材质等级高、施工工艺精湛的租户进行包柱。
— 若发生相邻租户均不愿承担柱面装饰工程,则要求双方按柱中线或墙中线分别各自装饰。

(2)、柱面及消防栓管控要求
A、店面外立面涉及消防栓的处理方式
—需由租户设计消防栓包饰方案,并在施工前得到我司商管公司的设计及施工批准。
—消防栓墙面的装饰需与租户店面设计融合,材质一致。
—租户不允许擅自封闭消防栓的开门,外装饰的开门大小必须大于等于原消防栓开门尺寸。
—租户需保留原有消防栓所含提醒文字、报警开关、警铃等设备。

5、商铺其他设计导则
·商品不得陈列在店面玻璃以外,亦不得在店面玻璃以外设置任何岛柜或店员叫卖。
·对外的橱窗或玻璃幕墙后方之广告板、衬板等实面应位于橱窗玻璃之内0.5米以上。
·商户不得增加、移动或取消店铺的后勤消防疏散门。
·商户在装修过程中,不得损坏、破坏或修改建筑结构系统,除非得到我司批准。
·商户在装修后确保其周边的成品材料没有受到破坏。
·无我司及政府消防主管部门批准,商户不得移动或者取消任何消防、机电设施设备。
·U型玻璃幕墙后方的商户不得拆除、遮挡幕墙后方之垂壁及室外泛光照明设施。
·商户设计过程中因特殊原因不能符合上述规定的,因事先与我司进行沟通,在得到书面同意后方可采用。
·未经我司批准,商户不得以任何名义在靠步行街的玻璃隔墙和玻璃门上贴防撞贴或其它装饰贴。
非营业时间闭店设备设计:
·如果租户店面采用我广场提供的店面玻璃及玻璃门,租户不可改变店面拉手的形式。商户装修区域仅限于店面玻璃或租赁线以内。商铺的门必须朝内开启;
·商户如需改变我广场原设定的玻璃门位置,须在与我广场交换资料时提出;
·商户如设计个性店面,在非营业时间有闭店需求,则应符合以下要求并获得我广场批准:
a)闭店方式(卷帘,折叠门,移门等)须得到我司批准,且必须安装在租赁范围内;
b)必须保持原设计的店面高度,不得压低或遮挡店面;
c)不允许增加永久性的卷帘立柱(隐藏式);
d)必须采用关闭后仍能保持内外视线通畅的高品质透明材质的卷帘,且由我广场审核批准,不得采用普通钢质卷帘或钢丝网卷帘(若有消防特殊要求的除外)。

五、总体工作要求
1、图纸提交要求
(1)主要平、立、剖面图(包括店面、橱窗和门头,注明尺寸、材质);
(2)彩色鸟瞰图、透视效果图、天花及照明布置图(至少有从外看店面及表达室内装修效果两个视角),最好同时提供商户现有的橱窗及招牌标识图片;
(3)主要材料和颜色的样品;
(4)装饰吊顶平面图;
(4)装饰墙身图;
(5)装饰地面图;
(6)厨房位置/布置图,电器系统图,消防/空调系统图,上下水系统图;
(7)涉及结构变动的,结构图(须具备设计资质的供方提供);
(8)施工进度表。
(9).围挡画设计电子文件
在装修前,租户须提交图纸供业主审批。请注意只接受“JPG”或“PDF”文档格式的电子版,并且图像需具有高精度。
注意事项:
· 不符合上述规定的设计方案,将作为特殊案例,并须经业主认可后方可执行。本租户商铺设计指南仅作参考用途,
租户的具体设计方案必须提交业主认可。
·租户必须确保其设计完全符合政府有关部门规定。有关部门的批文必须在装修前提交至业主处。
· 租户必须确保其设计及装修工作不会对已建设施造成不良影响,且不阻挡消防通道的畅通。
· 租户需现场确认所有装修工作的尺寸。


2、图纸提交时间
(1)平面布置图:进场前10天需提报,退回修改需要1天内返回;
(2)店招效果图:
退回小调整需2天内返回;
退回修改需3天内返回;
(3)全套效果图:需于进场前3天提报;
知识点:万达商铺设计尺寸规范+要点总结
0人已收藏
0人已打赏
免费2人已点赞
分享
公共建筑设计
返回版块51.17 万条内容 · 447 人订阅
阅读下一篇
总结建筑设计过程中的141个问题及应对针对现有设计中一些常见问题作一总结,杜绝设计常见错、漏、碰、缺等问题出现,提高设计施工质量,减少不必要的损失。 消防设计(6大问题) 存在问题1:消防车道没有4米宽、没有回车场或回车道、园林种树影响消防车辆。 解决措施:按照规范执行,消防车道宽度执行规范,消防车回车场如果上部做草坪,下部构造设计必须符合消防车通行要求,园林总图应经建筑设计人员审核,并报消防部门通过。 存在问题2:电梯前室开窗面积不够3平方米。
回帖成功
经验值 +10
全部回复(1 )
只看楼主 我来说两句 抢板凳学习了,学习了,学习才能强国~~
回复 举报