两千年前远嫁匈奴的汉朝公主王昭君是中国民族和谐的典范,昭君青冢夯土而成,其上曾有木构建筑,“土与木”是昭君青冢的场域特征,也是中国古建筑的代名词。昭君博物馆位于中国内蒙昭君青冢景区的轴线南端,两个覆斗状的建筑体量形成V形缺口,巧妙地将轴线尽端的昭君青冢影像叠入立面,楔状下沉广场通过标高的升降引发游客与青冢间的视觉变化,这些都使博物馆与历史遗迹间形成了良好的时空对话。建筑运用当代技术重构新的“土木”,外墙采用了仿夯土的特种混凝土挂板,入口棚架与遮阳采用胶合竹材料,传承了中国建筑的精神。
昭君博物馆概况
关于选址
昭君博物院景区位于内蒙古呼和浩特市南郊6公里处,现有场地以青冢为视觉中心,沿中央神道主轴两侧建有原和亲园、匈奴博物馆等建筑。博物馆新馆选址在神道南侧,守住神道两端,与青冢遥相呼应,并且串联整个场地。新馆不单作为旧馆的升级,也起到景区大门的作用。新馆设计为一种谦逊的姿态,进行自我弱化,降低高度、调整虚实以凸显北侧的昭君青冢,青冢与新馆形成和谐的主次关系。同时新馆的外轮廓成为青冢的天然景框。

中轴线上博物馆与青冢的共生关系
昭君博物馆的选址于昭君青冢轴线的南端,按照我国文保规划的现状,这样的方案选址一般很难实现。但由于青冢地块局促,昭君博物馆又很难在和文物区完全不相干的位置上建造;现状在青冢南延轴线两侧已建有近现代建筑,基本上呈由北向南历史迭代向下的过程,昭君博物馆正好处于近现代历史延续的位置。

昭君博物馆区位图
新馆地处整个景区的南延和轴线起点,不仅要和青冢产生某种时空对话的关系,还要和近现代历次叠建而成的轴线产生关系。同时原有景区级别从4A提至5A,新馆又承载了包括游客中心、餐饮、销售旅游商品等一系列功能。因此这个选址为设计带来了更多挑战。

园区总图与园区鸟瞰
博物馆以两个覆斗状体量分列在中轴两侧,两个锥体各自旋转45度,对角以廊桥相连形成对青冢的环抱态势,体现了昭君文化中“和”的精神;建筑的虚实处理形成了新馆与青冢和谐的主次关系,同时新馆的外轮廓成为青冢的天然景框,两个体量间V形的缺口巧妙地将远处青冢的影像嵌入到新馆立面当中,使得在城市道路上也可以窥见青冢的影像,成为穿越时空的时代标志。

建筑体量生成和昭君青冢的关系

从青冢延伸而来的轴线(由北向南看)

从青冢延伸而来的轴线(由南向北看)
昭君博物馆是为内蒙古自治区七十年大庆而建设的。由于种种原因,建筑师从接到这个项目到预计完工只有两年,留给设计的时间只有很短的几个月,甚至很多设计问题会在施工过程中解决。于是我们要构筑一个快速建造和搭建的体系,让它能够在短时间内完成。快速搭建和建筑的相对永恒性之间要取得一个平衡,这对于建筑师是非常大的挑战。
土木印象
关于形式,设计考虑得并不多,并力求让房子回归一个最为低调或者最为自然的状态。项目的主持建筑师曹晓昕说:昭君博物馆和我以前做的房子,或者说和所谓绝大部分现代建筑有很大差异,看不到太多的手法。我想用材料营造这个空间,所有的建筑语言也都是属于这个材料的语言,与其说是对形式的构想,不如说是对材料的构想。
昭君青冢是由人工积土夯筑而成,据考古推断,其上曾经有木构楼阁建筑。我们当今再建的时候,更愿意用一种新“土木”跟它取得材料上的对话。当然,现在不适合再用夯土,我们用混凝土作为新“土”来构建整栋建筑的表皮,同时采用了胶合竹材料的竹钢作为“木”的对应。

“土”与“木”的结合
混凝土实际上和夯土具有某种相似性,它们都属于冷胶凝性材料,生土在夯土过程中也会加入灰料,产生一些化学变化。昭君博物馆的突破在于抓住了两种材料工艺的相似性,我们也思考用混凝土做“夯土”和真正夯土的差异在哪?由于需要在短期内建造完成,昭君博物馆采用了大量工厂预置的混凝土挂板,板缝干脆没有处理,完全地暴露出来。这暗含着我要表达的技术伦理——这是板而不是真正的夯土。

仿夯土混凝土挂板——新的“土”
我们在竹钢结构的设计中加入大量的斜杆,受拉和受压的这些斜杆形成一个巨大的雨棚作为景区入口。在当下的工艺和快速建造的前提下,胶合木结构之间不可能再采用榫卯连接,而是采用了角件连接,但是通过对构造的设计,只有一些比较细小的铜拴钉的头暴露在外面。这样的工艺暗示既达到了材料的相似性,又保持了现有材料和传统材料的距离,让它们在“像”与“不像”、“熟悉”和“不熟悉”之间去和青冢取得对话和联系。

入口处胶合竹材质的宽大雨棚 —— 新的“木”
空间营造
为了让游客更好体验博物馆与历史遗迹的历史对话,博物馆南侧园区入口处设计了巨大的漏斗形下沉广场,通过标高的变化,引导远方的游客进入并穿越建筑,青冢的图像在游客穿越过程形成“窥见--窥不见--消失--显露--全部呈现”的场景感变化,强化了博物馆与两千多年前的昭君青冢的视觉对话。

入口广场下沉带来与昭君青冢

南侧主入口视角
入口上方连桥以“正负”三角窗将远处的昭君青冢纳入景框,内外景观交融,人工的展品与历史的遗迹巧妙结合。

贯穿园区景观轴线的三角框景窗外部

贯穿园区景观轴线的三角框景窗内部
昭君博物馆的主要功能为收藏、陈列、研究和展示汉匈文化与文物。建筑分为东西两个展厅,东侧昭君生平展厅设计了圆形的中庭空间,水平的曲线坡道和走廊营造出舒缓柔美的空间气质;西侧匈奴历史展厅设计了矩形中庭空间,整面的夯土墙从地面一直贯穿到天窗下部,天窗被密肋切分成数个三角形窗格,强调了硬朗与凝重的空间主题。

昭君主题展馆中庭空间

负一层平面图
1 游客服务中心 2 咖啡厅 3 门厅 4 中庭 5 临时展厅 5 临时展厅

一层平面图
1 展厅 2 中庭上空 3 连廊 4 室外平台 5 贵宾室

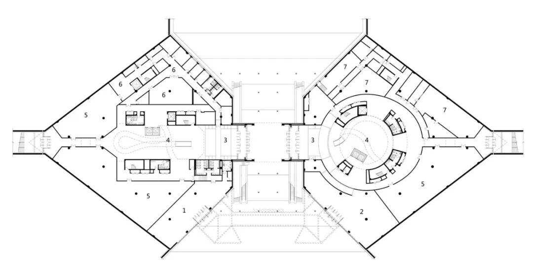
二层平面图
1 展厅 2 中庭上空 3 连廊

剖面图

展厅空间
室内公共空间采用了“室景”的设计概念,日光下的连续坡道明确了人的参观流线和导向,同时让人在空间内的不同角度可以获得不同的空间“景像”,恰如中国园林的步移景异。

室内公共空间采用了“室景”的设计概念,日光下的连续坡道明确了人的参观流线和导向,同时让人在空间内的不同角度可以获得不同的空间“景像”,恰如中国园林的步移景异。


悬浮的室内坡道
大地景观
建筑通过下沉一层降低了整体高度,以一种谦虚的姿态弱化自我,覆斗状倾斜的外墙的混凝土挂板延续到场地铺装上,以三角形为模数连续表皮由草植和仿夯土的混凝土交织组成,建构了起伏不定的微观地形,使建筑与基地融合为整体有机的大地景观,博物馆新的“土木”谦虚地与两千多年前的青冢遗迹一同溶嵌在苍茫大地之上。

昭君博物馆顶视图

远眺昭君博物馆

建筑景观一体化设计
作为文物保护区域内的新建建筑,博物馆设计项目通过审慎的建筑空间处理和创新性材质的运用,实现了与历史遗迹的良好对话,突出了昭君青冢的纪念性主题,重塑并提升了景区中轴的整体空间序列。并以综合性的功能满足了博物馆未来发展的需要,对带动当地旅游和提高地方收入起到了积极的意义。

0人已收藏
1人已打赏
免费8人已点赞
分享
公共建筑设计
返回版块51.17 万条内容 · 447 人订阅
阅读下一篇
宁波东钱湖的教育论坛教育/艺术社区宁波东钱湖的教育论坛是一个由会议中心、酒店、美术馆和住宅等设施组成的群落。由于业主从业教育并收藏艺术,因此在该项目中教育与艺术并重。论坛还专门为来访的学者及艺术家建造了四栋“坊宅”,即工坊与住宅的结合,以供他们进行相对长期的研究或创作。设计研究四个坊宅中的三个是张永和于20世纪90年代初在没有业主和基地的情况下首次构思的,设计的焦点是如何模糊古典主义与现代主义之间的界线。这些“纸上建筑”实际上是严肃地对建筑核心问题之一 – 空间 – 的研究,同时也是可建造的方案。坊宅设计的特殊背景使这组建筑成为教育论坛有关艺术研究讨论的参与者。
回帖成功
经验值 +10
全部回复(10 )
只看楼主 我来说两句-
jzhdajia
沙发
2023-01-09 09:04:09
赞同0
-
jianzhudj
板凳
2023-01-09 09:03:09
赞同0
加载更多回归最为自然状态,传承中国建筑精神,谢谢楼主分享好资料谢谢啦。
回复 举报
回归最为自然状态,传承中国建筑精神,谢谢楼主分享好资料谢谢啦。
回复 举报