在道路工程勘测、设计、施工中, 工程测量人员经常需要绘制道路路线的工程图,以指导工程的建设。道路路线工程图主要包括路线平面图、道路纵断面图和横断面图。本章主要介绍道路路线工程图、路线纵断面图和路线横断面图的绘制方法。
1、道路绘图基本知识
在道路工程测量中,需要根据测量的数据,绘制出路线平面图、道路的纵断面图、道路的横断面图,作为道路设计和施工的依据。用AutoCAD绘制道路的纵、横断面图,首先要确定图纸的大小、比例尺、线形、线宽、文字高度、尺寸标注的式样等内容。
2、图幅
图幅是指图纸的幅面大小,也就是指图纸本身的大小规格,图框是图纸上表示绘图范围的边线。每项工程都会有一整套的图纸,为便于装订批、保存和合理使用图纸,国家对图纸幅面进行了规定,见表11-1。表中尺寸代号如图11-1所示。
表1 图幅及图框尺寸
图幅代号 尺寸代号 |
A0 |
A1 |
A2 |
A3 |
A4 |
b×l |
841×1189 |
594×841 |
420×594 |
297×420 |
210×297 |
a |
35 |
35 |
35 |
35 |
25 |
c |
10 |
10 |
10 |
10 |
10 |
根据需要,图纸幅面的长边可以加长,但短边不得加长。长边加长的尺寸应符合有关规定,长边加长时,图幅A0、A2、A4应为150mm的整倍数;图幅A1、A3应为210mm的整倍数。

3、 图线
工程图是线框图,图中的信息都是由线条表示的。为了反映图中不同的内容和分清主次,必须采用不同的线型和线宽来表示。图纸上的实线、虚线、点划线、双点划线、折断线、波浪线等线型适用于不同的场合,同时应符合国家标准的有关规定。图线的宽度应根据图的复杂程度及比例大小,从《道路工程制图标准》规定的线宽系列:0.13mm、0.18mm、0.25mm、0.35mm、0.5mm、0.7mm、1.0mm、1.4mm、2.0mm中选取。基本线宽(b)应根据图样比例和复杂程度确定。
图线有粗、中、细之分。在同一张图纸内,相同比例的图样应采用相同的线宽。在绘图过程中,每张图上的图线线宽不宜超过3种,通常根据所表达的对象的复杂程度、比例的大小来确定基本线宽。线宽组合宜符合表11-2的规定。粗线的宽度若为b,则中线的宽度为0.5b,细线的宽度为0.35b合理的线型比例应当与打印比例保持对应关系。当打印输出比例为1:n时,线型比例应当设置为n。
表2 线宽组合
线宽类型 |
线宽系列(mm) |
||||
b |
1.4 |
1.0 |
0.7 |
0.5 |
0.35 |
0.5b |
0.7 |
0.5 |
0.35 |
0.25 |
0.25 |
0.25b |
0.35 |
0.25 |
0.18(0.2) |
0.13(0.15) |
0.13(0.15) |
图纸图框和标题栏的线宽根据图纸幅面的大小不同二而不同,具体详见表11-3。
表11-3 图纸图框和标题栏线宽(单位:mm)
图纸幅面 |
图框线 |
标题栏外框线 |
标题栏分割线 |
A0,A1 |
1.4 |
0.7 |
0.35 |
A2,A3,A4 |
1.0 |
0.7 |
0.35 |
4、文字
文字、数字、字母和符号是工程图的重要组成部分。采用规定的字体,规定的大小。《道路工程制图标准》规定图中汉字应采用长仿宋体字(又称工程字),并采用国家正式公布的简化字,除有特殊要求外,不得采用繁体字,汉字书写要求采用从左向右、横向书写的格式。
在AutoCAD环境中,汉字字体通常采用Windows系统所带的TrueType字体“仿宋— GB 2312"。在有些图纸中,汉字字体也可采用符合国标的形编译字体。所谓形编译字体是指符合国标的类似手写仿宋体。常见的有Hzdx、shx、Hztxt、shx、Khz、shx等。
图纸上常见的文字高度一般有7种3.5mm、5mm、7mm、10mm、14mm、20mm。文字的宽度比例,即宽高比一般设置为2:3,文字的间距应大于1.5倍的字高,且汉字高度不宜小于3.5mm。
当图样中有需要说明的事项时,需在图样所在图纸的右下角图标上方处加以叙述。该部 分文字应采用“注”字表明,“注”写在叙述事项的左上角,每条“注”的结尾应标句号。说明事项需要划分层次时,第一、二、三层次的编号应分别用阿拉伯数字、带括号的阿拉伯数字及带圆圈的阿拉伯数字标注。当表示数量时,应采用阿拉伯数字书写。如一千零五十米应写成1050m,十二小时应写成12h。分数不得用数字与汉字混合表示,如:五分之一应写成1/5,不得写成5分之l。不够整数位的小数,小数点前应加0定位。
5、比例
道路工程具有组成复杂、长宽高三项尺寸相差悬殊、形状受地形影响大等特点,因此它的图示方法与一般工程不完全相同。它的平面图就是一个带状地形图,纵向断面图是沿公路中心线的纵剖面图,横断面是道路中心线法线方向的断面图,根据这三种图所表示的内容的差异,通常采用的绘图比例各不同,绘图比例的选择,应遵循图面布置合理、均匀、美观的原则,使绘出的图形有较好的可读性。
6、路线平面图的绘制
路线平面图是沿道路路线方向发展的地形图。其作用是表达路线的方向、平面线型(直线和转弯方向)以及路线两侧一定范围内的地形、地物情况,以及结构物的平面位置。道路路线具有狭而长的特点,一般无法把整条路线绘在一张图纸内。通常分段画在多张图纸上,每张图纸上注明序号、张数、指北针和拼接标记。其内容主要包括地形、路线两部分。
7、 地形部分
(1)比例
路线平面图应根据地形的起伏情况采用相应的比例。城镇区一般采用1:500或1:1000,山岭重丘区一般采用1:2000,微丘和平原区一般采用1:5000。
(2)方位
为了表示路线所在地区的方位和路线的走向,在路线平面图上应画出指北针或坐标网。指北针箭头所指为正北方向。坐标方位的规定同地形图,即X轴向为南北方向,向北为正;Y轴向为东西方向,向东为正。
(3)地形
路线平面图中地形起伏情况主要用等高线表示,等高线能反映地面的实际高度、起伏状态,具有一定的立体感,能满足图上分析研究地形的需要。等高线愈密,表示地势愈陡,等高线愈疏,表示地势愈平坦。
(4)地物
地物按比例缩小画在图纸上时,只能用简化的规定符号表示。如在路线平面图中地面上的地物如河流、房屋、道路、桥梁、电力线、植被等,都是按规定图例绘制的。常用的地物图例基本与地形图中的地物图例相同。
8、路线部分
(1)设计路线
在《道路工程制图标准》中规定,道路中心线应采用细点划线表示,路基边缘线应该采用粗实线表示。由于公路路线平面图所采用的比例太小,公路的宽度无法按实际尺寸画出,所以在路线平面图中,设计路线是用粗实线沿着道路中心表示的。
(2)里程桩
为了清楚的看出路线的总长和各段之间的长度,一般在道路中心线上从起点到终点,沿前进方向的左侧注写里程桩(KM)。里程桩分公里桩和百米桩两种。在符号上面注写K1,即表示距路线起点1km,右侧注写百米桩,用桩位,用字头朝向前进方向的阿拉伯数字表示百米数,注写在短线的端部。同时也可均采用垂直于路线的细短线表示公里桩和百米桩,如若桩号为K1+200,则表示距路线起点1.2km。
(3)平曲线
道路路线在平面上是由直线段和曲线段组成的,在路线的转折处应设平曲线。最常见的较简单的平曲线为圆曲线,其主要基本几何要素有:①交点JD,是路线的两直线段的理论交点;②转折角a,是路线前进时向左(az)或向右(ay)偏转的角度;③圆曲线半径R;④切线长T,是切点与交角点之间的长度;⑤外矢距E,是曲线中点到交角点的距离;⑥曲线长L,是曲线两切点之间的弧长。
在路线平面图中,转折处应注写交点代号并依次编号,如JD2表示第2个交点。还要注出曲线段的起点ZY(直圆点)、中点Qz(曲中点)、终点YZ(圆直点)的位置。为了将路线上各段平曲线的几何要素值表示清楚,一般还应在图中的适当位置列出平曲线要素表。如果设置缓和曲线,则将缓和曲线与前、后段直线的切点分别标记为ZH(直缓点)和HZ(缓直点);将圆曲线与前、后段缓和曲线的切点分别标记为HY(缓圆点)和YH(圆缓点)。
9、 用AutoCAD绘制路线平面图的方法
路线平面图的绘制包括两部分内容,一部分是地形图的绘制;另一部分是在地形图上绘制路线中心线。地形图的绘制在第9章中已经讲过,这里主要介绍路线中心线的绘制方法。
(1)数据准备
在绘制路线中心线前,要根据道路设计人员定出的交点和转角数据,计算出平面曲线的相关要素,即圆曲线的半径R,切线长T,曲线长L,外矢距E。计算结果如表11-4所示。
表4 路面平曲线要素参数
交点 |
a |
R |
T |
E |
|
az |
ay |
||||
JD1 |
39°21′21″ |
150 |
53.64 |
9.30 |
|
JD2 |
32°48′36″ |
150 |
44.16 |
6.37 |
|
则有关设计数据如下:
路线导线的起始点、交点的坐标以及转折角、圆曲线半径、曲线的类型如下:
QD(1105.353,518.977)为路线的起点。
JD1(1338.254,455.322),az=39°21′21″,R=150,T=53.64,圆曲线。
JD2(1520.786,530.204),ay=32°48′36″,R=150,T=44.16,圆曲线。
ZD(1710.756,460.747)为路线的终点。
在实际工作中路线导线的坐标数据都是用Excel表格存放。这样简化了在绘图时输入坐标的麻烦,在Excel表格中编辑导线点坐标对,如图11-2所示,选中D2栏,输入公式“C2&","&B2”,按回车键,系统自动生成了所需要的坐标对。选中D2栏,将光标指向第二栏右下角,系统出现黑色小十字标记,按住鼠标左键向下拖动十字标记,一直到ZD,D2栏就自动生成了对调后的各交点的坐标对,并将他们依次复制下来。

(2)设置图形单位
进入绘图工作界面后,可按照提供的相应命令来完成图形单位的设置。具体操作步骤如下:
1)选择“格式”菜单下的“单位”命令或直接在命令行中输入“Units”按回车键,系统弹出“图形单位”对话框。
2)在“长度”选项组中,在“类型”下拉列表框中选择“小数”,在“精度”下拉列表框中选择0。
3)在“角度”选项组中,在“类型”下拉列表框中选择“十进制读数”,在“精度”设为“0.00”。
4)对测角的“方向控制”,就以AutoCAD2008的默认设置,图形正右侧(向东的方向)为0°。
5)在“插入比例”选项组中,用于缩放插入内容的单位设为“毫米”。
其实以上这些设置在绘制地形图前都已经设置完毕。
(3)设置图层和文字式样
在绘制道路中线时要在地形图图层设置的基础上,增加路线中线层(zhongxian),颜色为红色,线宽设为1.0(粗实线);路线导线层(daoxian),颜色为白,线宽默认;标注线层(bzhxian),线宽0.25(细实线);文字注释层(wenzi),文字式样设置为字体是txt.shx,大字体gbcbig.shx,高度为10,宽高比为0.7。
(4)绘制路线中心线
1)绘制路线导线:将“daoxian'’图层置为当前层,使用多段线命令Spline来绘制, 各导线点的坐标不用从键盘输入,而是用图11-3所示Excel表中D列的坐标数据,即在 AutoCAD执行Pline命令,要求输入起点时,将Excel表中D2列的坐标数据复制后粘贴于此,AutoCAD自动依次读取各点坐标值,绘制出一个多段线。执行过程如下:
命令: _pline
指定起点: 1105.353,518.977
当前线宽为 0
指定下一个点或 [圆弧(A)/半宽(H)/长度(L)/放弃(U)/宽度(W)]: 1338.254,455.322
指定下一点或 [圆弧(A)/闭合(C)/半宽(H)/长度(L)/放弃(U)/宽度(W)]: 1520.786,530.204
指定下一点或 [圆弧(A)/闭合(C)/半宽(H)/长度(L)/放弃(U)/宽度(W)]: 1710.756,460.747
指定下一点或 [圆弧(A)/闭合(C)/半宽(H)/长度(L)/放弃(U)/宽度(W)]:(按Esc或回车键退出)。
2)确定平曲线上的主点:路线在JDl,JD2处的转弯都是圆曲线,要绘出这些曲线,首先要定出曲线上的主点位置。以JDl处为例,介绍确定主点位置的方法。新建一个“assist”(辅助)图层,颜色设为蓝色,将其置为当前层。
① 绘制JDl处转折角平分线JDlP;
② 确定QZ点:从JDl开始,沿JDlP向P方向量取外矢距的长度,此点即为QZ点。具体操作如下:
命令:_line指定第一点:(用鼠标捕捉JDl点,并拾取,)
指定下一点或[放弃(U)]:9.30(用鼠标捕捉P点,不拾取,输入长度9.30,即得到QZ点。)
③ 确定YZ点:将“zhongxian”层置为当前层。用绘制圆弧命令Arc,用“起点、圆 心、角度”选项,起点为QZ点,从QZ点向P量取圆曲线的半径300,得到圆心,所对应的圆心角是az/2=19.6779°,这样绘出的圆弧的另一个端点就是YH点。具体操作如下:
执行“绘图”菜单下的“圆弧”命令中的“起点、圆心、角度”命令,命令行提示:
命令: _arc 指定圆弧的起点或 [圆心(C)]: (用鼠标捕捉QZ点,并拾取)
指定圆弧的第二个点或 [圆心(C)/端点(E)]: (输入c,指定圆弧的圆心)
指定圆弧的圆心: 300(用鼠标捕捉P点,但不拾取,输入长度即圆半径及=150)
指定圆弧的端点或 [角度(A)/弦长(L)]: (输入a,以便输入圆弧夹角)
指定包含角: 输入19.6779,则绘出的圆弧末端即YZ点。
③ 确定ZY点:ZY点与YZ点相对于角平分线DJlP对称,所以可用镜像的方法得到ZY点。
这样就确定了第一个交角点JDl处的平曲线各主点。用相同的操作方法,确定出JD2处的平曲线的各主点。将点样式设置成“十字”。删除所有的辅助线即得到如图11-3所示的图形。

3)连接路线中线的直接段:曲线绘制完成以后,使用Line命令,连接路线中线的各直线段。
经过以上步骤,路线中线就绘制完成。这样绘出的路线是一个个的图形单元,AutoCAD中提供了对象合并的功能,但是还有局限性,只能合并同一类型的图形单元,无法将直线、样条曲线和圆弧合并为一个对象。
(4)绘制特征点位置线、里程桩线、百米桩线并标注文字:
1)绘制特征点位置线:设置“bzhuxian”层为当前层。用偏移命令,将路线中线向上偏移5个图形单位。
用绘制直线命令Line,在路线上的每一个主点处绘制短直线,分别与路线导线和上侧的偏移线垂直相交。以ZY点上的位置线为例:
命令:line指定第一点:(用鼠标拾取ZH点)
指定下一点或[放弃(U)]:(用鼠标在偏移线上拾取垂足点)
指定下一点或[放弃(U)]:(按Esc或回车键退出)
用同样的方法在其他各主点绘出位置线。
2)绘制公里桩、百米桩标注线:将路线导线向下方分别偏移5个单位和15个单位,得到两条偏移线。路线各交点的里程已知,以起始点QD(QD的里程是整公里)为例,用绘制多段命令分别绘制公里桩、百米桩标注线。
命令:_pline
指定起点:(用鼠标拾取路线的起始点QD)
当前线宽为0.0000
指定下一个点或[圆弧(A)/半宽(H)/长度(L)/放弃(U)/宽度(W)]: (用鼠标拾取偏移15个单位的线的起始点)
指定下一点或[圆弧(A)/半宽(H)/长度(L)/放弃(U)/宽度(W)]: (按Esc或回车键退出)
用偏移命令对刚绘制的百米桩标志线进行偏移,偏移距离为100,在同一条线段上可继续偏移,绘出其他的百米桩线。但经过交点后,就需要在交点处,绘制与下一线段相垂直的标志线,再计算下一个百米桩距此应偏移的距离,然后进行偏移。依次由左向右绘制出各百米标志线。
3)编辑标志线和位置线:对各标志线和位置线进行剪切、延伸,使公里桩长度为15个单位,主点位置线和百米桩长度为5个单位。最后删除路线导线的偏移线等辅助线,只留下路线中线、路线导线、主点位置线、公里桩标志线和百米桩标志线。
4)绘制公里桩符号和交角点符号:公里桩符号用绘制圆环Donut命令,内径是0,外径是5。交角点符号用绘制圆的命令Circle,直径为3,圆心在交点上。对小圆圈内的部分进行修剪。
5)标注文字:将图形缩小,比例因子为0.5,把“wenzi”图层置为当前图层。
命令:_dtext
当前文字样式:LUXIANl 当前文字高度:7.00 注释性:否
指定文字的起点或 [对正(J)/样式(S)]: (在合适的位置点击左键)
指定文字的旋转角度 <0>:-90(此处因为公里桩和百米桩都在中心线的下方,因此文字旋转-90°)
然后在屏幕上闪动的光标处输入K1,用鼠标点击下一个需要标注文字处,光标会在该处闪动,继续输入文字,将所有的文字标注完毕,按“Esc'’退出文字输入状态。若标注的文字大小方向不同,可选用不同高度和旋转角度,分批标注。这样标注的文字位置和角度有些可能不太合适,可利用移动和旋转命令进行修改。如图11-4所示,即完成路线平面图的绘制。

(5)平曲线要素表的绘制:在道路平面图的右上角,需要插入平曲线要素列表,具体操作步骤详见见第6章。以表格的右上角为基点,将绘制好的表格移动到路线平面图的右上角。
10、道路纵断面图的绘制
路线的纵断面图是表示路线中心的地面起伏状况以及路线的纵向设计坡度和竖曲线。道路路线的纵断面图是用假想的铅垂剖切面沿着道路的中心线进行纵向剖切。由于道路中心线是由直线和曲线组合而成的,所以纵向剖切面既有平面,又有曲面。为了清晰地表达路线的纵断面情况,特采用展开的方法,将此纵断面展平成为一平面,并绘制在图纸上,即为路线的纵断面图。
11、 纵断面的图示内容
路线纵断面图包括图样和资料表两部分,一般图样画在图纸的上部,资料表布置在图纸的下部。如图11-5所示。

(1)图样部分
1)比例
路线纵断面图的横向长度表示路线的长度(里程),纵向高度表示地面及设计线的标高。由于路线和地形的高程变化比起路线的长度要小得多,为了在路线纵断面图上清晰的显示出高程的变化和设计上的处理,绘制时一般采用纵向比例比横向比例放大10倍。横向比例尺和纵向比例尺的确定要根据实际工程要求选取,如在山岭地区,横向比例尺一般选择1:2000,则与之对应的纵向比例尺选择1:200;在丘陵和平原地区,由于地形起伏变化较小,所以横向比例尺一般选择1:5000,则与之对应的纵向比例尺选择1:500。
由于路线较长,路线的纵断面图一般都有许多张,则在第一张图的图标内或左侧纵向标尺处应注明纵、横向所采用的比例尺。
2)设计线和地面线
在纵断面图中,粗实线为公路纵向设计线,是由直线段和竖曲线组成的,它是根据地形起伏和公路等级,按相应的公路工程技术标准而确定的,设计线上各点的标高通常是指路基边缘的设计高程。不规则的细折线为设计中心线处的地面线,它是根据原地面上沿线各点的实测中心桩高程而绘制的。比较设计线与地面线的相对位置,可确定填挖地段和填挖高度。
3)竖曲线
在设计线的纵向坡度变更处,即变坡点,应按公路工程技术标准的规定设置竖曲线,以利于汽车平稳的行驶。竖曲线分为凸形和凹形两种,在图中分别用“”和 “”符号表示,符号中部的竖线应对准变坡点,竖线两侧标注变坡点的里程桩号和竖曲线中点的高程。符号的水平线两端应对准竖曲线的起点和终点,水平线上方应标注竖曲线要素值(半径R、切线长T、外距E)。
4)沿线构造物
道路沿线如设有桥梁、涵洞、立交和通道等构造物时,应在其相应设计里程和高程处,按图例绘制并注明构造物名称、种类、大小和中心里程桩号。
5)水准点
沿线设置的水准点,都应按所在里程注在设计线的上方或下方,并标出其编号、高程和路线的相对位置。
(2)资料表部分
路线纵断面图的资料表是与图样上下对应布置的,这种表示方法,较好地反映出纵向设计线在各桩号处的高程、填挖方量、地质条件和坡度以及平曲线与竖曲线的配合关系。资料表主要包括以下栏目和内容:
1)地质概况:根据实测资料,在该栏中注出沿线各段的地质情况,作为修筑道路路基时的地质资料。
2)高程资料:表中有设计高程和地面高程两栏,它们应和图样互相对应,分别表示设计线和地面线上各点(桩号)的高程。
3)填挖高度:设计线在地面线下方时需要挖土,设计线在地面线上方时需要填土,挖或填的高度值应是各点(桩号)对应的设计高程与地面高程之差的绝对值。
4)坡度及坡长:标注设计线各段的纵向坡度和水平长度距离。该栏中的对角线表示坡度方向,左下至右上表示上坡,左上至右下表示下坡,坡度及坡长分注在对角线的上下两侧。该栏中第一格的标注“1.1/65, 表示从K4+865坡段设计纵坡为1.1%,设计长度为65m,此段路线是上坡。
5)里程桩号:沿线各点的桩号是按测量的里程数值填入的,单位m,桩号从左向右排列。在平曲线的起点、中点、终点和桥涵中心点等处可设置加桩。
6)直线及平曲线:在路线设计中,竖曲线与平曲线的配合关系,直接影响着汽车行驶的安全性和舒适性,以及道路的排水状况,故《公路路线设计规范》对路线的平纵配合提出了严格的要求。由于道路路线平面图与纵断面图是分别表示的,所以在纵断面图的资料表中,以简约的方式表示出平纵配合关系。在该栏中,以“—”表示直线段;以“︹”、“︺”或“”“”四种图样表示平曲线段,其中前两种表示设置缓和和曲线的情况,后两种表示不设缓和曲线的情况,图样的凸凹表示右转曲线,下凹表示左转曲线。
12、 绘制路线纵断面图的步骤
绘图前应设计好比例尺,这里以横向比例为1:2000,纵向比例为1:200的纵断面的绘制为例。
(1)设置图层
根据道路纵断面图中包括的内容,需要设置“ biaoti”(标题栏)层、“dimian”(地面线)层、“sheji”(设计线)层、“biaozhu”(标注)层等,每一层的线型均为Continuous,线宽各图层不同。如图框和设计线线宽为1.0,标题栏用0.7,坡度线用0.35等,为使图形容易分别,还可将各图层设置成不同的颜色。
(2)设置图形单位和文字式样
设置方法与本章第一节的设置相同。
(3)绘制纵断面的标题栏
将“biaoti”层置为当前层,先按1:1000比例,从K4+800到K5+275,本幅图包括的里程数为475m,再加上标题样左端的文字占的宽度,标题栏底线长绘制505,将标题栏底线依次向上偏移,得到“直线与曲线”、“里程”、“地面高程”、“设计高程”、“坡度”、“土壤质栏”,每一栏的宽度,以填写项所占尺寸为准,比如“直线与曲线栏”需偏移10,在最后标注文字时,若宽度不合适还可调整。绘制一条垂直线,长度从标题栏底线绘制到顶线,位置距最左端20,作为标题与内容的分界线。
(4)绘制高程标尺
绘一条垂线,起点在标题栏竖线的顶端,向上绘制,长度20(代表的高度为2m),将其线宽设置为2.0,然后将该线再向上复制,使其首尾相接,这样绘出的看起来是一条直线,但却是两个图形对象,将这两个对象设置成对比度较大的两种颜色。根据地面高程情况,再将这两个对象同时向上复制数次,这样标尺就绘成了。
(5)设置坐标原点
在绘图前,将外业测绘的数据整理到Excel表中,如图11-6所示,B列为各地面点的桩号,C列为各地面点的实测高程,D列为各地面点的里程数值,E列为绘图用的各地面点的坐标值(将里程数值作为横坐标X,高程值扩大十倍后作为纵坐标Y,在E2栏编辑公式:“=D2&","&C2*10”,具体操作前面已经讲过)。坐标的原点需设置在标尺的底部,原点横坐标值是本幅图最左端的里程数,纵坐标要比实测的所有转点高程最小值还要小一些,本例中原点坐标为(4800,2280)。为了方便用坐标展绘地面线,现将前面绘制的标题栏和标尺等所有图形对象以标尺底部为基点,移动到Auto CAD世界坐标系的(4800,2280)处。目的是使图中标尺底部(纵断面图的坐标原点)的坐标与Excel表中计算的坐标一致,可直接输入各点坐标来绘制地面点。
具体操作方法如下:
命令: _move
选择对象: (框选标尺,回车)
指定基点或 [位移(D)] <位移>: (用鼠标拾取标尺底端点作为基点)
指定第二个点或 <使用第一个点作为位移>: 4800,2280(输入坐标,回车即完成坐标原点的设置)。
(6)绘制地面线
将”dimian”层置为当前层,使用多段线命令pline绘制地面线。具体操作方法同11.2.3中路线的绘制方法。
命令:_pline
指定起点:4800,2314.72(将图10-9中的E列的坐标值复制并粘贴到此处)
当前线宽为0.0000
指定下一个点或[圆弧(A)/闭合(C)/半宽(H)/长度(L)/放弃(U)/宽度(W)]:4830,2314.2
……
指定下上点或[圆弧(A)/闭合(C)/半宽(H)/长度(L)/放弃(U)/宽度(W)]:5275.1,2335
指定下一点或[圆弧(A)/闭合(C)/半宽(H)/长度(L)/放弃(U)/宽度(W)]:(按Esc键或回车键退出,即完成地面线的绘制)
(7)绘制设计线
将“sheji”层设置为当前层,使用多段线命令Pline绘制设计线。绘制时将各里程桩的里程作为横坐标 ,各里程桩处的设计高程作为纵坐标。操作步骤与绘制地面线类似,对竖曲线位置,采用三点绘制圆弧的方法,三点依次是竖曲线起点、变坡点位置设计标高处、竖曲线终点。
(8)绘制竖曲线标志符号
在设计线图层中,用Line命令绘制各竖曲线标志符号。
注意:符号中部的竖线的横坐标就是竖曲线转点里程,符号的水平线两端的横坐标应分别是竖曲线的起点和终点里程。为图形美观,各竖线标志符号应大致在同一个高度。
(9)绘制标题栏中的相关线
在“直线与曲线”栏中,依据路线设计中线各主点的里程绘制。
在“里程桩号”栏中,百米里程位置和曲线的主点位置绘制竖短线为里程桩标志,先绘出最左边的第一条里程桩标志,然后使用偏移命令,按里程间隔偏移。这样绘出的标志长短相同。按设计数据,用Pline命令绘制坡度/坡长线。
(10)标注文字
本图要求的比例是1:2000,前面绘图是按1:1000的比例尺,先将图中所有内容全部选中,用scale命令缩小2倍,使绘制的图形成为所需要的1:2000的图形,在此比例下开始标注文字,执行“单行文字标注”命令,对大小、方向相同的文字标注,可用鼠标点击适当的位置,输入完一处文字,再点击下一处位置,输入文字。一次Text命令,可连续多次输入文字,直到退出命令。不同高度、不同方向的文字需重新输入Text命令,重新设置文字高度和文字方向,再进行文字输入,直到将图中所有文字标注完毕。
(11)标注水准点及桥涵构筑物
桥涵构造物等标注的位置与其桩号对应,对标注符号,先定义图块,再利用图块插入命令插入。绘制完成的道路总断面图如图11-5所示。
13、道路横断面图的绘制
路线横断面图是在垂直于道路中心线的方向上所作的断面图,其作用是表达路线各中心桩处路基横断面的形状和横向地面高低起伏状况。
14、 道路横断面图相关知识
在道路横断面外业测量中,对每一个需测横断面的位置,都要进行测量,测得在横断面方向上各变坡点相对于中桩地面的高差,根据外业实测数据,整理得出各里程桩的横断面的资料如表11-5所示,表中按路线前进的方向分左侧、右侧。分数的分子表示测段两端的高差,分母表示测段的水平距离。高差为正表示上坡,为负表示下坡。根据这些数据绘制出各里程横断面图,再根据设计要求,画出路基断面设计线,得到一系列的路基横断面图,以此来计算公路的土石方量和作为路基施工的依据。
表7 路线横断面测量数据
左侧 |
桩号 |
右侧 |
…… ……. |
…… |
…… …… |
-0.6/11.0 -1.8/8.5 -1.6/6.0 |
K4+800 |
+1.5/4.6 +0.9/4.4 +1.1/5.0 +0.5/10.0 |
-0.5/7.8 -1.2/4.2 -0.8/6.0 |
K4+820 |
+0.7/7.2 +1.1/4.8 -0.4/7.0 +0.9/6.5 |
……. ……. |
…… |
…… …… |
15、 绘制横断面图的步骤
(1)设置绘图比例
在绘制道路横断面图时,一般情况下,纵坐标(高差)和横坐标(路宽)比例是相同的,根据具体情况可选1:100或1:200,在设计前应定好绘图比例。
(2)设置绘图环境
图形单位的设置同前。道路工程制图中的规定,横断面图的地面线采用细实线。在图层管理器中,设置“dimian”(地面线)层,线宽为0.25;“tukuang”(图框线)层,线宽为1.0,线型均为Continuous,同时各层设置成不同的颜色。
(3)绘图
下面以表11-5的测量数据为例,绘制桩号为K4+800处的道路横断面的地面线。
1)绘中线桩:用Line命令画一条平行与Y轴方向的竖线,作为横断面的中心桩。
2)绘地面桩:由表11-5中的测量数据可以看出,用Pline多段线命令,使用相对直角坐标输入,绘制地面线。
绘制左侧地面线部分:
命令:_pline
指定起点:(用鼠标点击竖线上一点)
当前线宽为0.0000
指定下一个点或[圆弧(A)/闭合(C)/半宽(H)/长度(L)/放弃(U)/宽度(W)]:@-6.0,-1.6
指定下一点或[圆弧(A)/闭合(C)/半宽(H)/长度(L)/放弃(U)/宽度(W)]:@-8.5,-1.8
指定下一点或[圆弧(A)/闭合(C)/半宽(H)/长度(L)/放弃(U)/宽度(W)]:@-11,-0.6
指定下一点或[圆弧(A)/闭合(C)/半宽(H)/长度(L)/放弃(U)/宽度(W)]:(按Esc键或回车键退出)
绘制右侧地面线部分:
命令:_pline
制定起点:(用鼠标点击右侧地面线与竖线的交点)
当前线度为0.0000
指定下一个点或[圆弧(A)/闭合(C)/半宽(H)/长度(L)/放弃(U)/宽度(W)]:@4.6,1.5
指定下一点或[圆弧(A)/闭合(C)/半宽(H)/长度(L)/放弃(U)/宽度(W)]:@4.4,0.9
指定下一点或[圆弧(A)/闭合(C)/半宽(H)/长度(L)/放弃(U)/宽度(W)]:@5.0,1.1
指定下一点或[圆弧(A)/闭合(C)/半宽(H)/长度(L)/放弃(U)/宽度(W)]:@10,0.5
指定下一点或[圆弧(A)/闭合(C)/半宽(H)/长度(L)/放弃(U)/宽度(W)]:(按Esc键或回车键退出)
3)缩放图形:前面在图形单位设值时,设置的是一个图形单位代表1mm,上面输入坐标时,4.4mm距离就直接输入4.4,也就是4.4mm表示4.4m,很显然,绘出的图的比例就是1:1000。而断面图要求的绘图比例是1:200,所以要对上面绘出的图进行缩放,比例因子为5,也就是将图放大5倍。1:1000的图放大5倍,正好是要求的绘图比例1:200。
4)标注文字:横断面图中的文字标注内容很少,仅标注中心桩的桩号。在缩放后的图上标注文字,更容易确定适宜的文字高度,可达到更好标注效果。这里的文字高度选用10,比较合适,当要求的绘图比例尺发生改变时,最好试一试不同高度的文字的标注效果,最后确定选用的文字高度。最终完成K4+800处的横断面图的绘制,如图11-6所示。
注意:在输入点位时,用的是相对直角坐标系的值是当前点相对于前一个点的横、纵坐标的改变量。该改变量正好对应左右两侧的距离和高差的数值。但在输入时,左侧的点横坐标应为负(在距离值前面加“—”),右侧的点横坐标为正(原距离值),高差值与测量数据相同。

采用上述方法,可继续绘出其他桩号的横断面,在同一张图纸内绘制的路基横断面图,应按里程桩号顺序排列,从图纸的左下方开始,先由下而上,再自左向右排列。同一幅图中横断面的数量,要根据图幅和绘图比例计算后确定。若一幅图中有多个断面,则要按1:1000的比例绘出所有的断面后,再按要求的比例缩放图形,最后统一标注。再每张路基横断面图的右上角写明图纸序号及总张数,再最后一张图的右下角绘制图标。
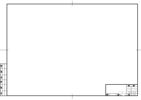
16、 图框的绘制
绘制图框时一般要新建一个图形文件,待图框绘制完成后,保存为模板,即.dwt格式的文件,以备使用。现以A3纸(297mm420mm)为例,来讲述图框的绘制法。
17、 图形元素的绘制
(1)设置绘图环境
1)设置图幅:用Limits命令设置图形界限左下角为(0,0),右上角坐标(420,297)。
2)设置单位及精度:设置方法详见11.2.3中的设置。
3)建立图层:设置“tukuang”(图框)层,线宽0.7,“fgx”(分割线)层,线宽0.25,线型均为Continuous。“bz”(标注)层,线宽、线型默认。
4)设置文字样式:图框中的文字都是汉字,字体设置为“仿宋—GB2312”,宽度比例为0.7,其他项可以保留默认格式。
(2)图框绘制
将“tukuang”层置为当前层,打开“对象捕捉”,点击绘图工具栏中的“矩形”按钮,命令行提示:
命令: _rectang
指定第一个角点或[倒角(C)/标高(E)/圆角(F)/厚度(T)/宽度(W)]: 35,10
指定另一个角点或[面积(A)/尺寸(D)/旋转(R)]: 410,287
绘制图标外框线(图标大小35mm×100mm):
命令:_rectang
指定第一个角点或[倒角(C)/标高(E)/圆角(F)/厚度(T)/宽度(W)]:(用鼠标拾取图框右下角)
指定另一个角点或[面积(A)/尺寸(D)/旋转(R)]: @-100,35
(3)会签栏的绘制
会签栏在图框的左下角,宽21mm,高100mm ,会签栏外框线线宽0.5mm,内外格线线宽0.25mm。将“fgx”层置为当前层,点击绘图工具栏中的“矩形”按钮,命令行提示:
命令:_rectang
指定第一个角点或[倒角(C)/标高(E)/圆角(F)/厚度(T)/宽度(W)]:(用鼠标拾取图框左下角)
指定另一个角点或[面积(A)/尺寸(D)/旋转(R)]:@-21,100
选中刚绘制的会签栏外框,将其的线宽设为0.5。打开“正交”,用绘直线命令Line和偏移命令Offset,绘制会签栏的内分割线。
命令:_line指定第一点:7(用鼠标捕捉会签框的左下角后,向右移动鼠标,用键盘输入长度7)
指定下一点或[放弃(U)]:(向上移动鼠标,在与上边框相交处,点击鼠标)
指定下一点[放弃(U)]:(按Esc键或回车键退出)
命令: _offset
当前设置: 删除源=否 图层=源 OFFSETGAPTYPE=0
指定偏移距离或[通过(T)/删除(E)/图层(L)]〈通过〉:7
选择要偏移的对象,或[退出(E)/放弃(U)]<退出>:(用鼠标点击刚绘的竖线)
指定要偏移的那移侧上的一点,或[退出(E)/多个(M)/放弃(U)]<退出>:(在该线的右侧任取一点)
用同样的操作方式绘制横向分割线,按要求的尺寸并进行偏移,偏移的距离分别是20,15,15,20。这样就完成了会签栏绘制。
(4)绘制角标和图标中的分割线
当图纸需要绘制角标时,应将角标布置在图框右上角,角标宽50,长12,线宽为0.25。先用绘制矩形的命令,绘出角标框,再借助“对象捕捉”功能,用Line命令绘制内分割线。
用类似的方法,按照图标的样式和各分割线之间的尺寸要求,绘制出图标内的分割线。
(5)绘制对中标志
对中标志绘在图框线四个边的中间,线宽为0.35,深入图框内5mm。用Line命令绘制,然后选中所有对中线,将其线宽设为0.35。
18、 标注图框中文字
图框中的文字数量不多,字高统一设置成3.5,点击菜单栏:“绘图”菜单中“文字”二级菜单的“单行文字”命令,则命令行提示如下:
命令:_dtext
当前文字样式:Standard 当前文字高度:0.2000
指定文字的起点或[对正(J)/样式(S)]:j
输入选项[对齐(A)/调整(F)/中心(C)/中间(M)/右(R)/左上(TL)/中上(TC)/右上(TR)/左中(ML)/正中(MC)/右中(MR)/左下(BL)/中下(BC)/右下(BR)]:MC
指定文字的中间点:(用鼠标点击要输入文字的单元格的中心位置)
指定高度<0.2000>:3.5
指定文字的旋转角度<0>:(直接回车)
在鼠标点击之外有光标在闪烁,现在就可以像在Word中一样输入文字了,输入完一处,双击鼠标,退出文字标注状态。因为本图框中的文字高度是相同的,所以可以利用多重复制将刚才输入的文字复制到其他所有需要输入文字的单元格中。这样所有的文字标注都是相同的,需要进行编辑,使其内容符合要求。编辑的方法是:双击要编辑的文字,文字就变为蓝底黄字的可编辑状态,重新输入符合要求的文字,修改完后回车确定,接着改下一处,直到全部编辑完毕。会签栏的文字方向与图标中的文字方向不同,在修改完内容后需要旋转-90°才符合要求。绘制好的道路工程图框如图11-7所示。
注意:无论是复制还是旋转文字,基点位置都要选择文字的正中,这样文字的位置在单元格中始终处于正中间,这样免去调整文字位置的麻烦。

来源:测量
知识点:道路路线工程图的绘制
公园道路绿化工程图
0人已收藏
0人已打赏
免费3人已点赞
分享
CAD下载及教程
返回版块52.09 万条内容 · 687 人订阅
阅读下一篇
梦想云图Node.JS服务 ( 最近更新时间:2022-12-30 10:04:50 )说明 后台提供梦想Node.JS服务,方便调用控件后台功能,Windows服务程序所在目录:Bin\MxDrawServer\Windows,Linux服务程序所在目录:Bin\Linux\MxDrawServer 启动服务 Windows:进入Bin\MxDrawServer\Windows目录,运行start.bat启动服务,如下图: Linux: 进入Bin\Linux\MxDrawServer,
回帖成功
经验值 +10
全部回复(0 )
只看楼主 我来说两句抢沙发