结构的细部构造对一个建筑来说或许有着举足轻重的意义,特别对于那些外露的结构,似乎更能引发人们去猜测细部背后设计师的诉说。

▲ 孟加拉国议会大厦-路易斯·康
在保证强度、刚度以及稳定的前提下,对于构件的形式及连接我们有许多选择,比如我们选择采用木结构框架,那么对于梁柱有着诸多的基本形式以及组合方法。

▲ 木结构梁柱形式
同样,对于钢材或者混凝土,由于材质所营造的氛围以及受力性能带来的不同组合形式也会带来完全不同的感受。

▲ 钢结构梁柱形式

▲ 混凝土结构梁柱形式
“对于高技派的钢架、钢索之类的有限建筑语汇的热衷。或者只满足于横平竖直梁柱体系都是值得质疑的。我们所探寻的结构,既非强加的形态,亦非笨拙的骨架。”——巴尔蒙德
所以大多数情况下,结构并非一定要如何,细部的展现也正是建筑师与结构师共同努力的结果。

法国巴黎卢浮宫的地下广场,为保证与地上三角锥金字塔的形式的统一,楼盖部分采用了密肋截锥的做法。

▲ Grand Louvre

▲ 密肋楼盖
同样的形式也出现在了中央的立柱上,通过对常规的矩形柱进行切角来形成复杂的截面,所有这些努力的原因就是为了保证几何的统一与纯粹。

▲ 切角立柱

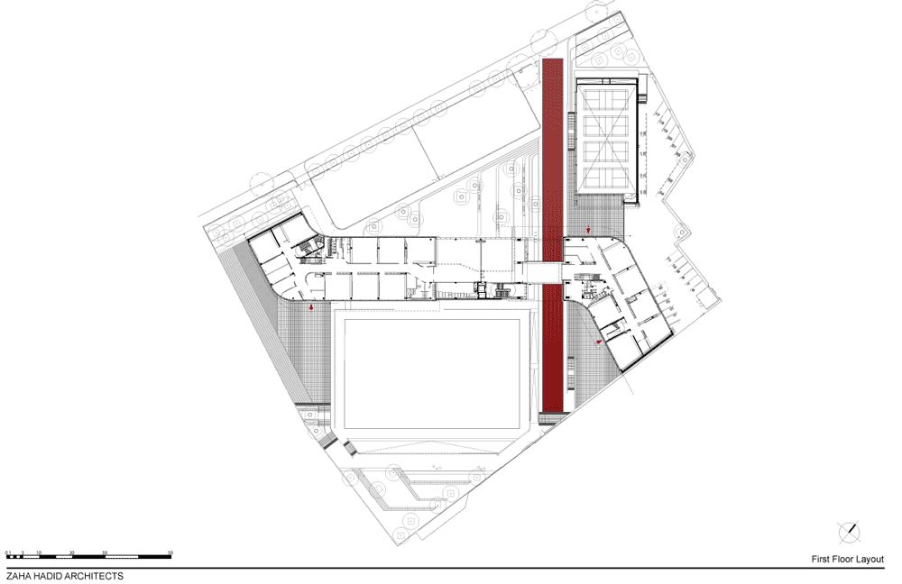
通常剪力墙在立面上都是直上直下,但是在伊夫林·格雷斯学院(Evelyn GraceAcademy by Zaha Hadid )这个项目中,倾斜这个元素不断的出现,
由于场地受限,平面呈现z字型。

▲ 首层平面
也许是学校建筑的原因,扎哈手下的曲线,折线,锐角在这里显得少有的冷静与理性。

▲ Evelyn GraceAcadyem
在跑道上方,斜柱与斜墙带来强烈的动感,隐喻冲刺的形态。

▲ Evelyn GraceAcadyem

金贝尔艺术博物馆位于美国德克萨斯州沃斯堡,于1972年建成,为建筑大师路易斯·康(Louis Kahn)的经典作品。

▲ 金贝尔美术馆

▲ 建筑诗哲——路易斯·康
博物馆整体为“拱形”,由两端的立柱支撑。馆内想引入自然光但又不能太过耀眼,为了达到理想中光的艺术效果,康历经近三年的时间来研究金贝儿美术馆的天窗采光系统。

▲ 通过中部开槽引入自然光漫反射

▲ 剖面示意
从最开始的折板,到后来的半圆、椭圆与圆弧,最终确定采用摆线的方式构造屋顶,摆线的弧度与竖向构件交接更为自然且空间不会显得过高。

▲ 屋顶思考过程

▲ 摆线
康认为,“拱顶是一种能够接受光线的界面,对室内空间的度量即来自对光位置的感知,正是以这样的方式,自然光确定了房间形态的选择。”所以自始至终,屋顶的形态没有偏离“拱形”的元素。

▲ 与筒拱对比
(深色:主压应力线;浅色:主拉应力线)
但实际上,由于拱形中部纵向开通长槽,且竖向支撑为两端的4颗立柱。所以并非为短跨向的“筒拱”传力模式,而是沿着纵向的梁“”受力模式。结构师奥古斯特?科门丹特(August Kommendant)沿着主拉应力线方向布置预应力筋,最薄处壳体厚度为102mm。

▲ 新馆与老馆
在1980年代,由于展物需要扩容,需要对博物馆进行扩建,但面对这样的经典,以一个什么样的姿态去定义新馆成为一个巨大的难题,建筑师伦佐·皮亚诺顶着巨大的压力进行新馆的设计,相较于老馆的古典封闭,新馆十分的轻质与通透。

▲ 新馆
混凝土柱,一分为二的木梁与轻质钢结构屋面组成框架结构,木梁与柱顶脱开也充分展现了现代多重材料组合“轻”的艺术性与实用性。

▲ 新馆结构

鹿特丹艺术博物馆(Kunsthal)建造于1992年,位于鹿特丹的Museumpark社区。Kunsthal被称为无馆藏博物馆(仅提供策展场所,无馆内藏品),汇集了几个画廊和大厅,可以提供最大的灵活性,并容纳可以单独或共同共存的众多展览和活动。

▲ Kunsthal
入口处的3颗立柱分别为工字钢,蜂窝工字钢以及混凝土方柱,不同材料及结构形式的并置表达了一种即兴的“门槛”概念,同时也契合了艺术博物馆的主题。

▲ 入口立柱
在展馆2号厅中,一根根红色细杆在平面上沿着拱形展开。

▲ 拱形系杆
由于被梁打断,加之不同寻常的造型,或许我们会产生疑问,
它,是结构?
它,是图形?
或者,是建筑装置?
结构师巴尔蒙德说,三者皆是。

▲ 拱形系杆
两组拱形杆件为传递水平力,相互交汇保证了面内的稳定,视觉上的不明朗带来别致的体验。

▲ 报告厅
报告厅中,所有柱子为斜柱,倾向讲台一侧,开始设计时希望用右侧的框架去顶住左侧的倾覆力,但是对框架会造成显著的不均匀沉降,从而无法达到支撑效果。

▲ 设计思考
最后的解决办法是做厚斜板和顶板,使得整体为一个“混凝土桁架”来解决倾覆力的问题。
▲ 楼板整体受力
(柱40cm/斜板40cm/顶板30cm)
还有一个比较有意思的地方是内部的这些在悬挑板位置设置的纤细的拉杆,由于楼板自身较厚,这些细杆的作用究竟是为了悬吊楼板,还是为了风吸力下拉住屋面,这种混沌的状态也正是结构细节的魅力吧。

▲ 吊柱

由于篇幅有限,还有一些有意思的案例就不展开细说。
位于德国的Tobius Grau公司从事高端家具定制,他们的办公室与仓库的一些结构细部体现着产品的精致与优雅。


▲ 办公室梭形柱

▲ 仓库木结构
伦敦的Evelina儿童医院外表采用通透的单层网壳,结合精致的外露双挑托板节点最大限度的减少医院的刻板印象。

▲ Evelina儿童医院

▲ 刚接悬挑节点
内容源于网络,仅作分享使用,如有侵权,请联系删除
相关资料推荐:
知识点:结构细部的建筑逻辑
0人已收藏
0人已打赏
免费2人已点赞
分享
结构新鲜事
返回版块2930 条内容 · 85 人订阅
阅读下一篇
轻奢型康养设计:集康养、旅游、会议、餐饮、休闲娱乐为一体度假酒店梨乡山居康养度假酒店 科图设计 梨乡山居康养度假酒店位于国家4A级旅游景区“阳光花海,康养圣地”——雅安·九襄,是雅安文旅集团倾力打造的集康养、旅游、会议、餐饮、休闲娱乐为一体的轻奢型康养旅游目的地,于2019年8月正式开工,2022年3月投运。 项目坐落于汉源县经济文化中心九襄镇,于G5京昆高速九襄出口下方连接道500米,距雅安80公里,距成都220公里,交通便利。毗邻九襄花海果乡核心景区九襄古镇、清溪古镇、汉源湖、大渡河大峡谷(中国唯一一个不对外国开放的景点)、茶马古道等,处于省级乡村旅游特色乡镇核心区,区位优势明显,享春华秋实,田园牧歌,世外桃源。区域实施“旅游兴镇”战略,重点发展生态农业观光、阳光康养等旅游项目及其相关服务产业。
回帖成功
经验值 +10
全部回复(1 )
只看楼主 我来说两句 抢板凳相当不错的资料,感谢楼主无私的分享!
回复 举报