土木在线论坛 \ 建筑设计 \ 中国建筑史 \ 故宫养心殿正殿大木构架特征分析

故宫养心殿正殿大木构架特征分析

发布于:2022-12-09 11:42:09 来自:建筑设计/中国建筑史 [复制转发]

北京故宫建成于明永乐十八年(1420),系在元大都宫城的遗址上建造而成,是明清两代的皇宫,也是官式建筑的典范,保存有大量明代建筑。养心殿一区现存建筑始建于明嘉靖十六年(1537),虽经后代改建修缮,但其主体建筑大部分为明代遗构。明代并没有像宋《营造法式》、清工部《工程做法》这样的技术书留存于世,因此掌握明代建筑法式特征及其发展变化规律,对现存实物的调查就显得尤为重要。对养心殿正殿设计手法和法式特征的揭示,能够为紫禁城建筑断代研究提供依据,并为进一步研究明代官式建筑大木法式特征补充实物例证。


故宫建筑遗产受大木勘察条件所限,只有结合保护工程勘察设计工作,才能掌握较全面的建筑信息,并作公开发表。2015年,故宫博物院启动了养心殿研究性保护项目,提供了难得的调查养心殿大木的机会。笔者在对养心殿一区建筑主体结构进行详细调查的基础上,分析建筑特征,并做年代推断,在此公布较为全面的基础资料,为今后古建同仁做进一步研究以推进行业发展尽绵薄之力。不足之处,望同仁指正。





PART.1



养心殿建筑概况



故宫养心殿位于内廷乾清宫西侧。养心殿一区现存建筑始建于明嘉靖年间。据《明世宗实录》记载嘉靖十六年(1537)六月二十九日,“丙子,新作养心殿成”[1]。养心殿在明代曾做为皇帝的便殿使用。清初沿用明代养心殿,顺治朝曾做为皇帝的寝宫之一。康熙朝以后,养心殿的功能发生了变化,康熙初年于此设养心殿造办处。自雍正元年(1723),养心殿成为了皇帝的寝宫和日常理政的中心。乾隆登基后,又对养心殿一区建筑进行了完善。嘉庆四年(1799)正月初三日,乾隆皇帝崩于养心殿。同治与光绪时期,慈禧太后于正殿东暖阁“垂帘听政”。1912年宣统皇帝退位后曾居于养心殿。


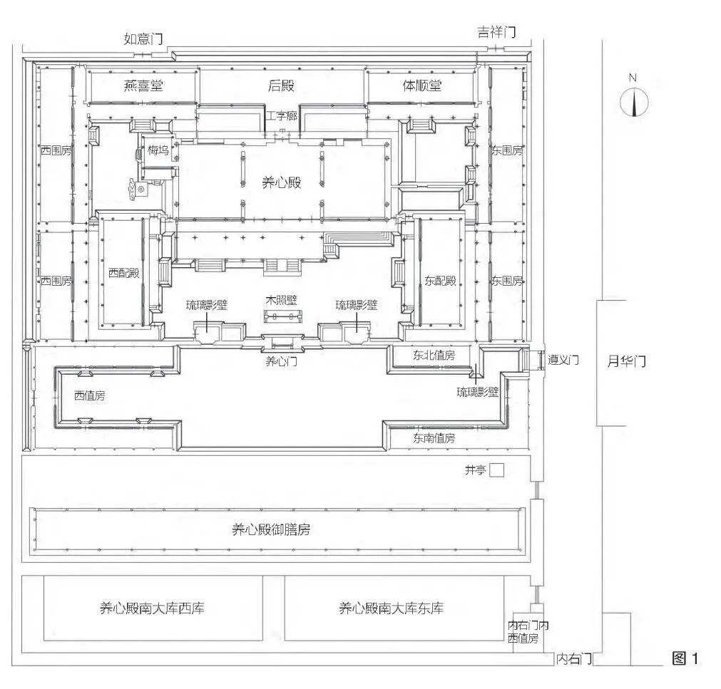
养心殿区,总体而言包含养心门内区域、养心门外值房区域、南侧御膳房区域和南库区域,总占地面积7707 m2。其主要建筑坐落于养心门以北红墙围合院落,南北长约46 m,东西宽约81.3 m。自养心门起,沿纵轴线依次布置养心门、木影壁,其后即为养心殿区的主体建筑:养心殿正殿、后殿。正殿与后殿间以工字廊相连,正殿两侧东西配殿左右对峙,后殿两山东西耳房对称布置。在横轴方向,向东西两侧扩展,在东西配殿后布置东西围房。(图1)


图片

图1 养心殿区建筑分布图

(图片来源:故宫博物院古建部提供)


主体建筑养心殿正殿为开间进深各三间,六样黄琉璃瓦七檩单檐歇山式建筑,建筑面积543.22 m2(台明尺寸)。正殿对应在明间及西次间前檐位置,出开间六间,进深一间,四檩悬山过垄脊抱厦,建筑面积96.78 m2(台明尺寸)。内、外檐绘金龙和玺彩画。前檐明间设三交六椀菱花隔扇,正中两附柱间设四扇,中间两扇设帘架,檐柱与附柱间各两扇,均设帘架。次间设槛墙、支摘窗各四组。室内正中设宝座,上方井口天花正中设藻井(图2)。下文将从大木构架的各个方面对养心殿正殿的调研成果做一梳理呈现。


图片

图2 2 a、2b.养心殿正殿外景

(图片来源:崔瑾摄影);

2c.养心殿正殿匾额

(图片来源:同图2 a);

2d.养心殿正殿内景效果图

(图片来源:故宫资料信息部提供)




PART.2



养心殿正殿大木结构



平面型制



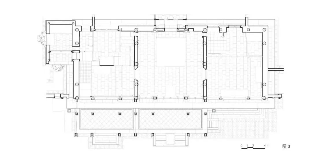
养心殿正殿开间进深各三间,正殿后檐通过工字廊与后殿连接。柱网平面整体为单排柱四根,共四列,对应《营造法式》(下文简称《法式》)殿阁式地盘,另在明间东西缝进深向接近中柱分位增设一根附柱,柱径均为525 mm。面阔方向各间在檐部额枋下增设两根方形梅花附柱。正殿明间面阔11690 mm,西次间10150 mm,东次间10188 mm,通面阔32028 mm。山面明间进深7025 mm,北次间2335 mm,南次间2335 mm,通进深11695 mm。通面阔与通进深比例为2.74∶1。在现存明代官式建筑实例中,面阔与进深比例多在2∶1至3∶1之间[2]养心殿正殿符合这一比例关系(图3)。

图片

图3养心殿正殿平面图

(图片来源:同图1)


养心殿正殿明间面阔尺寸达到11.69 m,次间也超过10 m。紫禁城外朝之太和殿,明间开间也不过8.47 m。紫禁城的四个城门明间开间也仅在9 m左右:午门9.15 m,神武门9.78 m,西华门9.51 m,东华门9.46 m。明长陵棱恩殿明间开间也仅为10.34 m,北京太庙大殿为9.6 m,北京社稷坛正殿为9.51 m,北京先农坛太岁殿为8.35 m。养心殿这样大的开间尺寸是非常罕见的,在紫禁城内,达到养心殿这样大的开间尺寸的还有位于宁寿宫区的养性殿。养性殿是宁寿宫区的主体建筑之一,是乾隆三十七年(1772)仿养心殿而建,平面及梁架结构与养心殿相似,明间面阔尺寸和养心殿相同,次间面阔近似,进深比养心殿略大。



梁架结构



横剖面


养心殿正殿为七檩单檐歇山顶建筑,正殿脊桁下皮到地面高8.92 m。明间前、后檐柱柱头上承七架梁,其上为三、五、七架梁叠梁形式,七架梁上设柁峰,柁峰上承五架梁,五架梁上再设柁峰,上承三架梁,三架梁中部设脊瓜柱,瓜柱两侧设角背支撑(图4)。面阔方向,前后檐檐柱间施以单额枋,每间额枋下安装方形梅花附柱两根。进深方向,设两排金柱,构成四纵列柱子,两山面柱子高度达斗栱层。明间东西缝进深向设通额枋,两排金柱支顶于通额枋之下,未达斗栱层,金柱间接近中柱分位增设一根附柱,同样支顶于通额枋之下。明间为井口天花,正中设盘龙藻井,两次间为白樘篦子吊顶(图5)。


图片

图4 养心殿正殿横剖面图

(图片来源:同图1)


图片

图5 5 a-5c.养心殿正殿明间天花以上梁架;

5d.明间天花以下梁架;

5e-5f.东次间吊顶以上梁架;

5g-5h.东次间吊顶以下梁架;

5i.明间脊步彩画

(图片来源:同图2a)


正殿檐步步架深均值为2336 mm,举架高为997 mm,举架系数为0.43;金步步架深1780 mm,举架高为1153 mm,举架系数为0.65;脊步步架深1733 mm,举架高为1601 mm,举架系数为0.92。屋架总长12563 mm(前后檐挑檐桁中线到中线的水平距离),屋架总高4053 mm(挑檐桁上皮至脊桁上皮垂直尺寸),整个屋架高跨比为1∶3.1,与宋代举折制对殿阁楼台所定的三分举一之法较为接近。《法式》卷五“大木做制度二”中记录举屋之法:“如殿阁楼台,先量前后撩檐方心相去远近,分为三分。从撩檐方背至脊缚背举起一分。”[3]38宋制按屋架深,即总长度定举高,再加以折,即先有举高后得出折屋曲线。在屋架总高、总长、各步架深确定的前提下,按举折之法绘制折屋曲线图,与现状加以对比发现,两者各桁位置还是存在较大高差的,上金桁、下金桁分别比实际位置高出约135mm、161 mm,可见与举折之法得出的曲线并不吻合。清制则先定折法,后得出举高,举架系数为整数或0.5的整数倍,七檩建筑多为五、七、九举。正殿屋架总高与《法式》规定近似,但折屋曲线与宋、清制度均不相同,尚不能判断正殿以哪种方法计算折屋曲线(图6)。


图片

图6 养心殿正殿折屋曲线图:

黑色为实际檩位,

红色为按举折法计算后檩位

(图片来源:崔瑾绘制)


纵剖面


养心殿在平面和天花以上梁架均为三开间,平面明间面阔11.69 m,东次间10.18 m,西次间10.16 m。天花以上明间各檩、枋的跨度达到11.69 m,次间也达到了7.8 m。明间东西两缝梁架在进深方向设通额枋,跨度11.7 m,金柱与中柱柱头未达斗栱层,而是支顶于通额枋下(图7)。


图片

图7 养心殿正殿纵剖面图

(图片来源:同图1)


养心殿结构构件大部分为楠木。从脊桁、脊枋到金桁、金枋、正心桁、挑檐桁、额枋均为通长的整料,这样硕大的用料是非常罕见的。尤为特殊的是明间金枋和垫板连做(图8),明间跨度11.69 m,下金枋高度达866 mm,合11.2斗口,宽542 mm,合7斗口,垫板位置略收窄为424 mm,合5.5斗口。上金枋则前檐尺寸与下金枋基本一致,前檐上金枋高度860 mm,宽457 mm,后檐尺寸略小,高为801 mm,宽439 mm。金枋和垫板是一根整料,仅在局部垫板高度不够的位置有拼接,相比《工程做法》的规定显得非常硕大。养心殿大木结构大量使用优等木材,且加工精细,很多构件采用连做方法,如次间下金垫板与趴梁连做,再有踩步金上段方形截面与下段圆檩形截面连做并刻出柁峰,可见这一时期大料充足,且木料材质非常好。


图片

图8 8a.养心殿正殿明间金枋与垫板连做

(图片来源:崔瑾摄影);

8 b.养心殿正殿金枋截面与《工程做法》比较图

(图片来源:崔瑾绘制)


乾隆三十七年(1772),仿养心殿建养性殿。养性殿位于宁寿宫以南,养性门内。养性殿为黄琉璃瓦七檩单檐歇山顶形式,面阔三间、进深一间,前檐出四檩过垄脊歇山抱厦,后檐出廊,建筑面积581.9 m2。养心殿在平面和天花以上梁架均为三开间,而养性殿欲仿养心殿大跨度的空间但苦于无大料可用。养性殿天花以上增设了4缝梁架,分成了7间,明间3间,两次间各2间(图9)。以明间为例,面阔与养心殿相同,天花以上增设了两缝梁架,将下金枋经过拼攒加高加宽,两端直接落于七架梁上。增设的梁架与正身梁架在五架梁以上形制完全相同,五架梁两端则趴在加大的下金枋上承托其上的梁架。这样一来天花以上的檩枋都分成了三段,最长的中段也不足6 m,仅有加大的下金枋为跨度11.7 m的通长构件,次间则是在下金枋的位置设趴梁,承托增设的梁架。养性殿重要的结构构件大多采用拼攒等方法,表面加工粗糙,大量使用铁活加固。因清代大料短缺,在天花以上不露明的部位采用增设梁架的方法减小跨度,再也无力重现明代养心殿楠木大殿的辉煌了(图10)。


图片

图9 养性殿梁架三维模型

(图片来源:牛筱甜绘制)


图片

图10 10 a.养性殿明间梁架

(图片来源:同图8a)

10b.养性殿通过加大的下金枋承托增设梁架

(图片来源:同图8a)

10c.养性殿经拼攒的檩枋

(图片来源:同图8a)


收山部位


清代歇山建筑山面檐椽后尾搭在踩步金上,踩步金为中部似梁,两端似檩的特殊构件,两端与下金檩截面相同并与之十字搭交,正身截面似梁,为长方形,并且将截面加宽加高,尺寸与对应正身梁相同。踩步金外侧则剔凿椽窝用来搭置山面檐椽。踩步金是歇山建筑特有的构件,是山面檐椽椽尾及上部梁架的支点。按踩步金(梁)支点的不同,做法大致可分为:顺梁式、趴梁式、抹角梁式和金柱式。其中,直接落于金柱上的称为踩步梁,其余均称为踩步金。


明式建筑踩步金与清式不同,明初仍有部分建筑继承了宋代系头栿1形式,如东西六宫之钟粹宫正殿、长春宫正殿、储绣宫正殿、翊坤宫正殿,大木结构均为明初遗构,为长方形截面的系头栿上加挡板的形式。另一方面在诸多明代歇山建筑实例中,明代建筑踩步金截面常制作成檩形,如明代北京故宫咸若馆,并与前后檐金檩交圈,其形状虽然似檩,但功能上除承托山面檐椽外,还兼具承托其上山面梁架的重要结构作用,比檩重要得多,其形式通常为圆檩形截面踩步金上承托山面檐椽,其上设加宽的挡板,遮挡檐椽后尾,有时挡板与踩步金连做。


养心殿正殿是典型的金枋带趴梁式歇山做法,两山用趴梁承托踩步金及其上梁架。养心殿正殿踩步金下部为圆檩形,上部为长方形截面,其上直接承托三架梁,并作为山面檐椽椽尾挡板。踩步金之下设随梁(图11)。圆檩形截面的踩步金是明式建筑常见的做法,不仅在紫禁城明代建筑中常有应用,在明代北京智化寺内所有的歇山顶建筑如智化门、智化殿、大智殿、藏殿,以及先农坛太岁殿、拜殿等明代歇山顶建筑中均广泛应用。


图片

图11 养心殿正殿踩步金檩

11 a.上段(图片来源:同图8a)

11b.下段(图片来源:同图8a)

11c.断面图(图片来源:同图8b)


清代将歇山建筑山面向内收进的做法称为收山,对应的做法要求称为歇山收山法则,即歇山建筑由山面檐檩(带斗栱的建筑按正心桁)的中心线向内一檩径定为山花板外皮的位置。与《法式》称“出际”的称谓不同,但“出际”与“收山”,一“出”,一“收”,虽然称谓不同,实质是相同的,都是对歇山山面檩木从山面梁架向外悬挑尺寸的规定,只是宋制“出际”是从里侧山面梁架向外约定尺寸,而清制“收山”则是从外檐檩中向里侧约定尺寸。不同之处是对于悬挑尺寸的规定,宋清制度差别较大,《法式》对于出际,首先区分殿阁与厅堂的做法,规定殿阁随架深,厅堂按椽架数不同,出际尺寸随椽架数量增加而递增,并在椽架数量固定的前提下,还可在半尺之内调整尺寸,如两椽屋,“出二尺至二尺五寸”。可见《法式》注重歇山出际尺寸与建筑规模,特别是梁架进深,屋架高度之间的内在联系与匹配协调,形成多样而协调的歇山收山形象。直至明代,歇山檩木悬挑尺寸仍非定值,但总体上相对宋制正脊明显加长,即收山尺寸减小。清代将“收山”尺寸进一步缩小,且所有歇山建筑无论类型、规模均做统一规定,统一了歇山收山风格,利于标准化设计施工。正殿山面檐步架为2457 mm,收山尺寸为875 mm,正心桁直径为415 mm,收山尺寸为桁径的2.1倍。从北京现存明代建筑实例来看,明代歇山建筑的收山尺度普遍大于《工程做法》1檩径的规定,多在1.5倍至2倍檩径之间。(图12)


图片

图12 养心殿正殿收山做法

(图片来源:同图8a)


单体构件


(1)柱


正殿为单排柱四根,共四列,柱径均为525 mm,明间东西缝两排内金柱支顶于通额枋之下,未达斗栱层,柱高3513 mm,其余柱高为4090 mm。两排内金柱柱径与柱高比为1∶6.69,其余柱径与柱高比为1∶7.79。从现存唐宋大木构架实物来看,檐柱径与柱高比多在1∶7至1∶10之间,大多在1∶8至1∶9之间。[4]养心殿正殿檐柱径与柱高比为1∶7.79,接近唐宋建筑柱径与柱高常用比例,比清《工程做法》规定则更显粗壮。在明间东西缝进深向接近中柱分位增设一根附柱,柱径柱高同内金柱。面阔方向各间在檐部额枋下增设两根方形梅花附柱,明间柱径为390×370 mm,次间柱径为390×450 mm,柱高3513 mm。


关于柱子侧脚,按《法式》卷五:“凡立柱并令柱首微收向内,柱脚微出向外,谓之侧脚。每屋正面,随柱之长,每一尺即侧脚一分;若侧面,每长一尺,即侧脚八厘。至角柱其柱首相向各依本法。”《法式》规定面阔与进深方向侧脚不同,面阔方向略大,占柱高的1%,进深方向占柱高的0.8%。明代以前的木结构古建筑,普遍存在柱侧脚,早期侧脚较为显著,从唐到元,各代实物中的测量结果发现大多数都超过1%,有的达柱高的2.9%(永乐宫龙虎殿),辽、金建筑中的檐柱不仅向内侧,同时还向明间中轴线倾斜(如辽代开善寺大殿),元代建筑中尚留有这种做法的痕迹,明、清建筑中的侧脚很小,已不易察觉。[5]随着建筑技术的发展,整体结构稳定性的加强,侧脚的作用已逐渐减弱,至清代《工程做法》已不再强调侧脚,但大量现存清代建筑实例证实,清代侧脚做法仍在沿用,并仅限于外檐柱。部分明代建筑仍沿用早期两个方向均存在侧角的做法,且内外柱均存在侧脚,如北京智化寺如来殿,大木结构为明正统遗构,金柱存在两个方向侧脚,面阔方向侧脚与进深方向侧脚相同,约为柱高的1%。[6]再如北京故宫保和殿,大木结构为明万历遗构,不仅檐柱有侧脚,所有金柱也均有侧脚,进深开间两方向未见明显差异:保和殿内金柱高9.45 m,平均侧脚85 mm,即柱高的0.9%。


养心殿正殿因墙体遮挡无法获取后檐柱及山柱柱脚的准确位置,我们仅以前檐柱及内金柱测量数据推测正殿有无侧脚:从勘测数据来看,正殿前檐柱倾斜方向及尺寸并不规矩,西南角柱与明间西缝前檐柱均出现反侧脚,但整体仍可见向明间中线方向的倾斜趋势。金柱倾斜趋势则较为明确:按均值计算,金柱面阔方向倾斜30.5 mm,进深方向倾斜25.5 mm,按柱高3513 mm,面阔方向侧脚约为柱高的0.9%,进深方向为柱高的0.7%。考虑养心殿正殿构架整体变形较小,榫卯严密,我们推测养心殿正殿存在侧脚,不仅外檐柱,金柱也有侧脚,与《法式》对侧脚规定数值接近,面阔方向侧脚略大于进深方向。


(2)梁熊背做法


养心殿正殿主要梁构件“熊背”2为近似圆弧形做法,梁熊背做法为梁中部为平面,两侧为圆滑的曲面,与梁侧面交接部位过渡自然。明初北京故宫神武门四架梁熊背为圆弧形且曲线圆滑,曲线部分宽同梁宽,与梁侧面交接部位过渡自然。其后出现近似圆弧形做法,即中段为平面,与侧面交角部位为圆弧形做法。至清代,这种曲线的弧面效果逐渐减弱,最终被四棱见线的裹棱做法所取代。养心殿体现了从明早期典型的弧形熊背做法向清代四棱见线的裹棱做法过渡的特征(图13)。


图片

图1 3养心殿正殿三架梁“熊背”

(图片来源:崔瑾摄影)


(3)柁峰做法


正殿三架梁与五架梁下梁桁交接处下方设柁峰,柁峰外形近似简化的反荷叶墩形式,无纹饰(图14)。反荷叶墩形式柁峰是明代梁桁节点下常用的支撑形式,如明初北京故宫英华殿。长方形的柁墩形式在紫禁城明代建筑中草架部位也有应用,如万历二十四年(1596)重建西华门,三、五架梁之间,五架梁与天花梁之间均为长方形柁墩形式,清代则统一为长方形柁墩的形式,仅保留结构承重作用,如养性殿三架梁与五架梁间设长方形的柁墩。在明、清两代过渡时期,也有在柁墩上隐刻柁峰的做法,明万历二十五年(1597)重建保和殿,就是在长方形的柁墩正面隐刻出柁峰的形状(图15)。彻上明造梁架因装饰性需要,明代十字科斗栱和柁峰的组合形式更为常用,与宋制更为接近,清代建筑也常沿用。


图片

图14 养心殿正殿柁峰

(图片来源:同图13)


图片

图15 保和殿隐刻柁峰

(图片来源:同图13)


(4)“螳螂头口”榫卯做法


养心殿两相邻檩间榫卯为螳螂头口(图16)。螳螂头口为《法式》的榫卯形式之一,名称较为形象,端部为六边形似螳螂的头,根部收细像膊子。明代建筑还有所沿用,如北京故宫保和殿,咸若馆。到了清代螳螂头口基本不再使用了,而是简化为燕尾榫形式,分带袖肩和不带袖肩两种。螳螂头口这种做法虽然工艺复杂,但是受力更为合理,不容易出现拔榫现象。


图片

图16 养心殿正殿相邻檩间螳螂头口

(图片来源:同图13)


(5)椽子“卷鹅头”做法


养心殿椽子交接为压掌做法并带有“卷鹅头”做法(图17)。屋面上下两根椽子交接通常有压掌和墩掌两种方式。压掌也叫等掌,是将交接部位砍制成斜面,上方的椽子压在下方椽子之上,交接出的平面几乎平行于地面。与清代直茬相交的做法不同,明代建筑常将椽子的后尾加工成卷额头的形式,象鹅的头顶,称为“卷鹅头”,早期加工更为精致,如北京故宫神武门。这样既美观,又加强了受力面,结构受力更加合理,不容易开裂。墩掌做法是清代建筑常用的做法,交接面几乎垂直于地面,缺点是容易错位。


图片

图17 养心殿正殿椽尾“卷鹅头”

(图片来源:同图13)


(6)主要结构截面尺寸


正殿为三开间,正身梁架4缝,三架梁高585 mm,宽500 mm,高宽比为1.17∶1。五架梁高710 mm,宽520 mm,高宽比为1.37∶1。天花梁高732 mm,宽549 mm,高宽比为1.33∶1。额枋高580 mm,宽425 mm,高宽比为1.36∶1。从现存实例来看,自唐代以来,梁的宽度与高度之比呈逐渐增加的趋势。按《法式》宋制梁高宽比为3∶2即1.5∶1的比例关系:“凡梁之大小,各随其广分为三分,以二分为厚”,《工程做法》清制则多在6∶5上下,即1.2∶1左右的比例关系。我们按《工程做法》规则计算正殿梁枋尺寸,发现与现状实际尺寸均不吻合,高宽比值则三架梁接近《工程做法》取值,天花梁、五架梁高宽比值在宋制与清制之间,且三架梁、五架梁与天花梁高宽比均不同,可见不同部位梁截面的高宽比并非有统一的规定。



天花藻井做法



养心殿天花以上共三间,明间为井口天花,正中设藻井,藻井两侧井口天花设有东西向帽梁,次间则为两层白樘箅子吊顶(图18),高度分别在斗栱层上下。经勘查,两次间斗栱层上天花贴梁、井口依然存有,贴梁及其所附属梁架在贴梁以下的油饰、彩画依然清晰可见。结合文献记载,足以证明养心殿三间曾经都是井口天花,现两次间的两层白堂篦子均为后世所为。


图片

图18 养心殿正殿次间白堂篦子吊顶

(图片来源:同图13)


正殿明间正中设盘龙藻井,分上中下三层,下层为方井,中层为八角井,上层为圆井(图19)。其主体结构由四根东西向趴梁、四根南北向趴梁,和四根抹角梁叠落组成。即自下而上为:下层东西向长趴梁-下层南北向短趴梁-上层南北向短趴梁-上层东西向长趴梁。勘察发现下层南北向趴梁内侧面各有两个废弃不用的卯口,推测是设计方案时趴梁为纵横交错排列,即自下而上安装顺序为:下层东西向长趴梁-下层南北向短趴梁-上层东西向长趴梁-上层南北向短趴梁(图20)。废弃卯口是原计划安装上层东西向趴梁所留。施工前按原方案下料,但实际安装时可能发现原计划榫卯连接部位受力较为薄弱,现状做法更为合理。因此将上层东西向趴梁改为南北向使用,原有卯口废弃不用,南北向趴梁两端直接趴在东西向长趴梁梁背之上。形成了现状的安装顺序,这种改变并不影响从室内向上看藻井的外观,体现了当时匠人因地制宜的合理变通。


图片

图19 养心殿正殿藻井仰视

(图片来源:故宫资料信息部提供)


图片

图20  20a.养心殿正殿藻井结构

(图片来源:同图13)

20b.养心殿正殿藻井趴梁细部

(图片来源:同图13)



斗栱做法



斗栱类型与数量


养心殿檐部为单翘单昂五踩斗栱,斗口78 mm。面阔方向明间平身科斗栱14攒,加上柱头科共16攒斗栱,次间平身科斗栱12攒,加上柱头科、角科共14攒斗栱。进深方向,山面为三间四柱,檐柱与金柱间设2攒平身科斗栱,两金柱间设8攒平身科斗栱,加上柱头科、角科,山面共16攒斗栱。明间东西两缝梁架设品字科斗栱。养心殿斗栱攒距布置已较为均匀,约为10斗口,与清代11斗口的数值不同。


坐斗斗“?”


养心殿斗栱坐斗斗底做出弧线斗?(图21)。《法式》卷四《大木作制度一·斗》记载:宋代斗栱坐斗斗底两侧不是直线,而是略向内凹的弧线,称为“?”(同‘凹’)[3]30。明代多沿袭宋制,如明初北京故宫神武门坐斗有斗?,而清《工程做法》则取消了?的做法,简

化为直线,如北京故宫太和门。


图片

图21 养心殿正殿弧线斗?

(图片来源:崔瑾摄影)


昂尾侧面隐刻“上昂”符号


养心殿斗栱昂后尾隐刻一条斜线,为“上昂”符号的残留(图22)。“上昂”是《法式》中规定的用于内檐及平坐铺作的杆件,为向上斜置的结构构件,有增加斗栱出跳后的结构稳定性的作用。明代官式建筑已不存在“上昂”构件,但部分建筑在斗栱昂后尾隐刻一条斜线,仍存有“上昂”的遗意。


图片

图22 养心殿正殿昂后尾隐刻“上昂”符号

(图片来源:同图21)



木材材质



根据中国林业科学院木材工业研究所的检测结果,养心殿正殿大木构件所用树种有楠木、硬木松、杉木,大木构件以楠木为主,占比85.5%,少量为杉木、硬木松。结构构件大部分为楠木。从脊桁、脊枋到金桁、金枋、正心桁、挑檐桁、额枋均为通长的整料。


楠木,特别是大料,在明代建筑较为常用。明代营建宫殿所用木料以楠木为主,间或使用柏木、杉木等木材,楠木主要来源于湖广川贵等地,遇有重要工程,多由皇帝直接派遣钦差总督采木。明初营建北京宫殿工程规模巨大,永乐朝为紫禁城的营建所采备的木料也是相当充足的,且当时近河大材较多,多“良材巨木”。但由于屡经采伐,明正德十五年(1520)筹建乾清、坤宁两宫时,入山较近的楠木大料就已经十分匮乏了,只有至深山中才能采伐,由于距河道较远,楠木采伐已较为艰难了。至清代,不得不大量改用其他树种。康熙二十五年(1686),康熙皇帝就称“今塞外松木,材大可用者甚多,若取充殿材,即数百年可支,何必楠木,著停止川省采运。”而实际上,雍正、乾隆朝又开始采办楠木,但由于楠木采伐更为艰难,清代采木规模远不及明代,康熙三十四年(1695)重建的太和殿,结构构件所需楠木几乎集全国之力,仍需“楠木并杉木分刂剁兼用”才能满足太和殿的需要。据《太和殿纪事》记载,“今福建省将楠木解送前来,该臣等查得,各省前后共送到楠木并杉木分刂剁兼用,约估以足建造太和殿之用,应速行建造…康熙二十七年十月二十三日题,三十三年十二月十九日奉旨依议。”3太和殿这样重要的建筑尚且不能满足楠木的需求量,可以想象其他建筑的情况,自然不得不以松木等木材逐渐替换楠木,作为柱梁枋等主要构件的木材使用。目前,养心殿大木构件保存状况非常好,与大量使用楠木关系较大。




PART.3



养心殿正殿抱厦大木结构



养心殿在明间及西次间前檐设四檩卷棚抱厦。抱厦开间六间,设前后檐柱,较为特殊的是,柱位与正殿檐柱柱位相近但并不完全对应,而是有偏移。正殿前檐柱包括附加柱的间距,自西向东为2.72 m-4.67 m-2.76 m-3.17 m-5.35 m-3.17 m。抱厦自西向东为2.72 m-4.67 m-2.67 m-2.97 m-6 m-2.98 m。抱厦进深一间,进深尺寸3.57 m。


养心殿正殿与抱厦为相互独立的结构体系,正殿前檐椽正常出檐,与抱厦交接部位均出梁头及翘昂。正殿前檐柱设抱柱,抱厦靠穿插梁与正殿拉接,穿插梁前端与抱厦前檐柱头拉接,起到穿插枋的作用,中段落于后檐柱头之上,起到梁的作用,后尾交在抱柱柱头之上,起到与正殿拉结的作用。正殿与抱厦主体梁架之间有2.7 m的间隔。两坡屋面交汇于此处,在抱厦后檐柱与正殿前檐柱之间的穿插枋上设短柱承托沟槽式走水天沟,后期废弃不用,改为屋面天沟排水。


从绘于康熙十九年(1680)的《皇城衙署图》来看,养心殿已带有抱厦。但从现状上看,正殿前檐与抱厦交接部位均为翘昂斗栱(图23),抱厦梁架自成体系,且与正殿柱网不对齐,穿插枋后尾也不是与正殿柱头正中位置相交。明清两代,斗栱种类并无太大变化,清工部《工程做法》规定的斗栱种类大致可以归纳为五类,即翘昂斗栱、一斗二升交麻叶与一斗三升斗科、三滴水品字科与内里棋盘板上安装品字科、隔架科斗栱、挑金溜金斗科[7]。其中翘昂斗科用于建筑外檐屋檐之下,四围檐柱或重檐金柱缝。若抱厦与正殿为同时建造,交接部位理应为内檐斗栱,不出翘昂,例如乾隆三十七年仿照养心殿建造的养性殿,正殿与抱厦交接处斗栱为品字科斗栱,内外檐对称,均不出翘昂(图24)。品字科斗栱,《工程做法》称“三滴水品字科”,其特点为里外出材只用翘不用昂,如翘昂斗栱里拽架,形如品字倒置,除楼房或城楼平座,一般建筑仅用于内檐,且常用于里围金缝,或天花藻井四周,不用在建筑外围柱。再从材质上来看,正殿结构构件大量使用楠木,少量为松木、杉木。而抱厦则以松木、杉木为主。由此推测,抱厦最有可能是明嘉靖十六年和清康熙十九年之间添建的。


图片

图23 养心殿正殿与抱厦间翘昂斗栱

(图片来源:同图2 1)


图片

图24 养性殿与抱厦间品字科斗栱

(图片来源:同图2 1)




PART.4



小结



养心殿正殿现存建筑始建于明代嘉靖十六年(1537),其后未发现重建或大规模改建的档案记载。从现存实物上来看,体现了诸多明代特征,在此重新整理并列举如下:


养心殿正殿从平面布局看继承了《法式》殿阁式地盘并加以变通,通面阔与通进深的比例符合北京地区现存明代官式建筑比例关系。檐柱径与柱高比接近唐宋建筑柱径与柱高常用比例,比清《工程做法》规定则更显粗壮。与清制仅外檐柱有侧脚不同,养心殿檐柱、金柱均有侧脚,且与《法式》对侧脚规定数值接近,面阔方向侧脚略大于进深方向。作为歇山式建筑,养心殿正殿山面采用圆檩形截面的踩步金,是明代建筑常见的做法,至清代则为长方形踩步金的截面所取代。收山尺寸与《工程做法》1檩径的规定不同,为檩径的2.1倍,接近北京现存明代歇山建筑实例1.5倍至2倍檩径的取值。


细部做法方面,三架梁与五架梁梁背为圆弧形熊背做法,与明初北京神武门梁熊背做法相似。三架梁与五架梁下使用反荷叶墩形式柁峰,是明代梁檩节点下常用的支撑形式。相邻檩间榫卯为螳螂头口,沿用了《法式》的这一榫卯形式。斗栱细部做法保留有明代建筑特征,坐斗有斗?,而不是清代的直线形。昂尾隐刻上昂做法,存有《法式》上昂遗意。


此外,养心殿正殿大木构件设计有其相对于其他明清官式建筑的独特之处,特别是明间开间达到11.7 m,是现存已知明清官式建筑中开间最大的建筑之一。推测其动因是使用功能上扩大空间的需要,而明代楠木大料的相对充盈是形成养心殿开敞空间的必要条件。正殿大木构件从脊桁、脊枋到金桁、金枋、正心桁、挑檐桁、额枋均为通长的楠木整料,尤为特殊的是,明间金枋和垫板连做,整根料长达11.7 m,高度达866 mm,宽542 mm,这样硕大的用料是非常罕见的。正殿楠木构件占比高达85.5%,其余材种的构件从使用位置及分散性来看,很可能为后期维修所添配。


最后,考察养心殿正殿及抱厦的年代问题,发现正殿与抱厦为独立的结构体系,正殿前檐椽正常出檐,与抱厦交接部位均出梁头及翘昂。与正殿大木构件主要使用楠木不同,抱厦以松木、杉木为主。再结合康熙十九年(1680)的《皇城衙署图》推断:养心殿正殿梁架仍为明代嘉靖时期的遗物,而抱厦很可能是明嘉靖十六年至清康熙十九年之间添建的。





注释和参考文献:略

作者:崔瑾

原题目:北京故宫养心殿正殿大木构架特征分析

文章来源:建筑遗产,2020年04期

微信来源:文物卫士

图文版权归原作者或机构所有,仅供学习参考,如有出入,请以原刊原文为准

特别鸣谢:崔瑾老师


知识点:故宫养心殿正殿大木构架特征分析

穿斗式木构架动力特性的简化分析

全部回复(0 )

只看楼主 我来说两句抢沙发
这个家伙什么也没有留下。。。

中国建筑史

返回版块

5.15 万条内容 · 173 人订阅

猜你喜欢

阅读下一篇

中国古建筑营造形式及用材的嬗变过程

建筑是一个国家文化最明显的标志。世界上很少有几个国家能像中国这样有保存完好的、大量的、各式各样的、历史悠久的古建筑。例如雄伟无比的万里长城壮丽的古塔、古寺壮观而和谐的宫殿建筑群和精巧和谐的园林建筑等等。它们代表了中华民族的智慧和才能。从建筑构造形式的变化建筑材料采用之变迁可以明显地看到中国古代建筑科学的进展概况。

回帖成功

经验值 +10