在施工中进场遇到需要调整后浇带位置的情况,施工之前需提前全面详细排查后浇带的详细设计情况,并将各层后浇带进行套图重叠,详细分析各层对应情况,以便提前考虑施工部署情况。
在结构平面图中,需要注意排查集水井与后浇带较近的情况,在平面图中由于未表示出集水井侧壁厚度的边线导致提前识别不到侧壁和后浇带冲突的问题。需要根据集水井侧壁厚度尺寸情况,后浇带提前调整局部转弯。
塔吊基础位置经常需要跨越后浇带,此时需注意提前调整后浇带与塔吊基础无冲突。另外底板后浇带穿人防口部时,为避免施工不方便以及减小对人防密闭效果的影响,将后浇带位置微调,同时调整相关柱基承台尺寸位置。对于其他个别后浇带穿人防门框和人防墙的部位不易调整,就按原设计进行了施工。
此外,本项目7#塔吊基础和条基承台距离较近,且不易将塔吊基础和底板融为一体提前施工。故此塔吊基础设置在底板下方,为方便后期塔吊基础节拆除,将局部后浇带扩大。
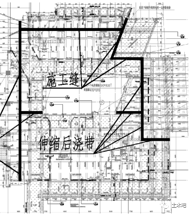
由于结构构造原因,经常导致底板和地下室各层结构的后浇带不易做到平面位置相互对应。如下图,箭头标识部位伸缩后浇带在底板位置后浇带在人防楼梯下方,地下室各层在人防楼梯上方。主要是因为底板后浇带放在人防楼梯上方时,后浇带需要穿柱基承台,不利于施工(有条件时也可以调整柱基承台尺寸以避开后浇带)。如果地下室各层后浇带调整到人防楼梯下方时,后浇带又会穿较厚市政路顶板以及顶板深梁,造成的影响也较大。另外考虑到施工部署情况,后浇带上方的底板需要先于下部底板进行施工,因此后浇带按此设计基本不影响施工部署。如果施工部署需求后浇带下方底板先行施工的话,会造成地下室各层楼板还要在底板后浇带位置留置施工缝,造成的影响较大,此种情况需要详细对比调整后浇带和留置施工缝两种情况造成的影响进行对比选择。
因此,对于后浇带不对应的情况因根据实际情况分析,有时不对应更有利于施工,需提前做好识别排查调整工作,且可通过后浇带的调整减少施工部署导致的多留置施工缝。
在结构设计时,裙房的后浇带布置常常是和地下室对应,但是由于裙房结构的变化,经常会导致后浇带留置不合理,需要根据施工部署、结构尺寸等情况进行重新调整后浇带,起到减少后浇带留设以及方便施工组织。
同时要根据钢结构、楼承板结构情况,需要后做必须留置施工缝时时,根据实际情况考虑进去统一调整。如下为02-01地块裙房结构伸缩后浇带的调整情况。
02-01地块裙房三层原设计后浇带平面图: 
02-01地块裙房五层后浇带调整后平面图: 
对于地下室部分楼层伸缩后浇带导致出现小尺寸结构的时候,根据施工部署情况可将小尺寸结构随大面一同施工时,可根据结构整体尺寸情况将伸缩后浇带改为膨胀加强带进行施工。另外,对于本项目AD栋塔楼地下室结构尺寸较大,原设计了伸缩后浇带,对于施工影响较大,将AD栋塔楼原设计的伸缩后浇带改为膨胀加强带进行施工。
设计过程中,主体结构和支护设计往往是脱节的,经常未做深度融合。需要施工单位根据图纸和施工部署方案情况统筹考虑,原则是内支撑拆除和地下室分块施工尽量匹配,以方便地下室结构和拆撑流水施工。
如下为某项目原设计的内支撑与后浇带平面图,以及内支撑和后浇带调整后的平面图,方便了施工组织流水。
地下室结构设计阶段往往不会对后浇带断开的结构在后浇带封闭前、回填土后的结构稳定性进行验算,只是常规设计验算了后浇带封闭后的整体结构安全。在施工之前需根据施工部署情况提前进行全面排查,并将施工工况提请设计进行全面排查复核,并需注重复核地下室外墙后浇带未封闭的情况下外墙的结构受力情况。
本项目市政路区域回填土较厚,根据施工进度部署情况,市政路回填土时临近地下室结构的沉降/收缩后浇带尚未封闭,此时会造成局部地下室出现悬臂结构(有单悬臂墙和一跨悬臂结构两种情况)。为防止回填土造成悬臂结构出现破坏,对此部分结构设置临时型钢支撑。传力撑根据受力计算确定采用16#和12.6#工字钢,传力撑优先布置在结构梁内,在楼板内设置间距为2.5m。
除此之外,还要特别注意地下室外墙的后浇带未封闭时进行回填土的工况,有些外墙扶壁柱间距大等结构情况、且外墙结构本身厚度及配筋不足时,后浇带未封闭的工况下导致形成受力不足的三边支撑板式结构,回填土之后导致外墙出现开裂、变形过大或破坏的质量安全问题。此种问题需要提前根据施工工况进行核实,可提前在后浇带断开处增加暗梁/柱封边等设计做法,保证回填土时结构不出现质量安全问题。
对于底板结构亦存在此问题,尤其是降水不到位时底板结构悬臂受力更大,需注意提前复核。
对于本项目A栋裙房三~五层局部沉降后浇带造成裙房结构为单排柱、两侧悬挑结构的情况,处置不当非常容易导致结构变形过大或失稳。施工时按两侧均留设回顶立杆的方式进行处理,以免对结构造成整体失稳破坏。
由于沉降后浇带的影响,使得B栋东北角位置,BC栋裙房二、三、四、五层局部的悬挑结构受力不均匀,使得此处的结构在施工过程中存在一定的结构不稳定风险,将此区域进行后做处理,具体后做区域见下图云线范围。
传力撑一般均设置型钢,具体做法与前节所述基本相同,有些项目传力撑工字钢腹板较高时,有时会在腹板上进行开孔避免砼浇筑不密实。
内容源于网络,仅作分享使用,如有侵权,请联系删除
相关资料推荐:
知识点:后浇带问题
0人已收藏
0人已打赏
免费4人已点赞
分享
混凝土结构
返回版块140.17 万条内容 · 2215 人订阅
阅读下一篇
抗震性能化设计概念梳理抗震性能化设计概念梳理 抗震性能化设计的内容最早出现在2010版《抗规》和《高规》中,距今已十余年。与传统设计法(三水准两阶段)相比,性能化设计的新概念、新内容较多,计算过程复杂。尽管主要计算可交由电脑完成,但电脑只是个工具,人才是主角,整个设计过程都要由人来引领。从出发点到目的地,路径要清晰,逻辑要严密。现尝试对性能化设计过程及基本概念进行梳理。 一、传统设计法VS性能化设计”: 1.传统设计法是“低弹性承载力─高延性”的单一解决方案;性能化设计追求承载力和延性的最佳平衡,可提供“低弹性承载力─高延性”或“高弹性承载力─低延性”的多种解决方案。比如:对于“性能目标1”,大震下基本处于弹性,则延性仅需满足最低要求即可;对于“性能目标2”,大震可能屈服,则需满足低延性要求……;对于“性能目标4”,大震接近严重破坏,需满足高延性要求。
回帖成功
经验值 +10
全部回复(0 )
只看楼主 我来说两句抢沙发