1、基槽开挖放线
①根据边坡坡度系数及预留工作面宽度放出坡顶及坡底边线。
②在坡顶1m 以外设置坡底边线控制桩。

2、基底排水沟、集水坑做法
①排水水沟距坡脚不小于300mm。
②在排水沟处每隔30~50m 设置一个积水井,集水井深度不小于600mm,长宽不小于300mm。
③排水沟内填碎石或石屑。

3、坡顶挡水基做法
①在基坑周围砌筑挡水台。
② 挡水台距边坡上口边不小于1m。

4、土钉支架、端头做法
①每隔1.5-2m 应支设一个对中支架,具体间距根据设计要求确定。
②土钉锚头应采用双锚头,锚头与土钉单面焊接长度不小于10d,端头平直段长度不小于200mm。

5、喷面边坡排水管做法
①当设计有要求时,按设计要求设置。
②当设计无要求时,设置直径40mm 塑料花管, 外侧纱布包裹,排水管外露>150mm,水平、竖向间距4m。
③当设计无要求时,办理变更或洽商。

6、基底防止雨水浸泡措施
①雨季施工,基础垫层施工前无法避免雨水浸泡基底土层,在基槽开挖时,超挖10cm 土层,回填碎石。
② 需与设计办理变更洽商。

7、CFG 桩头周围土方开挖方法
①桩头开挖时,挖机必须沿一个方向开挖CFG 桩间土方,不得双向开挖。
②机械开挖深度为桩顶以上30cm,剩余土方由人工开挖。
③桩头应随挖随切,以免二次切桩扰动地基土层。

8、基底钎探点布置
基底钎探时,存在高低差部位布点应避开斜坡。

9、基坑侧边垫层做法
①将基坑侧边松散土层清理干净。
②挂30*50mm 菱形钢板网。
③钢板网表面浇筑混凝土,一次性压光。
④下雨前完成已开挖部位垫层,防止雨水侵泡。

10、群管下方土方回填方法
①采用人工从管道两侧斜下方挤密。
②管道两侧及正上方500mm 范围内用人工夯实,避免损坏管道。
③管道以上500mm 范围内,不得含有冻土块回填。

11、肥槽回填土夯实方式
①每层夯实不得少于3 遍。
②一夯压半夯,夯夯相连。
③沿墙根开始向外按次序夯实。
④机械无法施工范围,由人工夯实。

12、回填土分层厚度及压实遍数
①分层夯实。
②分层退台。
③基槽回填,每层按20—50 米取一组,但不少于一组。
④基坑和室内回填,每层按100—500 平方米取样一组。

13、基底土层防冻措施
①地基土以覆盖草帘被保温为主,一般0℃~-10℃时,覆盖双层草帘被,-10℃以下时,覆盖三-四层草帘被。
②基坑开挖后,不能及时进行基础施工时,应按设计基底标高预留土层,边清槽边做基础(预留土层厚度大于当地冻土层深度)。

14、基坑侧边防水卷材铺贴要求
基坑侧边及距坡顶、坡底800mm宽度范围内防水卷材必须实铺。

15、后浇带超前止水构造做法
①沉降后浇带均采用超前止水构造;
②先浇筑超前止水构造的砼,再浇筑底板砼;
③底板砼浇筑前应对先浇筑的砼表面凿毛处理;
④超前止水伸缩缝下增设500 宽防水附加层;

16、导墙止水钢板焊接及阴阳角位置做法
①止水钢板搭接处需要双面紧贴满焊,搭接长度为100mm。
②阴阳角处的止水钢板采用整块板弯折后贯通。
③止水钢板搭接位置距离转角不应小于300mm。

17、止水钢板穿柱、梁部位的箍筋加固方法
①当止水钢板需穿过柱子和梁箍筋时,此箍筋应使用开口箍,与止水钢板进行焊接。
②单面焊接长度不小于10d 且不允许将止水钢板焊穿。

18、止水螺杆的质量要求
①双面焊接饱满;
②无砂眼、无夹渣、无漏焊;
③螺栓直径d 不应小于14mm;
④止水环厚度3mm;

19、地下室外墙止水螺杆端部处理方法
①取下锥形螺套。
②聚合物水泥砂浆封堵。
③做防水附加层。

20、地下室外墙采用脱卸式止水螺杆
①内杆加工尺寸必须准确。
②锥形螺套控制外墙尺寸。
③钢制大模板穿墙螺栓采用图一。
④木模穿墙螺栓采用图二。


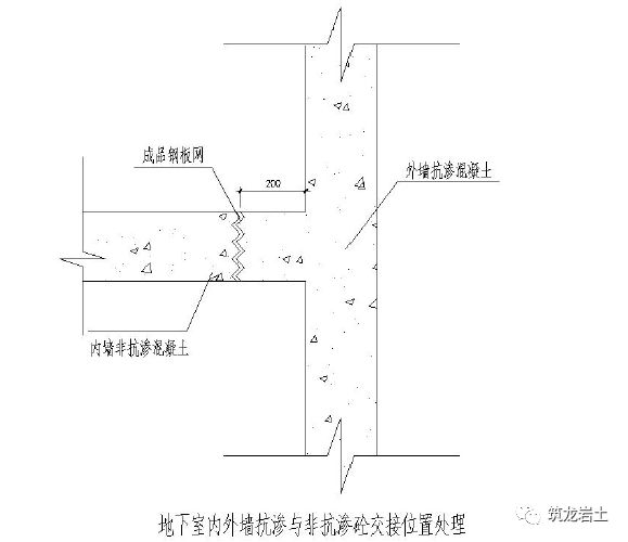
21、外墙抗渗与非抗渗混凝土交接位置处理方法
①地下室墙体混凝土浇筑时,应在内墙距外墙200mm 位置设置竖向通长钢丝网,拦截抗渗混凝土。
②待外墙抗渗混凝土浇筑完成后再浇筑内墙混凝土。

22、地下室外墙根部防水做法
①转角位置做50mm 圆弧。
②转角、变形缝、施工缝、管根处做防水附加层,宽度不小于500mm。
③立面防水卷材搭接宽度不小于150mm。
④相连卷材接头应错开不小于500mm。
⑤上下两层和相邻两幅卷材的接缝应错开1/2 幅宽且两层卷材不得垂直铺贴。

23、出墙群管管根做法
①出墙群管管根应设置混凝土墩台,与外墙混凝土同时浇筑,外侧群管外皮距墩台外边混凝土不小于200mm。
②群管横竖向净间距不小于100mm。
③群管端头采用钢板临时封堵时,钢板不应超出管边,以便正面模板安装。
④墩台内侧应设置模板定位支架,保证墩台浇筑尺寸。
⑤墩台外侧模板采用钢管加固。

24、车库顶板阳角防水节点
①阳角防水附加层宽度不小于500mm。
②立面与平面转角处,卷材接头应留在平面上,距立面不小于600mm。
③立墙与平面防水卷材的搭接宽度均不小于150mm。

25、外墙卷材防水收头做法
①地下墙体收头部位应高出设计室外地坪500mm。在未到500 高度即遇门窗洞口时,防水转入洞口。
②收头部位使用使用密封膏密封。
③防水收头方式应根据工程实际情况进行。

26、外墙防水卷材保护措施
①外墙防水分段验收合格后,采用50mm 厚模塑聚苯板进行保护。
②保温板采用聚合物砂浆进行粘贴,粘结面积不小于10%。

27、柱筋定位方法
①柱子插筋在底板或梁内生根需设置间距不大于500 且不少于两道箍筋。
②柱子上口设定位框,距结构面50mm。

28、板后浇带位置钢筋定位
为保证板后浇带位置钢筋保护层厚度均匀一致,需在后浇带位置设置马凳。

29、基础导墙模板支设及加固做法
①导墙模板采用废旧钢筋头焊制的固定卡加固。
②间距不大于1m。

30、底板及顶板后浇带拦茬做法
①采用废旧钢筋头焊接钢筋骨架。
②将免拆钢板网与钢筋骨架绑扎牢固,钢筋骨架应于板底或板顶钢筋绑扎牢固。
③后浇带盖板应在混凝土浇筑前安装且在后浇带浇筑时拆除。

31、地下挑板下方回填土做法
①沿挡墙底部做混凝土垫层,垫层必须做在原基底土层。
②待外墙防水层施工完成后,沿挑板外围砌筑砌筑240mm 挡土墙至悬挑板底。
③待挡墙砂浆具备土体测压强度后方可回填土。
④下沉庭院结构须按悬挑结构设计。
⑤增加挡土墙需办理变更或洽商。
⑥该做法限用于砌筑高度在4.5m以内。

内容源于网络,仅作分享使用,如有侵权,请联系删除
相关资料推荐:
知识点:土方及边坡、地下防水、地基与基础工程标准化做法
0人已收藏
0人已打赏
免费14人已点赞
分享
地基基础
返回版块12.11 万条内容 · 717 人订阅
回帖成功
经验值 +10
全部回复(3 )
只看楼主 我来说两句-
lyj2002sd
沙发
2023-01-06 09:58:06
赞同0
-
ccmmj88
板凳
2022-12-12 11:37:12
赞同0
加载更多来学习一下,感谢!!
回复 举报
学习了!!!!
回复 举报