当住宅被套上“紧箍咒”之后,公寓便成了“香饽饽”成都上半年公寓产品销量181万㎡,大涨74%杭州今年前5个月,卖出了18000多套酒店式公寓。
深圳市场上目前的在售项目中,公寓更是占了大半边天,8月份一些项目周成交均超过200套长沙华远某公寓项目更是开盘当天销售近10亿

长沙华远华时代开盘现场
住宅严格限购以后,促使了各个城市的公寓产品炙手可热,市场上爆款公寓火爆销售的新闻接二连三,商业公寓一时间成为了地产开发新的突破点。前期投拓项目中,商业地块越来越多以往的公寓产品由于居住属性比较差,以及产权年限短等问题,相较住宅有不少劣势如何把握好公寓的户型的尺度,提升公寓的舒适度?今天,就和大家分享最常见的酒店式公寓平面选型的知识
酒店式公寓的平面组合形式大致有以下几种:
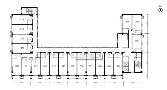
1.走道式组合——内廊式

内廊式即是沿走道两侧布置房间
优点:平面紧凑,实用率高,进深可控,体型方正,有利于寒冷地区的保温节能。
缺点:但有一侧房间的朝向较差,走道两侧的房间之间有一定的干扰,走道的采光通风较差。
2.走道式组合——外廊式

外廊式是沿走道一侧布置房间
优点:可使房间获得良好的朝向及采光通风条件
缺点:但其走道所占面积相对较多,实用率低,建筑进深较小,用地较多,不够经济。
3.中庭式

中庭式即四周围合,留出中庭
优点:除了房间有良好的窗外景观之外,走廊一侧也提供了较好的中庭景观,并且部分裙楼还做到南北通透。
缺点:实用率较低。

4.塔楼式

塔楼式是指中部的核心筒被单一的走廊或很多房间环绕着,对塔外部的建筑处理可以有不同图形方案,有方形、十字形、圆形、三角形等等。
优点:适用于超高层结构选型要求,平面紧凑,布局整齐,外形较为统一,利于建筑的标准化和形式的多样化,利用率较高。

长沙华远华时代超高层公寓
5.多种组合式
最后一种形式那当然就是前面几种形式的灵活运用了,自由组合,及其所长。咱湾畔D4公寓就是最典型的多种组合方式了。

长沙兰亭湾畔D4栋公寓
公寓的外立面固然重要,但决定成交的一定是它的内在。公寓的内在---平面功能而对于公寓平面功能起决定性作用的是它的组合形式
知识点:商业公寓如何做好平面选型
0人已收藏
0人已打赏
免费1人已点赞
分享
居住建筑设计
返回版块28.74 万条内容 · 423 人订阅
阅读下一篇
如何进行门窗优化设计门窗的优化设计是所有房地产企业比较关心和重视的一个课题,门窗优化设计不是通常所说的材料优化利用率。门窗材料的优化利用率也是影响成本的重要因素之一,但这是在门窗设计、生产过程中都必须要严格控制的一个指标,而且行业内也有相对通行的指标来衡量。本文探讨的内容更多的是侧重于在门窗设计和选用过程能够采取哪些技术措施和手段,来合理降低门窗的各项材料成本,而又不影响产品质量和使用功能,从而提高产品的性价比,这是房门窗企业在激烈的市场竞争中增强和确立企业竞争优势必不可少的砝码,也是增强企业核心竞争力的重要保障。
回帖成功
经验值 +10
全部回复(1 )
只看楼主 我来说两句 抢板凳感谢楼主的无私奉献
回复 举报