土木在线论坛 \ 电气工程 \ 电气工程原创版块 \ 分配电箱、总配电箱(柜)、开关箱如何布置

分配电箱、总配电箱(柜)、开关箱如何布置

发布于:2022-11-17 17:44:17 来自:电气工程/电气工程原创版块 [复制转发]

知识点:分配电箱

“配电箱”应用比较普遍,它是数据上的海量参数,它可以合理的分配电能,方便对电路的开合操作,有较高的安全防护等级,能直观的显示电路的导通状态,一般是构成低压林按电气接线,要求将开关设备、测量仪表、保护电器和辅助设备组装在封闭或半封闭金属柜中或屏幅上,下面分享配电箱中“分配电箱、总配电箱(柜)、开关箱”的标准化配置!


图片
配电箱的基本要求: 1、配电箱(柜)、开关箱安装使用应符合《施工现场临时用电安全技术规范》JGJ46-2005标准及《用电安全导则》GB/T13869标准化要求。 2、配电箱(柜)的生产制造应符合《低压成套开关设备和控制设备》第四部分GB7251.4对建筑工地用成套设备(ACS)的特殊要求及《施工现场临时用电安全技术规范》JGJ46-2005的标准要求。 3、配电箱(柜)、开关箱应分设N线、PE线端子板,进出线必须通过端子板做可靠连接,N线端子板必须与金属电器安装板绝缘;PE线端子板必须与金属电器安装板做电气连接,进出线中的N线必须通过N线端子板连接;PE线必须通过PE线端子板连接,PE线与端子板连接必须采用电气连接,电气连接点的数量应比箱体内回路数量多2个,1个为PE线进箱体的连接点,1个为重复接地的连接点。

图片
4、配电箱架设应符合下列要求: (1)配电箱、开关箱在建筑物坠落半径或塔吊臂旋转半径内的必须做双层防护棚,并采取隔离措施 (2)固定式配电箱、开关箱箱体中心点与地面垂直距离1.4-1.6m。移动式箱体与地面垂直距离0.8-1.6m。配电箱、开关箱应装设在坚固、稳定的支架上。 5、配电室布置应符合下列要求: (1)配电柜侧面的维护通道宽度不小于1m,配电室的棚顶与地面的距离不低于3m; (2)配电柜正面的操作通道宽度,单列布置或双列背对背布置不小于1.5m,双列面对面布置不小于2m; (3)配电柜后面的维护通道宽度,单列布置或双列面对面布置不小于0.8m,双列背对背布置不小于1.5m,个别地点有建筑物结构凸出的地方,则此点通道宽度可减少0.2m。

图片

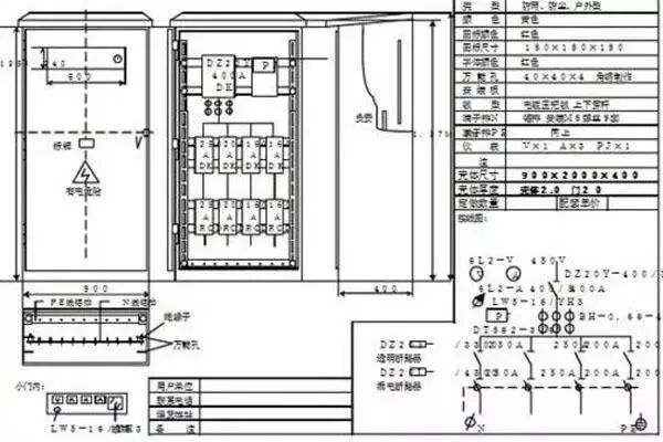
分配电箱 分配电箱(动力回路与照明回路分路配电)内设200A-250A具有隔离功能的DZ20系列透明塑壳断路器作为主开关(与总配电箱分路设置断路器相适应);采用DZ20或KDM-1型透明塑壳断路器作为动力分路、照明分路控制开关;各配电回路采用DZ20或KDM-1透明塑壳断路器作为控制开关;PE线连线螺栓、N线接线螺栓根据实际需要配置。

图片
图片
图片

图片

总配电箱(柜) 总配电箱内设400A-630A具有隔离功能的DZ20型透明塑壳断路器作为主开关,分路设置4-8路采用具有隔离功能的DZ20系列160A-250A透明塑壳断路器,配备DZ20L(DZ15L)或LBM-1系列作为漏电保护装置,使之具有欠压、过载、短路、漏电、断相保护功能,同时配备电度表、电压表、电流表两组电流互盛器。漏电保护装置的额定漏电动作电流与额定漏电动作时间的乘积不大于30mA.S,最好选用额定漏电动作电流100-200mA,额定漏电动作时间大于0.1S,其动作时间为延时动作型。

图片
图片
图片
图片
图片
图片
图片
图片

相关推荐链接:

1、新建住宅小区供配电设施建设管理标准

2、浅谈高速公路供配电工程的建设管理


全部回复(0 )

只看楼主 我来说两句抢沙发
这个家伙什么也没有留下。。。

电气工程原创版块

返回版块

2.2 万条内容 · 598 人订阅

猜你喜欢

阅读下一篇

三级配电二级漏保,总配电箱、分配电箱、开关箱设置

知识点:总配电箱 1、三级配电二级漏保总体要求   ★  施工现场配电系统应采用三级配电、二级漏电保护系统;   ★  用电设备必须有各自专用的开关箱;   ★  漏电保护器参数应匹配并灵敏可靠;

回帖成功

经验值 +10