一、情况说明
商铺11#楼3区11-3-13/11-3-A轴工程桩比设计桩位向11-3-B轴方向偏移400mm,导致承台、框架柱与工程桩偏心。为保证结构安全,特编制此方案。
二、处理措施
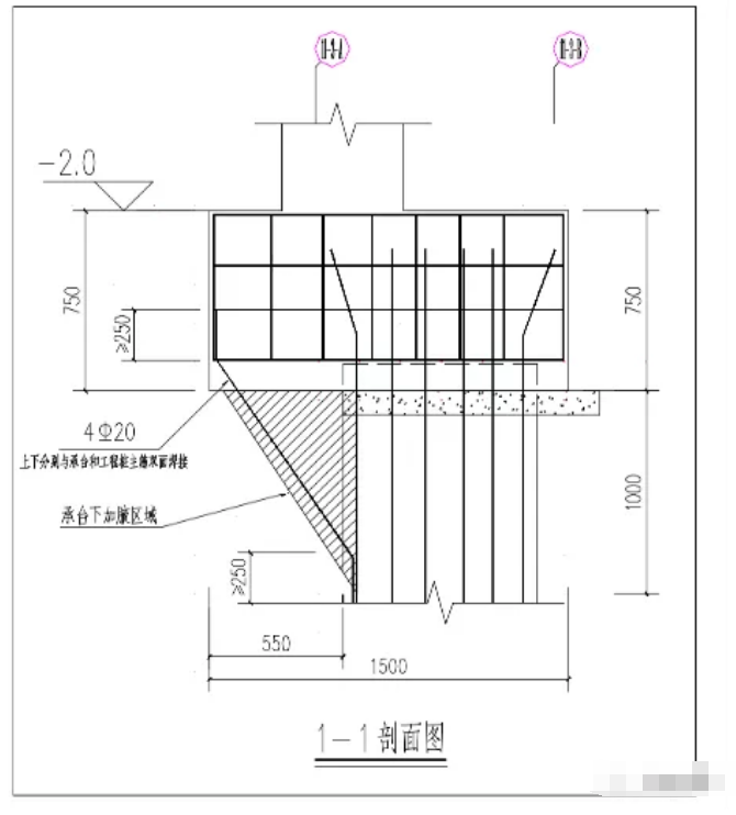
1.加大承台。在原设计承台定位的基础上将此部位承台向11-3-A轴以外方向加宽至1400mm,保持承台距框架柱和工程桩边线距离不变,承台厚度保持750mm不变;
2.承台下加腋处理。在工程桩偏移后承台下的空位挖开,将工程桩主筋剥出四根,用4根直径20的三级钢分别与承台钢筋双面搭接焊接,焊接长度不小于250mm(如图下所示),加腋部位混凝土标号同承台混凝土标号;


3.11-3-13轴方向梁增加悬挑配筋。在11-3-13轴方向梁面筋增加4根直径20的三级钢,底筋增加2根直径20的三级钢,一端沿11-3-13轴方向按抗震构造锚入11-3-13/11-3-B轴承台,一端锚入加宽后的承台。
推荐资料(点击文字跳转):
知识点:偏桩处理方案
0人已收藏
0人已打赏
免费0人已点赞
分享
市政工程施工
返回版块15.12 万条内容 · 392 人订阅
阅读下一篇
高速公路标识之"字母"和"数字"看到国道、省道、县道标志,总是让人晕头转向! 那么,不知道大家有没有好奇过?这么多高速、国道、省道、县道的标识,是否存在一定的规律! 今天逐一为大家解释,当然你也可以直接跳到最后看总结。 1、以北京为中心呈放射线的高速,字母后为一位数字。 2、后两位为奇数的则为北南纵线的高速,例如: 3、后两位为偶数的则为东西走向的高速,例如: 4、字母后为
回帖成功
经验值 +10
全部回复(0 )
只看楼主 我来说两句抢沙发