土木在线论坛 \ 建筑设计 \ 中国建筑史 \ 居住空间设计

居住空间设计

发布于:2022-11-08 17:14:08 来自:建筑设计/中国建筑史 [复制转发]

2.3.1主卧室设计


1、主卧室的使用需求

①睡眠休息

②衣物储藏  储藏衣服、被褥及个人物品等

③梳妆打扮  穿衣、化妆等

④工作学习  看书、家庭办公等

⑤休闲娱乐  观看电视等

注意满足私密性和隔音的要求(避免周边视线和活动对其造成干扰)

2、主卧室的设计要点

①满足双人床临空布置的需求,方便两侧上下床和整理床铺。

图片

②老人卧室应将床布置在阳光充足的位置

图片

③不宜将床头正对窗布置  冷辐射和缝隙风容易使人着凉,在寒冷地区尤需避免

图片

④床不宜紧靠窗布置  床临窗摆放时会妨碍开关窗,同时雨天忘记关窗会有淋湿被褥的问题

图片

⑤年轻夫妇家庭考虑主卧设置婴儿床的需求  主卧的进深设置的大一些,以保证在放置婴儿床的同时,不影响其他功能的正常使用

图片

3、主卧的尺寸要求

(1)面积要求

《住宅设计规范》GB50096-2011规定:双人卧室使用  面积不应小于9㎡。

   中小户型主卧室使用面积通常为12-15㎡

   大户型卧室使用面积通常可以达到15-20㎡

主卧室的使用面积不宜过大

过大的主卧室存在空间空旷、缺乏亲切感、家具间距较远使用不便等问题

(2)面宽要求

①双人床长度(2000mm—2300mm)

②通行宽度(600mm以上)

③壁挂电视厚度(200mm)或低柜宽度(600mm)

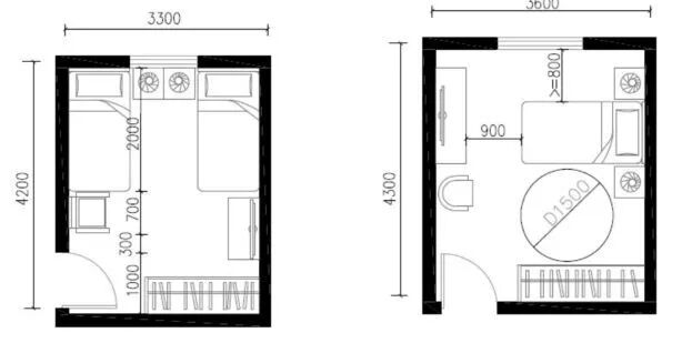
通常情况下主卧面宽不小于3600mm,达到3900mm时较为舒适,一般不宜小于3300mm。

图片

(3)进深要求

①双人床宽度(1500mm—2000mm)

②床两侧通行宽度(600mm×2)

③衣柜深度(600mm)

④写字台宽度(900mm--1200mm)

一般主卧进深不宜小于3900mm

图片


2.3.2次卧室设计


1、次卧室的使用需求

各家对次卧室的安排不尽相同,主要作为子女用房、老人用房或者客房,有时也作为储藏间、家务室、保姆间等使用。

2、子女用房的家居设备及设计要点

①子女用房的主要家用设备

单人床、床头柜、衣柜、书桌、座椅、书柜、电脑等。

②子女用房的功能需求

睡眠、学习、游戏活动、储藏...

③次卧室应做好弹性设计

儿童成长速度快,不同性别的孩子需要分开居住

④可以考虑设置上下铺或是两张床位

满足两个孩子同住或者有小朋友在家里留宿的需求

⑤子女的书桌旁应留有家长的座位

方便辅导孩子作业或与孩子交流

图片

3、老年人用房的家居设备及设计要点

①卧室空间应满足两位老人分床就寝的需求

②保证老人在观看电视时有良好的视距和视角

③护理老人房中应留出轮椅回转的空间

④充分利用好窗边空间

可以将座椅和床布置在阳光充足的地方,一边老人在休息时沐浴阳光

⑤房间尺寸需考虑家具摆放的不同的可能性

可以根据季节的变化来调整家具的摆放位置

图片

4、次卧室的尺寸要求

①一般套型:次卧室面宽不宜小于2700mm,面积不宜小于10㎡

②小套型:面宽不宜小于2400mm,面积不小于8㎡

③若考虑划分为2个房间的可能性,其面宽不宜小于4500mm。

④两位老年人共同居住时,面宽不宜小于3300mm,面积不宜小于13㎡。考虑轮椅通行的需求,面宽不宜小于3600mm。

图片


知识点:居住空间设计

  • fenghuaade
    fenghuaade 沙发

    感谢楼主的分享,建筑知识又增加了


    2022-11-08 18:07:08

    回复 举报
    赞同0
这个家伙什么也没有留下。。。

中国建筑史

返回版块

5.15 万条内容 · 172 人订阅

猜你喜欢

阅读下一篇

道教祠观经典案例

典型案例:山西芮城永乐宫三清殿 ?建筑为元代时期建造。 ?面阔7间,进深4间,单檐四阿顶。 ?檐柱有生起及侧脚,檐口及正脊都呈曲线。 ?殿内“减柱造”。 ?殿前月台二重,踏步两侧保持象眼做法。 ?立面比例和谐,侧脚、生起显著,外观柔和秀美。 ?内部壁画是元代艺术精品。

回帖成功

经验值 +10