《汽车库、修车库、停车场设计防火规范》规定:
汽车库、修车库的人员安全出口和汽车疏散出口应分开设置。设置在工业与民用建筑内的汽车库,其车辆疏散出口应与其他场所的人员安全出口分开设置。
毗邻设置的两个汽车坡道应采用防火隔墙分隔。
汽车库内的汽车坡道两侧应采用防火墙与停车区隔开,坡道的出入口应采用水幕、防火卷帘或甲级防火门等与停车区隔开;但当汽车库和汽车坡道上均设置自动灭火系统时,坡道的出入口可不设置水幕、防火卷帘或甲级防火门。

非敞开式的汽车库的自然通风条件较差,一旦发生火灾,火焰和烟气很快地向上、下、左、右蔓延扩散,若汽车库与汽车疏散坡道无防火分隔设施,对车辆疏散和扑救是很不利的。当前大部分地下车库,为了美观和采光需要,又或为了避免计容,运营后出入口坡道上方增设透明的遮雨棚,从而造成这部分坡道上方无法设置自动喷淋系统,设计阶段又遗漏了采用水幕、防火卷帘或设置甲级防火门等措施,这样地下车库的消防安全就产生了隐患,应引起重视尽量避免。
地下车库在暴雨季节进水的事件每年总有发生,对汽车造成损害,引起多方纠纷。造成这些的主要原因就是地库口部雨水的倒灌,要解决地库口部雨水有组织排出,结合平时的防水功能,我们提出如下防、排水方案:
对于多层地下车库的情况,连接内部上下层之间的坡道如无地方性明确要求则不需再设置截水沟。
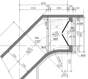
坡道顶板不建议做折板及上反梁,折板及反梁位置转折较多,反梁根部又易在雨天形成积水,二者叠加,增加了渗漏的风险。
坡道底板与地库底板施工缝处应做有效防水措施。同时应采取可靠措施减少此位置沉降,避免止水带撕裂。实际中此位置出现渗水漏水问题也较多,降低了整个工程的品质。
地库轮廓内的坡道正下方经常会作为停车空间、设备用房、储藏间等使用,坡道作为这部分空间的顶板应设置防水层,防止坡道表面雨水渗漏到下方房间内。
降雨量较大的城市或项目地处城市低洼区域时,可在坡道地面口部使用防汛挡水板和防汛沙包。在坡道下方就近设置收纳间或收纳柜,用来存放防汛沙包。收纳间大小3—5㎡为宜,有条件的设置双开门。
在人防设计中,汽车坡道出入口可作为人防室外出入口使用,二者结合可有效减少人防出地面人行出口的数量。人防主要出口布置应尽量利用汽车库坡道、自行车库坡道,当利用汽车库坡道时,两防护分区出入口可合用一个汽车库坡道,按两出入口总宽度计算疏散宽度。
人防主要出口的室外出入口通道的出地面段(无防护顶盖段)尽量布置在房屋防塌范围之外,否则应按防倒塌棚架设计。

▲ 甲类防空地下室地面建筑倒塌范围
避免坡道缓坡阻碍人防门开启。防护密闭门和密闭门的门前通道,其净宽和净高应满足门扇的开启和安装要求。
实际设计工作中常见由于疏忽造成的将人防门设置于起坡线上,而人防门要向冲抵波方向也就是坡道方向开门,那么在这种情况下,门是无法开启的,应避免此类问题发生。

▲ 人防门与坡道冲突
车辆进出地下车库时,一般为怠速行驶,车速不超过20km/h,噪声较正常行驶时高,特别是上坡时发动机噪音更大。同时坡道口部地面通常会有凹凸的防滑措施以及减速带,轮胎与地面会产生较大的摩擦噪音,一般认为发动机噪音与胎噪叠加,距车1m处等效声级为60—70dBA。因此我们在做坡道防滑处理的时候也应注意口部的降噪措施,二者结合, 避免雨雪天气出现打滑以及行车时产生扰民的噪音。
材质本身外麻面,利用材质的凹凸不平达到防滑效果,如麻矿场砖面层、毛面花岗石面层;
材质本身平滑,设计中通过特殊处理或嵌入水泥砂浆、缸砖面层等;
材质本身平滑,设计施工中做出宽度和深度不同的凹槽,以此达到防滑效果,如凹线细石混凝土坡道,开凹槽花岗石坡道等。
我们应注意的是这三种做法防滑效果逐次提高,但舒适度和噪声却成反向增长。具体方式我们应根据项目所在地降水量、坡道是否有雨棚、是否有24小时值守人员进行清理等进行选择。目前常见的还有一种水泥礓磋坡道,噪声大,振动大,凸出的尖角很快就被汽车压坏,防滑效果衰减,这种做法在设计中不宜采用。
来源:铁建地产营造设
知识点:地下车库其他设计要求
0人已收藏
0人已打赏
免费2人已点赞
分享
公共建筑设计
返回版块51.17 万条内容 · 447 人订阅
阅读下一篇
地下车库出入口坡道相关参数对于与地库出入口坡道直接相关的坡度、净高、宽度、转弯半径等参数指标,规范均有明确的规定,设计中应充分理解规范并严格执行。最基本的使用功能是建立在合规基础之上的。 1 坡道坡度 《汽车库建筑设计规范》规定,微型车、小型车直线坡道坡度最大为15%,曲线坡道坡度为最大为12%。
回帖成功
经验值 +10
全部回复(1 )
只看楼主 我来说两句 抢板凳感谢楼主分享 好文章 大家可以学习一下
回复 举报