(一)核心筒相关规范梳理、对比(新、旧)
1、建筑高度:单、多层住宅h≤21m
楼梯(新防火规范):一部(可开敞)
楼梯(旧防火规范):一部(可开敞)
电梯(新防火规范):无
电梯(旧防火规范):无
2、建筑高度:单、多层住宅21m<h≤27m
楼梯(新防火规范):一部(封闭)
当每一单元任一层的建筑面积大于650㎡,或任一户门至最近安全出口的距离大于15m时,每个单元每层的安全出口不应少于2个。
当户门采用乙级防火门时,可采用敞开楼梯间
楼梯(旧防火规范):一部(可开敞)
九层及九层以下的居住建筑(包括设置商业服务网点的居住建筑),
当住宅中的电梯井与疏散楼梯相邻布置时,应设置封闭楼梯间,
当户门采用乙级防火门时,可不设置封闭楼梯间。
电梯(新防火规范):一部
七层及七层以上住宅或住户入口层楼面距室外设计地面的高度超过16m的住宅必须设置电梯
电梯(旧防火规范):无
3、建筑高度:二类高层住宅27m<h≤33m
楼梯(新防火规范):一部(封闭)
当每一单元任一层的建筑面积大于650㎡,或任一户门至最近安全出口的距离大于10m时,每个单元每层的安全出口不应少于2个
当户门采用乙级防火门时,可采用敞开楼梯间
楼梯(旧防火规范):一部(开敞)
高层建筑:十层及十层以上的居住建筑(包括首层设置商业服务网点的住宅)
高层建筑每个防火分区的安全出口不应少于两个。
二类高层建筑:十层至十八层的住宅十一层及十一层以下的单元式住宅可不设封闭楼梯间,但开向楼梯间的户门应为乙级防火门,且楼梯间应靠外墙,并应直接采光和通风。
电梯(新防火规范):一部
电梯(旧防火规范):无
4、建筑高度:二类高层住宅33m<h≤54m
楼梯(新防火规范):一部(防烟)
同一楼层或单元的户门不宜直接开向前室,确有困难时,开向前室的户门不应大于3樘且应采用乙级防火门。
当每一单元任一层的建筑面积大于650㎡,或任一户门至最近安全出口的距离大于10m时,每个单元每层的安全出口不应少于2个
防烟楼梯间应设置防烟设施
前室可与消防电梯前室合用,前室使用面积不应小于4.5㎡,合用时不应小于6.0㎡
楼梯(旧防火规范):一部(封闭)
十二层至十八层的单元式住宅应设封闭楼梯间
十八层及十八层以下,每层不超过8户、建筑面积不超过650㎡,且设有一座防烟楼梯间和消防电梯的塔式住宅十八层及十八层以下每个单元设有一座通向屋顶的疏散楼梯,单元之间的楼梯通过屋顶连通,单元与单元之间设有防火墙,户门为甲级防火门,窗间墙宽度、窗槛墙高度大于1.2m且为不燃烧体墙的单元式住宅可设一个安全出口
高层居住建筑的户门不应直接开向前室,当确有困难时,部分开向前室的户门均应为乙级防火门。
电梯(新防火规范):两部(一部消防电梯)
十二层及十二层以上的住宅,每栋楼设置电梯不应少于两台,其中应设置一台可容纳担架的电梯
电梯(旧防火规范):塔式住宅、十二层及十二层以上的单元式住宅和通廊式住宅应设消防电梯
消防电梯间应设前室,其面积:居住建筑不应小于4.50㎡;当与防烟楼梯间合用前室时,其面积:居住建筑不应小于6㎡
消防电梯的载重量不应小于800KG
5、建筑高度:一类高层住宅54m<h≤100m
楼梯(新防火规范):二部(防烟)
当分散设置确有困难且任一户门至最近疏散楼梯间入口的距离不大于10m时,可采用剪刀楼梯间,但应符合下列规定:
1:应采用防烟楼梯间
2:梯段间应设置耐火极限不低于1.00h的防火隔墙
3:楼梯间的前室不宜公用;公用时,前室的使用面积不应小于6.0㎡
4:楼梯间的前室或公用前室不宜与消防电梯的前室合用;合用时,合用前室的使用面积不应小于12㎡,且短边不应小于2.4m
楼梯(旧防火规范):两部(防烟)
一类高层建筑:
十九层及十九层以上的住宅十九层及十九层以上的单元式住宅应设防烟楼梯间
建筑高度超过32m的塔式住宅应设防烟楼梯间
超过十八层,每个单元设有一座通向屋顶的疏散楼梯,十八层以上部分每层相邻单元楼梯通过阳台或凹廊连通(屋顶可以不连通),
十八层及十八层以下部分单元与单元之间设有防火墙,且户门为甲级防火门,窗间墙宽度、窗槛墙高度大于1.2m且为不燃烧体墙的单元式住宅可设一个安全出口
塔式高层建筑,两座疏散楼梯宜独立设置,当确有困难时,可设置剪刀楼梯,并应符合下列规定:
剪刀楼梯间应为防烟楼梯间
剪刀楼梯的梯段之间,应设置耐火极限不低于1.00h的不燃烧体墙分隔
剪刀楼梯应分别设置前室。
塔式住宅确有困难时可设置一个前室,但两座楼梯应分别设加压送风系统
〖条文说明〗特别要指出的是,有少数设计在剪刀楼梯梯段之间不加任何分隔,也不设防烟楼梯间,还有一种与消防电梯合用的前室,两个楼梯口均开在一个合用前室之内,这两种设计,都不利于疏散,不能采用,更不能推广
电梯(新防火规范):两部(一部消防电梯)
十二层及十二层以上的住宅由两个及两个以上的住宅单元组成,且其中有一个或一个以上住宅单元未设置可容纳担架的电梯时,从第十二层起应设置与可容纳担架的电梯联通的联系廊。
联系廊可隔层设置,上下联系廊之间的间隔不应超过五层。
联系廊的净宽不应小于1.10m,局部净高不应低于2.00m。
候梯厅深度不应小于多台电梯中最大轿厢的深度,且不应小于1.05m
确保残疾人的轮椅回转空间,一般宜在1.8m-2m之间。
电梯(旧防火规范):无
6、建筑高度:h≥100m
楼梯(新防火规范):二部(防烟)
楼梯(旧防火规范):一部(可开敞)
电梯(新防火规范):两部(一部消防电梯)
电梯(旧防火规范):无
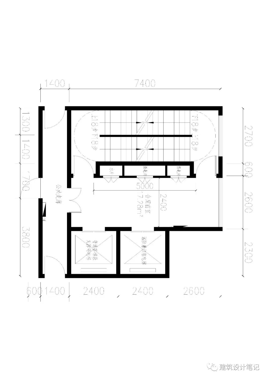
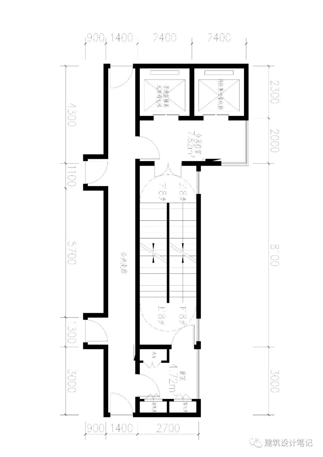
(二)核心筒相关尺寸要求
楼梯间尺寸要求:
楼梯梯段净宽不应小于1.10m。楼梯踏步宽度不应小于0.26m,踏步高度不应大于0.175m。楼梯平台净宽不应、小于楼梯梯段净宽,且不得小于1.20m。
住宅楼梯为剪刀梯时,楼梯平台净宽不得小于1.30m
户门和安全出口的净宽度不应小于0.90m
疏散走道、疏散楼梯、和首层疏散外门的净宽度不应小于1.10m。建筑高度不大于18m的住宅中一边设置栏杆的疏散楼梯,其净宽度不应小于1.0m
每个住宅单元每层相邻两个安全出口以及每个房间相邻两个疏散门最近边缘之间的水平距离不应小于5m
消防前室尺寸要求:
分设前室面积不小于4.5㎡,合用前室面积不小于6㎡。
应采用乙级防火门并向疏散方向开启
电梯间尺寸要求:
消防电梯载重量800KG,普通客梯载重量600KG
上海《住宅设计标准》多层及以上住宅应设置电梯。
当为中高层及以上住宅时,其轿厢尺寸不应小于1.40m(x)1.10m
十二层及以上高层住宅每栋楼设置电梯不应少于两台,其中一台电梯的轿厢尺寸不应小于1.60m(x)1.50m
公共走道尺寸要求:
住宅走廊通道净宽不得小于1.2m。此外,高层居住户门不应直接开向前室,若确有困难,必须采用乙级防火门,且开向同一前室的门数量必须少于三个。
候梯厅尺寸要求:
候梯厅深度不小于多台电梯中最大轿厢的深度,且不应小于1.05m,确保残疾人的轮椅回转空间。
一般宜在1.8-2m之间
公共管道井尺寸要求:
公共管道包括采暖供回水总立管,给水总立管、雨水立管、消防立管和电气立管等,不宜设置住宅套内,应设在便于检修的公共部位。
采暖、给排水井道最小进深600mm,面宽1500mm左右;
电气、强电、弱电一般各需面宽500mm,进深500mm的管井。具体尺寸需根据实际项目要求调整。

一、剪刀梯(新规)




剪刀梯(旧规)


二、楼梯(新规)


楼梯(旧规)

三、电梯模板



四、其他模板



一、双核





二、单核



三、其他





来源:建筑设计笔记
知识点:核心筒规范住宅建筑
0人已收藏
0人已打赏
免费2人已点赞
分享
居住建筑设计
返回版块28.74 万条内容 · 422 人订阅
回帖成功
经验值 +10
全部回复(0 )
只看楼主 我来说两句抢沙发