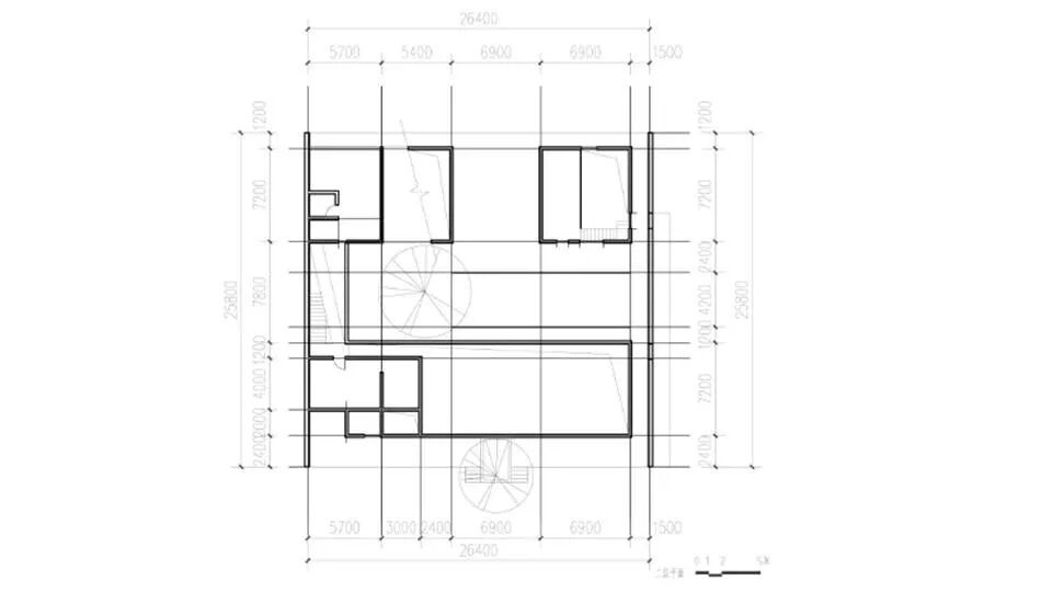
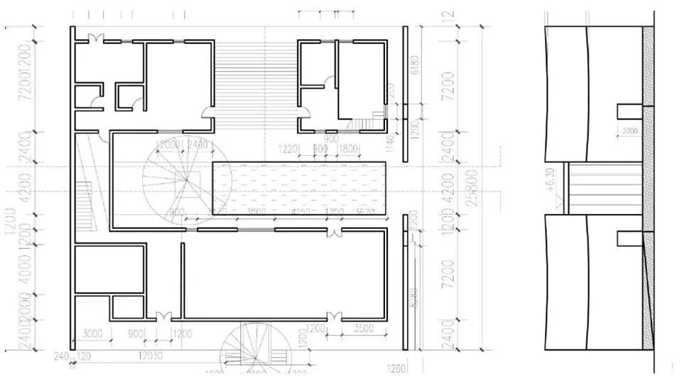
案例一
以下图片来源:CollectiveProject ,版权归其所有,仅供学习交流使用




以下图片来源:CollectiveProject ,版权归其所有,仅供学习交流使用

案例二
以下图片来源:第一届中国建筑传媒奖最佳建筑奖提名作品,版权归其所有,仅供学习交
流使用




案例三
以下图片来源:四方当代艺术湖区、夏至 夏至 四方当代艺术湖区,版权归其所有,仅供学习交流使用










案例四
以下图片来源:北京市园林古建设计研究院YWA严伟风景园林工作室 ,版权归其所有,仅供学习交流使用




▼南立面图,south elevation ?北京市园林古建设计研究院YWA严伟风景园林工作室

▼东立面图,east elevation ?北京市园林古建设计研究院YWA严伟风景园林工作室

▼西立面图,west elevation ?北京市园林古建设计研究院YWA严伟风景园林工作室

▼剖面图1-1,section 1-1 ?北京市园林古建设计研究院YWA严伟风景园林工作室

▼剖面图2-2,section 2-2 ?北京市园林古建设计研究院YWA严伟风景园林工作室

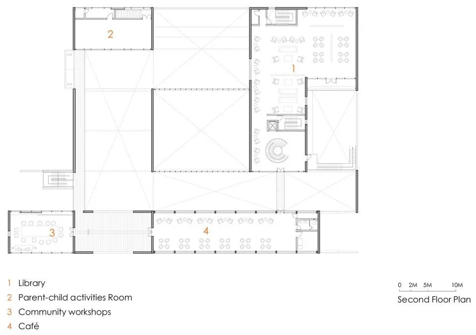
案例五
苏州东原千浔社区中心
以下图片来源:山水秀建筑事务所 ,版权归其所有,仅供学习交流使用




▼一层平面,ground floor plan

▼二层平面,second floor plan

▼地下室平面,basement plan

▼剖面,section


▼细部,detail

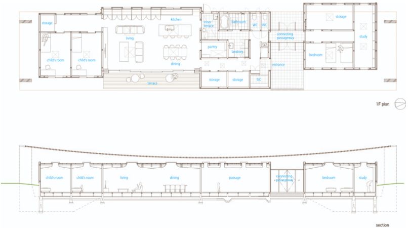
以下图片来源:gad · line+ studio ,版权归其所有,仅供学习交流使用


▼ 建筑与开放空间,Building and the open space




▼ 各层平面,Floor Plan

▼ 立面,Elevation

▼ 节点,Detail design


知识点:弧形坡设计案例
0人已收藏
0人已打赏
免费3人已点赞
分享
中国建筑史
返回版块5.15 万条内容 · 173 人订阅
阅读下一篇
中国最古老皇家园林-北海公园知识点:北海公园 导读:北海历史已逾千年,是皇家园林。文物古建作为北京历史名园保护和发展的核心要素,是北京历史的见证和中华文化传承的重要载体。作为现存建园最早、保存最完整的古典园林,可否介绍下,目前公园内主要古建、文物、古树及其保护情况及后期的利用情况等? 北海公园园长祝玮:从历史沿革看,北海公园起于辽金,兴于元明,集大成于清乾隆年间,距今已经有855年的悠久历史。北海公园肇建于金代大定年间(公元1166年)。当时,金代统治者要在这片水草丰美的地方建一个离宫——太宁宫,太宁宫建成后,琼华岛也在此时开始以园林的形式建设,开启了北海园林的建设时期,这一时期是它的肇建时期。北海园林经过了辽、金、元、明、清五代不断的营建,到了清乾隆时期已经成为一座非常辉煌的园林。北海是迄今为止我国现存保存最完整的、兴建时期最早的一座著名的皇家园林,在855年漫长的历史更迭中,北海有很多著名的园林古建及其山水格局,成为中国皇家园林的典范。
回帖成功
经验值 +10
全部回复(0 )
只看楼主 我来说两句抢沙发