土木在线论坛 \ 电气工程 \ 成套电气设备 \ 接触器熔焊所致飞机整机断电故障分析和预防

接触器熔焊所致飞机整机断电故障分析和预防

发布于:2022-10-17 15:36:17 来自:电气工程/成套电气设备 [复制转发]

知识点:飞机接触器

接触器作为一种以弱电信号控制强电信号的功率部件,广泛应用于飞机电源系统、起动系统、防冰加温系统、电控飞行操纵系统以及自动驾驶系统等系统中,在电路中起着自动操作、自动调节、安全保护等作用,接触器的可靠性是保障飞机安全的重要环节。下面将分析一起飞机起动机接触器熔焊导致飞机整机电网断电的故障。


图片

故障概述


2010年3月某日中午,B-****飞机从停机坪滑出,约五分钟后在即将进入跑道时,机组发现飞机突然整机断电,大约三秒后又自动恢复,期间飞机也从塔台ADS-B监视器上消失。飞机滑回后机务人员上机开车,发现起动机已无法工作,测量起动电机电枢已烧断。


飞机整机电网断电,将使机载的所有电子电气设备停止工作,这对飞行安全将构成严重影响,因此,民航飞行航空安全标准将5700kg以下航空器目视气象条件下飞行时,空中失去全部电源;5700kg以上空中失去一套电源,均定性为飞行严重差错。因此,该事故被定性为严重差错。


图片

故障分析


B-****飞机,是由美国达信(TEXTRON)公司旗下的赛斯纳(CESSNA)飞机公司生产的赛斯纳172R(SKHAWK)单发螺旋桨飞机, 其使用一台28V直流、额定额度电流60A的交流一直流发电机作为飞机主电源,


使用一个24V、12.75AH、12单元体的吉尔(GILL)240铅酸电瓶作为飞机的应急电源。若要出现开车后整机断电的情况,只有发电机和电瓶两者同时故障或同时退出飞机电网。


从故障现象知道,出现断电只是几秒钟时间,后又恢复正常供电,因为一般故障都是不可逆的,所以应排除发电机和电瓶两者同时故障的情况,后来也证明两者均能单独正常供电。据此,分析故障原因的重点应考虑发电机和电瓶为何会同时退出飞机电网。


通过分析机型电源系统,在无人为操作的情况下,发电机和电瓶同时退出电网,最大的可能是电压低于接触器的释放电压,致使两个接触器从吸合状态转为释放状态。


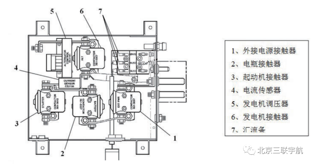
两个接触器的件号均为X61-0007见图(1),控制电源来均自于飞机电瓶。正常使用中的电瓶电压为24.5V,而X61-0007型接触器的释放电压为17.5V,也就是说正常情况下接触器不会因为控制电压低而释放。


图片图(1) 172R飞机配电盒(J-BOX)


另外,此次故障还反映了飞机的起动机也不工作的现象,这是单纯的故障还是引发飞机断电的源头的呢?正常情况下,发动机工作后,飞行员关断起动电门,起动接触器失去控制电源,起动接触器主触头释放,起动机断电停止工作。而起动机正常起动后不能断电停止工作,直至烧坏,这种情况最大的可能是起动接触器主触头粘连所致。


接触器动静触头粘连简单描述就是由于负载电流较大时,触头分断出现的电弧烧蚀所致。因为触头一旦接触,电流接通,触头碰撞后,一方面由于触头碰撞时具有动能,另一方面触头的电动斥力的作用,触头会产生弹跳,触头接触面分离产生电弧,电弧使接触面金属熔化、气化。


触头弹跳到最大距离后又开始重新闭合,当触头重新闭合时,接触表面熔化的金属凝固在一起,就可能导致动、静触头焊接在一起,在接触器本身反力弹簧的作用下无法使触头再次打开即发生触头熔焊、粘连、咬合现象。


拆开起动接触器,动静触头果然咬合在一起,用工具拆分后发现起动接触器正极主触头有明显烧蚀现象见图(2),正极主触头已有约两毫米深的凹坑。


图片图(2) 起动接触器正极烧蚀图


图片

故障复原


该起整机短时断电的起因是起动接触器在工作时发生熔焊粘连,致使起动机一直持续工作,因为起动机工作电流很大(额定电流12A,瞬时可达 60A),这么大的电流相当于在给电瓶放电,


此时发电机虽然在工作,但是飞机滑出一至处于等待状态,此时发动机处于慢车转速,发电机输出电压较小,其向电瓶充电电流很小,远小于起动机耗电电流,致使电瓶容量迅速降低。


当起动机电枢持续工作直至烧断瞬间,使得电瓶电压低于电瓶接触器和发电机接触器释放电压时,两个接触器同时释放断开,使得飞机电网无电源供给,呈整机断电状态。然而,在由于电瓶的自恢复,电压迅速建立,当超过接触器吸合电压时,两个接触器重新吸合,使得电网恢复供电。


图片

预防措施


因为赛斯纳172R飞机在国外主要用于私人自架,因此厂家选用触头为黄铜的X61-0012接触器。而在飞院,该机型作为初教机,需要频繁起动发动机,起动接触器必然易烧蚀,且黄铜的熔点较低,触头易粘连。


为预防 172R飞机因起动接触器熔焊粘连而致使飞机整机断电的事故发生,更换承载负荷更大、触头材料更好的接触器方案当然为首选,但是更改航空器出厂设计的适航审批非常困难,在该方案未获得批准时,在不能改变厂家选装的起动接触器型号的前提下,我们建议∶


1、在《飞行员操作手册》中增加"发动机起动后观察电流表指示值"一项。


每次起动后机组都应观察电流表的指示,若有异常的大电流指示值,机组应该立刻停车让机务人员检查,以判断是否为起动机未脱开所致。这样可以增加人为把关因素,杜绝绝大部分类似事故的发生。


2、初步拟定在1200小时定检中增设"更换起动接触器"一项。


之前,起动接触器只有在其故障时才更换,这样比较被动,因为飞机整机断电无论是否造成后果都是严重事故。B-****飞机在此事故之前已飞行1863∶23小时,结合该起故障发生的时间段,拟在飞行中间隔1200小时更换起动接触器。



相关推荐链接:

1、CJ20-10交流接触器总装结构图

2、CJ20-25交流接触器总装结构图


全部回复(0 )

只看楼主 我来说两句抢沙发
这个家伙什么也没有留下。。。

成套电气设备

返回版块

15.97 万条内容 · 620 人订阅

猜你喜欢

阅读下一篇

电连接器接触件的类型及特点

知识点:连接器针接触件 接触件是电连接器完成电连接功能的核心部件。一般由阳性接触件(male)和阴性接触件(female)组成接触对,通过阴、阳接触件的插合完成电连接。接触件材料一般选用黄铜合金、锡磷青铜、铍青铜材料,具体选择要根据接触件的类型,插拔的频度以及连接器所工作的电气条件和环境条件而定。 一、圆孔劈槽形接触件 这种类型接触件的阳接触件通常为刚性插针,阴接触件通常采用圆孔劈槽后套上不锈钢外套,这种插孔称为开槽套管组合插孔。还有一种较常用的是闭口簧片式插孔,在圆筒上开一个凹槽,在凹槽内部装有弹性金属片实现接触,在插孔的前端有闭口式圆孔,以防止大直径插针插入破坏簧片结构。圆筒形接触件具有工艺简单、生产效率高、使用范围广等优点。如J599I、II和III系列圆形电连接器就是采用圆筒形接触件。

回帖成功

经验值 +10