以下图片来源:Auer Weber,版权归其所有,仅供学习交流使用

以下图片来源:深圳华汇设计,版权归其所有,仅供学习交流使用






以下图片来源:Dominique Coulon Architecte,版权归其所有,仅供学习交流使用


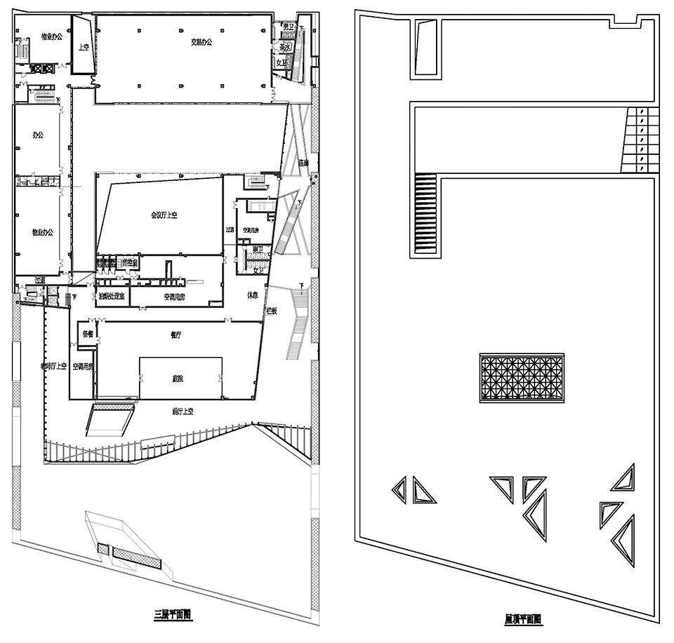
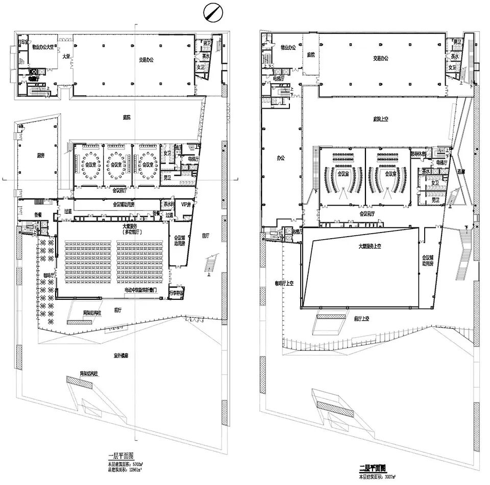
▼ 平面图 plans


▼ 剖面图 section

知识点:会议建筑设计案例
0人已收藏
0人已打赏
免费1人已点赞
分享
公共建筑设计
返回版块51.17 万条内容 · 447 人订阅
阅读下一篇
立面垂直分布处理案例案例一 CAMP – 建筑和城市规划中心,布拉格 / NOT BAD 以下图片来源:CAMP + NOT BAD,版权归其所有,仅供学习交流使用 案例二 上饶市城市规划展览馆、博物馆和档案馆 / 张雷联合建筑事务所 以下图片来源:AZL Architects,版权归其所有,仅供学习交流使用
回帖成功
经验值 +10
全部回复(0 )
只看楼主 我来说两句抢沙发