土木在线论坛 \ 建筑设计 \ 中国建筑史 \ 中国古建筑的拼合柱

中国古建筑的拼合柱

发布于:2022-10-13 14:53:13 来自:建筑设计/中国建筑史 [复制转发]
拼合柱又称为瓜棱(楞)柱, 是古建筑木柱的一种做法,即木柱非整根原木,而是多块用榫卯拼合而成。宋《营造法式》卷三十对拼合柱做法有载,通过图例可知,有两段合、三段合和四段合,或为当时通用的“拼合柱”做法。各段之间用暗鼓卯合楔子连接,表面再用盖鞠明鼓卯紧固。通常认为,宁波保国寺大殿是拼合柱最重要的实例。

瓜棱柱,即圆柱表面有多瓣瓜棱状,也作“瓜楞柱”。有文献认为,瓜棱柱源自汉代的束竹柱,间接实物见于徐州贾汪晋初石室墓中的柱子。

图片
▲《营造法式》卷三十中的拼柱法

图片
▲据《法式》重绘的拼柱法

图片
▲《营造法式》中拼合柱示意图:两段合柱、三段合柱、四段合柱

说到拼合柱的实例,就不得不提宁波保国寺大殿。保国寺大殿不仅是《营造法式》所在拼合柱的最早遗物,且也是宋构中的孤例。保国寺大殿的瓜棱柱,就会提到另外两个名词:“拼合式”“包镶式”

图片
▲保国寺大殿

图片
▲保国寺大殿内部

图片
▲保国寺大殿内部瓜棱柱

保国寺大殿外表呈现的瓜棱柱,实际上有三种内部结构形式。

1.整木柱,即非拼合柱。 木柱为一整体,但表面做成瓜棱状。这类柱子又有三种:全周瓜棱柱、1/2带瓜棱和3/4带瓜棱。

图片
▲保国寺大殿整木柱

2.瓜棱拼合柱 ,即用同样大小的四根木材拼合,再在四根木料相接的地方拼镶四块小木料,用榫卯联固。

图片
▲瓜棱拼合柱 


图片
▲保国寺大殿的整木瓜棱柱和瓜棱拼合柱

3.包镶式瓜棱柱。 即在一根木柱周围,根据需要再用若干跟一定厚度的木料包镶而成的柱子。有分析认为,这种包镶式工艺在清代江南十分流行,可能是清乾隆十年僧唯安、体斋对大殿“移梁换柱”时更换的。

图片
▲包镶式瓜棱柱 

图片
▲两种拼合图示意图

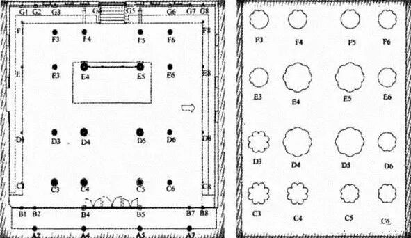
保国寺大殿瓜棱柱内部分布和构造: 大殿中C5、C6、D6、E3、E6、F3、F4、F5、F6为整木柱,D4、D5、E4、E5为瓜棱拼合柱,C4、D3为为包镶式瓜棱柱,C3为一特定构造柱。

图片
▲保国寺大殿中柱构件的分布和构造

实物图例

图片
南通天宁寺大殿

图片
天宁寺大殿内部

图片
天宁寺大殿内瓜棱柱

图片
天宁寺大殿内瓜棱柱及柱础

图片
天宁寺大殿檐柱柱础

图片
天宁寺金刚殿瓜棱柱及梁栿

图片
天宁寺金刚殿瓜棱柱及梁栿细部

图片
天宁寺金刚殿瓜棱柱及梁栿细部

图片
南通太平兴教寺大殿

图片
太平兴教寺大殿内瓜棱柱


本文图片和内容来源: 网络


知识点:中国古建筑的拼合柱

全部回复(0 )

只看楼主 我来说两句抢沙发
这个家伙什么也没有留下。。。

中国建筑史

返回版块

5.15 万条内容 · 173 人订阅

猜你喜欢

阅读下一篇

中国古建筑知识

古建筑之美,在于它承载的是不同历史时期的人文特色,承载的是碧瓦朱檐间亘古流传的故事,还承载了中华千百年的历史文化。 于我们而言中国古建筑见证了中国千古文化底蕴,一砖一瓦一构件都是历代中国建筑设计师的心血。 壹

回帖成功

经验值 +10