案例一
泰州(中国)科学发展观展示中心/何镜堂
以下图片来源:华南理工大学建筑设计研究院,版权归其所有,仅供学习交流使用







案例二
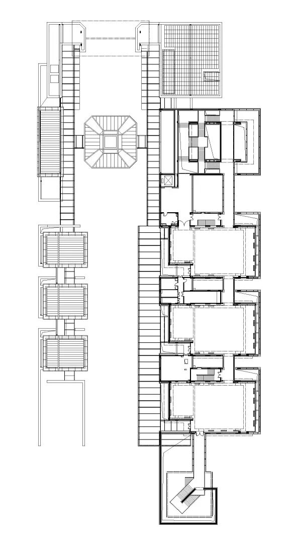
以下图片来源: 迹·建筑事务所 ,版权归其所有,仅供学习交流使用


▼建筑模型,Physical Model ?TAO


▼短剖面模型,Cross section rendering ?TAO


▼平面图,Plans ?TAO


▼剖面图,Sections ?TAO

案例三
以下图片来源:山水秀建筑事务所 ,版权归其所有,仅供学习交流使用



▼剖面图1-1,section 1-1

▼剖面图2-2,section 2-2

▼剖面图3-3,section 3-3

▼剖面图4-4,section 4-4

案例四
以下图片来源:Kengo Kuma & Associates 隈研吾都市设计事务所 ,版权归其所有,仅供学习交流使用








知识点:双破屋顶设计案例
0人已收藏
0人已打赏
免费0人已点赞
分享
居住建筑设计
返回版块28.74 万条内容 · 423 人订阅
阅读下一篇
中国传统建筑营造技艺我国传统建筑以木结构为主,以砖、瓦、石为辅。由于我国幅员辽阔,环境、气候不一,每个地区都有其独特的建筑风格。在古建筑中最能代表中国传统建筑营造技艺的当属斗拱结构与榫卯结构。它们既能联结建筑,又能起到装饰作用,是中华民族智慧的结晶。 木拱桥传统营造技艺 中国木拱桥营造技艺采用原木材料,使用传统木建筑工具及手工技法,运用“编梁”等核心技术,以榫卯连接并构筑成极其稳固的拱架桥梁体系。木拱廊桥以其独特的编木结构,科学地解决了受力问题,历经千年风雨保存至今。
回帖成功
经验值 +10
全部回复(0 )
只看楼主 我来说两句抢沙发