案例一
砖房住宅,印度
以下图片来源:CollectiveProject ,版权归其所有,仅供学习交流使用



▼首层平面图,ground floor plan


▼二层平面图,first floor plan

▼剖面透视图,perspective section

案例二
科苏梅尔岛住宅,墨西哥
以下图片来源:Sordo Madaleno Arquitectos ,版权归其所有,仅供学习交流使用




▼二层平面图,first floor plan

▼剖面图section A-A’,section A-A’

▼剖面图section B-B’,section B-B’

案例三
M4住宅,马德里
以下图片来源:ZOOCO ESTUDIO,版权归其所有,仅供学习交流使用




▼二层平面图,2F plan

▼屋顶平面图,roof plan

▼立面图,elevation

▼剖面图,section

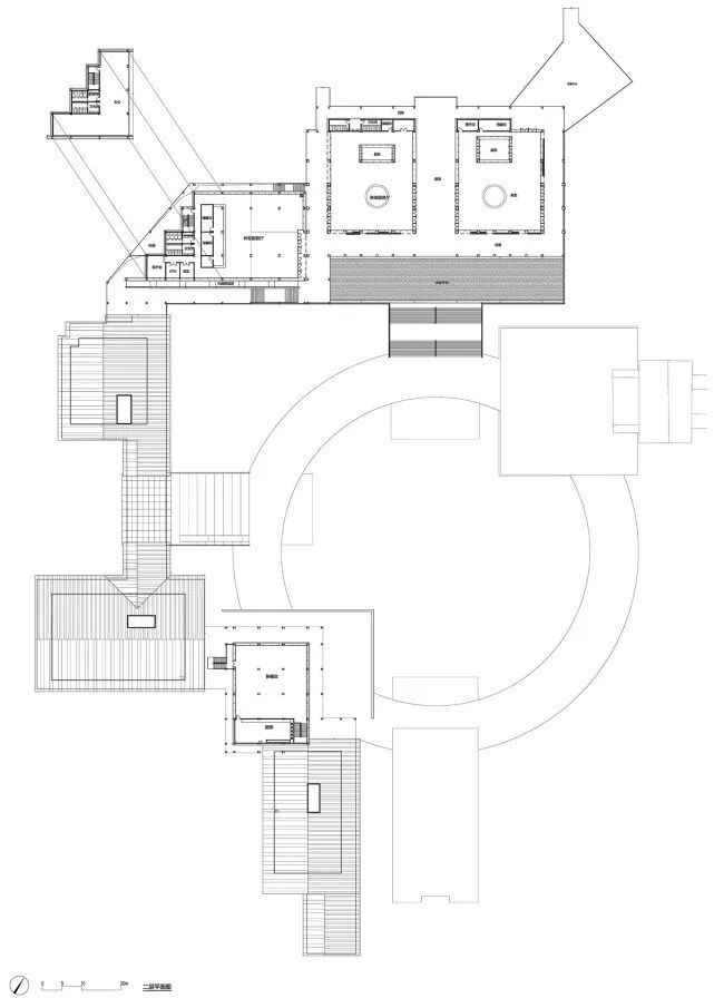
案例四
大发天渠游客中心,贵州
以下图片来源: 休耕建筑 ,版权归其所有,仅供学习交流使用


▼入口大厅,lobby

▼剖面图,section


▼首层平面图,plan level 0


▼-1层平面图,plan level -1

▼-2层平面图,plan level -2

▼剖面图1,section 1

▼剖面图2,section 2

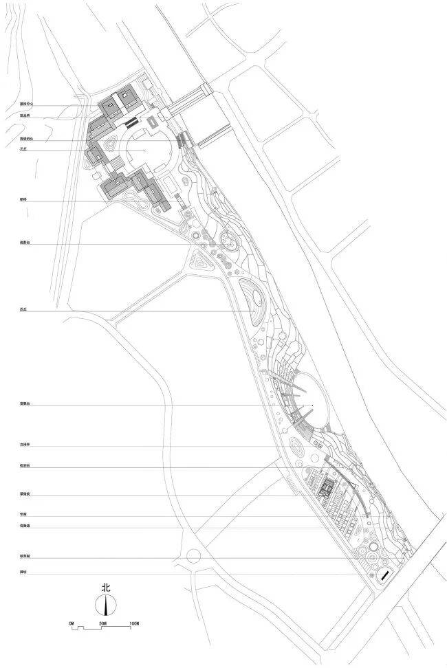
案例五
街子古镇梅驿广场和青鸾公园,四川崇州
以下图片来源:北京华清安地建筑设计有限公司成都分公司 ,版权归其所有,仅供学习交流使用

▼梅驿广场西入口柱廊,corridor of the west entrance ?存在建筑

▼游客中心平台,visitor centre platform ?存在建筑


▼梅驿广场首层平面图,ground floor plan of Meiyi Square


▼梅驿广场二层平面图,first floor plan of Meiyi Square

▼梅驿广场剖立面图,section and elevation of Meiyi Square


知识点:住宅类与服务类建筑门厅空间设计案例
0人已收藏
0人已打赏
免费2人已点赞
分享
居住建筑设计
返回版块28.74 万条内容 · 423 人订阅
阅读下一篇
从苏州民居看江南建筑文化苏州,简称“苏”,古称姑苏、平江,有近2500年历史,是吴文化的重要发祥地,有“人间天堂”的美誉,小桥流水、青瓦白墙、亭台楼榭...... 苏州民居,作为中国水乡民居的重要组成部分,以自由、灵活、朴实的建筑形式,因地制宜的房屋布局和天人合一的建筑理念,充分展现了当地居民的建筑智慧和中国传统建筑文化。 苏州民居多以天井形式围成小院,以“一进”院落作为民居的基本单元。普通民居虽然规模小,建筑层高也比较低,但十分注重实用性,而且布局更加自由灵活,平面造型多种多样,有长方形、曲尺形等,也有三合院和四合院等形式。
回帖成功
经验值 +10
全部回复(0 )
只看楼主 我来说两句抢沙发