土木在线论坛 \ 建筑设计 \ 居住建筑设计 \ 低层砖砌体农村民居抗震措施知识读本

低层砖砌体农村民居抗震措施知识读本

发布于:2022-10-11 11:16:11 来自:建筑设计/居住建筑设计 [复制转发]

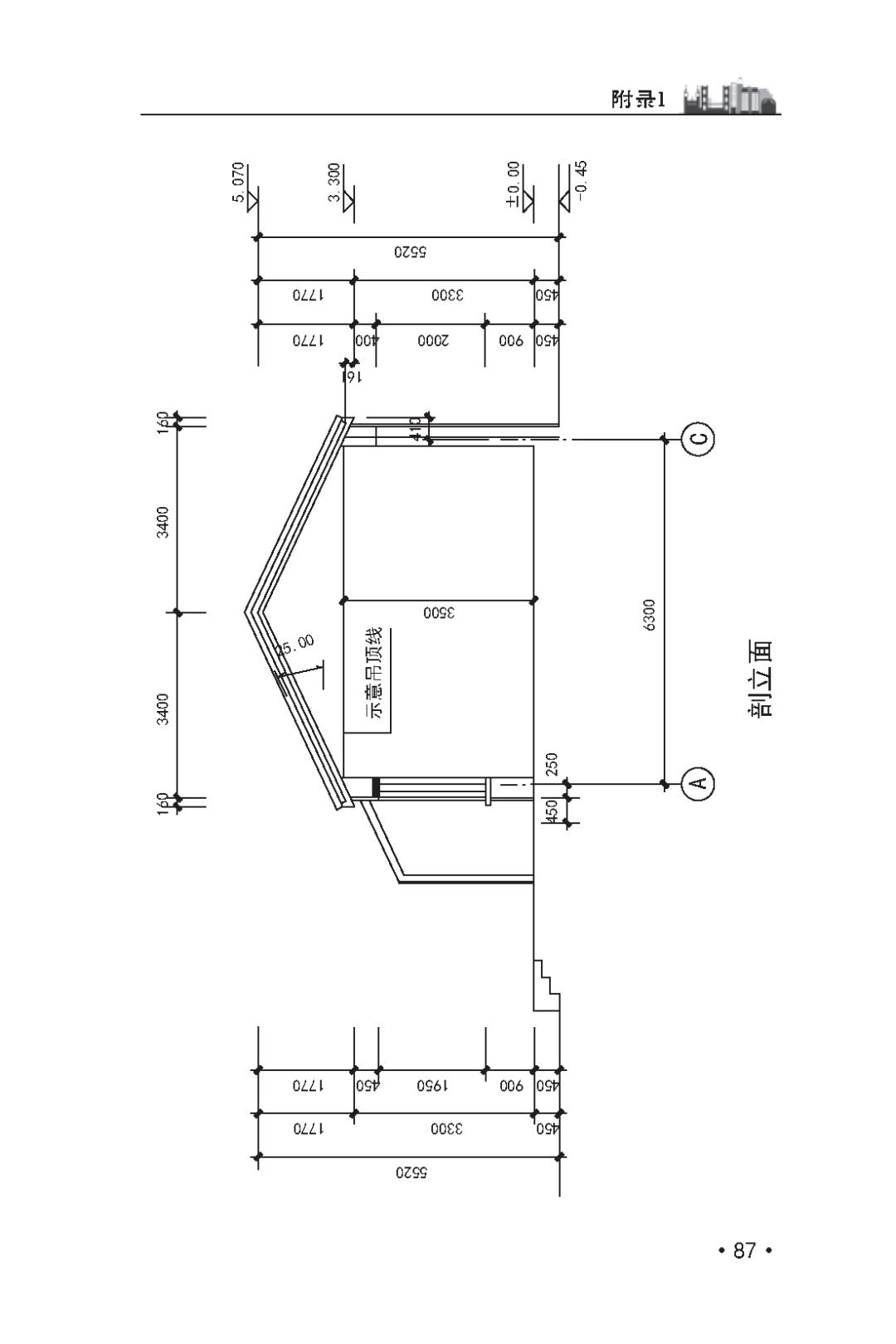
图片

图片

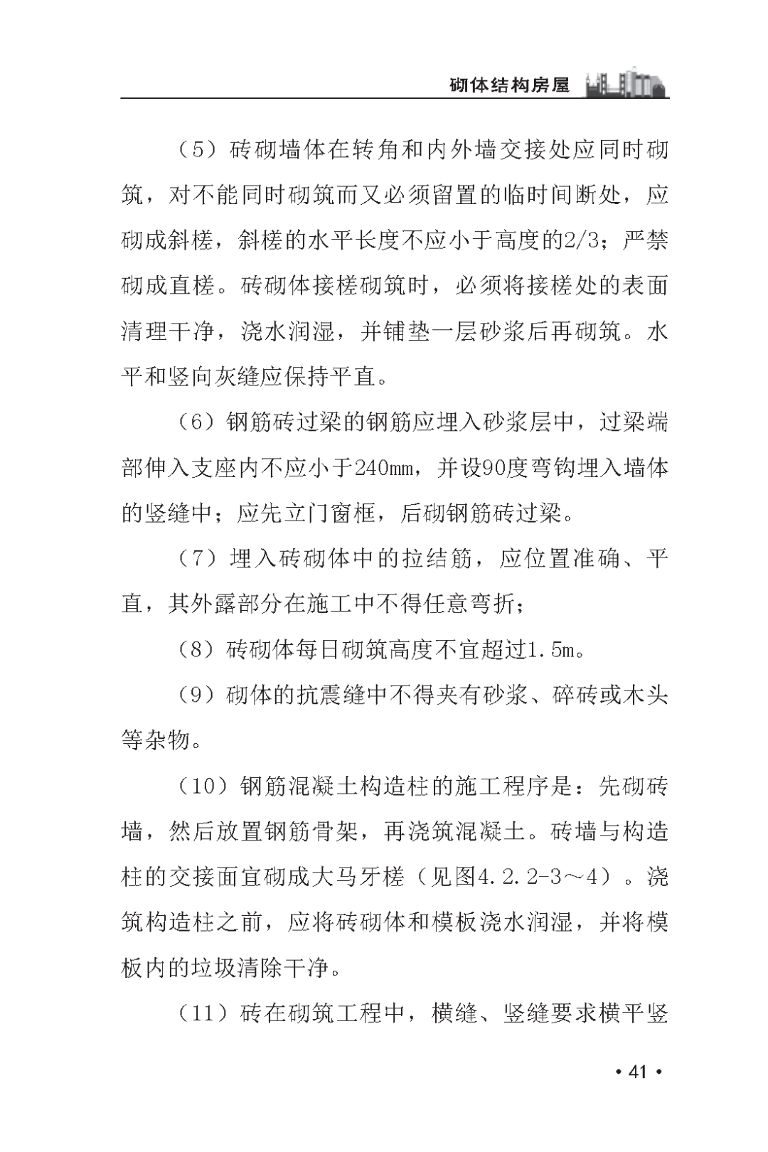
图片

图片

图片

图片

图片

图片

图片

图片

图片

图片

图片

图片

图片

图片

图片

图片

图片

图片

图片

图片

图片

图片

图片

图片

图片

图片

图片

图片

图片

图片

图片

图片

图片

图片

图片

图片

图片

图片

图片

图片

图片

图片

图片

图片

图片

图片

图片

图片

图片

图片

图片

图片

图片

图片

图片

图片

图片

图片

图片

图片

图片

图片

图片

图片

图片

图片

图片

图片

图片

图片

图片

图片

图片

图片

图片

图片

图片

图片

图片

图片

图片

图片

图片

图片

图片

图片

图片

图片

图片

图片

图片

图片

图片

图片

图片

图片

图片

图片

图片

图片

图片

图片

图片

图片

图片

图片

图片

图片

图片

图片

知识点:低层砖砌体农村民居抗震措施知识读本

来源:CECS抗震专业委员会

  • shilaoqi
    shilaoqi 沙发

    谢谢楼主的分享!

    2022-10-11 12:37:11

    回复 举报
    赞同0
这个家伙什么也没有留下。。。

居住建筑设计

返回版块

28.74 万条内容 · 423 人订阅

猜你喜欢

阅读下一篇

Oscar Ibirapuera住宅项目

 ? Leonardo Finotti Oscar Ibirapuera将高端项目所需的创新和都市感相协调,在这座城市最大的绿地旁为人们提供了宁静和身临其境的体验感受。以建筑传统为基石,Oscar Ibirapuera将当代性转化为永恒的风格,以期与其周围历史悠久的公园一样历久弥新。

回帖成功

经验值 +10