土木在线论坛 \ 建筑设计 \ 中国建筑史 \ 古建筑的木装修

古建筑的木装修

发布于:2022-09-29 16:15:29 来自:建筑设计/中国建筑史 [复制转发]

在以木结构体系为主体的中国古代建筑施工中,做柱、梁、枋、檩等主体木结构的工种,称为大木作。与此对应,做建筑门窗、天花顶棚、室内隔断等木结构部分的工种称为小木作。这种木工分工明确记载于宋《营造法式》中,一直沿用至今。小木作到清代也称为木装修,并细分为外檐装修和内檐装修,在江南称为装折,依照位置也区别为外装折和内装折。


本文从以下两大方面介绍

一、外檐装修

(一)门

(二)窗

(三)外檐柱间装饰


二、内檐装修

(一)隔墙、隔断

(二)天花藻井

(三)木楼梯


外檐装修


外檐装修是指直接与室外接触的门、窗、楣子、坐凳和栏杆等,位于室外,易受风吹日晒,雨水侵蚀,在用材断面、雕镂、花饰、做工等方面,都应考虑这些方面的因素,较为坚固、粗壮。其中的门和窗又是房屋围护结构的一部分,兼可采光、通风,门还用来交通内外。


(一)


知识点1:宋《营造法式》时期门类型

需要清楚

宋《营造法式》时期的门

宋《营造法式》时期的门《营造法式》所列门有外门与内门之分:外门含乌头门、版门4(板门)、软门三种;内门则仅有格子门一种。这几类门从构造上看可分为三类,一类是版门,以实心木板拼合而成;另一类是格子门,门扇上部为镂空花格,下部为木板;还有一类为乌头门,这种门虽然门扇上部也为空格,下部为木板,但均为双扇,两旁带有挟门柱。从功能上看,版门使用范围最广,最大的可作城门,中等可作为建筑群入口的门殿及大殿之门,小型的可作为厅、堂之门。格子门只限于作为殿、堂或厅堂之门。乌头门只作为建筑群之门,安装在建筑群的围墙上。 


(1)乌头门,又名乌头绰楔门,俗称棂星门,位于住宅、祠庙正门之前,是一种安置于围墙上的门,高8~22 尺,广与高尺寸相等。若高15 尺以上则广可减少1/5。门的形式简单,两旁有两根木柱,称挟门柱,柱断面为方形,柱高为门高的1.8 倍,下部栽入地下,上部套瓦筒用以防雨水腐蚀,用墨染黑,故称“乌头”。

图片

(2)版门,是一种用木板实拼而成的门,高在7~24 尺之间,分为单扇版门、双扇版门和多扇版门。

图片

(3)软门,也是一种拼板木门,宋《营造法式》中分为两种形制:门扇带有边框,中部设有单腰串或双腰串,上下用薄木板填心,前后加设 “牙头”护缝,称为牙头护缝软门,详见图7-3;门扇用竖向木板拼成,拼缝处加通长的压条,背后用楅固定,称合版软门。

图片

(4)格子门,因门的上部有供采光的格子而得名。在当时算是一种较精致的门,依建筑开间宽窄,分成四扇或六扇,总高度在6~12 尺。每扇依周边的桯(tīng)及身内横向的腰串构成扇框,分上中下三部分,上部占2/3,做格眼,下部占1/3,嵌入障水版,中部很窄,在相距很近的腰串间嵌入窄版,名腰华版,兼加固措施。格眼周边另有子桯为框,可整体安装于门桯形成的扇框上。

图片

乌头门构造


图片

版门构造


图片

牙头护缝软门


图片

合版软门构造


图片

“桯”断面构造

1—四混中心出双线;入混出单线(或混内不出线);2—破瓣双混平地出双线(或单混出单线);3—通混出双线(或单线);4—通混压边线;5—素通混;6—方直破瓣


图片

“条桱”断面构造

1—四混绞双线;2—通混压边线,心内绞双线;3—丽口绞瓣双混;4—一混四撺尖;5—平出线;6—方绞眼 


图片

山西朔州崇福寺弥陀殿格子门大样(部分)


图片

毬纹格子门


图片

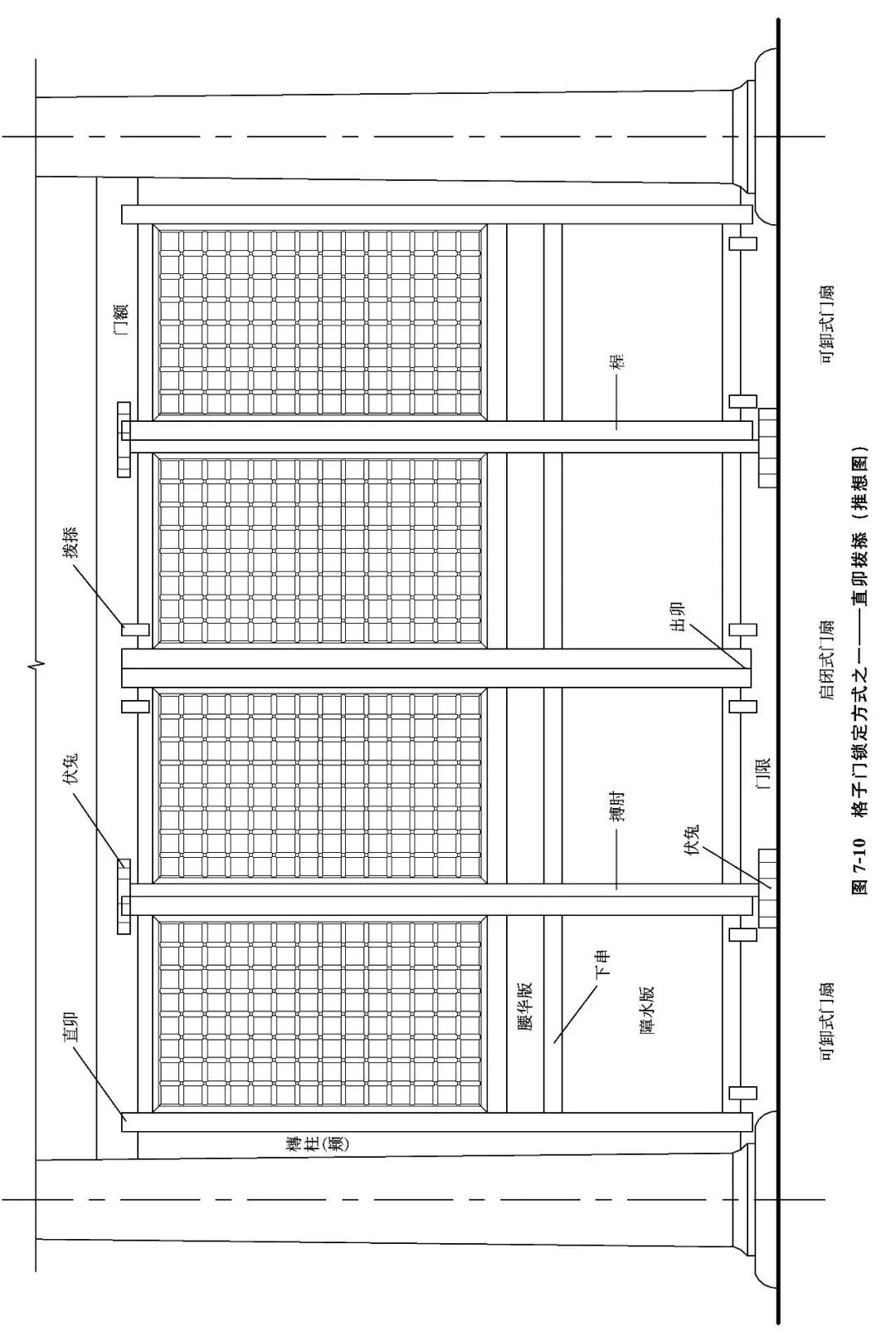
格子门额限图


图片

格子门锁定方式之一-直卯拔掭(推想图)


图片

格子门锁定方式之二-麗卯插栓(推想图)


图片

麗卯插栓大样



知识点2:明清时期的门

需要清楚

能区分明清时期的门

明清时期的门,按构造方法主要分为板门和槅扇门两种。板门是用木板实拼而成的门,用作宫殿、庙宇、府第的大门及民居的外门等,有对外防范的要求。槅扇是木装修中最具特色的部分,所有棂花、花纹式样灵活多样且繁简不同,在安排上虚实结合,十分精巧细致,是木工工艺高度发展的产品。

(1)板门,清代建筑中最常见的板门,依构造方法的不同,可分为实榻门、棋盘门(又名攒边门)、撒带门、屏门四种。

图片

板门的种类


①实榻门。实榻门的构造是依木门所在的位置确定。连接部分主要包括连楹、门簪、门枕石等构件组成,其主要作用是固定门扇上下肘位,保证开启顺畅。

图片

实榻门构造


图片

实榻门构件比例

注:1. 凡注※是根据测量尺寸推算出来的,仅供参考。

2. 表中的H 为门口净高,B 为门口净宽,其尺寸依门光尺确定。


图片

实榻门金属配件图


图片

②棋盘门。又称攒边门,即门的四周边框采取攒边,当中门心装板,板后穿带的做法,包括墙门、屋宇大门、房门等。屋宇门往往做成余塞门,由下槛、上槛、抱框、门框、门簪和连楹等构件组成。

图片

棋盘门(攒边门)各构件规格尺寸


为便于门扇的开闭,一般在正面安装有门钹,门钹为铜制件,六角形,其直径同门边宽,上带纽头圈子。门轴上也装寿山福海。

图片

棋盘门构造


图片

棋盘门构造

图片

③撒带门。所谓撒带门,是门扇一侧有门边(大边),而另一侧没有门边的门。这种门上由于所穿的带均撒着头,故称撒带门。撒带门一般用作街门或屋门。撒带门的高、宽尺寸计算同棋盘门,只是门边设在有门轴的一侧。这种门的做法是:用穿带将木板及一侧的门边贯穿起来,上下不使用抹头。穿带使用明带做法,一端做成榫头(连接门边),一端做成撒头,可用一根纵向压带连接。

图片

撒带门构造


④屏门。也称镜面门,又分为单面和双面屏门两种。屏门采用一寸半厚(约5cm)木板作为门面板,用穿带拼板。这种门多用在垂花门后檐柱间,做单面走廊中的通道门,或用在室内的后金柱间起到屏风作用,也可用在木影壁门上。门扇有四扇与六扇。屏门没有门边门轴,为固定门板不使散落,上下两端要贯装横带,称为拍抹头。屏门除门扇外,还有下槛、上槛和门框等主要木构件,以及鹅项、转轴、插销、铁闩和门环等金属构件。

图片

屏门构造


(2)槅扇门,宋代称“格子门”。由外框架、槅扇心、裙板及绦环板组成。外框是槅扇的骨架,长宽比为4∶1 或3∶1。槅扇心是安装于外框内部的仔屉,主要用做采光,在槅心上一般糊纸或糊纱。裙板是安装在外框下部的隔板,有的槅扇不用裙板而全用格心,谓之落地明造。绦环板(宋称腰华版)是安装在相邻两根抹头之间的小块隔板。

图片

清官式棂花槅扇门构造


图片

帘架及横披


图片

槅扇门构件尺寸比例

注:D为柱径;H 为槅扇总高;

n 为抹头数量和绦环板数量;B 为门口净宽。


图片

风门、横披窗、楹子、栓斗、荷叶墩


图片

槅扇心屉样式(部分)


图片

槅扇门金属构件及槅扇形式



(二)


知识点1:宋《营造法式》时期的窗

需要清楚

《营造法式》窗类型

《营造法式》中记载之窗有破子棂窗、版棂窗、睒电窗(水纹窗)、阑槛钩窗等,从功能上看,可分为“高窗”和“看窗”两类,睒电窗与水纹窗多施于墙壁高处,但也可做看窗。从构造上看可分为两类:一类是不可启闭的棂条窗;另一类是可启闭的阑槛钩窗。其中阑槛钩窗主要用于阁楼上,可以临窗倚坐,浏览窗外风光。阑槛钩窗在宋画《雪霁江行图》《清明上河图》中所画的江船上可以看到,但在宋代建筑中尚未发现实物遗存。明清江南园林及民居中的“美人靠”“飞来椅”则是这种窗的传承。

(1)棂条窗,棂条窗有三种:一种是“破子棂窗”,即将方木条依断面斜角一剖为二成两根三角木条做窗棂,三角形底边一面向内,可供糊纸,窗高4~8 尺,窗宽需用棂条数来推算,棂档以空一寸为定法,但棂条宽厚随窗高变化,每间广一丈用十七棂,广加一尺则加二棂,破子棂窗窗棂插入上、下子桯,左右为立颊,其外为额及腰串。另一种是“版棂窗”,即用板条做棂子,内外两侧均为平面。

图片

破子棂窗及版棂窗


还有一种是将棂条做成曲线或水平向波浪形,由于棂条的弯曲,人在走动时向外望可见光线闪动的效果,故称为“睒电窗”或“水纹窗”,施于殿堂后壁之上或佛殿壁山高处,也可以装在平常高度上作看窗。

图片

睒电窗及水纹窗


(2)阑槛钩窗,是一种通间安置的带钩阑的大窗,类似江南清代流行的长窗,窗的下部有一段低矮的窗下墙,上覆木板,称为槛面。《营造法式》规定槛面高一尺八寸至二尺,槛面之上设钩窗,窗高五尺至八尺,阑槛钩窗总高七尺至一丈。窗宽则随开间,每间分成三扇,每扇窗做成四直方格眼形式。此外在槛面之上、窗之外有一矮钩阑,寻杖由托柱、鹅项承托,鹅项端用云栱纹来装饰。槛面以下、地栿以上,装障水版。钩窗做活扇,可推开,供人坐于槛面板上,凭栏眺望,也可关闭,用通长的“卧关”自室内锁住。宋画《雪霁江行图》所绘阑槛钩窗形制与《营造法式》小有不同,在槛面版下的障水版勾片棂条,更具装饰性。

图片

宋画《雪霁江行图》中的阑槛钩窗


图片

阑槛钩窗构造


知识点2:明清时期的窗

需要清楚

明清时期的窗类型

(1)槛窗,槛窗也称“槅扇窗”,是立于砖槛墙之上的窗。其构造一如槅扇门,只是把槅扇门的裙板去掉。槛窗的比例及棂格心与槅扇门需协同考虑,组成统一的构图,成樘配套。每间装2~6 扇。在南方则不用砖槛墙,而改用木板壁,称为提裙。槛窗及木板壁皆可拆下,将厅堂变为敞口厅,这种窗称为半窗。其构造在槛墙上有榻板、风槛(即槛窗的下槛)、中槛、抱框、间柱和横披窗等。槛框的尺度与槅扇门的槛框相同;风槛的断面尺寸与抱框相同;榻板厚为风槛厚的7/10,宽随槛墙的厚度内外各加二分。槛窗扇有四抹、三抹、二抹几种。四抹、三抹的槛窗扇,除窗心外,还有绦环板,四抹窗有两块,三抹窗有一块。槛窗上的金属构件与槅扇门相同。

图片

(2)横披窗,横披窗是在金柱部位安装外檐装修时,于槅扇门、槅扇窗上部,即中槛与上槛之间安装的窗扇。明清时期的横披窗,通常为固定扇,不开启,起亮窗作用,由外框和仔屉两部分构成。横披窗在一间里的数量,一般比槅扇或槛窗少一扇。如槅扇为四扇,横披则为三扇,如槅扇为六扇则横披为五扇。横披的外框、格心与槅扇、槛窗相同。

图片

(3)支摘窗,常见于民居中,这种窗安装在檐柱或金柱间,一般分成上下两段,中间由间柱隔开,每组四扇。上段窗户可由支杆向外支起,并可调节支起的角度,称支窗。下段窗户可摘下,为摘窗。支窗分为内外两层,外层棂条窗,糊纸或装玻璃,内层纱屉,天热时外层支起,凭纱窗通风。摘窗也分为内外两层,外层棂条窗,糊纸以遮挡视线,白天摘下,夜晚装上,内层做玻璃屉子,可保温采光。我国南方称此窗为“提窗”或“合窗”。支窗与摘窗的大小比例,因地域不同而有所差异。北方支窗与摘窗相等,南方支窗要大于摘窗。支摘窗的格心变化很多,有步步锦、灯笼锦、龟背锦、冰裂纹、万寿、福寿等图案。

图片

(4)支窗,也称“推窗”,为明清宫殿的次要房屋(如库、厨等)常用。与支摘窗的主要区别是支窗下不设摘窗,上下为一整扇支窗或上下均为支窗。它是由四边的边框组成,中心是竖向直棂,在直棂条上的上、中、下三个部位贯以横穿,故又称“一马三箭”窗。其边框和棂条尺寸,据清工部《工程做法则例》规定:“边档以抱框之宽十分之四定看面,以抱框之厚三分之一定进深”,即边档宽应是0.26D,厚是0.12D ;“凡直棂以边档之宽减半定看面,进深与边档同”,即直棂宽是0.13D,厚是0.12D ;(横穿)以直棂看面定宽,“ 以直棂之进深三分之一定厚”,即横穿宽是0.13D,厚是0.04D(注:D 为柱径)。

图片

(5)牖窗,牗窗是窗的一种。古时称开在墙上的窗为牗。在园林建筑中有各种形式的窗洞,如扇面、六角、月洞、双环、套方、玉壶、方胜、寿桃等,都统称为牗窗,也有称为什锦窗。其做工精致,具有很浓的装饰性和园林气氛,特别是在游廊的一侧墙壁上,既有极好的装饰美化效果,同时,夜间又可起到照明“灯箱”的作用。

图片

支摘窗构造


图片

支摘窗主要木构件尺寸

注:凡有※ 标记的,均为实测尺寸,并经折算后所得的近似尺寸仅供参考。标记mm的均为实测尺寸。H 为檐柱高;B 为柱间净宽;D 为柱径。


图片

支窗构造


图片

 牗窗常用形式


图片

 牗窗构造


(三)

外檐柱间装饰


知识点1:外檐柱间装饰包括哪些

需要清楚

楣子、栏杆、雀替

1.楣子,是安装于建筑檐柱间(如民居中正房、厢房、花厅的外廊或抄手游廊)的兼有装饰和实用功能的装修。依位置不同,分吊(倒)挂楣子和坐凳楣子。吊挂楣子安装于檐枋之下,有丰富和装点建筑立面的作用;坐凳楣子安装在檐下柱间,除有丰富立面的功能外,还可供人坐下休息。

(1)吊挂楣子,吊挂楣子主要由边框、棂条以及花牙子等构件组成,楣子高(上下横边外皮尺寸)一尺至一尺半不等,临期酌定。边框断面为(4cm×5cm)~(4.5cm×6cm), 小面为看面,大面为进深。棂条断面同一般装修棂条,花牙子是安装在楣子立边与横边交角处的装饰件,通常做双面透雕。常见的花纹图案有草龙、番草、松、竹、梅、牡丹等。

图片

(2)坐凳楣子,坐凳楣子既是护栏,又可供乘坐小憩,主要由坐凳面、边框、棂条等构件组成。坐凳面厚度在一寸半至二寸不等,坐凳楣子边框与棂条尺寸可同倒挂楣子,坐凳楣子通高一般为0.5m 左右。楣子上棂条的式样与布局应与上面的吊挂楣子相呼应。边梃、抹头、棂条的断面尺寸也要与吊挂楣子相同。由于坐凳楣子需要承担一定负荷的重量,故在下抹头至地面的空当内可制安圭脚,圭脚可做成如意头形状,也可以参照边梃制作。

图片

吊挂楣子、坐凳楣子构造


图片

2.栏杆:栏杆古作阑干,在《营造法式》中称为钩阑。栏杆用于楼阁亭榭平坐回廊的檐柱间及楼梯上,主要功能是围护和装饰。栏杆式样的发展,可追溯到浙江余姚河姆渡聚落遗址中的直棂栏杆。在汉代的画像石和明器中栏杆的形象已经颇为丰富,望柱、寻杖、栏板都已具备,阑板纹样亦有直棂、卧棂、斜格、套环等多种。唐宋木勾阑式样更为华丽,在寻杖和栏板上常绘以各种彩色图纹。

图片

(1)唐、宋时期的木勾阑 唐、宋时期的木勾阑实物多已不存,其形式多见于壁画,另在辽金建筑之中有少量栏杆遗构,承袭了早期栏杆的特征。这一时期常见的栏杆样式有以下几种。①寻杖绞角造与寻杖合角造。宋及其以前木勾阑的寻杖多为通长,仅转角或结束处才立望柱。若木寻杖在转角望柱上相互搭交而又伸出者,称为寻杖绞角造;若寻杖止于转角望柱而不伸出的为寻杖合角造。②斗子蜀柱栏杆。初见于汉代,盛行于宋、金时期,沿用直到明清。即由蜀柱将栏杆分成多段栏板或棂子,仿斗子构件立于蜀柱之上,支垫寻杖,故称斗子蜀柱栏杆。根据其栏板的形式,又可细分为素板式、卧棂式、竖棂式、勾片式。

图片

唐宋时期的木勾阑

(2)明清时期的栏杆,按位置可分为一般栏杆、朝天栏杆和靠背栏杆;按构造做法分则有寻杖栏杆、花栏杆等类别。其中官式建筑多用寻杖栏杆,而住宅及园林多用花栏杆。①寻杖栏杆。寻杖栏杆是由寻杖扶手和望柱组成的栏杆,扶手下有荷叶净瓶、绦环板、地栿等。

图片

寻杖栏杆构造


图片

寻杖栏杆各构件规格尺寸表


②花栏杆。花栏杆的构造比较简单,主要由望柱、横枋及花格棂条构成。这种栏杆常用于住宅及园林建筑中。

图片

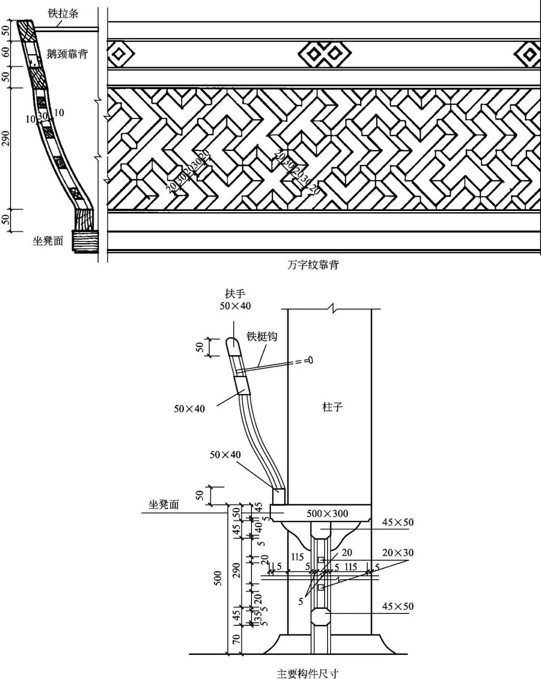
花栏杆样式


③靠背栏杆。又称鹅颈椅、美人靠、吴王靠等,主要由靠背、坐凳面等主要构件组成。一般用于临水的游廊、亭、榭或楼阁上层回廊,是在坐凳平盘的外缘上安一通长的向外弯曲的靠背,以供游人依靠。靠背有直有曲,往往还做出许多花饰。

图片

靠背栏杆构造

图片

3.雀替,指置于梁枋下与立柱相交的短木,可以缩短梁枋净跨的长度,增加端部挤压面,增强构件端部的抗剪能力;防止横竖构件间因角度之倾斜引起的拔榫现象;另外作为柱子与檐枋之间的过渡构件,还起到一定的装饰美化作用。雀替据目前资料来看最早见于北魏的云冈石窟,至宋代成为一种重要构件[《营造法式》称雀替为绰幕:“檐头下绰幕方广减檐额三分之一,出柱长至补间”],普遍用于外檐额枋下,直至清代,清工部《工程做法则例》规定了雀替的规范做法。其长度为面阔的1/4,高度同檐枋,厚度为柱径的3/10。雀替历经了受力及艺术的改进、演变,形成了以下六种构造形式。

图片

 雀替的类型


图片

明清时期常见雀替构造


(1)大雀替,用大块整木制成,上部宽,逐步向下收分后,在底部加一大斗,然后再整体放置于柱头上。

图片

大雀替


图片

(2)一般雀替,是广泛使用的单翅形雀替,体积明显小于大雀替,其位置在柱与梁枋交接处的下部,其造型不似大雀替在二度空间上多向发展,而向左或右及下发展。雀替在宋代时已较为常见,且多用于室内。

图片

一般雀替


(3)小雀替,主要用于室内,体积较小,雀替上亦无栱子,制作甚简。

图片

小雀替

图片

(4)通雀替,又称二连雀替,外形与一般雀替相比没有大的不同,主要区别在于结构,即柱子两侧的雀替为一个整体,它是穿过柱身而成立的。

图片

雀替

(5)骑马雀替,当两柱距离太近时,所用雀替难免相连,有很多的建筑上将此二雀替连成一个,故称骑马雀替。

图片

骑马雀替

(6)龙门雀替,又称云栱雀替,此类雀替专用于牌楼上,为使美观,故造型格外华丽。相较于其他雀替,龙门雀替多加用云墩、梓框、麻叶头或三幅云等。

图片

龙门雀替



4.挂檐挂檐通常用在平屋顶及楼阁各层的梁头部位,呈横向陡板状,因其悬挂在屋檐下,故称挂檐。每间一块,钉在各间梁头的前脸上。挂檐的作用主要是遮挡梁头,起装饰美化作用。

图片

挂檐构造


内檐装修

内檐装修是指用于室内作为分隔室内空间、组织室内交通并起装饰美化作用的小木作,其主要形式有木板壁、壁纱橱、落地罩、几腿罩、栏杆罩、花罩、炕罩、博古架、太师壁、内檐屏门、天花、藻井等。


(一)

隔墙、隔断


知识点1:隔墙、隔断种类

需要清楚

隔墙、隔断常见的有哪些

隔墙、隔断是指室内作为间隔用的装修,包括完全隔绝的做法,如砖墙、板壁;可以开合的如槅扇门;半隔断性质的,如太师壁、博古架、书架;仅起划分空间作用,仍可通行的花罩类。

图片

清代内檐隔断种类


图片

清代建筑内檐花罩


图片

清代建筑内檐花罩


图片

(1)木板壁板壁是用于室内分隔空间的板墙,宋代称为截间板帐,多用于进深方向柱间,由大框和木板构成。其构造是在柱间立横竖大框,然后满装木板,两面刨光,表面或涂饰油漆或施彩绘。也可栽板面烫蜡,刻扫绿锓阳字,十分雅致。

图片

(2)碧纱橱,是安装于室内进深方向的柱间槅扇。其构造方法为,沿高度方向分成两段,上槛与中槛之间安装横披,中槛与下槛之间安装槅扇,槅扇数量从四扇到十二扇不等,除了两扇用于开启之外,其余固定。横披的心屉为夹膛做法,中间夹纱,纱上绘制花鸟、人物、字画等,故得名碧纱橱。

图片

内檐隔扇(碧纱橱)、帘架各构件规格尺度表


图片

碧纱橱的构造及拆装示意


图片

(3)罩为一种示意性的隔断物,隔而不断,有划分空间之意,而无分割阻隔之实。具体形式分为落地罩、几腿罩、栏杆罩、花罩、炕罩等多种情况。

图片

有关室内花罩用槛、框料尺寸  (单位:mm )

注:此数据是在北京故宫宁寿宫地区测量几处所得的结果,大都在这个范围内,最小的槛框尺寸是用在开间不过3m、高度不足3.5m 的房间内。


图片

落到罩


图片

几腿罩


图片

栏杆罩


图片

花罩


图片

圆光罩和八角罩


图片

炕罩



(4)博古架又称多宝塔,多用来搁置古董花瓶等陈设品,是一种兼有装修和家具双重功用的室内木装修,其花格优美、组合得体,多用于进深方向柱间,用以分隔室内空间。

图片

(5)太师壁多见于南方民居的堂屋和一些公共建筑当中,为装置于明堂后檐金柱间的壁面装修,壁面或用若干扇槅扇组合而成,或用棂条拼成各种花纹,也有做板壁,在上面刻字挂画的。太师壁前放置条几案等家具及各种陈设,两旁有小门可以出入,这种装修在北方很难见到。

图片

博古架与太师壁


(6)屏风是介于家具与隔断之间的一种可自由移动的屏障。主要用来挡风、遮蔽视线或形成围护背景。

图片

(7)组合式隔断传统建筑的室内隔断在运用中往往呈组合状态,即是将屏风、槅扇门等组合使用,平面布置上刻进退凹凸,形成丰富的变化空间。

图片

清代住宅内檐装修图


(二)

天花藻井


知识点1:宋《营造法式》中的天花

需要清楚

宋《营造法式》天花做法

(1)平闇。这是最简单的一种天花做法。《营造法式》称“以方椽施素版者谓之平闇”, 即以与椽子尺寸相近的方木条组成较小的格眼网骨架,架于算桯枋(清称天花枋)上,再铺以木板。一般都刷成单色(通常为土红色),无木雕花纹装饰。这种天花主要在唐、宋、辽金时代盛行,在现存五台山佛光寺大殿、独乐寺观音阁、应县木塔等建筑中均能见到。

(2)平棊。这是一种带有几何形格子的天花,规格高于平闇,用木雕花纹贴于板上作为装饰,并施以彩画。其构造方法为:用木板拼成约5.5 尺×14 尺(即1 椽架×1 间广)的板块,四边用边桯为框加固,中间用楅若干条把板连接成整体,板缝均用护缝条盖住,以免灰尘下坠,这是身板上面的结构做法,身板下的装饰则用贴(厚0.6 寸、宽2 寸左右的板条)分隔成若干方格或长方格,再用难子(细板条)作护缝,并用木雕花饰贴于方格内。整个板块则架于算桯枋上,这和清式天花板每一格单独用一块木板的做法不同。相比之下,宋式的正板做法较笨重,安装和修理都不便。

图片

平棊构造


知识点2:清代天花

需要清楚

井口天花、海墁天花

(1)井口天花,井口天花多是用在有斗栱的建筑物内,由支条、天花板、帽儿梁等构件组成。

图片

井口天花构件尺寸     单位:营造尺

注:有※ 标记的摘录于《工程做法则例》卷一。


图片

井口天花构造

1—天花枋;2—天花梁;3—帽儿梁;4—天花支条;5—贴梁

图片

(2)海墁天花,海墁天花是以木顶格为基,在木顶格的仰面裱糊大白纸或在纸上彩绘后,裱糊到木顶格上。这种天花表面平整,故称为“海墁”。它可以梁为界,每个开间是一个平面,也可以三间、五间连接起来成为一个大的天花平面。海墁天花的木基层称为“木顶格”,以进深分扇制作。每个房间的木顶格以扇计数,每扇由边框和棂条及4 根木吊挂组成。有斗栱的建筑以斗口计算边框、棂条的尺寸,没有斗栱的建筑以柱径为依据计算边框、棂条的尺寸。主要构件断面尺度按照《工程做法则例》卷四十一。

图片

木顶格尺度        注:D为柱径


一般住宅的海墁天花,表面糊麻布和白纸或暗花壁纸。宫廷建筑中,有的海墁天花上面绘制精美的彩画。如故宫倦勤斋室内海墁天花满绘竹架藤萝。海墁天花还可以绘制出井口式天花的图案,在天花上绘出井字方格,格内绘龙凤或其他图案。



知识点3:宋《营造法式》时期的藻井

需要清楚

《营造法式》藻井规格

《营造法式》小木作所述藻井有两种规格:一种是大藻井,用于殿身内;另一种是小藻井,用于殿前副阶内。两者之间除尺寸大小不同之外,式样也有繁简之别:前者自下而上有三个结构层——方井层、八角井层、斗八层,所用斗栱为六铺作与七铺作;后者自下而上仅两个结构层——八角井层、斗八层,所用斗栱为五铺作。藻井的形式看上去十分复杂,其实结构十分简单:在算桯枋(天花枋)上施方形和八角形箱式结构两层,再加一个八角形盖顶即成。至于那些柱子、门窗、斗栱等(包括“天宫楼阁”)都是贴上去的装饰品,是仿大木作缩小比例尺做成的。两种藻井的构造做法分别如下。

图片

(1)斗八藻井的构造层次为:①在算桯枋框上安方形箱式斗槽板,在上面再加方形的内有八角孔的板(由压厦板与角蝉板组成),并在此板上施随瓣枋构成的八角框;②框上安八角箱式斗槽板,板上又加八角环形压厦板与随瓣枋;上施八角形“斗八”即成。至于斗栱,则按大木作一等材的1/5 制作,用下昂或不用下昂仅用卷头与上昂均可。

图片

斗八藻井板框结构示意


图片

山西应县净土寺大殿明间中部藻井构造


(2)小斗八藻井的构造层次为:①在算桯枋内加抹角做成八角框,在框上立八角箱式斗槽板,上施八角环形压厦板;②板上施八角形“斗八”。斗栱、柱枋则按大木作六等材的1/10 比例缩小。

图片

小斗八藻井构造


知识点4:明清时期藻井

需要清楚

明清时期藻井特点

明清时期的藻井,较宋辽时更为华丽,这个时期藻井的造型大体是由上、中、下三层组成,最下层为方井,中层为八角井,上部为圆井。


明清藻井的构造,主要由一层层纵横井口趴梁和抹角梁按四方变八方、八方变圆的外形要求叠摞起来的,构造并不是非常复杂。

图片

《营造法式》中的藻井与故宫太和殿的藻井比较


图片

《营造法式》中的藻井与故宫太和殿的藻井

(注:本图摘录《中国建筑类型及结构》)


(三)

木楼梯


知识点1:宋制楼梯与清制楼梯

需要清楚

宋制楼梯与清制楼梯的区别

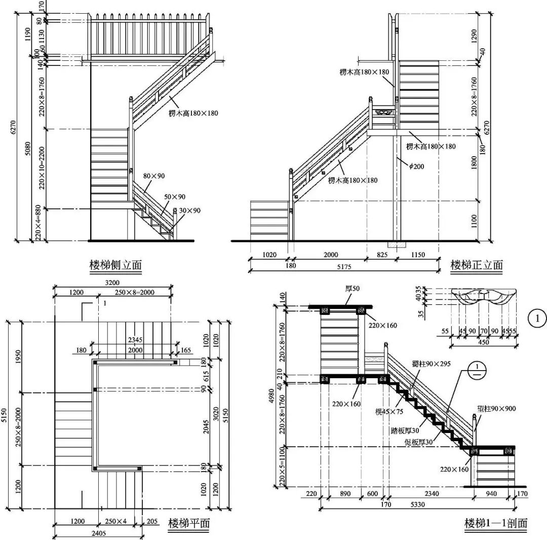
(1)《营造法式》称木楼梯为胡梯,用于楼阁建筑之中,有两颊(楼梯梁)、促板(侧立者)、踏板(平放者)、望柱、勾阑、寻杖等构件。其构造特点是由两根斜梁(颊)支承所有其他构件。踏板与促板嵌于两颊内侧所刻槽中,并以“榥(hu?ng)”作锚杆拉结两颊。楼梯一般上下安望柱,两颊随身各用勾阑,如楼阁高远,不便直上,亦可做成两盘(跑)或三盘式以便旋转折进。

(2)清制楼梯与宋制相似,楼梯由斜梁(梯帮)、踏脚板、踢脚板、栏杆及锚杆组成,有两种形式,一种为素楼梯(暗步楼梯),另一种为阳楼梯(明步楼梯)。

素楼梯的踏脚板与踢脚板在梯帮之间;阳楼梯的踏脚板与踢脚板在梯帮之上。

图片

木楼梯构造


图片

木楼梯实测图(单位:mm)

以木结构为主的中国古建筑中,木装修占有非常重要的地位,不能忽视。

本文选自:王晓华《中国古建筑构造》第2版

知识点:古建筑的木装修

全部回复(0 )

只看楼主 我来说两句抢沙发
这个家伙什么也没有留下。。。

中国建筑史

返回版块

5.15 万条内容 · 173 人订阅

猜你喜欢

阅读下一篇

古建筑木作修缮与木雕刻

木作修缮与雕刻 关于中国传统建筑,哲匠之家在2017、2018详细介绍过北京地区清官式建筑木结构、斗栱知识,以及传统建筑木装修、榫卯知识。 今 天 小编带大家了解 中国传统建筑木作修缮与雕刻知识 。 古建筑是需要经常修缮的,只有通过不断的修缮、保养,才能使木构建筑延年益寿。修缮是传统建筑修建工作的工人、工程技术人员必须掌握的一门传统技术。雕刻是一门古老的艺术,而且涉及很多领域。

回帖成功

经验值 +10