知识点:铸造设备
近年来,随着国家政策在环保和节能方面的要求越发严格,以及铸件产品对金属液品质要求的不断提高,新建铸造车间采用的熔炼设备,逐渐由以往的冲天炉转向中频感应电炉。甚至有许多原先采用冲天炉的铸造厂,已经在逐步拆除冲天炉,并将车间进行改造,改为使用中频感应电炉进行熔炼作业。因此,本文将以采用中频感应电炉生产铸铁件为例,对熔炼设备的选型进行简要说明,对于冲天炉不再赘述。
中频感应熔炼电炉经过几十年的发展,技术进步的同时,规格型号也越来越丰富,小到几百公斤、大到几十吨的电炉应有尽有,可供铸造厂家选择的配置越来越多样化。一般情况下,铸造厂需根据目标年产量,首先选定造型线,然后再根据造型线每小时产出的产品数量,辅以铸件的单件重量,以及产品的成品率、损耗率等系数,计算出造型工部每小时需要的铁液量,然后根据这个数值来选择感应电炉的规格和数量。感应电炉的规格通常以其炉体容量来确定,而炉体容量多数情况下也是其每小时的铁液生产量(保温炉除外),如:规格为5t的一套感应电炉,通常按每小时可产出5t铁液计算[2]。
举例来说,假设经过计算,造型工部每小时需要的铁液量为15t,那么可以有至少三种不同选择:一套15t电炉;一套10t电炉+—套5t电炉;三套5t电炉。
1)如果造型线运行速度较慢,并且铸件产品单件重量较大,铁液可以有较长时间的保温状态,这种条件下,可以选择一套15t炉作为熔炼设备。
2)如果造型线运行速度较快,铸件产品单件重量较小,铁液熔化好后不允许保温太长时间,并且需供应两条或两条以上的造型线时,就应当选择三套5t炉作为熔炼设备。
3)如果铸件产品不是单一品种,单件重量有大有小,铁液品质需求不同、生产工艺要求也不同的情况下,则可以选择一套10t炉和一套5t炉的混合配置。
通过举例可以看到,感应电炉的选型不能一概而论,需要根据造型线的配置、铸件产品的特性、 生产节奏的不同等工艺要求,进行合理配置,灵活运用。
铸造车间的铁液转运,是指将感应电炉熔化好的铁液,输送到造型工部的浇注工位。这一过程所采用的设备,大致可以分为三种情况。
在一些较早建立的铸造厂,炉前铁液转运大多采用叉车、行车或者行车加地面平板车运送的方式。
1)可多工序共用,投入成本较低,简单方便,易于实施。
2)可用于手工铸造、大件铸造,也可为低速造型线的浇注机提供铁液。
2)叉车或行车需要频繁地往返运行且没有严格固定的路线,易与其他运送设备及人员发生干涉,有一定的安全隐患。
为了提高铁液转运的自动化程度和生产效率,并降低操作人员的劳动强度,环轨吊电动葫芦被引入了铸造车间,用作铁液转运的工具。这种方式需要在车间设置专门的钢结构,用以支撑、固定闭环轨道,电动葫芦悬挂浇包在其上运行。
1)可以在同一轨道上配备多台电动葫芦和浇包,有效提高了铁液转运速度和效率。
3)适用范围广,可用于各种不同的造型线和浇注机,甚至可以用于半自动的手工造型线。
1)需要设置大量钢构,对车间的物流通道和人员行走造成不便。
3)对设备安全性、可靠性、以及维修保养方面的要求较高。
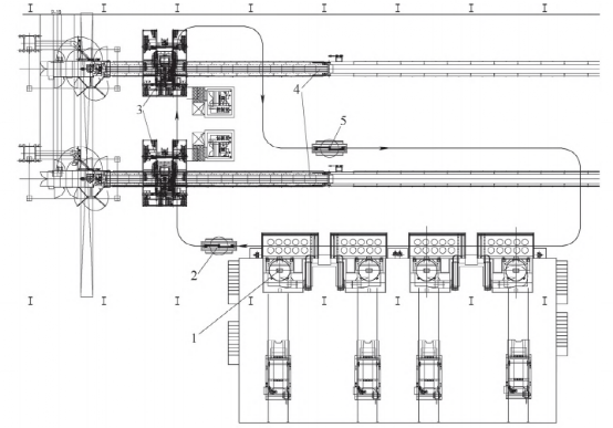
环轨吊铁液转运系统如图1所示。
1.感应电炉 2.带液浇包 3.浇注机 4.造型线 5.返回空包
随着智能化、数字化时代的到来,以及人力成本的不断上升,铸造车间也需要更加智能和自动化。因此,全自动的地面轨道铁液输送系统应用而生,并且很快就受到了许多铸造厂的青睐。顾名思义,这种方式需要在地面上铺设轨道,自动化小车在轨道上行走,运送浇包。
1)自动化程度高,可以实现转移系统的真正的无人化、智能化。
2)运行速度较快,可以满足高速运行的造型线和浇注机的铁液需求。
3)轨道可设置为与地面齐平,不影响整体的物流通道和人员行走。
5)可将转运过程与孕育处理、球化处理、扒渣等工序结合起来,提高生产效率。
1)需要土建专业设计与施工配合,并且精确性要求较高。
2)设备运行中的可靠性和精度要求比较高,容错率比较低。
3)设备成本较高,初始投入比较大。地面轨道铁液转运车如图2所示。
1.感应电炉 2.自动转运车 3.地面轨道 4.造型线 5.浇注机
转运设备的选择,需要考虑的因素很多,包括以下几个因素:
4)铸造厂所在的地区及所拥有的操作人员构成等各种情况。
选择转运设备,并非最快的、最先进的就是最好的,而是要根据自身的生产和工艺要求来确定,最适合的,才是最好的[3]。
浇注设备的作用,就是将从转运设备上接收到的铁液,浇注到造型线的砂型中,是铸件产品成形的关键步骤。随着造型设备技术的发展以及市场的需求,造型线对浇注设备也提出了更高的要求,自动化浇注设备也越来越受到人们的重视。浇注设备是否与造型线匹配,质量是否可靠,能否保持长期的连续运行等情况,将直接影响整个铸造车间的生产效率。因此,浇注设备的选型也是非常重要的。下面,本文就对现行的几种自动化浇注机进行逐一介绍。
机底注式浇注机原理和结构相对而言比较简单,浇注机的主机位于造型线正上方,浇注机包体底部设置出铁液口,正对造型线砂箱上的浇口,利用塞杆机构与出铁液口配合,控制铁液浇注的起停。
过去的底注式浇注机采用人工操作,手动控制塞杆进行浇注。这种方式受人为因素影响比较大,浇注不均匀,控制不精确,容易过浇或欠浇,严重影响生产效率和产品质量。随着数控技术的大量应用,在采用自动化控制系统后,底注式浇注机的工作效率和精确性大幅提高,完全可以匹配高速运行的造型线,极大地提高了单台造型线的产能。因此,近几年来,底注式浇注机的应用日趋广泛。
3)由于其结构特性,可以在底部保持浇注的同时,从顶部向其包体内加注铁液,无需停机,不影响生产。
5)因为生产节奏快,其对于铁液的生产、转运的要求比较高。

图4 底注式浇注机加注铁液
3.2倾转式浇注机
倾转式浇注机是利用机械设备将浇包固定,然后以旋转轴为中心进行倾转,将浇包中的铁液直接倒入砂箱型腔进行浇注。这种浇注方式因为机构和原理比较简单,操作和观察浇注效果比较方便,过去采用人工操作进行倾转浇注。但是这种方式受人为影响较大,浇注速度较慢,浇注质量不能得到保证,并且操作人员的连续工作强度较大,工作环境较差。随着伺服电动机技术的提升,采用伺服电动机驱动、自动化程序控制的倾转系统逐渐成熟,并在国内铸造厂得到了广泛应用。
倾转式浇注机配备的浇包有筒形浇包和扇形浇包两种。筒形浇包的出铁液量随着倾转角度的变化而大小不同,铁液的出铁轨距和落点位置也不固定,因此这类浇包多采用人工操作,手动控制浇包的倾转,才能减小误差,完成浇注。而扇形浇包因其包体形状的特性,使得其出铁液速度与倾转角度呈线性关系,在倾转时可以实现匀速、定点出铁液。有利于自动控制系统的程序设定,实现倾转机构的自动化。
倾转式浇注机的特点:
1)机械结构比较简单,操作和控制方便。
2)铁液在浇包内,除渣方便,残余铁液回收也很方便。
3)常用于单件较重的大件浇注。
4)采用自动化控制后,浇注速度有所提升,应用范围更加广泛。
5)当铁液浇注完之后,浇注机需要停下来进行换包操作,因此在浇注过程中会有停顿,不适用于连续运行的高速造型线。
倾转式浇注机如图5所示。

图5 倾转式浇注机
3.3气压保温浇注
炉气压保温浇注炉不但包含浇注机,还包含有保温系统,通常采用中频电源为浇注炉主体的感应器供电,来对炉内铁液进行保温、升温。保温浇注炉分为有芯浇注炉和无芯浇注炉,其中无芯浇注炉应用较少,这里不做介绍,仅以有芯保温炉为主进行说明。
有芯浇注炉的主体外形与茶壶相似,在包体两侧分别设有进铁液槽与出铁液槽,包体顶部密封并设有进气管道和阀门。通过向包内液面上方的空间注入压缩空气或惰性气体,将包体熔池内的铁液压入出铁液槽,在出铁液槽前端底部设有浇注口,通过塞杆机构的升降控制浇注口的开闭,来实现铁液的浇注。
保温浇注炉因为能够保持铁液温度恒定,可以精确地控制浇注温度,非常有利于铸件质量的提高,常用于对铁液温度要求严格的铸件产品。另外,因其炉体容量较大,铁液可长时间留存,而比较适用于产品单一的铸件。
气压保温浇注炉的特点:
1)采用气压控制,多数氧化渣都浮在铁液表面,而铁液从底部进入出铁液槽,铁液比较纯净,浇注质量较好。
2)带有保温、升温功能,可以保持铁液温度恒定,提升铸件质量。
3)容量较大,可以作为熔炼炉与造型线之间的缓存。
4)铁液能够长时间留存,适用于长期运行、生产品种单一的铸件。
5)必须保证连续不间断供电,炉膛内始终留有铁液,不能随意倒空,因此更换不同品质的铁液比较困难。
6)由于其特殊的进铁液槽和顶部结构,除渣不便,工作量较大。
7)铁液在浇注炉内长时间留存,不适合用于球墨铸铁件的生产。
气压保温浇注炉如图6、图7所示。

图6 气压保温浇注炉
1.浇注嘴 2.浇注槽 3.塞棒 4.浮子 5.气体或惰性气体进气阀
6.加压空间 7.加料口 8.水冷式感应器 9.熔沟 10.模箱

图7 气压保温浇注炉现场
自动化浇注设备需与造型线配合应用,与造型线的对应性很强。因此,自动化浇注机的选型首先要与造型线匹配,要符合造型线的运行速度和造型能力。其次,也要考虑铸件的浇注重量、品质和浇注工艺等要求,并结合设备的经济成本和企业自身状况等因素来综合考量。
4结束语
熔炼工部是铸造车间中非常重要的组成部分,它决定着铁液的品质和供给效率。铁液的品质直接决定着铸件产品的质量,而铁液的供给效率,也决定着整个铸造车间的生产效率。因此,熔炼工部的设备选型必须科学合理,严格匹配。合理的选型和配套设备,能最大限度地发挥设备功能,提高生产效率,扩大产能,为企业在日趋激烈的市场竞争中赢得先机。
相关推荐链接:
1、铸造事业部:机加车间设备基础改造工程
2、某机器制造公司设备原理图铸造设备生产线原理图
全部回复(0 )
只看楼主 我来说两句抢沙发