土木在线论坛 \ 建筑设计 \ 中望cad \ 建筑水暖电通用制图标准与基础识图

建筑水暖电通用制图标准与基础识图

发布于:2022-09-26 11:35:26 来自:建筑设计/中望cad [复制转发]

01

制图标准


  • 适用范围CAD制图初步设计、施工图设计阶段

  • 引用标准

图片
  • 要求

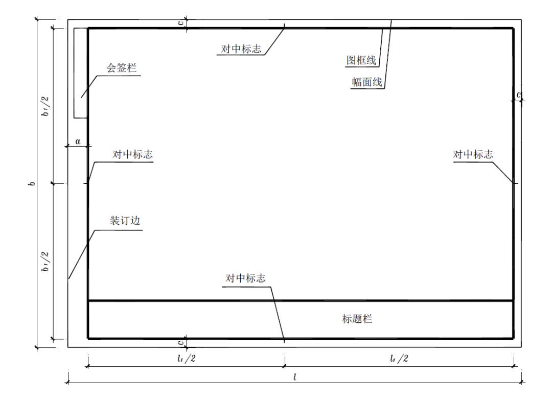
图 框

图片


A0~A3 横式幅面,图框应包含:标题栏,图框线、幅面线、装订边线

图片


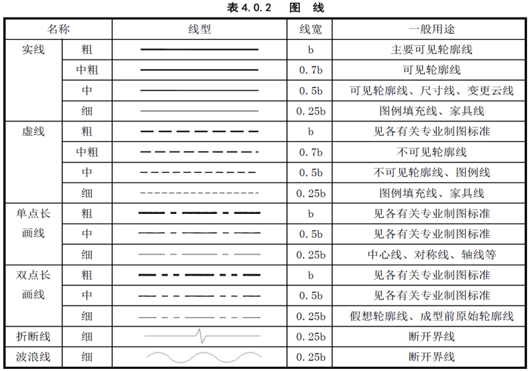
图 线

图线的宽度b,宜从 1.4、1.0、0.7、0.5、0.35、0.25、0.18、0.13mm 线宽系列中选取

图片

图线宽度不应小于0.1mm

图片


图框线和标题栏

图片


字 体

字体中汉字宜采用长 仿宋体 或 黑体,同一图纸字体种类不应超过两种。长仿宋体的宽度与高度的关系应符合下表规定,黑体字的宽度与高度应相同。图样及说明中的拉丁字母、阿拉伯数字与罗马数字,宜采用单线简体(simplex.shx)或ROMAN 字体

图片


比例标注

比例宜注写在图名的右侧,字的基准线应取平;比例的字高宜比图名的字高小一号或二号,绘图所用的比例应根据图样的用途与被绘对象的复杂程度,从下表中选用,并应优先采用表中常用比例

图片
图片


符 号

指北针其圆的直径宜为24mm,用细实线绘制;指针尾部的宽度宜为3mm,指针头部应注“北”或“N”字。需较大直径绘制指北针的时候,指针尾部宽度宜为直径的1/8

图片

引出线应以细实线绘制,宜采用水平方向的直线、与水平方向成30°、45°、60°、90°的直线,或经上述角度再折为水平线。文字说明宜注写在水平线的上方(图a),也可注写在水平线的端部(图b)。索引详图的引出线,应与水平直径线相连接(图c)

图片

标高符号的尖端应指至被注高度的位置。尖端宜向下,也可向上。标高数字应注写在标高符号的上侧或下侧。高符号应以米为单位,注写到小数点后三位。在总平面图中可注写到小数点后二位,零点标高应注写成±0.000,正数标高不注“+”,附属标高应注“-” 例如3.000、 -0.600

图片
图片


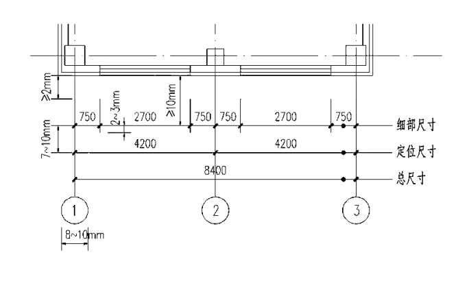
尺寸标注

轴线用细实长画线绘制。轴网编号的圆用细实线绘制,直径为8~10mm,圆心应在定位轴线的延长线或折线上。横向编号从左到右,竖向从下至上。拉丁字母大写I、O、Z不得做轴线编号

图片

附加定位轴线的编号,应以分数形式表示。两根轴线的附加轴线,应以分母表示前一轴线的编号,分子表示附加轴线的编号。编号宜用阿拉伯数字顺序编写

图片

图样上的尺寸,应包含尺寸界线、尺寸起止符号和尺寸数字。尺寸线用细实线绘制。其间距宜为7~10mm,并应保持一致。尺寸起止符号应用中粗斜短线绘制,应与尺寸界线成顺时针45°角,长度宜为2mm~3mm

图片

02

建筑水暖电基础识图


在一套施工图纸中,通常我们要识读部分水暖电类的图纸,其中会出现一些图例及英文符号,下面给大家总结了一些水暖电图纸中常用的符号表示含义,希望能对大家有所帮助

符号表述释义

图片
图片
图片
图片


英文表述释义

                       

AAT

电源自动投入装置

AC

交流电

CC

暗敷顶棚

DC

直流电

DS

管吊

FU

熔断器

FC

沿地暗敷

G

发电机

M

电动机

HG

绿灯

HR

红灯

HW

白灯

HP

光字牌

K

继电器

KA(NZ) 

电流继电器(负序零序)

KD

差动继电器

KF

闪光继电器

KH

热继电器

KM

中间继电器

KOF

出口中间继电器

KS

信号继电器

KT

时间继电器

KV(NZ)

电压继电器(负序零序)

KP

极化继电器

KR

干簧继电器

KI

阻抗继电器

KW(NZ) 

功率方向继电器(负序零序)

KM

接触器

KA

瞬时继电器;瞬时有或无继电器;交流继电器

KV

电压继电器

L

线路

P

编织屏蔽

QF

断路器

QS

隔离开关

QM

电动机保护开关

TA

电流互感器

TV

电压互感器

W

直流母线

WC

暗敷地面墙内

YC

合闸线圈

YT

跳闸线圈

PQS

有功无功视在功率

EUI

电动势电压电流

SE

实验按钮

SR

复归按钮

f

频率

知识点:建筑水暖电通用制图标准与基础识图

某大厦全套图纸(结构建筑水暖电)-结构说明及基础图


全部回复(0 )

只看楼主 我来说两句抢沙发
这个家伙什么也没有留下。。。

中望cad

返回版块

1.42 万条内容 · 37 人订阅

猜你喜欢

阅读下一篇

CAD绘图技能基础-布局空间

布局空间主要的功能为出图排版,也兼顾一定的绘图作用,下面,小编为大家详细介绍一下布局空间的配置以及使用方法。 进入布局空间后首先会看到一个白色的区域(1)和一个虚线矩形(2)和一个实线矩形(3)。 (1)白色区域

回帖成功

经验值 +10