知识点:中小学建筑设计要点
1
定义及类型
1、中小学校
中小学校泛指对青、少年实施初等教育和中等教育的学校,包括完全小学、非完全小学、初级中学、高级中学、完全中学、九年制学校等各种学校。
完全小学:对儿童、少年实施初等教育的场所,共有6个年级,属义务教育。
非完全小学:对儿童实施初等教育基础教育阶段的场所,设1年级~4年级,属义务教育。
初级中学 :对青、少年实施初级中等教育的场所,共有3个年级,属义务教育。
高级中学:对青年实施高级中等教育的场所,共有3个年级。
完全中学:对青、少年实施中等教育的场所,共有6个年级,含初级中学和高级中学教育的 学校。其中,1年级~3年级属义务教育。
九年制学校:对儿童、青少年连续实施初等教育和初级中等教育的学校,共有9个年级,其 中完全小学6个年级,初级中学3个年级。属义务教育。

2、每班人数

2
总体规划
1场地
1、中小学校严禁建设在地震、地质塌裂、暗河、洪涝等自然灾害及人为风险高的地段和污染超标的地段。
2、城镇完全小学的服务半径宜为500m,城镇初级中学的服务半径宜为1000m。
3、学校周界外25m范围内已有邻里建筑处的噪声级不应超过现行国家标准《民用建筑隔声设计规范》GB50118有关规定的限值。
2用地
中小学校用地应包括建筑用地、体育用地、绿化用地、道路及广场、停车场用地。有条件时宜预留发展用地。
(1)、建筑用地
建筑用地应包括以下内容:
1.教学及教学辅助用房、行政办公和生活服务用房等全部建筑的用地;有住宿生学校的建筑用地应包括宿舍的用地;建筑用地应计算至台阶、坡道及散水外缘;
2.自行车库及机动车停车库用地;
3.设备与设施用房的用地。
(2)、体育用地
体育用地应包括:体操项目及武术项目用地、田径项目用地、球类用地和场地间的专用甬路等。设400m环形跑道时,宜设8条直跑道。
中小学校体育用地的设置应符合下列规定:
1 各类运动场地应平整,在其周边的同一高程上应有相应的安全防护空间。
2 室外田径场及足球、篮球、排球等各种球类场地的长轴宜南北向布置。长轴南偏东宜小于20°,南偏西宜小于10°。
3 相邻布置的各体育场地间应预留安全分隔设施的安装条件。
4 中小学校设置的室外田径场、足球场应进行排水设计。室外体育场地应排水通畅。
5 中小学校体育场地应采用满足主要运动项目对地面要求的材料及构造做法。
6 气候适宜地区的中小学校宜在体育场地周边的适当位置设置洗手池、洗脚池等附属设施。
(3)、绿化用地
绿化用地宜包括集中绿地、零星绿地、水面和供教学实践的种植园及小动物饲养园。
1.中小学校应设置集中绿地。集中绿地的宽度不应小于8m。
2.集中绿地、零星绿地、水面、种植园、小动物饲养园的用地应按各自的外缘围合的面积计算。
3.各种绿地内的步行甬路应计入绿化用地。
4.铺栽植被达标的绿地停车场用地应计入绿化用地。
5.未铺栽植被或铺栽植被不达标的体育场地不宜计入绿化用地。
6.绿地的日照及种植环境宜结合教学、植物多样化等要求综合布置。
(4)、道路及广场、停车场用地
校园内的道路及广场、停车场用地应包括消防车道、机动车道、步行道、无顶盖且无植被或植被不达标的广场及地上停车场。用地面积计量范围应界定至路面或广场、停车场的外缘。校门外的缓冲场地在学校用地红线以内的面积应计量为学校的道路及广场、停车场用地。
3总体规划原则
1、教学用房、教学辅助用房、行政用房、服务用房、运动场地等应分区明确、布局合理、联系方便且互不干扰。
2、教学、图书、实验楼应布置在校园中安静的部位,并有良好的朝向。
3、办公部分应安排在对外联系便捷、对内管理方便的位置。
4、生活服务用房,为保障对外联系方便,及不干扰校内正常活动,应设独立出入口。
5、体育用房应接近室外体育活动场地,形成体育活动区。
4总平面
1、中小学校的总平面设计应包括总平面布置、竖向设计及管网综合设计。总平面布置应包括建筑布置、体育场地布置、绿地布置、道路及广场、停车场布置等。
2、各类教室的外窗与相对的教学用房或室外运动场地边缘间的距离不应小于25m。
3、中小学校的总平面设计应根据学校所在地的冬夏主导风向合理布置建筑物及构筑物,有效组织校园气流,实现低能耗通风换气。
4、中小学校的广场、操场等室外场地应设置供水、供电、广播、通信等设施的接口。

4校园出入口
1、中小学校的校园应设置2个出入口。出入口的位置应符合教学、安全、管理的需要,出入口的布置应避免人流、车流交叉。有条件的学校宜设置机动车专用出入口。
2、中小学校校园出入口应与市政交通衔接,但不应直接与城市主干道连接。校园主要出入口应设置缓冲场地。

3
教学用房及教学辅助用房
1一般规定
1、中小学校的教学及教学辅助用房应包括普通教室、专用教室、公共教学用房及其各自的辅助用房。
2、各类小学的主要教学用房不应设在四层以上,各类中学的主要教学用房不应设在五层以上。
3、每间教学用房的疏散门均不应少于2个,疏散门的宽度应通过计算;同时,每樘疏散门的通行净宽度不应小于0.90m。当教室处于袋形走道尽端时,若教室内任一处距教室门不超过15.00m,且门的通行净宽度不小于1.50m时,可设1个门。
4、普通教室及不同课程的专用教室对教室内桌椅间的疏散走道宽度要求不同,教室内疏散走道的设置应符合对各教室设计的规定。
5、各教室前端侧窗窗端墙的长度不应小于1.00m。窗间墙宽度不应大于1.20m。

6、教学用房的窗应符合下列规定:
1.教学用房中,窗的采光应符合现行国家标准《建筑采光设计标准》GB/T 50033的有关规定,并应符合《中小学建筑设计规范》中采光的规定;
2.教学用房及教学辅助用房的窗玻璃应满足教学要求,不得采用彩色玻璃;
3.教学用房及教学辅助用房中,外窗的可开启窗扇面积应符合中小学建筑规范采光及通风换气的规定;
4.教学用房及教学辅助用房的外窗在采光、保温、隔热、散热和遮阳等方面的要求应符合国家现行有关建筑节能标准的规定。
7、教学用房的门应符合下列规定:
1.除音乐教室外,各类教室的门均宜设置上亮窗;
2.除心理咨询室外,教学用房的门扇均宜附设观察窗。
3.疏散通道上的门不得使用弹簧门、旋转门、推拉门、大玻璃门等不利于疏散通畅、安全的门;
4.各教学用房的门均应向疏散方向开启,开启的门扇不得挤占走道的疏散通道;
5.靠外廊及单内廊一侧教室内隔墙的窗开启后,不得挤占走道的疏散通道,不得影响安全疏散;
6.二层及二层以上的临空外窗的开启扇不得外开。
8、教学用房及学生公共活动区的墙面宜设置墙裙,墙裙高度应符合下列规定:
1.各类小学的墙裙高度不宜低于1.20m;
2.各类中学的墙裙高度不宜低于1.40m;
3.舞蹈教室、风雨操场墙裙高度不应低于2.10m。
9、教学用房内设置黑板或书写白板及讲台时,其材质及构造应符合下列规定:
1.黑板的宽度应符合下列规定:
1)小学不宜小于3.60m;
2)中学不宜小于4.00m;
2.黑板的高度不应小于1.00m;
3.黑板下边缘与讲台面的垂直距离应符合下列规定:
1)小学宜为0.80m~0.90m;
2)中学宜为1.00m~1.1Om;
4.黑板表面应采用耐磨且光泽度低的材料;
5.讲台长度应大于黑板长度,宽度不应小于0.80m,高度宜为0.20m。其两端边缘与黑板两端边缘的水平距离分别不应小于0.40m。

2普通教室
1、教室容纳人数:小学45人,中学50人
2、普通教室冬至日满窗日照不应少于2h。
3、普通教室内单人课桌的平面尺寸应为0.60m×0.40m。
4、普通教室内的课桌椅布置应符合下列规定:
1.中小学校普通教室课桌椅的排距不宜小于0.90m,独立的非完全小学可为0.85m;
2.最前排课桌的前沿与前方黑板的水平距离不宜小于2.20m;
3.最后排课桌的后沿与前方黑板的水平距离应符合下列规定:
1)小学不宜大于8.00m;
2)中学不宜大于9.00m;
4.教室最后排座椅之后应设横向疏散走道;自最后排课桌后沿至后墙面或固定家具的净距不应小于1.10m;
5.中小学校普通教室内纵向走道宽度不应小于0.60m,独立的非完全小学可为0.55m;
6.沿墙布置的课桌端部与墙面或壁柱、管道等墙面突出物的净距不宜小于0.15m;
7.前排边座座椅与黑板远端的水平视角不应小于30°。

3合班教室
1、合班教室各类小学宜配置能容纳2个班的合班教室。
2、各类中学宜配置能容纳一个年级或半个年级的合班教室。
3、容纳3个班及以上的合班教室应设计为阶梯教室。
4、阶梯教室梯级高度依据视线升高值确定。阶梯教室的设计视点应定位于黑板底边缘的中点处。前后排座位错位布置时,视线的隔排升高值宜为0.12m。
5、合班教室课桌椅的布置应符合下列规定:
1.每个座位的宽度不应小于0.55m,小学座位排距不应小于0.85m,中学座位排距不应小于0.90m;
2.教室最前排座椅前沿与前方黑板间的水平距离不应小于2.50m,最后排座椅的前沿与前方黑板间的水平距离不应大于18.00m;
3.纵向、横向走道宽度均不应小于0.90m,当座位区内有贯通的纵向走道时,若设置靠墙纵向走道,靠墙走道宽度可小于0.90m,但不应小于0.60m;
4.最后排座位之后应设宽度不小于0.60m的横向疏散走道;
5.前排边座座椅与黑板远端间的水平视角不应小于30°。

6、当合班教室内设置视听教学器材时,宜在前墙安装推拉黑板和投影屏幕(或数字化智能屏幕),并应符合下列规定:
1.当小学教室长度超过9.00m,中学教室长度超过10.00m时,宜在顶棚上或墙、柱上加设显示屏;学生的视线在水平方向上偏离屏幕中轴线的角度不应大于45°,垂直方向上的仰角不应大于30°;
2.当教室内,自前向后每6.00m~8.00m设1个显示屏时,最后排座位与黑板间的距离不应大于24.00m;学生座椅前缘与显示屏的水平距离不应小于显示屏对角线尺寸的4倍~5倍,并不应大于显示屏对角线尺寸的10倍~11倍;
3.显示屏宜加设遮光板。
4专用教室
中小学校专用教室应包括下列用房:
1 小学的专用教室应包括科学教室、计算机教室、语言教室、美术教室、书法教室、音乐教室、舞蹈教室、体育建筑设施及劳动教室等,宜设置史地教室;
2 中学的专用教室应包括实验室、史地教室、计算机教室、语言教室、美术教室、书法教室、音乐教室、舞蹈教室、体育建筑设施及技术教室等。
科学教室、实验室
1、中小学校至少应有1间科学教室或生物实验室的室内能在冬季获得直射阳光。
2、实验桌平面尺寸

3、实验桌布置
实验桌的布置应符合下列规定:
1)双人单侧操作时,两实验桌长边之间的净距不应小于0.60m;四人双侧操作时,两实验桌长边之间的净距不应小于1.30m;超过四人双侧操作时,两实验桌长边之间的净距不应小于1.50m;
2)最前排实验桌的前沿与前方黑板的水平距离不宜小于2.50m;
3)最后排实验桌的后沿与前方黑板之间的水平距离不宜大于11.00m;
4)最后排座椅之后应设横向疏散走道;自最后排实验桌后沿至后墙面或固定家具的净距不应小于1.20m;
5)双人单侧操作时,中间纵向走道的宽度不应小于0.70m;四人或多于四人双向操作时,中间纵向走道的宽度不应小于0.90m;
6)沿墙布置的实验桌端部与墙面或壁柱、管道等墙面突出物间宜留出疏散走道,净宽不宜小于0.60m;另一侧有纵向走道的实验桌端部与墙面或壁柱、管道等墙面突出物间可不留走道,但净距不宜小于0.15m;
7)前排边座座椅与黑板远端的最小水平视角不应小于30°。

化学实验室
1.化学实验室宜设在建筑物首层。
2.每一化学实验桌的端部应设洗涤池;岛式实验桌可在桌面中间设通长洗涤槽。每一间化学实验室内应至少设置一个急救冲洗水嘴,急救冲洗水嘴的工作压力不得大于0.01MPa。
3.化学实验室的外墙至少应设置2个机械排风扇,排风扇下沿应在距楼地面以上0.10m~0.15m高度处。在排风扇的室内一侧应设置保护罩,采暖地区应为保温的保护罩。在排风扇的室外一侧应设置挡风罩。实验桌应有通风排气装置,排风口宜设在桌面以上。药品室的药品柜内应设通风装置。
物理实验室
1.当学校配置2个及以上物理实验室时,其中1个应为力学实验室。光学、热学、声学、电学等实验可共用同一实验室,并应配置各实验所需的设备和设施。
2.力学实验室需设置气垫导轨实验桌,在实验桌一端应设置气泵电源插座;另一端与相邻桌椅、墙壁或橱柜的间距不应小于0.90m。
演示实验室
1.演示实验室宜按容纳1个班或2个班设置。
2.演示实验室课桌椅的布置应符合下列规定:
1.宜设置有书写功能的座椅,每个座椅的最小宽度宜为0.55m;
2.演示实验室中,桌椅排距不应小于0.90m;
3.演示实验室纵向走道宽度不应小于0.70m;
4.边演示边实验的阶梯式实验室中,阶梯的宽度不宜小于1.35m;
5.边演示边实验的阶梯式实验室的纵向走道应有便于仪器药品车通行的坡道,宽度不应小于0.70m。
3.演示实验室宜设计为阶梯教室,设计视点应定位于教师演示实验台桌面的中心,每排座位宜错位布置,隔排视线升高值宜为0.12m。
4.演示实验室内最后排座位之后,应设横向疏散走道,疏散走道宽度不应小于0.60m,净高不应小于2.20m。
计算机教室
计算机教室的课桌椅布置应符合下列规定:
1 单人计算机桌平面尺寸不应小于0.75m×0 .65m。前后桌间距离不应小于0.70m;
2 学生计算机桌椅可平行于黑板排列;也可顺侧墙及后墙向黑板成半围合式排列;
3 课桌椅排距不应小于1.35m;
4 纵向走道净宽不应小于0.70m;
5 沿墙布置计算机时,桌端部与墙面或壁柱、管道等墙面突出物间的净距不宜小于0.15m。

美术教室、书法教室
1、美术教室的墙面及顶棚应为白色。
2、书法条案的布置应符合下列规定:
1.条案的平面尺寸宜为1.50m×0.60m,可供2名学生合用;
2.条案宜平行于黑板布置;条案排距不应小于1.20m;
3.纵向走道宽度不应小于0.70m。
音乐、 舞蹈教室
1、各类小学的音乐教室中,应有1间能容纳1个班的唱游课,学生边唱边舞所占面积不应小于2.40㎡。
2、中小学校应有1间音乐教室能满足合唱课教学的要求,宜在紧接后墙处设置2排~3排阶梯式合唱台,每级高度宜为0.20m,宽度宜为0.60m。
3、舞蹈教室宜满足舞蹈艺术课、体操课、技巧课、武术课的教学要求,并可开展形体训练活动。每个学生的使用面积不宜小于6㎡。
4、舞蹈教室内应在与采光窗相垂直的一面墙上设通长镜面,镜面含镜座总高度不宜小于2.10m,镜座高度不宜大于0.30m。镜面两侧的墙上及后墙上应装设可升降的把杆,镜面上宜装设固定把杆。把杆升高时的高度应为0.90m;把杆与墙间的净距不应小于0.40m。
5公共教学用房
中小学校的公共教学用房应包括合班教室、图书室、学生活动室、体质测试室、心理咨询室、德育展览室等及任课教师办公室。
图书室
中小学校图书室应包括学生阅览室、教师阅览室、图书杂志及报刊阅览室、视听阅览室、检录及借书空间、书库、登录、编目及整修工作室。并可附设会议室和交流空间。
1、图书室应位于学生出入方便、环境安静的区域。
2、图书室的设置应符合下列规定:
1.教师与学生的阅览室宜分开设置,使用面积应符合本规范表7.1.1的规定;
2.中小学校的报刊阅览室可以独立设置,也可以在图书室内的公共交流空间设报刊架,开架阅览;
3.视听阅览室的设置应符合下列规定:
1)使用面积应符合本规范表7.1.1的规定;
2)视听阅览室宜附设资料储藏室,使用面积不宜小于12.00㎡;
3)当视听阅览室兼作计算机教室、语言教室使用时,阅览桌椅的排列应符合本规范计算机教室、语言教室的规定;
4)视听阅览室宜采用防静电架空地板,不得采用无导出静电功能的木地板或塑料地板;当采用地板采暖系统时,楼地面需采用与之相适应的构造做法;
4.书库使用面积宜按以下规定计算后确定:
1)开架藏书量约为400册/㎡~500册/㎡;
2)闭架藏书量约为500册/㎡~600册/㎡;
3)密集书架藏书量约为800册/㎡~1200册/㎡;
5.书库应采取防火、降温、隔热、通风、防潮、防虫及防鼠的措施;
6.借书空间除设置师生个人借阅空间外,还应设置检录及班级集体借书的空间。借书空间的使用面积不宜小于10.00㎡。
6任课教师办公室
任课教师的办公室应包括年级组教师办公室和各课程教研组办公室。
1、年级组教师办公室宜设置在该年级普通教室附近。课程有专用教室时,该课程教研组办公室宜与专用教室成组设置。其他课程教研组可集中设置于行政办公室或图书室附近。
2、任课教师办公室内宜设洗手盆
7主要教学用房及教学辅助用房面积指标及净高
1、主要教学用房使用面积指标(㎡/每座)

注:1 表中指标是按完全小学每班45人、各类中学每班50人排布测定的每个学生所需使用面积;如果班级人数定额不同时需进行调整,但学生的全部座位均必须在“黑板可视线”范围以内;
2 体育建筑设施、劳动教室、技术教室、心理咨询室未列入此表,另行规定;
3 任课教师办公室未列入此表,应按每位教师使用面积不小于5.0㎡计算。
2、主要教学辅助用房面积指标(㎡/每间)

注:除注明者外,指标为每室最小面积。当部分功能移入走道或教室室,指标作相应调整。
3、主要教学用房的最小净高(m)

4
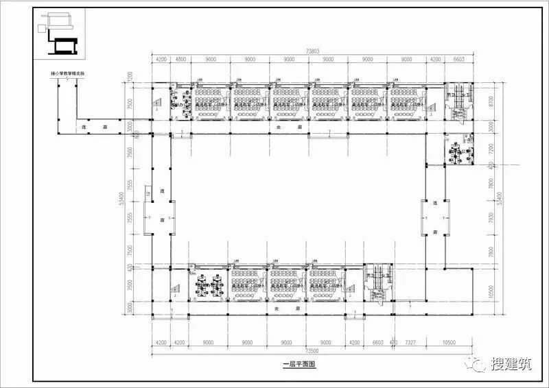
教学用房平面组合形式
1、内廊组合
沿走廊的两侧排列组成两组教室,并在走廊的端部安排为本组教室服务的卫生间,楼梯或班主任办公室等。
优点:教室集中,面积比较紧凑,内部交通路线较短。房间进深大而外墙少,结构简单、管道集中。
缺点:教室干扰大、一部分教室朝向差,走廊采光不足。

2、外廊组合
外廊组合是目前广泛采用的一种基本方式。
沿走廊一侧排列教室,卫生间、办公室及楼梯间等房间组成外廊式。
特点:通风、采光条件均较好,教室相互干扰小,外廊视野开阔与庭园空间联系紧密。
一般采用南外廊较多。

3、组团式组合
是一种教学综合空间单元的组合,即将同一年级的教室、休息室、存物室、卫生间及教师休息室等房间组成一个有机的独立组团。
特点:单元内环境安静干扰少,交通路线短,便于采光通风,也容易分班级活动场地,尤其适用于小学校。

5
体育建筑设施
体育建筑设施包括风雨操场、游泳池或游泳馆。体育建筑设施的位置应邻近室外体育场,并宜便于向社会开放。
1、风雨操场
1.风雨操场应附设体育器材室,也可与操场共用一个体育器材室,并宜附设更衣室、卫生间、浴室。教职工与学生的更衣室、卫生间、淋浴室应分设。
2.当风雨操场无围护墙时,应避免眩光影响。有围护墙的风雨操场外窗无避免眩光的设施时,窗台距室内地面高度不宜低于2.10m。窗台高度以下的墙面宜为深色。
2、游泳池、游泳馆
1.中小学校的游泳池、游泳馆均应附设卫生间、更衣室,宜附设浴室。
2.中小学校泳池宜为8泳道,泳道长宜为50m或25m。
3.中小学校游泳池、游泳馆内不得设置跳水池,且不宜设置深水区。
4.中小学校泳池入口处应设置强制通过式浸脚消毒池,池长不应小于2.00m,宽度应与通道相同,深度不宜小于0.20m。
3、体育建筑设施的使用面积

注:体育用地范围计量界定于各种项目的安全保护区(含投掷类项目的落地区)的外缘。
4、各类体育场地的最小净高(m)

注:田径场地可减少部分项目降低净高
6
行政办公用房
行政办公用房应包括校务、教务等行政办公室、档案室、会议室、学生组织及学生社团办公室、文印室、广播室、值班室、安防监控室、网络控制室、卫生室(保健室)、传达室、总务仓库及维修工作间等。
(1)、主要行政办公用房的位置应符合下列规定:
1.校务办公室宜设置在与全校师生易于联系的位置,并宜靠近校门;
2.教务办公室宜设置在任课教师办公室附近;
3.总务办公室宜设置在学校的次要出入口或食堂、维修工作间附近;
4.会议室宜设在便于教师、学生、来客使用的适中位置;
5.广播室的窗应面向全校学生做课间操的操场;
6.值班室宜设置在靠近校门、主要建筑物出入口或行政办公室附近;
7.总务仓库及维修工作间宜设在校园的次要出入口附近,其运输及噪声不得影响教学环境的质量和安全。
(2)、卫生室(保健室)的设置应符合下列规定:
1.卫生室(保健室)应设在首层,宜临近体育场地,并方便急救车辆就近停靠;
2.小学卫生室可只设1间,中学宜分设相通的2间,分别为接诊室和检查室,并可设观察室;
3.卫生室的面积和形状应能容纳常用诊疗设备,并能满足视力检查的要求;每间房间的面积不宜小于15㎡;
4.卫生室宜附设候诊空间,候诊空间的面积不宜小于20㎡;
5.卫生室(保健室)内应设洗手盆、洗涤池和电源插座;
6.卫生室(保健室)宜朝南。
7
生活服务用房
中小学校生活服务用房应包括饮水处、卫生间、配餐室、发餐室、设备用房,宜包括食堂、淋浴室、停车库(棚)。寄宿制学校应包括学生宿舍、食堂、浴室。
1饮水处
中小学校的饮用水管线与室外公厕、垃圾站等污染源间的距离应大于25.00m。
教学用建筑内应在每层设饮水处,每处应按每40人~45人设置一个饮水水嘴计算水嘴的数量。
教学用建筑每层的饮水处前应设置等侯空间,等候空间不得挤占走道等疏散牢间。
2卫生间
教学用建筑每层均应分设男、女学生卫生间及男、女教师卫生间。学校食堂宜设工作人员专用卫生间。当教学用建筑中每层学生少于3个班时,男、女生卫生间可隔层设置。
1、卫生间位置应方便使用且不影响其周边教学环境卫生。
在中小学校内,当体育场地中心与最近的卫生间的距离超过90.00m时,可设室外厕所。所建室外厕所的服务人数可依学生总人数的15%计算。室外厕所宜预留扩建的条件。
2、学生卫生间卫生洁具的数量应按下列规定计算:
1.男生应至少为每40人设1个大便器或1.20m长大便槽;每20人设1个小便斗或0.60m长小便槽;女生应至少为每13人设1个大便器或1.20m长大便槽;
2.每40人~45人设1个洗手盆或0.60m长盥洗槽:
3.卫生间内或卫生间附近应设污水池。
3、中小学校的卫生间内,厕位蹲位距后墙不应小于0.30m。
4、各类小学大便槽的蹲位宽度不应大于0.18m。
5、厕位间宜设隔板,隔板高度不应低于1.20m。
6、中小学校的卫生间应设前室。男、女生卫生间不得共用一个前室。
7、学生卫生间应具有天然采光、自然通风的条件,并应安置排气管道。
8、中小学校的卫生间外窗距室内楼地面1.70m以下部分应设视线遮挡措施。
9、中小学校应采用水冲式卫生间。当设置旱厕时,应按学校专用无害化卫生厕所设计。

3浴室
淋浴室墙面应设墙裙,墙裙高度不应低于2.10m。
4食堂
1、食堂与室外公厕、垃圾站等污染源间的距离应大于25.00m。
2、厨房和配餐室的墙面应设墙裙,墙裙高度不应低于2.10m。

5学生宿舍
1、学生宿舍宜分层设置公共盥洗室、卫生间和浴室。盥洗室门、卫生间门与居室门间的距离不得大于20.00m。当每层寄宿学生较多时可分组设置。
2、学生宿舍每室居住学生不宜超过6人。居室每生占用使用面积不宜小于3.00m?。当采用单层床时,居室净高不宜低于3.00m;当采用双层床时,居室净高不宜低于3.10m;当采用高架床时,居室净高不宜低于3.35m。
注:居室面积指标内未计入储藏空间所占面积。
3、学生宿舍的居室内应设储藏空间,每人储藏空间宜为0.30m?~0.45m?,储藏空间的宽度和深度均不宜小于0.60m。

8
安全、通行与疏散
1建筑环境安全
1、临空窗台的高度不应低于0.90m。
2、上人屋面、外廊、楼梯、平台、阳台等临空部位必须设防护栏杆,防护栏杆必须牢固,安全,高度不应低于1.10m。
3、在抗震设防烈度为6度或6度以上地区建设的实验室不宜采用管道燃气作为实验用的热源。
2疏散通行宽度
1、中小学校建筑的安全出口、疏散走道、疏散楼梯和房间疏散门等处每100人的净宽度应下表计算。同时,教学用房的内走道净宽度不应小于2.40m,单侧走道及外廊的净宽度不应小于1.80m。
安全出口、疏散走道、疏散楼梯和房间疏散门等处每100人的净宽度(m)

2、房间疏散门开启后,每樘门净通行宽度不应小于0.90m。
3校园道路
1、校园道路每通行100人道路净宽为0.70m,每一路段的宽度应按该段道路通达的建筑物容纳人数之和计算,每一路段的宽度不宜小于3.00m。
2、校园内人流集中的道路不宜设置台阶。设置台阶时,不得少于3级。
3、中小学校校园应设消防车道。消防车道的设置应符合现行国家标准《建筑设计防火规范》GB 50016的有关规定。
4、校园道路设计应符合现行国家标准《建筑设计防火规范》GB 50016的有关规定。
4建筑物出入口
1、校园内除建筑面积不大于200㎡,人数不超过50人的单层建筑外,每栋建筑应设置2个出入口。非完全小学内,单栋建筑面积不超过500㎡,且耐火等级为一、二级的低层建筑可只设1个出入口。
2、教学用房在建筑的主要出入口处宜设门厅。
3、教学用建筑物出入口净通行宽度不得小于1.40m,门内与门外各1.50m范围内不宜设置台阶。
4、在寒冷或风沙大的地区,教学用建筑物出入口应设挡风间或双道门。
5、教学用建筑物的出入口应设置无障碍设施,并应采取防止上部物体坠落和地面防滑的措施。
6、停车场地及地下车库的出入口不应直接通向师生人流集中的道路。
5走 道
1、教学用建筑的走道宽度应符合下列规定:
1.应根据在该走道上各教学用房疏散的总人数,按照本规范表8.2.3的规定计算走道的疏散宽度;
2.走道疏散宽度内不得有壁柱、消火栓、教室开启的门窗扇等设施。
2、中小学校的建筑物内,当走道有高差变化应设置台阶时,台阶处应有天然采光或照明,踏步级数不得少于3级,并不得采用扇形踏步。当高差不足3级踏步时,应设置坡道。坡道的坡度不应大于1:8,不宜大于1:12。
6楼 梯
1、中小学校教学用房的楼梯梯段宽度应为人流股数的整数倍。梯段宽度不应小于1.20m,并应按0.60m的整数倍增加梯段宽度。每个梯段可增加不超过0.15m的摆幅宽度。
2、中小学校楼梯每个梯段的踏步级数不应少于3级,且不应多于18级,并应符合下列规定:
1.各类小学楼梯踏步的宽度不得小于0.26m,高度不得大于0.15m;
2.各类中学楼梯踏步的宽度不得小于0.28m,高度不得大于0.16m;
3.楼梯的坡度不得大于30°。
3、疏散楼梯不得采用螺旋楼梯和扇形踏步。
4、楼梯两梯段间楼梯井净宽不得大于0.11m,大于0.11m时,应采取有效的安全防护措施。两梯段扶手间的水平净距宜为0.10m~0.20m。
5、中小学校的楼梯扶手的设置应符合下列规定:
1.楼梯宽度为2股人流时,应至少在一侧设置扶手;
2.楼梯宽度达3股人流时,两侧均应设置扶手;
3.楼梯宽度达4股人流时,应加设中间扶手,中间扶手两侧的净宽均应满足本规范第8.7.2条的规定;
4.中小学校室内楼梯扶手高度不应低于0.90m,室外楼梯扶手高度不应低于1.10m;水平扶手高度不应低于1.10m;
5.中小学校的楼梯栏杆不得采用易于攀登的构造和花饰;杆件或花饰的镂空处净距不得大于0.11m;
6.中小学校的楼梯扶手上应加装防止学生溜滑的设施。
6、除首层及顶层外,教学楼疏散楼梯在中间层的楼层平台与梯段接口处宜设置缓冲空间,缓冲空间的宽度不宜小于梯段宽度。
7、中小学校的楼梯两相邻梯段间不得设置遮挡视线的隔墙。
中小学参考







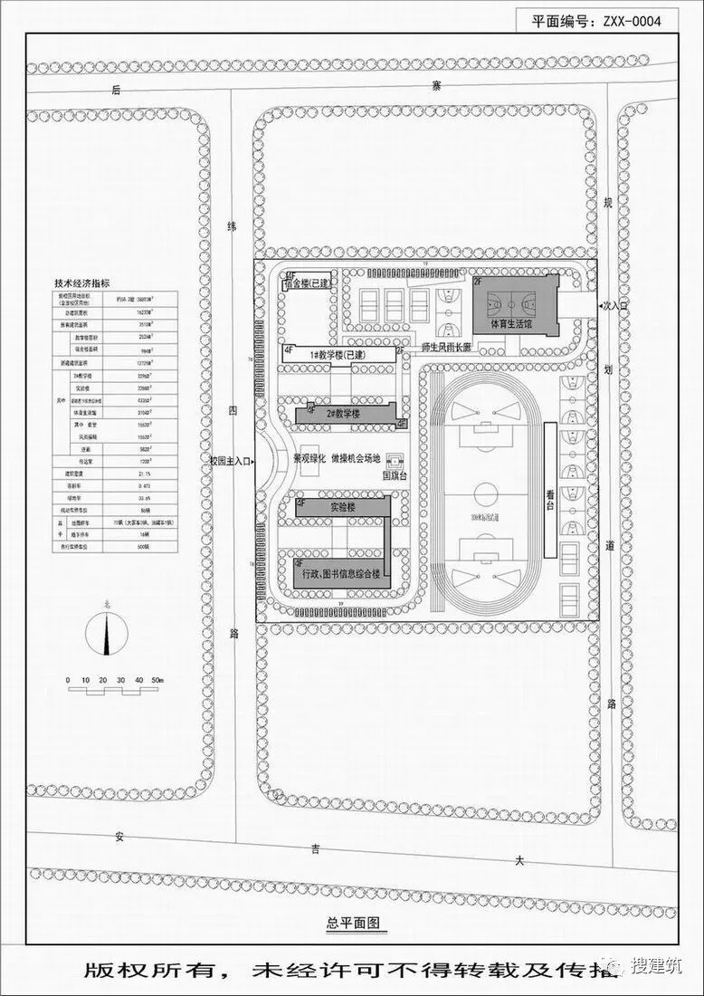
△ZXX-0004鸟瞰图△







△ZXX-0002(TYG)效果图△











文章转载自网络,如有侵权,请联系删除!
0人已收藏
0人已打赏
免费0人已点赞
分享
公共建筑设计
返回版块51.17 万条内容 · 447 人订阅
回帖成功
经验值 +10
全部回复(0 )
只看楼主 我来说两句抢沙发