土木在线论坛 \ 建筑设计 \ 居住建筑设计 \ 常用32种卫生间平面优化方案

常用32种卫生间平面优化方案

发布于:2022-09-23 15:40:23 来自:建筑设计/居住建筑设计 [复制转发]

知识点:常用卫生间平面优化方案


图片

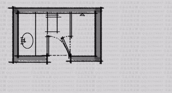
住宅设计中,卫生间和厨房其实是最难,也是最有意思的空间,体现设计师平面方案能力,往往就在厨卫。今天,给大家带来32种常见卫生间平面方案套路。

图片

图片

图片

图片

图片

图片

图片

图片

图片

图片


图片

图片

图片

图片

图片

图片

图片

图片

图片

图片


图片

图片

图片

图片

图片

图片

图片

图片

图片

图片

图片

图片

来源:壹品曹  ID: top_interiordesign

版权归原作者所有



全部回复(0 )

只看楼主 我来说两句抢沙发
这个家伙什么也没有留下。。。

居住建筑设计

返回版块

28.74 万条内容 · 423 人订阅

猜你喜欢

阅读下一篇

地下车库设计要点

现如今,随着城市小轿车的数量剧增,由此而带来的停车压力明显增加,而高层建筑宝贵和高价的基地地面面积远不能满足大规模停车要求,因此在高层建筑功能布局中大多将车库置于地下层。 停车位指标 停车位的确定为停车场建筑面积进行估算提出一定依据,小型车每车位约30~40㎡。以上指标均包括停靠位和车道以及墙、柱等建筑构件面积。 实际工程统计表明,地下停车库平均每车位约37~47㎡,室外停车场平均每车位约27~37㎡。

回帖成功

经验值 +10