一、挡土墙的介绍
1.定义
挡土墙是指支承路基填土或山坡土体、防止填土或土体变形失稳的构造物。
2.各部分的名称
在挡土墙横断面中,与被支承土体直接接触的部位称为墙背;与墙背相对的、临空的部位称为墙面;与地基直接接触的部位称为基底;与基底相对的、墙的顶面称为墙顶;基底的前端称为墙趾;基底的后端称为墙踵。

3.应用范围
路基在遇到下列情况时可考虑修建挡土墙
1.陡坡地段;
2.为避免大量挖方及降低边坡高度的路堑地段;
3.可能产生塌方、滑坡的不良地质地段;
4.高填方地段;
5.水流冲刷严重或长期受水浸泡的沿河路基地段;
6.为节约用地、减少拆迁或者少占用农田的地段;
7.为保护重要建筑物、生态环境或其他特殊需要的地段。
二、挡土墙的分类
1.按挡土墙的位置来分划分,我们一般将挡土墙分为以下几种类型:
路堑挡土墙:设置在路堑边坡底部,主要用于支撑开挖后不能自行稳定的山坡,同时可减少挖方数量,降低挖方边坡的高度。



路肩挡土墙:设置在路肩部位,墙顶是路肩的组成部分,其用途与路堤墙相同。它还可以保护临近路线的既有的重要建筑物。


路堤挡土墙:设置在高填土路提或陡坡路堤的下方,可以防止路堤边坡或路堤沿基底滑动,同时可以收缩路堤坡脚,减少填方数量,减少拆迁和占地面积。



山坡挡土墙:设置在路堑或路堤上方,用于支撑山坡上可能坍滑的覆盖层、破碎岩层或山体滑坡
浸水挡土墙:沿河路堤,在傍水的一侧设置挡土墙,可以防止水流对路基的冲刷和侵蚀,也是减少压缩河床的有效措施


2.按照挡土墙的结构形式划分,我们一般将挡土墙分为以下几种类型(这里只涉及几种常见的挡土墙):
重力式挡土墙:是以挡土墙自身重力来维持挡土墙在土压力作用下的稳定。它是我国目前常用的一种挡土墙。常见的重力式挡土墙高度一般在5~6 m以下,大多采用结构简单的梯形截面形式,对于超高重力式挡土墙(一般指6m以上的挡墙)即有半重力式、衡重力式等多种形式。
重力式挡土墙可根据其墙背的坡度分为以下几种类型(如下图):


重力式挡土墙和悬臂式挡土墙的示意图(如下图):

薄壁式挡土墙:包括悬臂式挡土墙和扶壁式挡土墙两种;一般墙高6m以内采用悬臂式,6m以上采用扶壁式
悬臂式挡土墙:是由立板(墙面板)和底板(墙趾板和墙踵板)两部分组成,一般形式为如下图所示:

扶壁式挡土墙:当挡土墙的墙高h>10m时,为了增加悬臂的抗弯刚度,沿墙长纵向每隔0.8-1.0m,设置一道扶壁


锚定式挡土墙:包括锚杆式和锚定板式两种
锚杆式挡土墙:是由预制的钢筋混凝土立柱、挡土板构成墙面,与水平或倾斜的钢锚杆联合组成。锚杆的一端与立柱连接,另一端被锚固在山坡深处的稳定岩层或土层中


定板式挡土墙:是由钢筋混凝土墙面、钢拉杆、锚走板以及其间的填土共同形成的一种组合挡土结构。

加筋土挡土墙:是在土中加入拉筋,利用拉筋与土之间的摩擦作用,改善土体的变形条件和提高土体的工程特性,从而达到稳定土体的目的。由面板、拉筋组成,依靠填土、拉筋之间的摩擦力使填土与拉筋结合成一个整体。


各挡土墙的适用条件:

3.按照墙体的材料划分,我们一般将挡土墙分为以下几种类型:
石砌挡土墙:




混凝土挡土墙:


钢筋混凝土挡土墙:

钢板挡土墙:


三、挡土墙的构造组成
(一)墙身构造
1 墙背

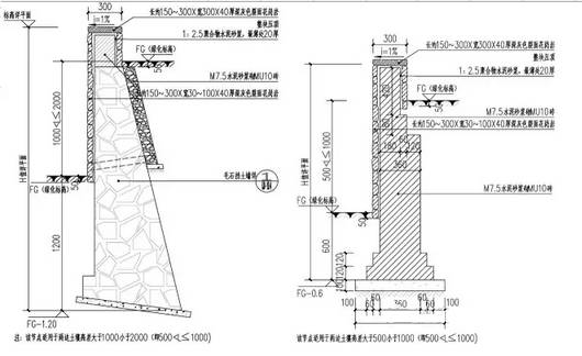
仰斜墙背适用于路堑墙及墙趾处地面平坦的路肩墙或者是路堤墙,仰斜墙背的坡度不宜缓于1:0.3,通常在1:0.15——1:0.25
俯斜墙背适用于路堤墙、路肩墙,常用1:0.15——1:0.25,不超过4m的低墙可以用垂直墙背
凸形折线墙背多用于路堑墙,也可以用于路肩墙,上下墙的墙高比一般采用2:3
衡重式墙适用于山区地形陡峻处的路肩墙和路堤墙,也可用于路堑墙,上墙俯斜墙背的坡度1:0.25——1:0.45,下墙仰斜墙背在1:0.25左右,上下墙的墙高比一般采用2:3
2.墙面
墙面一般均为平面,起坡度应与墙背坡度相协调,墙面坡度直接影响挡土墙的高度,因此,在地面横坡较陡时,墙面的坡度一般为1:0.05——1:0.20,矮墙可采用陡直墙面;地面较平缓时,一般采用1:0.20——1:0.35较为经济
3.墙顶
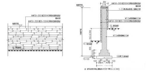
墙顶宽度最小,浆砌挡土墙不小于50cm,干砌不小于60cm。浆砌路肩墙墙顶一般宜采用粗石料或者混凝土做成顶帽,厚度为40cm,如不做顶帽,对路肩墙和路堑墙,墙顶应以大石块砌筑,并用砂浆勾缝,或用5号砂浆抹平顶面,砂浆厚2cm。干砌挡土墙墙顶50cm高度内,应用25号砂浆砌筑,以增加墙身稳定,干砌挡土墙的高度一般不宜大于6m
4.栏杆
为保证交通安全,在地形险峻地段或者过高过长的路肩墙的墙顶应设置护栏,为保持土路肩最小宽度,护栏内侧边缘距路面边缘的距离,二、三级路面不小于0.75m,四级路不小于0.5m。护栏分墙式和柱式两种,所采用的材料,护拦高度、宽度,视实际需要而定。
(二)基础结构
1.基础类型

大多数挡土墙都直接修筑在天然地基上
当地基承重力不足且墙趾处地形比较平坦,而墙身又超过一定高度时,为了减小基底压应力和增加抗倾覆稳定性,常常采用扩大基础
当地基压应力超过地基承载力过多时,需要加宽值较大,为避免加宽部分的台阶过高,可采用钢筋混凝土底板
地基为软弱土层时,可采用砂砾、碎石、矿渣或者灰土等材料予以换填
当挡土墙修筑在陡坡上,而地基又为完整、稳固、对基础不产生侧压力的坚硬岸石时,可设置台阶基础,以减少基坑开挖和节省圬工
如地基有短段缺口(如深沟等)或挖基困难(如需水下施工)可采用拱形基础
2.基础埋置深度
对于土质地基,基础埋置深度应符合下列要求:
(1)无冲刷时,应在天然地面以下至少1m;
(2)有冲刷时,应在冲刷线以下至少1m;
(3)受冻胀影响时,应在冻结线以下不少于0.25m,当冻深超过1m,采用1.25m,但地基应夯填一定厚度的砂石或者碎石垫层,垫层底面亦应位于冻结线以下不少于0.25m
碎石、砾石和砂类地基,不考虑冻胀影响,但地基埋深不宜小于1m
对于基石地基应清除表面风化层,将基底嵌入岩层一定深度,当风化层较厚难以全部清除表面时,可依据地基的风化程度及容许承载力将基底埋入风化层中
当挡土墙位于地质不良地段,地基土内可能出现滑动面时,应进行地基抗滑稳定性验算,将基础底面埋置在滑动面以下,或采用其他措施以防止挡土墙滑动
基础应采用明挖基础,当基底位于大于5%的纵向斜坡上,基底应该设置成台阶形。当基底位于横向斜坡上,前趾埋入地表的深度和距离地表的水平距离要满足下表的规定:
(三)排水设施
挡土墙的排水措施通常由地面排水和墙身排水连部分组成
地面排水主要是防止地表水渗入墙后土体或者地基,地面排水有以下几种方法:
1.设置地面排水沟,截引地表水
2.夯实回填土顶面和地表松土,防止雨水和地面水下渗,必要时可设铺砌层
3.路堑挡土墙趾前的边沟应予以铺砌加固,以防边沟水渗入基础
墙身排水:

浆砌块(片)石墙身应在墙前地面以上设一排泄水管(图a);墙高时可在墙上部加设一排泄水孔(图b),泄水孔尺寸可视泄水量大小分别采用5cm×10cm、10cm×10cm、15cm ×20cm的方孔,或直径5~10cm的圆孔。孔眼间距一般为2-3m;对于浸水挡土墙孔眼间距一般1.0——1.5m,干旱地区可适当加大,孔眼上下错开布置,下排水孔的出口应高出墙前地面或墙前水位0.3m
为防止水分渗入地基,下排泄水孔进入的底部应铺设30cm后的粘土隔水层,泄水孔的进水口部分应设置粗粒料反滤层,以免孔道阻塞,当墙背填土透水性不良或可能发生冻胀事,应在最低一排泄水孔至墙顶以下0.5m的范围内铺设厚度不小于0.3m的砂卵石

(四)沉降缝合伸缩缝
设计时,一般将沉降缝和伸缩缝合并设置,沿路线方向每隔10——15m设置一道,兼起两者的作用,缝宽2-3cm,缝内一般可用胶泥填塞,但在渗水量大、填料容易流失或冻害严重地区,则宜用沥青麻筋或涂以沥青的木板等具有弹性的材料,沿内、外、顶三方填塞,填深不宜小于0.15m,当墙后为岩石路堑或填石路堤时,可设置空缝。
干砌挡土墙缝的两侧应选用平整石料砌筑使成垂直通缝。


四、挡土墙处理高差应用
地形的塑造过程中,势必会遇到高差问题。放坡、台阶、挡土墙都是常用消化场地高差的方式。实际处理过程中,需要综合充分考虑场地的地基条件、景观风格、高差大小以及与周边环境协同性等多种因素,进而选择合适高差处理方式。
挡土墙是一种快速、有效的高差处理方法。合理、美观地设置景观墙,能有效成为景观中的亮点,为项目增色不少
挡土墙,顾名思义,是指支承路基填土或山坡土体、防止填土或土体变形失稳的构造物。当你漫步在公园或者绿道之中,形态优美、简约却又富含趣味性的景观挡土墙,往往能给你带来一份惊喜与安全感。
挡土墙在选择过程中,首先要对其承载力进行分析,根据地貌、水文、高差选择合适的挡墙形式和材质,确保挡土墙在日后使用安全稳定,不发生倾斜,保证景观效果的最佳性。
挡土墙风格尽量朴素,材质的使用尽量简约、单一,以周边环境融合为佳。过分的装饰往往会将高差突兀于景观之中,打破景观空间稳定性,取得适得其反的效果。
挡土墙可直可曲、可滑可糙,低矮的挡土墙可当作种植床,为庭院增加情趣。下面,就通过一些优秀的案例图片,加深一下对景观挡土墙使用的理解。
内容源于网络,如有侵权,请联系删除
相关资料推荐:
知识点:挡土墙设计
0人已收藏
0人已打赏
免费8人已点赞
分享
混凝土结构
返回版块140.17 万条内容 · 2216 人订阅
阅读下一篇
锚杆挡土墙工程施工技术【简介】 锚杆挡土墙是利用锚杆技术形成的一种挡土结构物。锚杆一端与工程结构物连接,另一端通过钻孔、插入锚杆、灌浆、养护等工序锚固在稳定的地层中,以承受土压力对结构物所施加的推力,从而利用锚杆与地层间的锚固力来维持结构物的稳定。 【分类】 锚杆挡土墙按墙面的结构形式可分为柱板式锚杆挡土墙和壁板式锚杆挡土墙。 (1)柱板式锚杆
回帖成功
经验值 +10
全部回复(0 )
只看楼主 我来说两句抢沙发