1
传统湿贴工艺的主要弊端
八十年代初,无论建筑物外墙,还是内墙的石材石材饰板安装,均采用墙面加钢筋网片,用铜丝固定板材,分层灌注水泥沙浆粘贴的旧工艺。该工艺用于外墙面有许多弊病,不仅因水泥沙浆粘贴板材后碳酸氢钙析出(泛白霜)和出现水渍,使墙面石材变色,形成色差,污染墙面;而且还由于温度变化等原因,易造成墙面空鼓、开裂、甚至脱落等质量通病。

如:如太原市天龙大厦的外墙面装饰,选用600X600mm的磨光济南青花岗岩板材,尽管在安装过程中采用了环氧树脂胶勾缝等措施,但在完工1年多后依然出现出现泛白、变色现象,而且部分空鼓、开裂。
为此,大厦只得采取加固措施,在每块花岗岩板材上打φ8的两个孔,孔深为10cm,上斜角度为15°;钉φ6.5cm钢筋销钉,灌环氧树脂胶,并于加固后重新进行了清洗。如此处理后,虽花岗岩饰板得到了加固,但外观效果仍不理想。再如太原市金融大厦裙楼的花岗岩外墙,同样由于采用湿贴工艺,竣工不久即逐步出现泛白、变色、空鼓、开裂等现象。
2
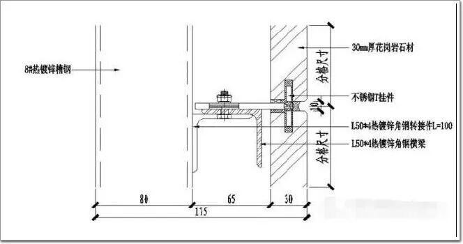
石材饰板干挂法的原理及主要技术
石材干挂法又名空挂法。该方法以金属挂件将饰面石材直接吊挂于墙面或空挂于钢架之上,不需再灌浆粘贴。其原理是在主体结构上设主要受力点,通过金属挂件将石材固定在建筑物上,形成石材装饰幕墙。适用于建筑高度不大于30m,非抗震设计或抗震设计不大于7度的建筑石材幕墙工程.
优点1:是可以有效地避免传统湿贴工艺出现的板材空鼓、开裂、脱落等现象,明显提高了建筑物的安全性和耐久性;
优点2:可以完全避免传统湿贴工艺板面出现的泛白、变色等现象,有利于保持幕墙清洁美观;
优点3:.在一定程度上改善施工人员的劳动条件,避免湿作业,少受气候变化影响,节约冬施、雨施费用,也有助于加快工程进度。
干挂石材幕墙作为一种新型安装工艺,在美观、耐久、不易变色及平整度上都达到了一个新的水平。它克服了石材传统湿贴方法的缺陷,在大型民用建筑外墙面装饰中得到日益广泛的应用。近年来,石材饰板干挂工艺得到发展推广,目前,各地个工程石材干挂的具体做法不尽相同。
接下来为您详细解读:挂件与主体结构的固定技术而言,主要有两种方法:
1、凡属剪力墙结构,可通过膨胀螺栓或预埋铁件直接将挂件固定。
2、凡属框架轻墙结构,因墙体不能直接固定挂件,需要通过安装金属骨架使挂件固定;就金属骨架的用料区分,主要有型钢骨架和铝材骨架两种,前者造价低,但需作镀锌和防腐处理,后者因需使用加厚或飞机用材而造价较高。

▲干挂石材(开槽式)方钢

干挂石材(槽钢)

▲干挂石材(角钢)

▲蝴蝶型挂件、T型挂件、角码(不锈钢)
从板材的固定方法来看,也主要包括两种:
插销式:通过专业的开孔设备,在石材板棱边精确加工成一条圆孔,将销针植入孔中,通过连接件将石材板固定在龙骨上。主要构件有销钉、托板、螺栓、垫板和角钢,各构件的型号视石材自重、地区风载和地震载荷计算确定,其结构是:先将角钢用螺栓固定于骨架或墙体上,并将托板与角钢固定,石材通过销钉与托板连接。该挂件可使板材在小范围内作上下前后调节,以确保板缝的均匀与板面的平整。由于在石材板棱边开孔,容易崩边,石材板损耗大,施工工艺复杂,现已被淘汰,基本不采用。
背栓式:传统作法也叫开槽式,通过专业的开槽设备,在石材板棱边精确加工成一条凹槽,将挂件扣入槽中,通过连接件将石材板固定在龙骨上,目前采用最多的一种方式。
而更先进的工法是通过专业的开孔设备,在石材板背面精确加工里面大、外面小的锥形圆孔,把锚栓植入孔中,拧入螺杆,使锚栓底部完全展开,与锥形孔相吻合,形成一个无应力的凸型结合,通过连接件将石材板固定在龙骨上。也称无应力锚固式干挂,具体做法是一组底部拓孔锚栓通过凸形结合和石材连接并有金属框架支撑,它在安全性、耐久性、方便性方面有教大优势。

▲不锈钢挂件


▲不锈钢挂架横剖

▲T型不锈钢挂件

▲铝合金挂件

▲铝合金挂件

▲铝合金挂件


通槽

▲背栓式
背栓式按石材拼缝的处理方法分:
1、不离缝,板材之间系自然连接,该方法的缺陷是易使板材因温差导致的伸缩受限,在外墙面中不宜广泛采用。
2、离缝,板材缝隙通常为5~8mm,一般以泡沫胶条均匀填充,用耐侯硅酮胶密封。

备注:立柱考虑温度应力的影响,每6米断开,中间设15mm的缝隙。
石材石板干挂法的主要优点有三:
1、可以有效地避免传统湿贴工艺出现的板材空鼓、开裂、脱落等现象,明显提高了建筑物的安全性和耐久性;
2、可以完全避免传统湿贴工艺板面出现的泛白、变色等现象,有利于保持幕墙清洁美观;
3、在一定程度上改善了施工人员的劳动条件,减轻了劳动强度,也有助于加快工程进度。
3
干挂石材幕墙材料的选择
石材选择:常用的外墙干挂石材以花岗岩为主,品种主要有芝麻白,黄金麻,黄锈石,樱花红等。主要的加工表面以荔枝面、火烧面、光面为主。石材色差是石材干挂外观效果的最主要影响因素之一。在施工过程中应尽量挑顺色进行铺装,以免影响整体美观。
为了色彩匀称,一个工程要使用同一矿脉石材,一个部位要选用同一荒料,确保色差符合要求;符合《天然花岗石建筑板材》中的优等品的要求。放射性符合《天然石材产品放射防护分类控制标准》的要求。

胶粘剂的选择:主要选用云石胶或AB干挂胶
云石胶的基料是不饱和树脂,配以固化剂,组成双组分胶粘剂。其特点是凝胶快,固化时间短,粘接强度较高,可低温(-10)固化。在常温下,经过调整配方,可在5分钟左右固化。
AB干挂胶的基料为环氧树脂,配以固化剂,组成AB双组分胶粘剂,目前的干挂胶一般A:B=1:1。通常情况下,AB干挂胶在低温下(10度以下),固化缓慢,若要提高固化速度则成本较高。AB干挂胶完全固化后其耐久性大大优于云石胶,但成本高于云石胶。
结构型材及密封胶的选择
根据抗震要求,与主体焊接的连接件采用Q235(Q345/Q390/Q420)低碳钢,其化学成分、机械性能应符合国家标准规定。其余所有挂件采用不锈钢板加工制成,挂件要有承载抗剪及挠度试验。焊条采用E4303(E50)碳钢焊条,焊条应符合国家标准。石材饰面接缝处的防水处理采用硅酮耐候密封胶嵌缝。嵌缝之前先在缝隙内嵌入柔性条状泡沫聚乙烯材料作为衬底,以控制接缝的密封深度和加强密封胶的粘结力。
4
干挂石材幕墙的主要工序与施工方法
(1)结构偏差实测
偏差实测采取经纬仪投测与垂直、水平挂线相结合的方法;测量结果及时记录并绘制实测成果,提交技术负责人。实测结构的偏差,对结构的修整、设计的排板及板材加工等工作具有非常实际的指导意义。
(2)放线
外墙面水平线以设计轴线为基准。要求各面大墙的结构外墙面在剔除胀模墙体或修补凹进墙面后,使外墙面距设计轴线误差不大于lcm。放线的具体原则是:以设计各内墙轴线定窗口立线,以各层设计标高+50cm线定窗口上下水平线,弹出窗口井字线并弹出型钢龙骨位置线。每个大角下吊垂线,给出大角垂直控制线。
(3)连接件焊接与龙骨安装
连接件采用角钢与结构预埋铁三面围焊。焊接完成,按规定除去药皮 并进行焊缝隐检,合格后刷防锈漆三遍。
(4)挂件安装
待连接件或次龙骨焊接完成后,用不锈钢螺栓对不锈钢挂件进行连接。T型不锈钢挂件位置通过挂件螺栓孔的自由度调整,板面垂直无误后,再拧紧螺栓,螺栓拧紧度以不锈钢弹簧垫完全压平为准。
(5)石材板安装
根据图纸做法干挂板材用挂件连接,自下而上分层托挂。石材上墙前,先清除槽内浮尘、石渣;先试挂,每块板用靠尺找平后再正式挂板,安装T型挂件前应将结构胶灌入槽内。外饰面允许偏差应符合规范要求。挂板时缝宽按设计图要求进行调整,通常为6—10mm。

(6)嵌缝
首先用板刷清理石材板缝,将缝内滞存物、污染物、粉末清除干净,再施刷丙酮水两遍,以增加密封胶的附着力。然后填塞泡沫嵌缝条(8—10mm)。填塞深度距石材板面5-6mm,打胶前在缝两侧的石板贴10-15mm宽胶条,避免污染相邻石材,然后用打胶抢填满封胶,嵌缝胶为硅酮密封胶。胶枪嵌缝要分段一次完成,应保证嵌缝无气泡、不断胶。

▲填塞泡沫棒,打耐候胶

▲打耐候胶
(7)装饰面清洗
在打胶后,及时清擦干净残留在门窗框、玻璃和金属饰面板上的污染物,揭掉胶带,清洁石材表面,打蜡抛光,自检合格后,报监理及建设单位人员验收。
(8)成品保护
拆改架子和上料时,严禁碰撞干挂石材饰面板;外饰面完活后,易破损部分的棱角处要钉护角保护,其他工种操作时不得划伤和碰坏石材。


5
石材干挂幕墙的验收标准

其它注意事项——安全文明施工:
1、坚持不懈地进行安全教育,牢固树立“文明施工,安全第一”的思想,自觉遵守安全生产纪律。
2、严格执行安全生产操作规程有关规定,高空作业必须挂安全带。
3、所有带电机具安装触电保护器,严禁私拉乱扯电线。
4、工地设专职安全员对工地的安全情况进行检查和监督。
6
质量控制要求
(1)严把原材料质量关,不合格的材料和产品坚决不许进场,材料进场必须经过监理及甲方验收合格后方可使用。用于石材幕墙的石材厚度不应小于25mm,石块面积不宜大于1.5m2,挂件一般采用不锈钢挂件。角钢连接件、不锈钢挂件、螺栓、焊条、结构胶均应有材质证明、出厂合格证及检验报告。
(2)严格执行“三检制”即班组自检,工序互检,主管部门专检。
几点思考
1、石材幕墙是建筑物的外围结构,作为与建筑主体连接的连接质量如何,将直接影响到石材幕墙的耐外性和安全性,因此,连接件实行商品化,由国家行业部门审定具备生产条件的专业厂商,按业主提供的施工图生产供货,对提高工程质量、降低投资成本具有积极意义。
2、鉴于石材干挂幕墙被越来越广泛采用,而各地各工程的具体做法又不尽相同,国家应对该工艺设计、施工及质检等方面出台更加全面和细致的技术标准,以便石材幕墙的设计、施工、验收有据可循。
3、虽然石材幕墙干挂法有诸多优点,但与传统湿贴的工艺相比,其造价仍然偏高,使这一方面的进一步推广受到限制。因此,除挂件生产规模化的办法,使之有效降低挂件成本外,还要积极改进施工技术,以减少工时,降低成本,使石材幕墙干挂工艺的应用更加广泛。
知识点:石材幕墙干挂做法(图文详解)
0人已收藏
0人已打赏
免费2人已点赞
分享
居住建筑设计
返回版块28.74 万条内容 · 423 人订阅
回帖成功
经验值 +10
全部回复(1 )
只看楼主 我来说两句 抢板凳看一下。。增加下这方面的知识
回复 举报