











五、剪刀撑和各种斜撑是否按方案设置





八、悬挑式脚手架验收
悬挑式脚手架验收表 |
编号 |
||||||
工程名称 |
总承包单位 |
||||||
搭设(安装)单位 |
搭设(安装) 单位负责人 |
||||||
验收部位 |
验收时间 |
||||||
序 号 |
验收项目 |
验收内容 |
验收结果 |
||||
1 |
施工方案 |
符合 JGJ130 规范要求 |
|||||
应有安全专项施工方案及设计计算书,审批手续齐全,超过 20m 有专家论证。 |
|||||||
2 |
钢管、扣件要求 |
钢管、扣件有复试检测报告。宜采用外径 48.3mm,壁厚 3.6mm 的钢管。 |
|||||
钢管无裂纹、弯曲、压扁、锈蚀。 |
|||||||
3 |
架体与建筑结构拉结 |
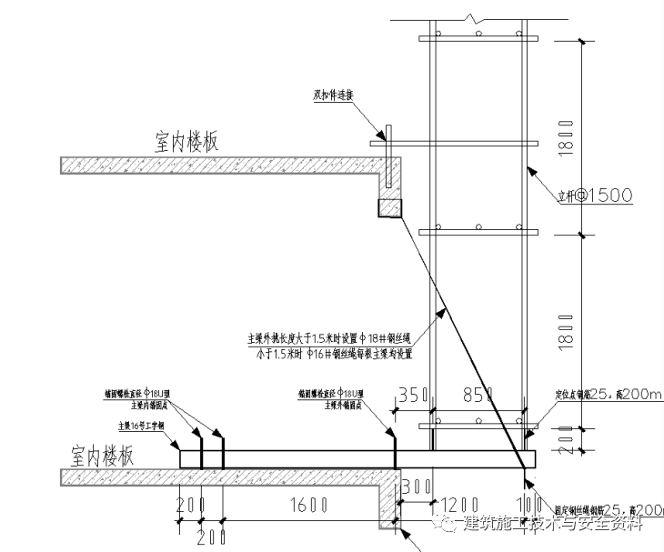
脚手架必须按楼层与结构拉结牢固,拉结点垂直、水平距离 符合要求,拉结必须使用钢性材料,按方案要求设置型钢悬 挑梁,外端的钢丝绳或钢拉杆与上一层建筑结构斜拉结。 |
|||||
4 |
悬挑梁设 置要求 |
悬挑钢梁应采用双轴对称截面的整根型钢,钢梁截面高度≥ 160mm,悬挑长度应按设计确定,固定段长度不应小于悬挑段长度的 1.25 倍。型钢悬挑梁固定端应采用 2 个(对)及以 上 U 型钢筋拉环或锚固螺栓与建筑结构梁板固定。 |
|||||
5 |
剪刀撑设置 |
脚手架必须设置连续剪刀撑,宽度及角度符合要求。搭接方式应符合规范要求。 |
|||||
6 |
立杆、大横杆、小横杆的设置要求 |
立杆间距应符合要求;立杆对接必须符合要求。 |
|||||
大横杆宜设置在立杆内侧,其间距及固定方式应符合要求;对接须符合有关规定。 |
|||||||
小横杆的间距、固定方式、搭接方式等应符合要求。 |
|||||||
7 |
脚手板及密目网的设置 |
操作面脚手板铺设必须符合规范要求。操作面护身栏杆和挡脚板的设置符合要求。操作面下方净空超 3 米时须设一道水 平网。架体须用密目网沿内侧进行封闭,并固定牢固。 |
|||||
8 |
其他要求 |
||||||
9 |
验收结论: |
||||||
验 收 人 签 名 |
总承包单位 |
分包单位 |
其它单位 |
||||
项目技术负责人:项目生产负责人:项目安全主管: |
|||||||
监理单位意见: 监理工程师: 年 月 日
|
|||||||
推荐资料(点击文字跳转)
悬挑脚手架附图48、49、53、57、58座
知识点:悬挑脚手架安全管理的重点部位
0人已收藏
0人已打赏
免费2人已点赞
分享
建筑施工
返回版块66.02 万条内容 · 1639 人订阅
阅读下一篇
机械回填土的工艺标准1 范围 本工艺标准适用于工业及民用建筑物、构筑物大面积平整场地、大型基坑和管沟等回填土。 2 施工准备 2.l 材料及主要机具: 2.1.1 碎石类土、砂土(使用细砂、粉砂时应取得设计单位同意)和爆破石碴,可用作表层以下填料。它最大粒径不得超过每层铺填厚度的2/3或3/4(使用振动碾时),含水率应符合规定。
回帖成功
经验值 +10
全部回复(0 )
只看楼主 我来说两句抢沙发