爬架安装前的策划及技术参数
平面设计主要反映导轨式爬架平面整体布局、预埋点位置以及爬架内立杆离墙距离。
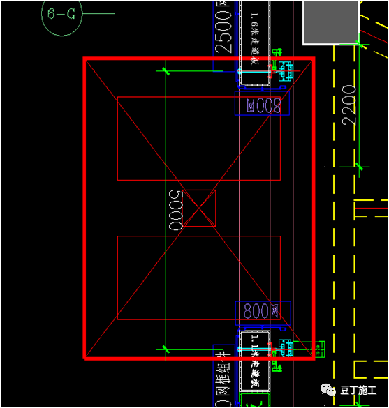
架体的机位平面布置图

架体高度及内立杆离墙距离可随施工需要确定,架体一般中心宽度为0.9米,架体步距1.8米。
本工程1#、2#公寓楼架体均拟定从2层开始组装折叠式升降脚手架,均防护至女儿墙,如图右所示。

采用15m高的折叠式升降脚手架,共布置了6层走道板,走道板步距从下到上分别为3.2m、3.1m、2.1m、2.3m、2.0m,剩余的2.25m作为防护高度 立面图详见右图。





当梁板准备浇筑混凝土前,按照机位平面图、立面图,使用内孔35-40mm壁厚大于2mm的PVC塑料管,管两端用宽胶布封住,以防止混凝土浇灌时进入管内而堵塞预埋孔。
应保证与各层预留孔的垂直度。
预留孔必须垂直于结构外表面。
留孔左右位移误差应小于20mm,当大于20mm时,需要重新校核定位并重新钻孔。

架体与结构的附着
右图粗线部分即存在250mm线条位置,架体的附着使用50mm+200mm的加高件进行附着(详图1、图2)。细线部分即无线条位置架体附着使用50mm加高件进行附着(详图3、图4)。



架体与结构的其他附着方式
住宅楼经常遇到奇偶层复式阳台,此类结构架体附着需要使用多节立柱进行叠加,导座附着于立柱上,立柱通过可调斜拉杆拉结于结构上。
复式阳台水平范围内,需要在每层走道板上600mm、1200mm高度,用钢丝绳或者矩形方管安装扶手。

由于结构特点,部分机位不得不附着于挑板上,需要结合挑板的混凝土强度、配筋进行计算,无法满足要求则需要通过斜拉杆进行卸荷,将荷载传递给内部框架梁或其他构件

由于结构特点,部分机位不得不将特制预埋螺杆预埋于混凝土内一同浇筑(多出现在转角或其他混凝土墙柱厚度较大位置)

对于结构线条尺寸50mm-800mm的位置,需要通过加高件将架体垫出相同尺寸以便导轨正常通过。部分项目在靠近封顶楼层的较大变化外凸线条,也可与总包协商采取预留洞口方式让导轨通过。


凸窗位置上反部分二次浇筑时,可改用专用600mm的加高通用件进行附着。

为了解决立面上某几层线条较大(大于800mm)的情况,看使用加长三角铁件附着于楼板上并斜拉卸荷的方式进行附着。

操作平台搭设
在爬架安装前必须搭设操作平台,操作平台搭设示意图(见图四)。根据建筑物具体情况,先将脚手架搭至标准层底层,安装操作平台位于楼面下800mm左右,平台上铺设脚手板,平台内侧距墙200mm,平台宽度在1500 mm以上。搭设时注意平台必须能承受2KN/m2荷载。





卸料平台
本工程1#、2#公寓楼每栋楼设置一个自爬下撑式卸料平台,位置如右图所示。额定荷载1500kg,为确保施工安全,限定使用荷载不大于800kg。由于架体均从2层开始组装,故卸料平台需要从第3层开始使用。



卸料平台一般位于架体最下步走道板位置,开始使用位置一般较架体使用位置高上一层,例如架体从4层楼面开始组装使用,则卸料平台需要在5层才能开始使用。
料台左右两侧面需要使用800mm网片进行封闭。
卸料平台的提升及附墙与架体相同,可与架体分别独立提升。
待架体防护至封顶,底部卸料平台随着平台上部架体的拆除而提升至顶层。

卸料平台两侧使用800mm网片进行侧面防护。

卸料平台先于地面组装完成后经过验收合格方可吊装,吊装前务必把所有零部件连接好,并保证其成为一个刚性的整体。











推荐资料(点击文字跳转):
知识点:爬架设计、脚手架工程
0人已收藏
0人已打赏
免费1人已点赞
分享
建筑施工
返回版块66.02 万条内容 · 1638 人订阅
阅读下一篇
高强钢筋在工程施工中的应用HRB500钢筋俗称四级钢,其强度是三级钢的1.25倍,我国在开发HRB500级钢筋方面正步入发展阶段。作为一种新型材料,四级钢与三级钢相比存在哪些优、劣势?创新工作室通过多方面的对比,尝试对这一问题提出自己的见解。 三、四级钢筋应用现状
回帖成功
经验值 +10
全部回复(0 )
只看楼主 我来说两句抢沙发