知识点:建筑电气施工图集
首先我们来看一下电气施工图的特点及组成。
电气施工图所涉及的内容往往根据建筑物不同的功能而有所不同,主要有建筑供配电、动力与照明、防雷与接地、建筑弱电等方面,用以表达不同的电气设计内容。

施工图特点:
(1) 建筑电气工程图大多是采用统一的图形符号并加注文字符号绘制而成的。
(2) 电气线路都必须构成闭合回路。
(3) 线路中的各种设备、元件都是通过导线连接成为一个整体的。
(4)在进行建筑电气工程图识读时应阅读相应的土建工程图及其他安装工程图,以了解相互间的配合关系。
(5) 建筑电气工程图对于设备的安装方法、质量要求以及使用维修方面的技术要求等往往不能完全反映出来,所以在阅读图纸时有关安装方法、技术要求等问题,要参照相关图集和规范。
一、电气施工图的组成
(1) 图纸目录与设计说明
包括图纸内容、数量、工程概况、设计依据以及图中未能表达清楚的各有关事项。如供电电源的来源、供电方式、电压等级、线路敷设方式、防雷接地、设备安装高度及安装方式、工程主要技术数据、施工注意事项等。
(2) 主要材料设备表
包括工程中所使用的各种设备和材料的名称、型号、规格、数量等,它是编制购置设备、材料计划的重要依据之一。
(3) 系统图
如变配电工程的供配电系统图、照明工程的照明系统图、电缆电视系统图等。系统图反映了系统的基本组成、主要电气设备、元件之间的连接情况以及它们的规格、型号、参数等。
(4) 平面布置图
平面布置图是电气施工图中的重要图纸之一,如变、配电所电气设备安装平面图、照明平面图、防雷接地平面图等,用来表示电气设备的编号、名称、型号及安装位置、线路的起始点、敷设部位、敷设方式及所用导线型号、规格、根数、管径大小等。通过阅读系统图,了解系统基本组成之后,就可以依据平面图编制工程预算和施工方案,然后组织施工。
(5) 控制原理图
包括系统中各所用电气设备的电气控制原理,用以指导电气设备的安装和控制系统的调试运行工作。
(6) 安装接线图
包括电气设备的布置与接线,应与控制原理图对照阅读,进行系统的配线和调校。
(7) 安装大样图(详图)
安装大样图是详细表示电气设备安装方法的图纸,对安装部件的各部位注有具体图形和详细尺寸,是进行安装施工和编制工程材料计划时的重要参考。

二、电气施工图的阅读方法
(1) 熟悉电气图例符号,弄清图例、符号所代表的内容。常用的电气工程图例及文字符号可参见国家颁布的《电气图形符号标准》。
(2) 针对一套电气施工图,一般应先按以下顺序阅读,然后再对某部分内容进行重点识读。
① 看标题栏及图纸目录 了解工程名称、项目内容、设计日期及图纸内容、数量等。
② 看设计说明 了解工程概况、设计依据等,了解图纸中未能表达清楚的各有关事项。
③ 看设备材料表 了解工程中所使用的设备、材料的型号、规格和数量。
④ 看系统图 了解系统基本组成,主要电气设备、元件之间的连接关系以及它们的规格、型号、参数等,掌握该系统的组成概况。
⑤ 看平面布置图 如照明平面图、防雷接地平面图等。了解电气设备的规格、型号、数量及线路的起始点、敷设部位、敷设方式和导线根数等。平面图的阅读可按照以下顺序进行:电源进线总配电箱干线支线分配电箱电气设备。
⑥ 看控制原理图 了解系统中电气设备的电气自动控制原理,以指导设备安装调试工作。
⑦ 看安装接线图 了解电气设备的布置与接线。
⑧ 看安装大样图 了解电气设备的具体安装方法、安装部件的具体尺寸等。
(3) 抓住电气施工图要点进行识读
在识图时,应抓住要点进行识读,如:
① 在明确负荷等级的基础上,了解供电电源的来源、引入方式及路数;
② 了解电源的进户方式是由室外低压架空引入还是电缆直埋引入;
③ 明确各配电回路的相序、路径、管线敷设部位、敷设方式以及导线的型号和根数;
④ 明确电气设备、器件的平面安装位置。
(4) 结合土建施工图进行阅读
电气施工与土建施工结合得非常紧密,施工中常常涉及各工种之间的配合问题。电气施工平面图只反映了电气设备的平面布置情况,结合土建施工图的阅读还可以了解电气设备的立体布设情况。
(5) 熟悉施工顺序,便于阅读电气施工图。如识读配电系统图、照明与插座平面图时,就应首先了解室内配线的施工顺序。
① 根据电气施工图确定设备安装位置、导线敷设方式、敷设路径及导线穿墙或楼板的位置;
② 结合土建施工进行各种预埋件、线管、接线盒、保护管的预埋;
③ 装设绝缘支持物、线夹等,敷设导线;
④ 安装灯具、开关、插座及电气设备;
⑤ 进行导线绝缘测试、检查及通电试验;
⑥ 工程验收。
(6) 识读时,施工图中各图纸应协调配合阅读
对于具体工程来说,为说明配电关系时需要有配电系统图;为说明电气设备、器件的具体安装位置时需要有平面布置图;为说明设备工作原理时需要有控制原理图;为表示元件连接关系时需要有安装接线图;为说明设备、材料的特性、参数时需要有设备材料表等。这些图纸各自的用途不同,但相互之间是有联系并协调一致的。在识读时应根据需要,将各图纸结合起来识读,以达到对整个工程或分部项目全面了解的目的。
三、照明灯具的标注
灯具的标注是在灯具旁按灯具标注规定标注灯具数量、型号、灯具中的光源数量和容量、悬挂高度和安装方式。灯具光源按发光原理分为热辐射光源(如白炽灯和卤钨灯)和气体放电光源(荧光灯、高压汞灯、金属卤化物灯)。常用光源的类型、型号见表16-1。
照明灯具的标注格式为:
a—b(c×d×L)/e f
灯具安装方式代号见表16-2。
例如:5—YZ402×40/2.5Ch表示5盏YZ40直管型荧光灯,每盏灯具中装设2只功率为40W的灯管,灯具的安装高度为2.5m,灯具采用链吊式安装方式。如果灯具为吸顶安装,那么安装高度可用“—”号表示。在同一房间内的多盏相同型号、相同安装方式和相同安装高度的灯具,可以标注一处。
例如:20—YU601×60/3CP表示20盏YU60型U形荧光灯,每盏灯具中装设1只功率为60W的U形灯管,灯具采用线吊安装,安装高度为3m。
四、配电线路的标注
配电线路的标注用以表示线路的敷设方式及敷设部位,采用英文字母表示。
配电线路的标注格式为:
a—b(c×b)e—f
线路敷设方式及敷设部位见表16-3。
例如:BV(3×50+1×25)SC50—FC表示线路是铜芯塑料绝缘导线,三根50mm2,一根25mm2,穿管径为50mm的钢管沿地面暗敷。
又例如:BLV(3×60+2×35)SC70—WC表示线路为铝芯塑料绝缘导线,三根60mm2,两根35mm2,穿管径为70mm的钢管沿墙暗敷。


五、开关及熔断器的标注
开关及熔断器的表示,也为图形符号加文字标注,其文字标注格式一般为

若需要标注引入线的规格时,则标注为

例如:标注Q3DZ10—100/3—100/60,表示编号为3号的开关设备,其型号为DZ10—100/3,即装置式3极低压空气断路器,其额定电流为100A,脱扣器整定电流为60A。
六、 照明配电系统图


例如:


七、防雷平面图
防雷平面图是指导具体防雷接地施工的图纸。通过阅读,可以了解工程的防雷接地装置所采用设备和材料的型号、规格、安装敷设方法、各装置之间的联接方式等情况,在阅读的同时还应结合相关的数据手册、工艺标准以及施工规范,从而对该建筑物的防雷接地系统有一个全面的了解和掌握。
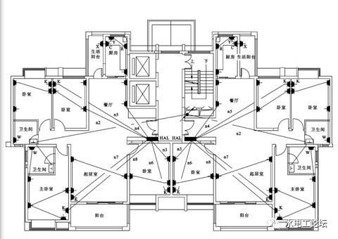
1.

某高层公寓插座平面图
2.

某高层公寓照明平面图
3.某办公楼屋顶防雷平面图

相关推荐链接:
0人已收藏
0人已打赏
免费3人已点赞
分享
电气工程原创版块
返回版块2.2 万条内容 · 598 人订阅
阅读下一篇
建筑电气施工图怎么看?详细流程来了!知识点:建筑电气安装图集 电气施工图所涉及的内容往往根据建筑物不同的功能而有所不同,主要有建筑供配电、动力与照明、防雷与接地、建筑弱电等方面,用以表达不同的电气设计内容。 电气施工图的特点 (1) 建筑电气工程图大多是采用统一的图形符号并加注文字符号绘制而成的。 (2) 电气线路都必须构成闭合回路。 (3) 线路中的各种设备、元件都是通过导线连接成为一个整体的。 (4)在进行建筑电气工程图识读时应阅读相应的土建工程图及其他安装工程图,以了解相互间的配合关系。
回帖成功
经验值 +10
全部回复(2 )
只看楼主 我来说两句抢地板good
回复 举报
看一下。。了解下这方面的内容
回复 举报