第一部分 高档系列(单价:>1500元/延米)
ZHHD-RW-S-01
1、基本信息
居住区围墙基本信息 |
|
围墙风格 |
法式新古典 |
围墙形式 |
实体结合镂空铁艺 |
围墙高度 |
2200mm |
围墙柱距 |
3300mm/4000mm |
围墙柱尺寸 |
600X600mm |
围墙灯形式 |
柱顶/连续 |
造价 |
约2100元/延米 |

2、施工图

↑围墙平面图

↑围墙立面图(外侧)

↑围墙立面图(内侧)

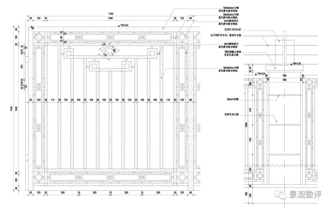
↑围墙铁艺及立柱详图

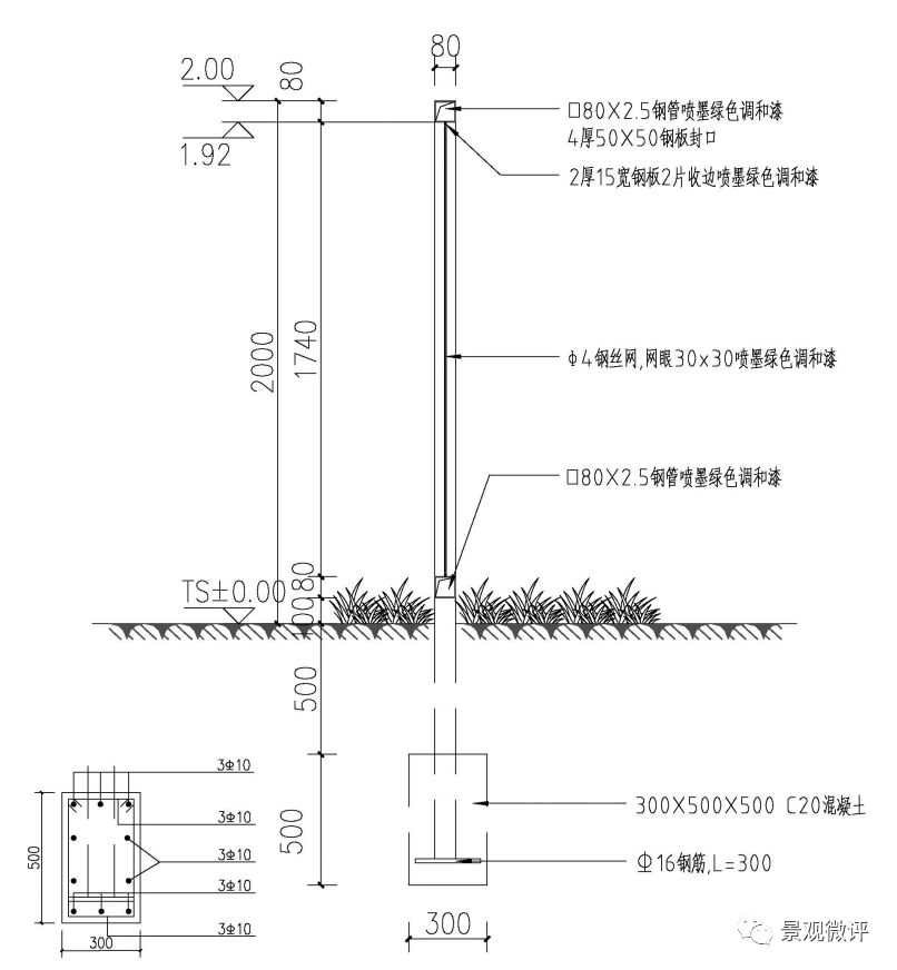
↑剖面图一

↑剖面图二
ZHHD-RW-S-02
1、基本信息
居住区围墙基本信息 |
|
围墙风格 |
法式新古典 |
围墙形式 |
实体结合镂空铁艺 |
围墙高度 |
2680mm |
围墙柱距 |
5000mm |
围墙柱尺寸 |
500X500mm |
围墙灯形式 |
柱顶/连续 |
造价 |
约2300元/延米 |


2、施工图

↑围墙平面图

↑围墙立面图

↑铁艺围栏详图

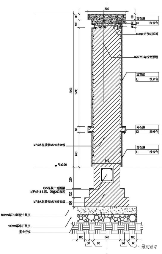
↑柱子断面图

↑围墙断面图
第二部分 中高档系列(单价:900—1500元/延米)
ZHHD-RW-E-01
1、基本信息
居住区围墙基本信息 |
|
围墙风格 |
法式新古典 |
围墙形式 |
实体结合镂空铁艺 |
围墙高度 |
2310mm |
围墙柱距 |
5000mm |
围墙柱尺寸 |
770X770mm |
围墙灯形式 |
柱顶/间隔 |
造价 |
约900元/延米 |

2、施工图

↑围墙平面图

↑围墙立面图

↑栏杆做法详图

↑1-1剖面图

↑2-2 剖面图
ZHHD-RW-E-02
1、基本信息
居住区围墙基本信息 |
|
围墙风格 |
英式新古典 |
围墙形式 |
实体结合镂空铁艺 |
围墙高度 |
2950mm |
围墙柱距 |
6000mm |
围墙柱尺寸 |
600X600mm |
围墙灯形式 |
无 |
造价 |
约1300元/延米 |

2、施工图

↑围墙平面图

↑围墙立面图

↑柱子立面图

↑柱子剖面图

↑围墙栏杆剖面图
ZHHD-RW-E-03
1、基本信息
居住区围墙基本信息 |
|
围墙风格 |
Art Deco |
围墙形式 |
实体结合镂空铁艺 |
围墙高度 |
2200mm |
围墙柱距 |
4200mm/2200mm |
围墙柱尺寸 |
500X500mm |
围墙灯形式 |
柱顶/连续 |
造价 |
约1470元/延米 |


2、施工图

↑围墙平面图

↑围墙立面图

↑剖面图一

↑剖面图二

↑剖面图三
第三部分 中档系列(单价:<900元/延米)
ZHHD-RW-C-01
1、基本信息
居住区围墙基本信息 |
|
围墙风格 |
法式新古典 |
围墙形式 |
实体结合镂空铁艺 |
围墙高度 |
2000mm |
围墙柱距 |
5000mm |
围墙柱尺寸 |
500X500mm |
围墙灯形式 |
柱顶/间隔 |
造价 |
约680元/延米 |

2、施工图

↑围墙平面图

↑围墙立面图

↑铁艺大样图

↑剖面图二

↑剖面图三
ZHHD-RW-C-02
1、基本信息
居住区围墙基本信息 |
|
围墙风格 |
— |
围墙形式 |
钢丝网结合绿篱 |
围墙高度 |
2000mm |
围墙柱距 |
5000mm |
围墙柱尺寸 |
80X80mm |
围墙灯形式 |
无 |
造价 |
约530元/延米 |

2、施工图

↑围墙平面图

↑围墙立面图

↑围墙剖面图
小区围墙设计标准
本标准旨在通过标准化和相关成熟产品的应用,以提升集团项目景观设计的工作推进效率,提高决策效率,有效控制成本,保证小区景观设计品质。 本标准适用于集团项目的小区围墙。
本标准主要以长三角项目作为参考,以《城市居住区规划设计规范》为依据。

↑围墙一:立面图
1、 围墙小区内侧标高A=0.00,小区外侧标高为B=-0.06米,最终B的标高根据现场实测为准;
2、 围墙柱面为多彩真石漆(或者面砖等材质),颜色文理同住宅底层石材;
3、 铁艺栏杆部分,底层防锈处理,面漆黑色,一底两涂;4、 围墙底部预埋排水管面土侧应用土工布包裹,防止土壤流出;
5、 小区内外之间的高差根据现场实际情况而定,小区内围墙的相对高度为2.7米{小区外的标高与小区内的标高相同,侧围墙内外高度一致;小区围墙高度应不低于2.4米(从围墙外地面算)};
6、 根据项目地域规范要求,围墙及柱子可设置照明及安防周界设施(具体形式由项目公司确定后报集团审核)。

↑围墙二:平面示意图

↑围墙三:围墙内侧种植示意图
1、小区内侧围墙底部预留至少600MM宽的种植空间(苗木适宜种植低矮灌木,避免影响周界报警等安防设备)。

↑围墙四:围墙柱子剖面图

↑围墙五:围墙栏杆剖面图
备注:围墙基础参见标准图集12J003。

↑围墙六:LOGO详图

↑围墙七:围墙参考图

来源:景观微评
知识点:小区围墙标准
0人已收藏
0人已打赏
免费2人已点赞
分享
居住建筑设计
返回版块28.74 万条内容 · 423 人订阅
回帖成功
经验值 +10
全部回复(0 )
只看楼主 我来说两句抢沙发