知识点:建筑电气照明
电气照明设计一般的步骤:
(1)从甲方那获取设计要求(照度要求,节能要求)
(2)根据甲方建筑布局等制作设计方案(比如,办公室、会议室、接待室、食堂等重要地方)一般各制作3个方案,比较说明后由甲方定夺。
(3)计算(满足甲方要求,对各房间进行照度计算以及能耗计算,以及配线和配电箱断路器计算),计算书需保留。
(4)制图。安计算书中的灯具布置条件制图。同时还有照明控制系统图和说明。有条件的话制作参考灯具样图。
(5)交图,给甲方说明。同时将计算书灯交给甲方及深化单位。如果有施工图的情况下,就要做得更细了。
一、电气照明设计的具体内容
① 确定照明种类和照明方式。
② 选择照明光源及灯具,确定灯具布置方案,进行必要的照度计算、供电系统的负荷计算及照明电气设备与线路的选择计算。
③ 绘制出电气照明平面图和相应的供电系统图。
照度的计算是在灯具布置的基础上进行的,而照度计算的初步结果又可用于对灯具布置进行调整,以便获得合理的布置,最后确定电光源的功率。
1.灯具的布置
灯具的布置主要就是确定灯具在室内的空间位置。灯具的布置对照明质量有重要影响。光的投射方向、工作面的照度、照明均匀性、直射眩光、视野内其他表面的亮度分布以及工作面上的阴影等,都与照明灯具的布置有直接关系。灯具的布置合理与否影响到照明装置的安装功率和照明设施的耗费,也影响到照明装置的维修和安全。
2.照明器的控制
照明器的控制方式和开关位置的选择,应在保证安全的前提下,考虑节能和便于操作及维护管理。一般按下述原则确定:
① 一般办公、生活、教学和实验等用房宜分别控制。
② 无窗厂房、高大厂房、大型车间及公共建筑厅堂的一般照明,宜在配电箱上设分路开关控制;一般工业厂房,宜按生产工段、班组、流水线等分区、分组在配电箱设分路开关控制。
③ 人工照明同侧窗的天然采光必须综合考虑。例如有些大型计算机房等,虽有一定的侧窗采光,但房间深处达不到工作所需的照度值,为此,临窗和非临窗的照明器要分别控制。
④ 各类生产厂房的辅助小房间、厂房的出入口、生活间等宜分散控制。
⑤ 住宅楼的楼梯间和公共走廊,为解决“长明灯”的问题,宜采用延时自熄开关或双控开关;住宅客厅或居室采用简易花灯的,宜装设两个及以上开关。
⑥ 宾馆的房间、休息厅或客厅等,宜应采用调光开关。
⑦ 在爆炸危险场所,照明器的开关和保护装置应同时在相线和中性线上安装,并同时切断,其接地线应另行敷设。
3.漏电保护装置的选用
漏电保护的作用:一是电气设备(或线路)发生漏电或接地故障时,能在人尚未触及之前就把电源切断;二是当人体触及带电体时,能在0.1s内切断电源,从而减轻电流对人体的伤害程度。此外,还可以防止漏电引起的火灾事故。
(1)漏电保护装置
在低压配电系统中,无论是保护接地还是保护接零,只要相线与电气设备金属外壳接触,就会形成故障回路并产生故障电流,在外壳与大地间产生电位差,使触及带电外壳的人有生命危险。若线路的绝缘遭到破坏则会导致漏电,漏电电流的热效应又会加速绝缘的进一步老化,如此恶性循环的必然后果是酿成电气火灾。因此,为保护人民生命、财产的安全,必须推广运用比保护接地、保护接零更加完善的附加性安全措施,即漏电保护装置。
漏电保护装置是一种在规定条件下,当漏电电流达到或超过给定值时,便能够自动断开电路的机械开关电器或组合电器。常见的漏电保护装置见下表。

选用漏电保护装置应首先根据保护对象的不同要求进行选型,既要保证在技术上有效,还应考虑经济上的合理性。
漏电保护装置的额定电压、额定电流、分断能力等性能指标应与线路条件相适应。漏电保护装置的类型应与供电线路、供电方式、系统接地类型和用电设备特征相适应。
(2)需要安装漏电保护装置的场所
① 带金属外壳的Ⅰ类设备和手持式电动工具;
② 安装在潮湿或强腐蚀等恶劣场所的电气设备;
③ 建筑施工工地的电气施工机械设备;
④ 临时性电气设备;
⑤ 宾馆客房内的插座;
⑥ 触电危险性较大的民用建筑物内的插座;
⑦ 游泳池、喷水池或浴室类场所的水中照明设备;
⑧ 安装在水中的供电线路和电气设备;
⑨ 医院中直接接触人体的电气医疗设备(胸腔手术室除外);
⑩对于公共场所的通道照明及应急照明电源,消防用电梯及确保公共场所安全的电气设备的电源;
⑾消防设备(如火灾报警装置、消防水泵、消防通道照明等)的电源,防盗报警装置用电源,以及其他不允许突然停电的场所或电气装置的电源,若在发生漏电时上述电源被立即切断,将会造成严重事故或重大经济损失。因此,在上述情况下,应装设不切断电源的漏电报警装置。
(3)漏电保护装置的安装要求
① 漏电保护装置的安装应符合生产厂家产品说明书的要求,应考虑供电线路、供电方式、系统接地类型和用电设备特征等因素。
② 安装漏电保护装置之前,应检查电气线路和电气设备的泄漏电流值和绝缘电阻值。当电气线路或设备的泄漏电流大于允许值时,必须更换绝缘良好的电气线路或设备。
③ 漏电保护装置标有电源侧和负载侧,安装时必须加以区别,按照规定接线,不得接反。如果接反,会导致电子式漏电保护装置的脱扣线圈无法随电源切断而断电,以致长时间通电而烧毁。
④ 安装漏电保护装置时必须严格区分中性线和保护线。使用三极四线式和四极四线式漏电保护装置时,中性线应接入漏电保护装置。经过漏电保护装置的中性线不得作为保护线、不得重复接地或连接设备外露可导电部分。
⑤ 保护线不得接入漏电保护装置。
⑥ 漏电保护装置安装完毕后应操作试验按钮试验 3 次,带负载分合3次,确认动作正常后,才能投入使用。
4.漏电保护器的保护原理
漏电保护器,用以对低压电网直接触电和间接触电进行有效保护,也可以作为三相电动机的缺相保护。由于其以漏电电流或由此产生的中性点对地电压变化为动作信号,所以不必以用电电流值来整定动作值,其灵敏度高,动作后能有效地切断电源,保障人身安全。根据保护器的工作原理,可分为电压型、电流型和脉冲型3种,见表1.8。


在电气线路图中,各元器件之间都采用导线连接,起到传输电能、传递信息的作用。读图者应首先了解它的表示方法。
1.导线的一般表示法
单根导线可用一般的图线表示。多根导线,可分别画出,也可只画一根图线,但必须加以标志。若导线少于4根,可用短划线数量代表根数;若导线多于4根,可在短划线旁加数字表示,如图1(a)所示。

图1 导线表示方法
要表示电路相序的变换、极性的反向、导线的交换等,可采用交换号表示,如图1(b)所示。
要表示导线的型号、截面、安装方法等,可采用短划指引线指引,加标导线属性和敷设方法,如图1(c)所示。该图表示导线的型号为BLV(铝芯塑料绝缘线),其中3根截面积为25mm2,1根截面积为16mm2,敷设方法为穿入塑料管(VG),塑料管管径为40mm,沿地板暗敷。
导线特征的表示方法是:横线上面标出电流种类、配电系统、频率和电压等;横线下面标出电路的导线数乘以每根导线截面积(mm2),当导线的截面积不同时,可用“ ”将其分开,如图1(d)所示。
2.导线连接点的表示
导线的连接点有“T”形连接点和多线的“ ”形连接点。对于“T”形连接点,可加实心圆点,也可不加,如图2(a)所示。对于“ ”形连接点,必须加实心圆点,如图 2(b)所示。而对于交叉不连接的,不能加实心圆点,如图2(c)所示。

图2 导线连接点示例
3.连接线分组和标记
(1)分组
为了方便看图,对多根平行连接线,应按功能分组。若不能按功能分组,可任意分组,但每组不多于3根,各组间距应大于线间距。
(2)标记
为了便于看出连接线的功能或去向,可在连接线上方或连接线中断处作信号名标记或其他标记,如图3所示。

图3 连接线标志示例
三、电气图识读要求和步骤
1.读图的基本要求
(1)电气元器件是电路不可缺少的组成部分
在机床等机械设备的控制电路中,常用各种接触器、继电器和控制开关等;在供电电路中,常用断路器、隔离开关、负荷开关、熔断器、互感器等;在电力电子电路中,常用各种晶体管、晶闸管和集成电路等。读者应了解这些电气元器件的性能、结构、原理、相互的控制关系及在整个电路中的地位和作用等。
(2)熟记并会用各个图形符号和文字符号
电气简图用图形符号和文字符号及项目代号、接线端子标记等是电气技术文件的“词汇”,相当于写文章用的单词、词汇。“词汇”掌握得越多、记得越牢,读图就越快捷、越方便。
图形符号和文字符号很多,应该从个人专业出发先熟读背会各专业共用的和专业专用的图形符号,然后逐步扩大,掌握更多的符号,就能读更多的不同专业的电气技术文件。
(3)掌握各类电气图的绘制特点
各类电气图都有各自的绘制方法和绘制特点,掌握了这些特点,并利用它就能提高读图效率,进而自己也能设计和制图。
大型的电气图纸往往不只一张,也不只是一种图,因而读图时应将各种有关的图纸联系起来,对照阅读。比如通过系统图、电路图找联系;通过接线图、布置图找位置,交错阅读收到事半功倍的效果。
(4)把电气图与土建图、管路图等对应起来读图
电气施工往往与主体工程(土建工程)及其他工程、工艺管道、蒸汽管道、给排水管道、采暖通风管道、通信线路、机械设备等项安装工程配合进行。电气设备的布置与土建平面布置、立面布置有关;线路走向与建筑结构的梁、柱、门窗、楼板的位置有关;还与管道的规格、用途有关;安装方法又与墙体结构、楼板材料有关;特别是一些暗敷线路、电气设备基础及各种电气预埋件更与土建工程密切相关。所以阅读某些电气图要与有关的土建图、管路图及安装图对应起来看。
(5)了解涉及电气图的有关标准和规程
读图的主要目的是用来指导施工、安装,指导运行、维修和管理。有关技术要求不可能一一在图纸上反映出来、标注清楚,因为这些技术要求在有关的国家标准或技术规程、技术规范中已作了明确的规定。在读电气图时,还必须了解这些相关标准、规程和规范,才能真正读懂电气图。
2.读图的一般步骤
(1)详看图纸说明
拿到图纸后,首先要仔细阅读图纸的主标题栏和有关说明,如图纸目录、技术说明、元件明细表、施工说明书等,结合自己已有的电工知识,对该电气图的类型、性质、作用有一个明确的认识,从整体上理解图纸的概况和所要表述的重点。
(2)阅读系统图和框图
系统图和框图是用符号或带注释的框概略表示系统或分系统的基本组成、相互关系及其主要特征的一种简图。由于系统图和框图只是概略表示系统的组成、关系及特征,因此紧接着就要详细阅读电路图,才能搞清它们的工作原理。
系统图或框图常用来表示整个工程或其中某一项目的供电方式和电能输送关系,也可表示某一装置或设备各主要组成部分的关系。例如,图4所示为某变电所供电系统图,表示该变电所把10kV电压通过变压器变换成380V电压,经断路器QF和母线后通过FU1、FU2、FU3分别供给3条支路。

图4 某变电所供电系统图
系统图和框图多采用单线图,只有某些 380/220V 低压配电系统概略图才部分地采用多线图表示。
(3)阅读电路图是读图的重点和难点
电路图是电气图的核心,是内容最丰富、也最难读懂的电气图纸。阅读电气图时,首先要看清图中有哪些图形符号和文字符号,了解电路图各组成部分的作用,分清主电路和辅助电路、交流回路和直流回路;其次,按照先看主电路、再看辅助电路的顺序进行读图。
提示看主电路时,通常要从下往上看,即先从用电设备开始,经控制元件往电源端看;看辅助电路时,则自上而下、从左至右看,即先看主电源,再依次看各条回路,分析各条回路元件的工作情况及其对主电路的控制关系,注意电气与机械机构的连接关系。
通过看主电路,要搞清电气负载是怎样和电源连接的,电源都经过哪些元件到达负载。通过看辅助电路,则应搞清辅助电路的回路构成,各元件之间的相互联系、控制关系及其动作情况等。同时,还要了解辅助电路和主电路之间的相互关系,进而搞清楚整个电路的工作原理和来龙去脉。
(4)电气图与接线图对照起来阅读
接线图和电气图互相对照读图,可以帮助搞清楚接线图。读接线图时,要根据端子标志、回路标号从电源端依次查下去,搞清楚线路走向和电路的连接方法,搞清楚每个回路是怎样通过各个元件构成的。
配电盘(屏)内外线路相互连接必须通过接线端子板。一般来说,配电盘内有线号,而端子板上就有线号的接点,外部电路的线号只要在端子板的同号接点上接出即可。因此,看接线图时,要把配电盘(屏)内外的线路走向搞清楚,就必须注意搞清楚端子板的接线情况。
例如,图5所示电气安装接线图中,标明了电源进线、按钮、位置开关、电动机、照明灯与机床电气安装板之间的连接关系;还标明了所用金属软管的直径、长度和导线根数、横截面积及颜色;同时也标明了它们与端子排之间对应的接线编号。

图5 电气安装接线图
四、住宅照明电气图的识读
图形符号及其标注符号应采用国家标准符号或国际电工委员会(IEC)的通用标准,设备文字符号标注应采用英文字头表示。电气照明施工图中常用的图形符号、常用建筑图形符号见下表。




1.常用照明电气图的识读
住宅照明线路图多以施工(安装)图的形式出现,有平面图和系统图两种。住宅照明的电源是取自供电系统的低压配电电路,即进户线穿过进户管后,先接入配电线(屏),再接到用户的分配电箱(屏),经电能表、刀开关或空气开关,最后接到灯具和其他用电设备上。
为了使每盏灯的工作不影响其他灯具(用电器),各条控制电路均应并联连接在相线和中性线之间,并在各自控制电路中串接单独控制用的开关。为了保证用电安全,每条线路最多能安装 25 盏灯(每只插座也作为l盏灯具计算),并且电流不能超过15A,否则要相应减少灯具的盏数。
住宅照明电气线路有明敷设和暗敷设两种。明敷设线路一般沿墙走,横平竖直比较规矩,其长度一般可参照建筑物平面图的尺寸来计算。暗敷设线路总以最短的距离到达灯具,其长度往往依据比例尺在建筑物平面图上量取计算。
图6所示为某住宅照明线路施工平面图。从图中可以看出,进线位置在纵向墙南往北第二道轴线处,在楼梯间有一个配电箱,室内有日光灯(荧光灯)、天棚座灯、墙壁座灯,楼梯间有吸顶灯、插座、开关及连接这些灯具的线路。

图6 某住宅照明线路施工平面图(1∶100)(单位:mm)
读图时应注意这些线路平面实际是在房间内的顶上部,沿墙的安装要求离地最少 2.5m,图中间位置的线路实际均装设在顶棚上,线路通过门时实际均在门框上部分,所以读图时应有这种想象。
另外,图中的文字符号,L,其含义是:分子表示灯管功率为 40W,分母表示灯具距地面高 2.5m,L 表示采用吊链式吊装。总线 BV-3×10 1×6 DG32,其含义是:3 根截面积为10mm2加1根截面积为6mm2的BV型铜芯电线,从墙中安装的、直径为32mm的管道通过。图中1:100是指图纸与实际比例为1:100。
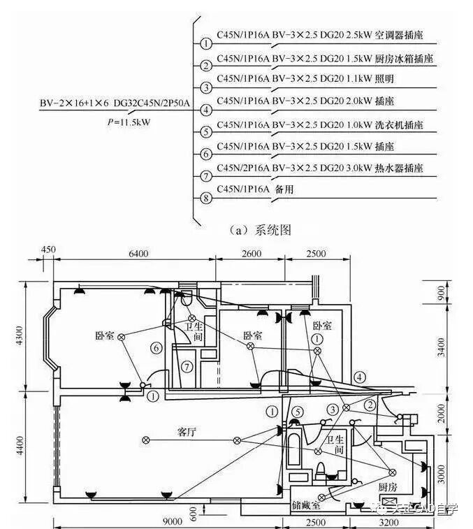
图7所示为三室一厅住宅单元的系统图和电气图。由图7所示系统图可识读出:单元总线为2根16mm2加1根6mm2的BV型铜芯电线,设计使用功率为11.5kW,经空气开关(型号C45N/2P50A)控制,安装管道直径为32mm。
图7(a)中:电气分8路控制(其中1路在配电箱内备用),各由空气开关(型号为C45N/1P16A)控制1路;每条支路有横截面积为2.5mm2的BV铜芯线3根,穿线管道直径为20mm;各支路设计使用功率分别为 2.5kW、1.5kW、1.1kW、2.0kW、1.0kW、1.5kW、3.0kW。在图中,标出了空调器插座、厨房冰箱插座、洗衣机插座及开关等电器元件距地面的安装技术数据。
图7(b)中:有客厅1间、卧室3间、卫生间2间和厨房、储藏室各1间,共计8间;在门厅过道有配电箱1个,分8路(其中1路在配电箱内备用)引出;室内有天棚灯座(10处)、插座(20处)、开关及连接这些灯具(电器)的线路。所有的开关和线路为暗敷设,并在线路上标出①~⑦字样,与图7(a)系统图一一对应。
以上电气图是常用的主要电气图,对于较复杂的成套电气设备、智能化楼宇或装置,为了便于施工,应有局部的放大图、印制电路板图等。但有时为了安装技术的保密,只给出安装或系统的功能图、流程图、逻辑图等。
电气图作为一种工程语言,要求在表达清楚的前提下,越简单越好,便于工程人员识读。

相关推荐链接:
0人已收藏
0人已打赏
免费1人已点赞
分享
电气工程原创版块
返回版块2.2 万条内容 · 598 人订阅
阅读下一篇
建筑电气施工图识图详解知识点:建筑电气施工图识图 电气施工图所涉及的内容往往根据建筑物不同的功能而有所不同,主要有建筑供配电、动力与照明、防雷与接地、建筑弱电等方面,用以表达不同的电气设计内容。 现在咱们开始总结:
回帖成功
经验值 +10
全部回复(1 )
只看楼主 我来说两句 抢板凳要是能上传分享一些CAD版的安装节点大样图就更好啦
回复 举报