知识点:建筑电气图
如何看懂建筑电气工程图?首先你需要知道建筑图纸中常用的文字符号及图形符号,也就是工程语言。
掌握了这个语言,你就可以初步了解图纸内容啦,比如画图纸人的意图,以及图纸的工程项目等等。
建筑电气工程施工图,是用规定的图形符号和文字符号表示系统的组成及连接方式、装置和线路的具体的安装位置和走向的图纸。
(1)建筑电气图大多是采用统一的图形符号并加注文字符号绘制的。
(2)建筑电气工程所包括的设备、器具、元器件之间是通过导线连接起来,构成一个整体,导线可长可短能比较方便的表达较远的空间距离。
(3)电气设备和线路在平面图中并不是按比例画出它们的形状及外形尺寸,通常用图形符号来表示,线路中的长度是用规定的线路的图形符号按比例绘制。
用规定的符号表示系统的组成和连接关系,它用单线将整个工程的的供电线路示意连接起来,主要表示整个工程或某一项目的供电方案和方式,也可以表示某一装置各部分的关系。系统图包括供配电系统图(强电系统图)、弱电系统图。
供配电系统图(强电系统图)是表示供电方式、供电回路、电压等级及进户方式;标注回路个数、设备容量及启动方法、保护方式、计量方式、线路敷设方式。强电系统图有高压系统图、低压系统图、电力系统图、照明系统图等。
弱电系统图是表示元器件的连接关系。包括通信电话系统图、广播线路系统图、共用天线系统图、火灾报警系统图、安全防范系统图、微机系统图。
是用设备、器具的图形符号和敷设的导线(电缆)或穿线管路的线条画在建筑物或安装场所,用以表示设备、器具、管线实际安装位置的水平投影图。是表示装置、器具、线路具体平面位置的图纸。
强电平面包括:电力平面图、照明平面图、防雷接地平面图、厂区电缆平面图等;弱电部分包括:消防电气平面布置图、综合布线平面图等。
表示系统的接线关系的图纸,在施工过程中指导调试工作。
电气工程施工图纸的组成有:首页、电气系统图、平面布置图、安装接线图、大样图和标准图。
1、首页:主要包括目录、设计说明、图例、设备器材图表。
(1)设计说明包括的内容:设计依据、工程概况、负荷等级、保安方式、接地要求、负荷分配、线路敷设方式、设备安装高度、施工图未能表明的特殊要求、施工注意事项、测试参数及业主的要求和施工原则。(关注微信公众号:建筑水电知识)
(2) 图例:即图形符号,通常只列出本套图纸中的涉及的图形符号,在图例中可以标注装置与器具的安装方式和安装高度。
(3)设备器材表:表明本套图纸中的电气设备、器具及材料明细。
图纸是工程“语言”,这种“语言”是采用规定符号的形式表示出来,符号分为文字符号及图形符号。熟悉和掌握“语言”是十分关键的。对了解设计者的意图、掌握安装工程项目、安装技术、施工准备、材料消耗、安装机器具安排、工程质量、编制施工组织设计、工程施工图预算(或投标报价)意义十分重大。
(二) 电气工程图常用的图形符号(见模拟项目电施D-02 图例符号)
就建筑电气施工图而言,一般遵循“六先六后”的原则。即:先强电后弱电、先系统后平面、先动力后照明、先下层后上层、先室内后室外、先简单后复杂。
(1)看标题栏:了解工程项目名称内容、设计单位、设计日期、绘图比例。
(2)看目录:了解单位工程图纸的数量及各种图纸的编号。
(3)看设计说明:了解工程概况、供电方式、以及安装技术要求。特别注意的是有些分项局部问题是在各分项工程图纸上说明的,看分项工程图纸时也要先看设计说明(关注微信公众号:建筑水电知识)。
(4)看图例:充分了解各图例符号所表示的设备器具名称及标注说明。
(5)看系统图: 各分项工程都有系统图,如变配电工程的供电系统图,电气工程的电力系统图,电气照明工程的照明系统图,了解主要设备、元件连接关系及它们的规格、型号、参数等。

(6)看平面图:了解建筑物的平面布置、轴线、尺寸、比例、各种变配电设备、用电设备的编号、名称和它们在平面上的位置、各种变配电设备起点、终点、敷设方式及在建筑物中的走向。

看电路图、接线图:了解系统中用电设备控制原理,用来指导设备安装及调试工作,在进行控制系统调试及校线工作中,应依据功能关系上至下或从左至右逐个回路地阅读, 电路图与接线图端子图配合阅读。
(8)看标准图:标准图详细表达设备、装置、器材的安装方式方法。
(9)看设备材料表:设备材料表提供了该工程所使用的设备、材料的型号、规格、数量,是编制施工方案、编制预算、材料采购的重要依据。
(1)注意阅读设计说明,尤其是施工注意事项及各分部分项工程的做法,特别是一些暗设线路、电气设备的基础及各种电气预埋件更与土建工程密切相关,读图时要结合其他专业图纸阅读;
(2)注意系统图与系统图对照看,例如:供配电系统图与电力系统图、照明系统图对照看,核对其对应关系;系统图与平面图对照看,电力系统图与电力平面图对照看,照明系统图与照明平面图对照看,核对有无不对应的错误。看系统的组成与平面对应的位置,看系统图与平面图线路的敷设方式、线路的型号、规格是否保持一致;
(4)注意线路的标注,注意电缆的型号规格、注意导线的根数及线路的敷设方式;












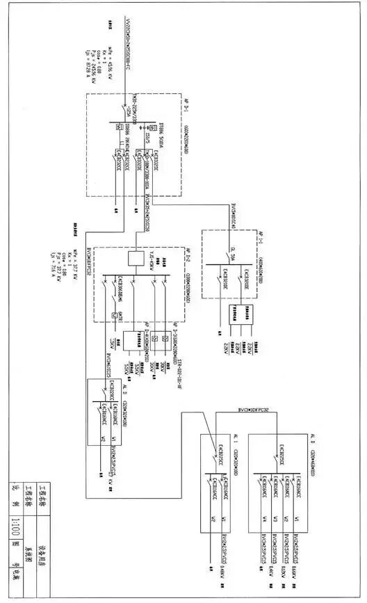
3、系统图(系统图一 :电施D-03)(系统图一 电施D-04)(系统图一 电施D-05)(系统图一 电施D-06)
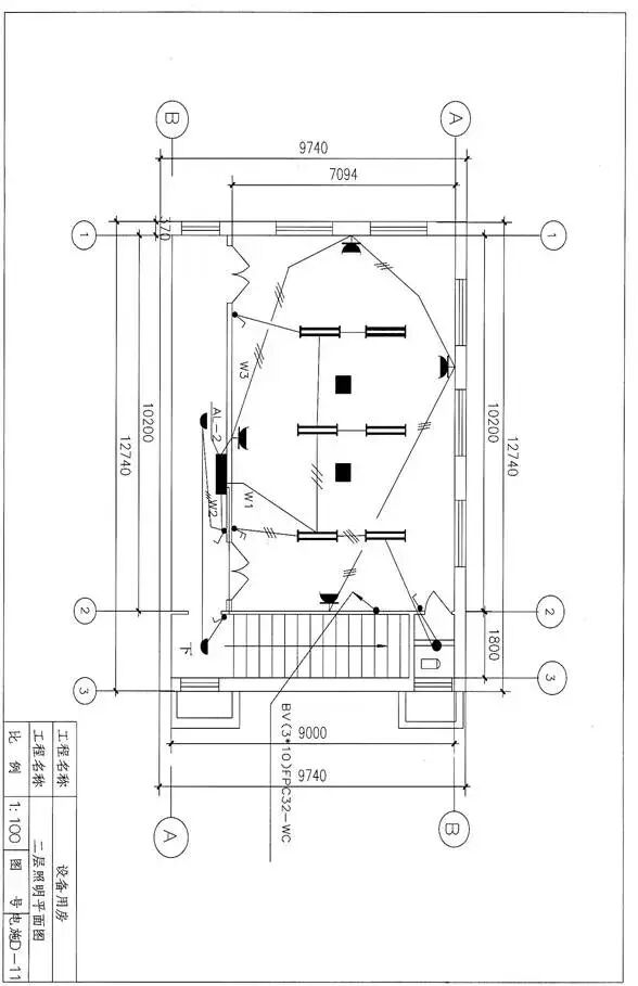
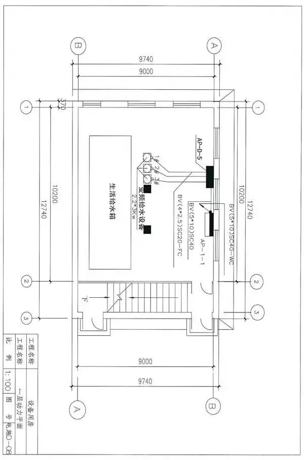
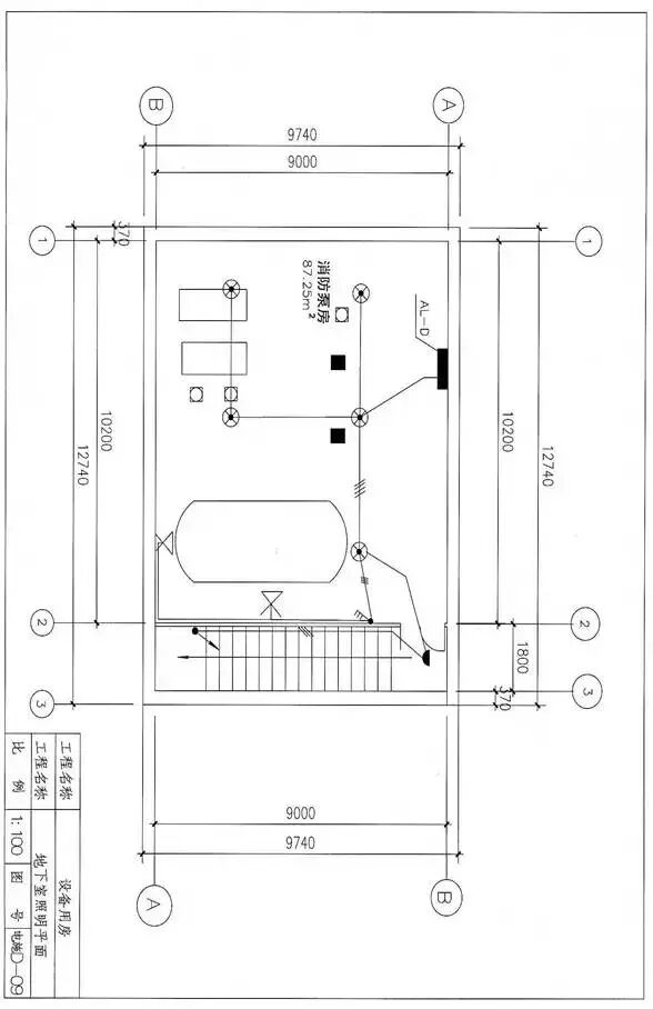
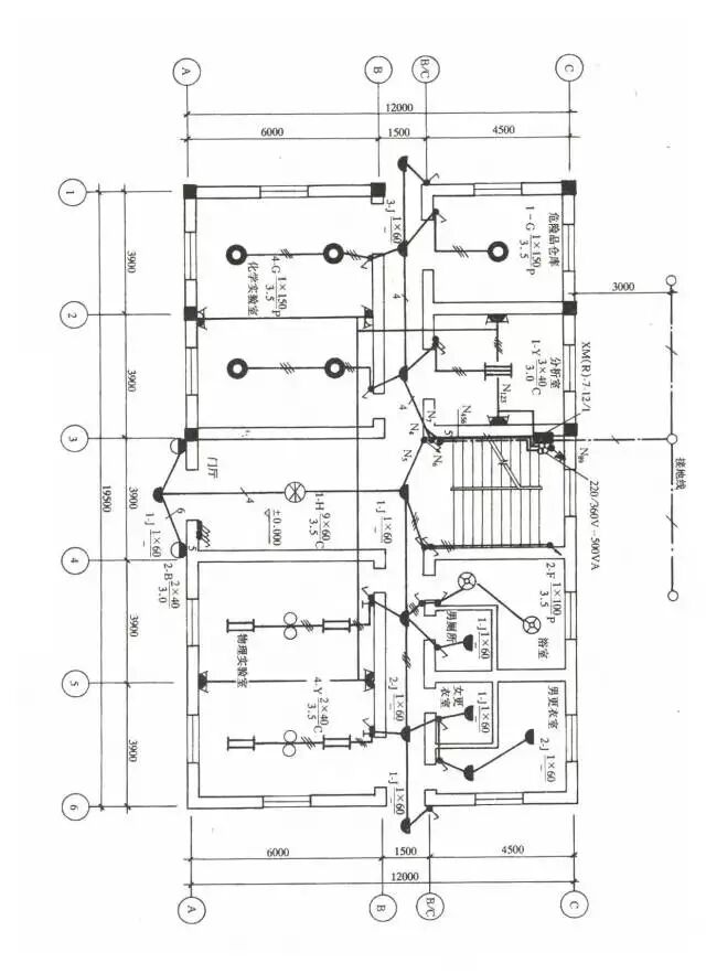
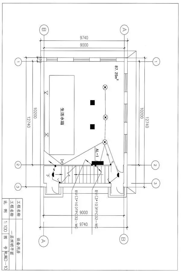
4、电气平面图有:地下室动力平面图(电施D-07) 、一层动力平面图(电施D-08)、地下室照明平面图(电施D-09)、一层照明平面图(电施D-10)、二层照明平面图(电施D-11)。












由总电源箱APD-1、应急电源箱APD-2、动力配电箱AP1-1、照明配电箱ALD、照明配电箱AL1、照明配电箱AL2组成。
总进线(进户电源线)为铠装聚氯乙烯绝聚氯乙烯护套电力电缆,电缆的规格是VV22-3×50+2×25,敷设方式为户外直埋方式。
W1引至AP1-1,采用镀锌电气导管DN40敷设,管内穿5根BV-10mm2线;
W2引至APD-2,采用镀锌电气导管敷设DN50,管内穿3根BV-35mm2线与2根BV-25mm2线;
W3引至AL-1,采用半硬阻燃导管敷设DN32,管内穿3根BV-10mm2线。
由AP1-1引出两条回路:(关注微信公众号:建筑水电知识)
W5引至ALD,采用镀锌电气导管敷设DN25,管内穿3根BV-6mm2线。
W1照明回路,半硬塑料管管内穿2根BV-2.5mm2线。
由AL1断路器的进线侧引出一条回路作为AL2的电源进线,半硬塑料管DN32,管内穿BV-10 mm2线。
W1、W2照明回路,采用刚性塑料管敷设DN15,管内穿2根BV-2.5mm2线。
W3、插座回路,采用刚性塑料管敷设DN15,管内穿3根BV-2.5mm2线。
图中表示的内容是:配电箱、电动设备的具体的位置、电气线路的走向及敷设部位,
例如:从APD-2引出的两条回路至污水泵(1.5KW)采用镀锌钢导管DN20管内穿4根BV-1.5 mm2线,沿地面敷设。
从APD-3引出两条回路至消防水泵(30KW)采用镀锌钢导管DN40,管内穿3根BV-25 mm2线和1根BV-16mm2线沿地面敷设。
地下室照明平面图表示出接地装置的安装的具体的平面位置,人工接地体为DN50的镀锌钢管,长度为2.5M;接地线采用-40×4的镀锌扁钢,埋深地下1M。
地下室平面图中表示出地下室照明配电箱ALD的安装位置,从图中可知地下室的灯具有防水防尘灯、座灯头、半圆吸顶灯、一个暗装三联单控开关。灯具的电源从ALD引出,经开关分别控制防水灯及座灯头,并从半园吸顶灯位盒(或接线盒)处引出一条回路至1层在图中2轴处。




图1-4 住宅楼建筑防雷平面图、立面图(a)平面图 (b)立面图

相关推荐链接:
1、110kV变电站土建建筑图及电气一次图
2、室内城装用建筑符号电气图常用符号
全部回复(0 )
只看楼主 我来说两句抢沙发