“Design creates culture. Culture shapes values. Values determine the future.”
设计创造文化,文化造就价值观,价值观决定了未来。
——Robert L. Peters
![]()
设计概念
晨曦照耀,盎然绿意伴随日光翩翩洒落,原木色映衬,暖橙调性相佐,一扫在外面对的冷硬环境,倾注于现代风格中的温暖质地,描摹外部灿烂翠绿景色入屋,成为家族谈欢的天然背景。
随着场景移换,使人贪恋的亲子时光,穿梭于彼此相融的格局,刻印在空间的各个角落:父母伴读幼子、亲友相聚谈欢??,静谧中散发迷人亲情光辉,使人陶醉于此共聚之地。
设计手法
现代风范 暖色点染
考量屋主夫妻工作环境调性较为冰冷,因此在喜爱的现代风格上,以原木凸显温润亲和,有别于直接运用灰、白、黑色彩,铺排暖色材质于场域,搭配室内端景的设计,将户外景致带入内部。
亲情交流 格局相通
三层楼的宅邸,按照生活动线的划分,由下至上分别归纳出公共空间、私领域,以及用途多变的休憩场所,而即使在个人房间为主的二楼,仍然保有家庭成员能交流学习的书房,无论在哪个区位,皆考虑家人彼此的紧密互动。
顺应自然 导引天光
房屋外部风光明媚,因此在各楼层的设计,举凡能与景观风貌相通处,均设法做出与自然的连结,玄关处的端景、书房亮眼的木皮拼构,便皆迎接周边绿景天光,渲染放松疗愈身心的画面。
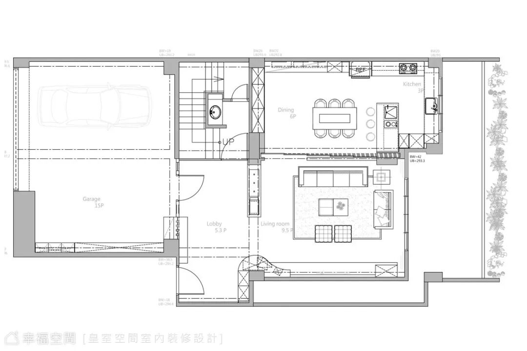
玄关
连结玄关外的深色系墙面,因此进门处右侧,使用沉黑色薄片石材延伸色系展现,而在同一侧墙面,亦设有车库出入口连通室内,回应后方停放车辆的冷调质感,运用不锈钢制作门片,并在前方设置结合人造石、枯木和铁件的特色风景,和客厅窗景遥相映。
客厅
以绿色植栽点缀的客厅,与餐厅间隔的墙面侧,做略带动感的倒L形设计,增添屋中造型感;看往客厅电视墙,黑色天然石材薄片与同色系的电视相融,相接一旁白弧面圆柱,使得入门所见,更显圆融协调,而柱体留置的乐高模型空间,和沙发后方展示女孩画作的洞洞板彼此对望,在家人最常交谊的场地,展露孩童的个性爱好。
餐厅
餐厅串连木天花板和外部景色,使烹调场合更添自然清幽,同时陈设大量收纳柜体,保留完整展示墙面,使用系统板铺排黑白相间的梯形色块,加上层架,做具质感的陈列;此外,尚在与客厅之间加上铝拉门,聚会时能阻隔油烟。
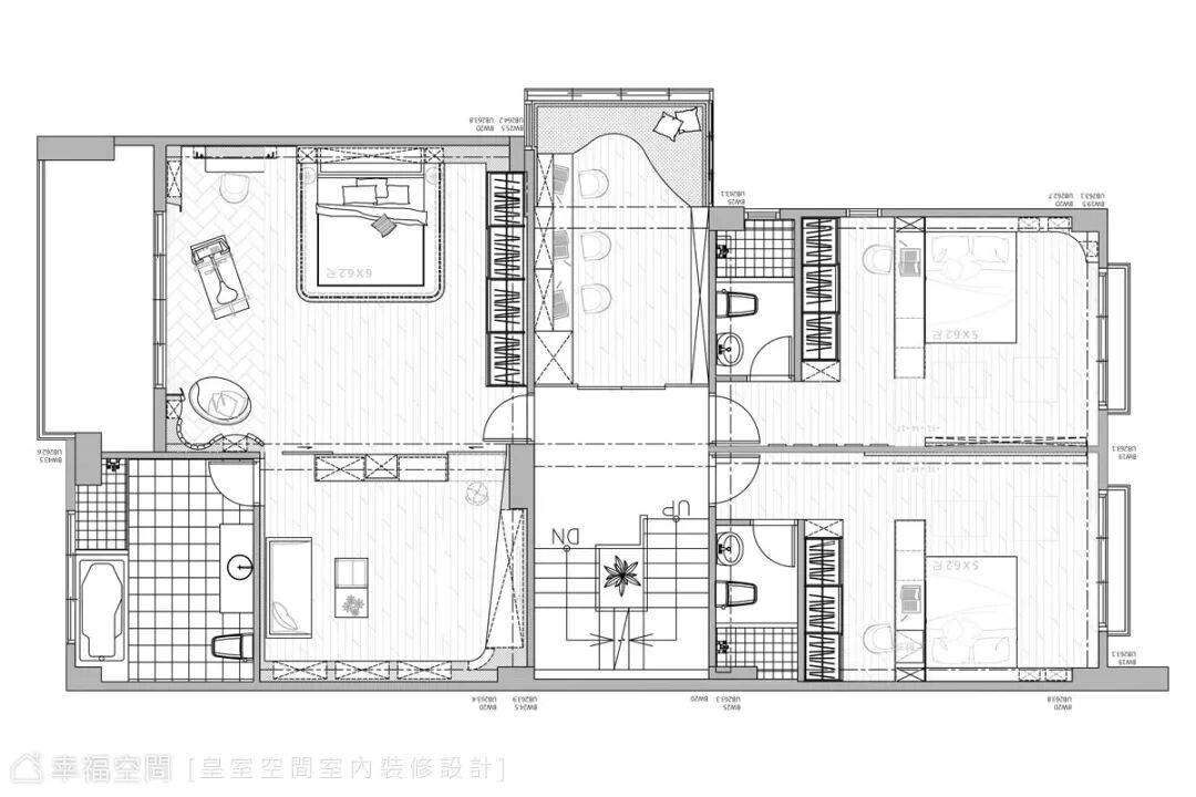
主卧室
床头背墙铺设黑色、梳妆处设置原木色、舒适的休息角落为蓝色,深沉色系使主卧室的静谧氛围更加凸显;窗畔的木色天花板,与外部的花园景象连结,而人字拼与原木纹理的地板,则区分睡眠与梳妆休息区,弧形、下方打光的床板,另确保行走时的安全,并且让夜半时分有微光照明。
主卧室连接卫浴空间的过渡地带,为男女主人夜间休憩的小客厅,兼作摆设收藏品、做视听娱乐的场所。小沙发背后,各式水平垂直线条相互连接,修饰位于侧边的隐藏门;亮眼的红色与木头原色相配,将场地质感提升到新的华丽层次。
书房
尽头两侧能看见阳台风景的书房,墙面木皮特意作出各色的拼构,形塑屋内的吸睛景观;草绿色的卧榻,依据宽度不一的双边窗户做不规则状,更显造型感,部分开放式的收纳柜体,除放置屋主的收藏品,也供大量藏书利用,透过别具巧思的线条柜面划设,呈现清爽视觉。
男孩房
链接喜爱乐高的男孩心思,在一侧墙面底部,以木作和绷布泡棉做出相仿的造型墙板,也在上方制作作品展示柜;卧室床板藏有升降桌面以及置物柜,床头处以深灰色绷布围绕、修饰后方硬件,并在部分布面挖空,增加收纳机能。
女孩房
满足热爱画图的女孩,房间放置黑板墙予其发挥,和男孩房区位设置皆相仿,两房踏往床架的阶梯,都做出书籍的收纳空间,由于优先以孩童喜欢的选色来设置,因此女孩房的色调较男孩房柔和。
音乐室
屋主一家成员各具演奏钢琴、吉他以及鼓的才华,因此在屋中设置音乐室供利用,并联想地点用途特质,以琴键作为场地主视觉,延展布置于墙面与天花板,加上镜面墙体,让女孩在相约朋友跳舞时能使用。
品酒室
主要为男屋主私人空间的品酒室,可进行品酒、唱歌、打电动游戏等娱乐,为避免室内产生回音,底材制作不锈钢的造型木作天花板,而沙发后的吸音板也使室内的声音效果能更好的展现。由于多用于聚会,此处更配设小吧台和藏酒柜,以使人沉醉的酒吧气质表现。
设计概念文字为【皇室空间室内装修设计】提供
居住成员:大人×2、小孩×2、宠物×1
房屋面积:231平方米(室内)
设计风格:现代风
房屋类型:别墅
房屋状况:新成屋
图片提供:皇室空间室内装修设计
空间格局:6房、1厅、5卫
主要建材:石物、木皮、系统板、超耐磨地板、烤漆璃、黑板漆、造型铁件、造型绷布




























0人已收藏
0人已打赏
免费0人已点赞
分享
家装设计
返回版块22.34 万条内容 · 389 人订阅
回帖成功
经验值 +10
全部回复(0 )
只看楼主 我来说两句抢沙发